4.9
Рейтинг на основании 120 отзывов
Дмитров
Опорный проезд 28Б
(индустриальный парк Ниагара)
Бренд "Дмитров-Дело" c 2008 года на рынке строительства в Дмитрове
Звоните 9:00 до 18:00 8 (915) 055-33-61
Бренд "Дмитров-Дело" c 2008 года на рынке строительства в Дмитрове

Двухэтажный каркасный дом «Миа-Вита»

Стоимость проекта от:
61 650 ₽
БЕСПЛАТНО! ПРИ ЗАКАЗЕ СТРОИТЕЛЬСТВА
Стоимость строительства от:
9 755 280 ₽
Артикул ART-20606
Дата 26.12.2025
Архитектурный стиль Барнхаус
Количество надземных этажей 2
Круглогодичное проживание Да
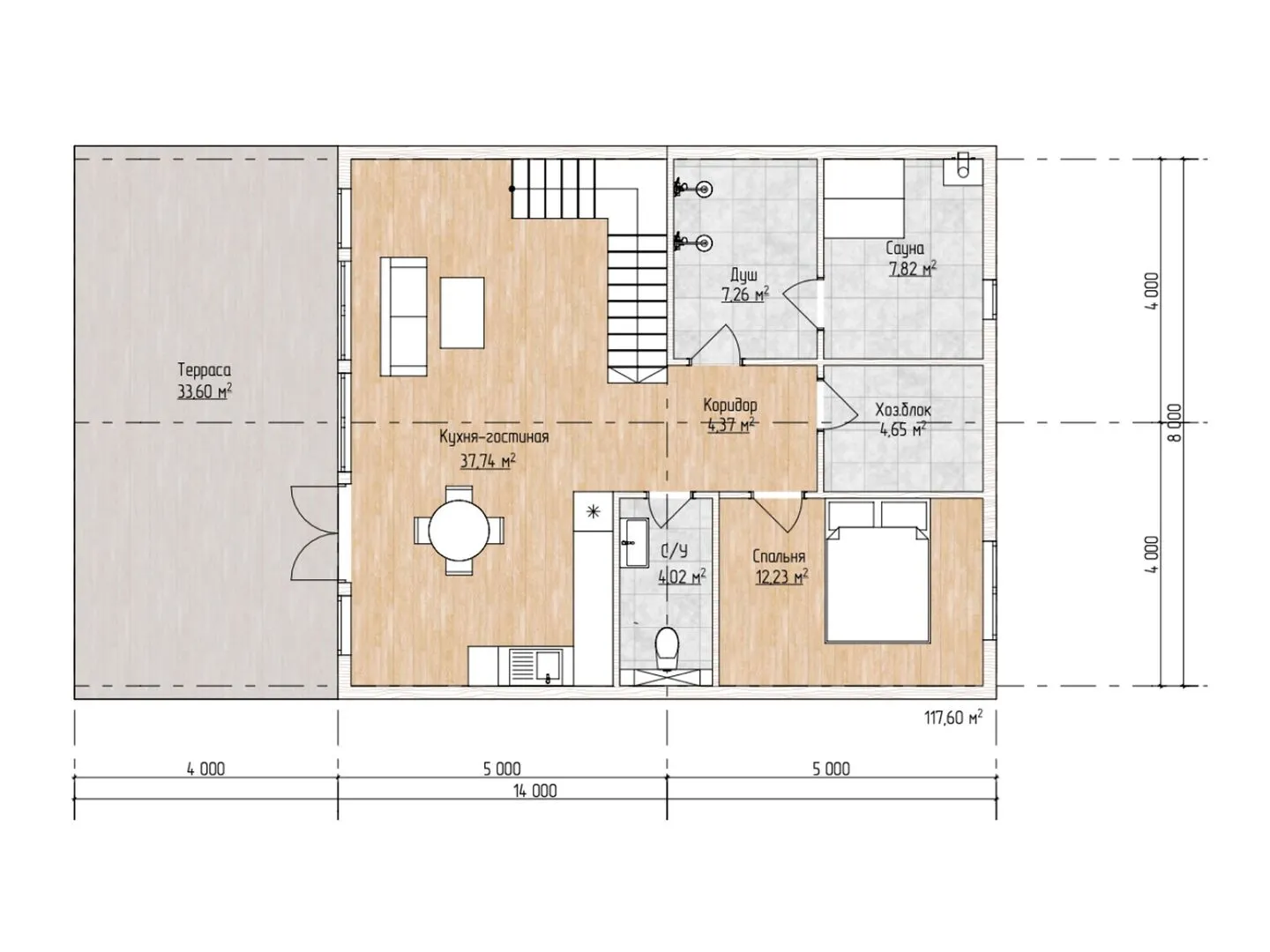
Площадь дома 137 м2
Санузлы 1
Спальни 2

Описание

Двухэтажный каркасный дом «Миа‑Вита» в стиле барнхаус – это идеальный вариант для тех, кто ценит гармонию простоты и современного комфорта. Пышные, открытые пространства внутри, большие окна и светлые интерьеры создают ощущение тепла и уюта, а строгая геометрия каркасной конструкции придаёт дому надёжность и долговечность. Благодаря продуманному климатическому утеплению, этот дом идеально подходит для круглогодичного проживания, гарантируя комфорт как в знойный летний день, так и в морозную зимнюю погоду. Особое внимание привлекает уютная просторная терраса, где можно насладиться закатами и свежим воздухом, создавая атмосферу настоящего уединения. Каркасно‑панельная технология строительства обеспечивает экономичность и быструю готовность дома к эксплуатации, а два скатных крыша с характерными глиняными черепками подчёркивает стиль барнхауса и придает зданию неповторимую эстетику. Внутреннее планирование дома продуманно, каждый метр используется для создания удобного и практичного пространства, способного удовлетворить даже самые взыскательные требования. «Миа‑Вита» не просто дом – это место, где архитектура встречается с душевным теплом. Здесь, среди мягкого света и натуральных материалов, каждый может почувствовать себя дома, не покидая комфорта, который предлагает современный строительный подход. Если вы ищете гармоничное сочетание стилевых акцентов, практичности и теплого очарования, этот двухэтажный каркасный дом станет идеальным выбором для вашего нового жизненного пространства.

Характеристики дома

Архитектурный стиль
Автоматизированное регулирование параметров теплоносителя
Да
Балконы/лоджии
Отсутствуют
Чердачное помещение
Нет
Датчики протечки воды
Да
Эксплуатируемая или зеленая кровля
Нет
Электроснабжение
2 варианта
Газоснабжение
2 варианта
Изоляция воздушного шума
Да
Камин
Нет
Класс энергоэффективности
-
Класс энергосбережения
-
Количество надземных этажей
2
Круглогодичное проживание
Да
Материал кровли
Фальцевая кровля из цинковых листов
Материал перекрытий
Деревянные
Материал внешних стен
Материал внутренних перегородок
Деревянные
Модульное строительство с конструкциями заводского изготовления
Нет
Объем надземной части
664 м3
Основной материал фасадов
Планкен
Отопление
2 варианта
Площадь дома
137 м2
Площадь застройки
103 м2
Подвальное помещение
Нет
Показатель компактности здания
-
Приборы учета тепловой энергии
Да
Пристроенный гараж/крытая автостоянка
Нет
Противопожарная система
Да
Санузлы
1
Совмещенная кухня-гостиная
Да
Спальни
2
Терраса
Да
Тип фундамента
Свайно-ростверковый
Тип кровли
Толщина внешних стен
200 мм
Толщина внутренних перегородок
150 мм
Улучшенные шумовые характеристики
Да
Вентиляция
2 варианта
Веранда
Нет
Водоотведение
2 варианта
Водоснабжение
2 варианта
Высота дома
6.4 м
Высота потолков
2.5 м

Планировка

Фасад дома

Александр

Закажите выезд инженера

Александр

Выездной инженер
Закажите выезд инженера для точной диагностики и профессиональной консультации по инженерным системам. Специалист приедет в удобное время, проведёт осмотр, рассчитает стоимость работ и подберёт оптимальные решения для вашего дома.


    Похожие проекты

    Ипотека и
    рассрочка
    ЧС-66
    Стоимость от:
    6 291 780
    Проект от: 35 550
    Этажей 1
    Санузлы 1
    Спальни 2
    Смотреть
    Ипотека и
    рассрочка
    ФОРЕСТ
    Стоимость от:
    1 565 190
    Проект от: 12 150
    Этажей 1
    Санузлы 1
    Спальни 1
    Смотреть
    Ипотека и
    рассрочка
    Одноэтажный дом площадью 77 кв.м.
    Стоимость от:
    5 963 540
    Проект от: 34 650
    Этажей 1
    Санузлы 2
    Спальни 3
    Смотреть
    Ипотека и
    рассрочка
    Каркасный дом «ДК-192»
    Стоимость от:
    7 450 560
    Проект от: 57 150
    Этажей 2
    Санузлы 1
    Спальни 4
    Смотреть
    Ипотека и
    рассрочка
    БМ 101
    Стоимость от:
    12 441 360
    Проект от: 76 050
    Этажей 2
    Санузлы 2
    Спальни 3
    Смотреть
    Ипотека и
    рассрочка
    Двухэтажный дом СО-117
    Стоимость от:
    8 178 480
    Проект от: 52 650
    Этажей 2
    Санузлы 2
    Спальни 5
    Смотреть

    Как узнать стоимость дома

    back
    Оставляете заявку
    Вы заполняете форму на сайте или звоните нам. Менеджер Лайвкрафт связывается с вами для уточнения деталей: тип дома, площадь, материалы, участок строительства.
    back
    Консультация и подбор решения
    Наш специалист помогает выбрать оптимальный тип дома и конструкцию с учётом бюджета, сроков и целей — будь то дом для постоянного проживания или дача.
    back
    Расчёт предварительной стоимости
    Инженер делает первичный расчёт стоимости строительства по вашим параметрам: фундамент, коробка, кровля, отделка. Вы получаете смету с разбивкой по этапам.
    back
    Корректировка и утверждение сметы
    При необходимости вносим изменения — например, замену материалов или сокращение этапов. После согласования формируется окончательная фиксированная смета.
    back
    Заключение договора и старт работ
    После утверждения сметы заключаем официальный договор с гарантией. Вы получаете прозрачный график и точную стоимость — без скрытых расходов.

    Заказать конусльтацию по:Двухэтажный каркасный дом «Миа-Вита»

    Фото 1 Двухэтажный каркасный дом «Миа-Вита»


      Наши
      контакты

      Дмитров
      Опорный проезд 28Б
      (индустриальный парк Ниагара)
      9:00 до 18:00

      Корзина