4.9
Рейтинг на основании 120 отзывов
Дмитров
Опорный проезд 28Б
(индустриальный парк Ниагара)
Бренд "Дмитров-Дело" c 2008 года на рынке строительства в Дмитрове
Звоните 9:00 до 18:00 8 (915) 055-33-61
Бренд "Дмитров-Дело" c 2008 года на рынке строительства в Дмитрове

Двухэтажный кирпичный дом ЧЫРШЫ

Стоимость проекта от:
47 250 ₽
Стоимость строительства от:
7 609 200 ₽
Артикул ART-14560
Дата 25.12.2025
Архитектурный стиль Классический
Количество надземных этажей 2
Круглогодичное проживание Да
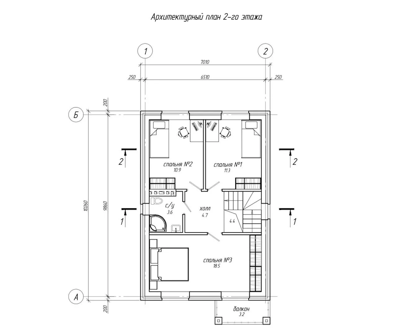
Площадь дома 105 м2
Санузлы 2
Спальни 4

Описание

Великолепный двухэтажный кирпичный дом в Чыршах воплощает гармонию классического стиля и уюта современного обитания. Каждая деталь – от выдержанных каменных фасадов до аккуратной двускатной крыши – пронизана традиционным духом и придаёт дому неповторимую величественность. Затенённый зеленым ландшафтом, он открывает просторные внутренние помещения, где свет проникает сквозь большие окна, создавая атмосферу тепла и гостеприимства в любое время года. Собственники ценят функциональность: квартира спроектирована так, чтобы комфортно проживать круглый год, а наличие чердачного помещения открывает дополнительные возможности — будь то уютный анекдотический уголок, кладовка для хранения или стильный спальный кабинет. Лоджия с балконом и просторная терраса позволяют наслаждаться свежим воздухом и восходящими закатами, а просторный двор без прицепного гаража сохраняет чистоту и порядок. Этот дом – идеальное сочетание классики, практичности и эстетики, которое приглашает вас стать его частью.

Характеристики дома

Архитектурный стиль
Классический
Автоматизированное регулирование параметров теплоносителя
Нет
Балконы/лоджии
1
Чердачное помещение
Да
Датчики протечки воды
Нет
Эксплуатируемая или зеленая кровля
Нет
Электроснабжение
Центральное
Газоснабжение
Центральное
Изоляция воздушного шума
Нет
Камин
Нет
Класс энергоэффективности
-
Класс энергосбережения
-
Количество надземных этажей
2
Круглогодичное проживание
Да
Материал кровли
Металлочерепица
Материал перекрытий
Сборные железобетонные
Материал внешних стен
Кирпич
Материал внутренних перегородок
Кирпичные
Модульное строительство с конструкциями заводского изготовления
Нет
Объем надземной части
486 м3
Основной материал фасадов
Облицовочный кирпич
Отопление
2 варианта
Площадь дома
105 м2
Площадь застройки
76 м2
Подвальное помещение
Нет
Показатель компактности здания
-
Приборы учета тепловой энергии
Нет
Пристроенный гараж/крытая автостоянка
Нет
Противопожарная система
Нет
Санузлы
2
Совмещенная кухня-гостиная
Да
Спальни
4
Терраса
Да
Тип фундамента
Свайно-ростверковый
Тип кровли
Двускатная
Толщина внешних стен
470 мм
Толщина внутренних перегородок
125 мм
Улучшенные шумовые характеристики
Нет
Вентиляция
2 варианта
Веранда
Нет
Водоотведение
2 варианта
Водоснабжение
2 варианта
Высота дома
8 м
Высота потолков
3 м

Планировка

Фасад дома

Александр

Закажите выезд инженера

Александр

Выездной инженер
Закажите выезд инженера для точной диагностики и профессиональной консультации по инженерным системам. Специалист приедет в удобное время, проведёт осмотр, рассчитает стоимость работ и подберёт оптимальные решения для вашего дома.


    Похожие проекты

    Ипотека и
    рассрочка
    Барнхаус Таруса
    Стоимость от:
    8 729 760
    Проект от: 60 750
    Этажей 2
    Санузлы 2
    Спальни 2
    Смотреть
    Ипотека и
    рассрочка
    Одноэтажный барнхаус LATO-76
    Стоимость от:
    3 391 905
    Проект от: 27 450
    Этажей 1
    Санузлы 1
    Спальни 2
    Смотреть
    Ипотека и
    рассрочка
    Двухэтажный дом в стиле Barnhouse — 75 кв.м
    Стоимость от:
    4 850 760
    Проект от: 33 750
    Этажей 2
    Санузлы 1
    Спальни 2
    Смотреть
    Ипотека и
    рассрочка
    Коттедж ГБ-2.3
    Стоимость от:
    11 428 320
    Проект от: 71 100
    Этажей 2
    Санузлы 2
    Спальни 3
    Смотреть
    Ипотека и
    рассрочка
    Цветаева
    Стоимость от:
    6 614 960
    Проект от: 39 600
    Этажей 1
    Санузлы 1
    Спальни 3
    Смотреть
    Ипотека и
    рассрочка
    Лагуна К115-1 (Каркасный дом)
    Стоимость от:
    6 666 550
    Проект от: 51 750
    Этажей 1
    Санузлы 1
    Спальни 2
    Смотреть

    Как узнать стоимость дома

    back
    Оставляете заявку
    Вы заполняете форму на сайте или звоните нам. Менеджер Лайвкрафт связывается с вами для уточнения деталей: тип дома, площадь, материалы, участок строительства.
    back
    Консультация и подбор решения
    Наш специалист помогает выбрать оптимальный тип дома и конструкцию с учётом бюджета, сроков и целей — будь то дом для постоянного проживания или дача.
    back
    Расчёт предварительной стоимости
    Инженер делает первичный расчёт стоимости строительства по вашим параметрам: фундамент, коробка, кровля, отделка. Вы получаете смету с разбивкой по этапам.
    back
    Корректировка и утверждение сметы
    При необходимости вносим изменения — например, замену материалов или сокращение этапов. После согласования формируется окончательная фиксированная смета.
    back
    Заключение договора и старт работ
    После утверждения сметы заключаем официальный договор с гарантией. Вы получаете прозрачный график и точную стоимость — без скрытых расходов.

    Заказать конусльтацию по:Двухэтажный кирпичный дом ЧЫРШЫ

    Фото 1 Двухэтажный кирпичный дом ЧЫРШЫ


      Наши
      контакты

      Дмитров
      Опорный проезд 28Б
      (индустриальный парк Ниагара)
      9:00 до 18:00