4.9
Рейтинг на основании 120 отзывов
Дмитров
Опорный проезд 28Б
(индустриальный парк Ниагара)
Бренд "Дмитров-Дело" c 2008 года на рынке строительства в Дмитрове
Звоните 9:00 до 18:00 8 (915) 055-33-61
Бренд "Дмитров-Дело" c 2008 года на рынке строительства в Дмитрове

Коттедж со встроенным гаражом

Стоимость проекта от:
101 250 ₽
БЕСПЛАТНО! ПРИ ЗАКАЗЕ СТРОИТЕЛЬСТВА
Стоимость строительства от:
16 278 000 ₽
Артикул ART-12962
Дата 25.12.2025
Архитектурный стиль Классический
Количество надземных этажей 2
Круглогодичное проживание Да
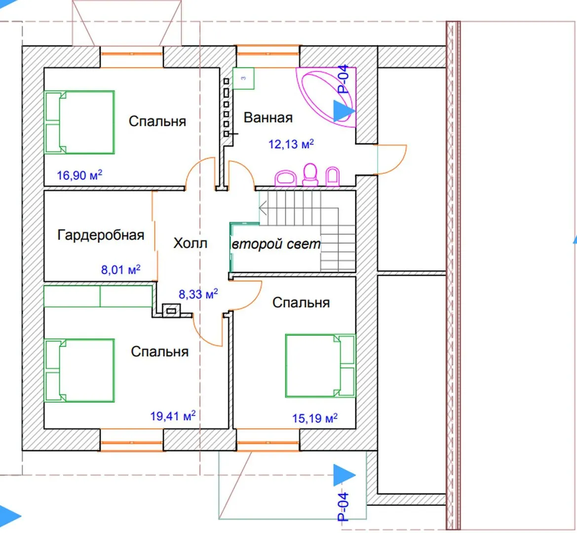
Площадь дома 225 м2
Санузлы 3
Спальни 4

Описание

**Уютный классический коттедж с встроенным гаражом** Этот двухэтажный коттедж – истинный оазис комфорта и спокойствия для того, кто ценит простую элегантность. Архитектурный стиль, выдержанный в классическом ключе, подчёркивает гармонию с природой и ощущение уюта в каждом уголке. Внутреннее пространство продумано до мелочей: свободная планировка, просторные комнаты, большие окна, пропускающие мягкий свет – всё это делает дом идеальным для круглогодичного проживания. Ваша семья сможет наслаждаться прохладой летних полдня и теплом уютного осеннего вечера, чувствуя себя дома круглый год. **Встроенный гараж и прочность материалов** Особое внимание заслуживает встроенный гараж с крытой автостоянкой – ваш автомобиль будет защищён от непогоды, а дополнительное пространство удобно использовать для хранения инструментов, велосипедов или сезонных принадлежностей. Эксплуатационная надежность дома обеспечивается керамзитобетонными блоками, которые сохраняют тепло в зиму и обеспечивают прохладу в летние жаркие дни. Двускатная крыша, выполненная из высококачественных материалов, придаёт дому крепкий и устойчивый вид, защищая конструкцию от ветра и дождя. **Терраса для отдыха и семейных собраний** Хотя балконы и веранда отсутствуют, в коттедже предусмотрена просторная терраса, где можно устроить барбекю, читать книгу или просто наслаждаться тихим закатом. Этот уголок станет приятным дополнением к внутреннему пространству, позволяя вам проводить часы в наслаждении природой, не отрываясь от уюта дома. Коттедж объединяет в себе классическую эстетику, практичность и современные удобства, создавая идеальный дом для тех, кто хочет жить с комфортом и стилем.

Характеристики дома

Архитектурный стиль
Автоматизированное регулирование параметров теплоносителя
Да
Балконы/лоджии
Отсутствуют
Чердачное помещение
Нет
Датчики протечки воды
Нет
Эксплуатируемая или зеленая кровля
Нет
Электроснабжение
Центральное
Газоснабжение
Центральное
Изоляция воздушного шума
Да
Камин
Да
Класс энергоэффективности
A++
Класс энергосбережения
A++
Количество надземных этажей
2
Круглогодичное проживание
Да
Материал кровли
Металлочерепица
Материал перекрытий
Сборные железобетонные многопустотные плиты
Материал внешних стен
Материал внутренних перегородок
Кирпичные
Модульное строительство с конструкциями заводского изготовления
Нет
Объем надземной части
967 м3
Основной материал фасадов
Облицовочный кирпич
Отопление
Индивидуальное
Площадь дома
225 м2
Площадь застройки
178 м2
Подвальное помещение
Нет
Показатель компактности здания
0.9
Приборы учета тепловой энергии
Да
Пристроенный гараж/крытая автостоянка
Да
Противопожарная система
Нет
Санузлы
3
Совмещенная кухня-гостиная
Да
Спальни
4
Терраса
Да
Тип фундамента
Свайно-ростверковый
Тип кровли
Толщина внешних стен
470 мм
Толщина внутренних перегородок
120 мм
Улучшенные шумовые характеристики
Да
Вентиляция
Естественная
Веранда
Нет
Водоотведение
Локальные очистные сооружения
Водоснабжение
Индивидуальное
Высота дома
10.5 м
Высота потолков
3 м

Планировка

Фасад дома

Александр

Закажите выезд инженера

Александр

Выездной инженер
Закажите выезд инженера для точной диагностики и профессиональной консультации по инженерным системам. Специалист приедет в удобное время, проведёт осмотр, рассчитает стоимость работ и подберёт оптимальные решения для вашего дома.


    Похожие проекты

    Ипотека и
    рассрочка
    Модульный дом FL 103 (C103)
    Стоимость от:
    6 859 710
    Проект от: 55 350
    Этажей 1
    Санузлы 2
    Спальни 3
    Смотреть
    Ипотека и
    рассрочка
    КД-1-8
    Стоимость от:
    7 006 560
    Проект от: 39 600
    Этажей 1
    Санузлы 1
    Спальни 3
    Смотреть
    Ипотека и
    рассрочка
    Дом Люкс 160 м2
    Стоимость от:
    10 975 920
    Проект от: 74 700
    Этажей 2
    Санузлы 2
    Спальни 3
    Смотреть
    Ипотека и
    рассрочка
    Одноэтажный дом АН 118
    Стоимость от:
    8 790 540
    Проект от: 52 650
    Этажей 1
    Санузлы 2
    Спальни 2
    Смотреть
    Ипотека и
    рассрочка
    Дом Каролина
    Стоимость от:
    4 682 205
    Проект от: 36 450
    Этажей 1
    Санузлы 1
    Спальни 2
    Смотреть
    Ипотека и
    рассрочка
    ЧЗ-175
    Стоимость от:
    12 666 000
    Проект от: 78 750
    Этажей 2
    Санузлы 2
    Спальни 3
    Смотреть

    Как узнать стоимость дома

    back
    Оставляете заявку
    Вы заполняете форму на сайте или звоните нам. Менеджер Лайвкрафт связывается с вами для уточнения деталей: тип дома, площадь, материалы, участок строительства.
    back
    Консультация и подбор решения
    Наш специалист помогает выбрать оптимальный тип дома и конструкцию с учётом бюджета, сроков и целей — будь то дом для постоянного проживания или дача.
    back
    Расчёт предварительной стоимости
    Инженер делает первичный расчёт стоимости строительства по вашим параметрам: фундамент, коробка, кровля, отделка. Вы получаете смету с разбивкой по этапам.
    back
    Корректировка и утверждение сметы
    При необходимости вносим изменения — например, замену материалов или сокращение этапов. После согласования формируется окончательная фиксированная смета.
    back
    Заключение договора и старт работ
    После утверждения сметы заключаем официальный договор с гарантией. Вы получаете прозрачный график и точную стоимость — без скрытых расходов.

    Заказать конусльтацию по:Коттедж со встроенным гаражом

    Фото 1 Коттедж со встроенным гаражом


      Наши
      контакты

      Дмитров
      Опорный проезд 28Б
      (индустриальный парк Ниагара)
      9:00 до 18:00

      Корзина