Двухэтажный кирпичный дом «Франс 209»
Описание
Характеристики дома
Архитектурный стиль
Автоматизированное регулирование параметров теплоносителя
-
Балконы/лоджии
Отсутствуют
Чердачное помещение
Да
Датчики протечки воды
-
Эксплуатируемая или зеленая кровля
-
Электроснабжение
Центральное
Газоснабжение
Индивидуальное
Изоляция воздушного шума
-
Камин
Нет
Класс энергоэффективности
-
Класс энергосбережения
-
Количество надземных этажей
2
Круглогодичное проживание
Да
Материал кровли
Металлочерепица
Материал перекрытий
Сборные железобетонные
Материал внешних стен
Материал внутренних перегородок
Кирпичные
Модульное строительство с конструкциями заводского изготовления
Нет
Объем надземной части
1087 м3
Основной материал фасадов
Облицовочный кирпич
Отопление
Индивидуальное
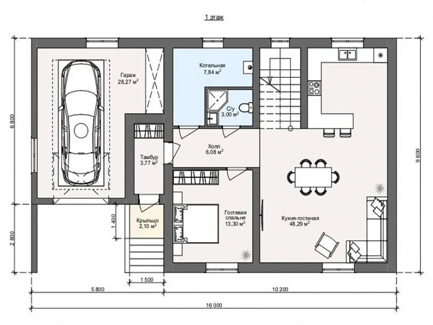
Площадь дома
209 м2
Площадь застройки
209 м2
Подвальное помещение
Нет
Показатель компактности здания
-
Приборы учета тепловой энергии
-
Пристроенный гараж/крытая автостоянка
Да
Противопожарная система
Нет
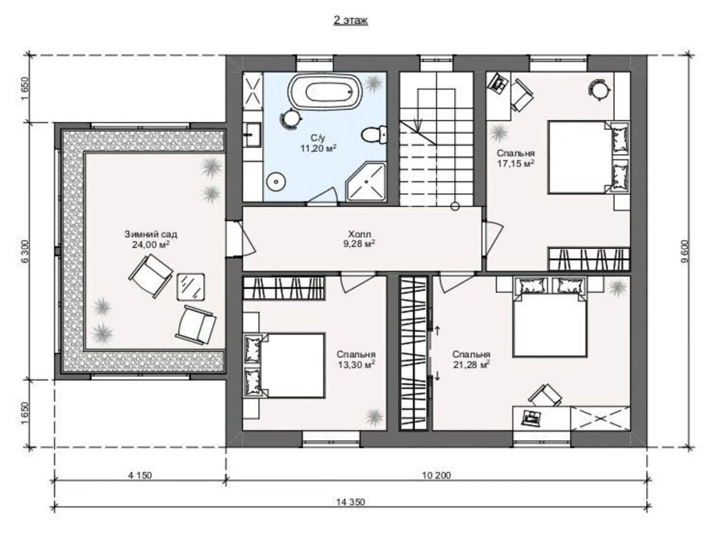
Санузлы
2
Совмещенная кухня-гостиная
Да
Спальни
4
Терраса
Нет
Тип фундамента
Плитный
Тип кровли
Толщина внешних стен
510 мм
Толщина внутренних перегородок
120 мм
Улучшенные шумовые характеристики
-
Вентиляция
2 варианта
Веранда
Нет
Водоотведение
Локальные очистные сооружения
Водоснабжение
Индивидуальное
Высота дома
5.2 м
Высота потолков
2.6 м
Категории проекта
Строительство двухэтажных домовСтроительство домовСтроительство домов без балкона или лоджииСтроительство домов без террасыСтроительство домов в Скандинавском стилеСтроительство домов для круглогодичного проживанияСтроительство домов из керамических блоковСтроительство домов с верандойСтроительство домов с гаражомСтроительство домов с чердакомСтроительство домов с четырехскатной (вальмовой) кровлей
Закажите выезд инженера
Александр
Выездной инженер
Закажите выезд инженера для точной диагностики и профессиональной консультации по инженерным
системам. Специалист приедет в удобное время, проведёт осмотр, рассчитает стоимость работ и подберёт
оптимальные решения для вашего дома.
Как узнать стоимость дома
Заказать конусльтацию по:Двухэтажный кирпичный дом «Франс 209»
Наши
контакты
Дмитров
Опорный проезд 28Б
(индустриальный парк Ниагара)
Опорный проезд 28Б
(индустриальный парк Ниагара)
9:00 до 18:00