4.9
Рейтинг на основании 120 отзывов
Дмитров
Опорный проезд 28Б
(индустриальный парк Ниагара)
Бренд "Дмитров-Дело" c 2008 года на рынке строительства в Дмитрове
Звоните 9:00 до 18:00 8 (915) 055-33-61
Бренд "Дмитров-Дело" c 2008 года на рынке строительства в Дмитрове

Двухэтажный проект Визе 118

Стоимость проекта от:
53 100 ₽
Стоимость строительства от:
8 099 520 ₽
Артикул ART-6567
Дата 26.12.2025
Архитектурный стиль Европейский
Количество надземных этажей 2
Круглогодичное проживание Да
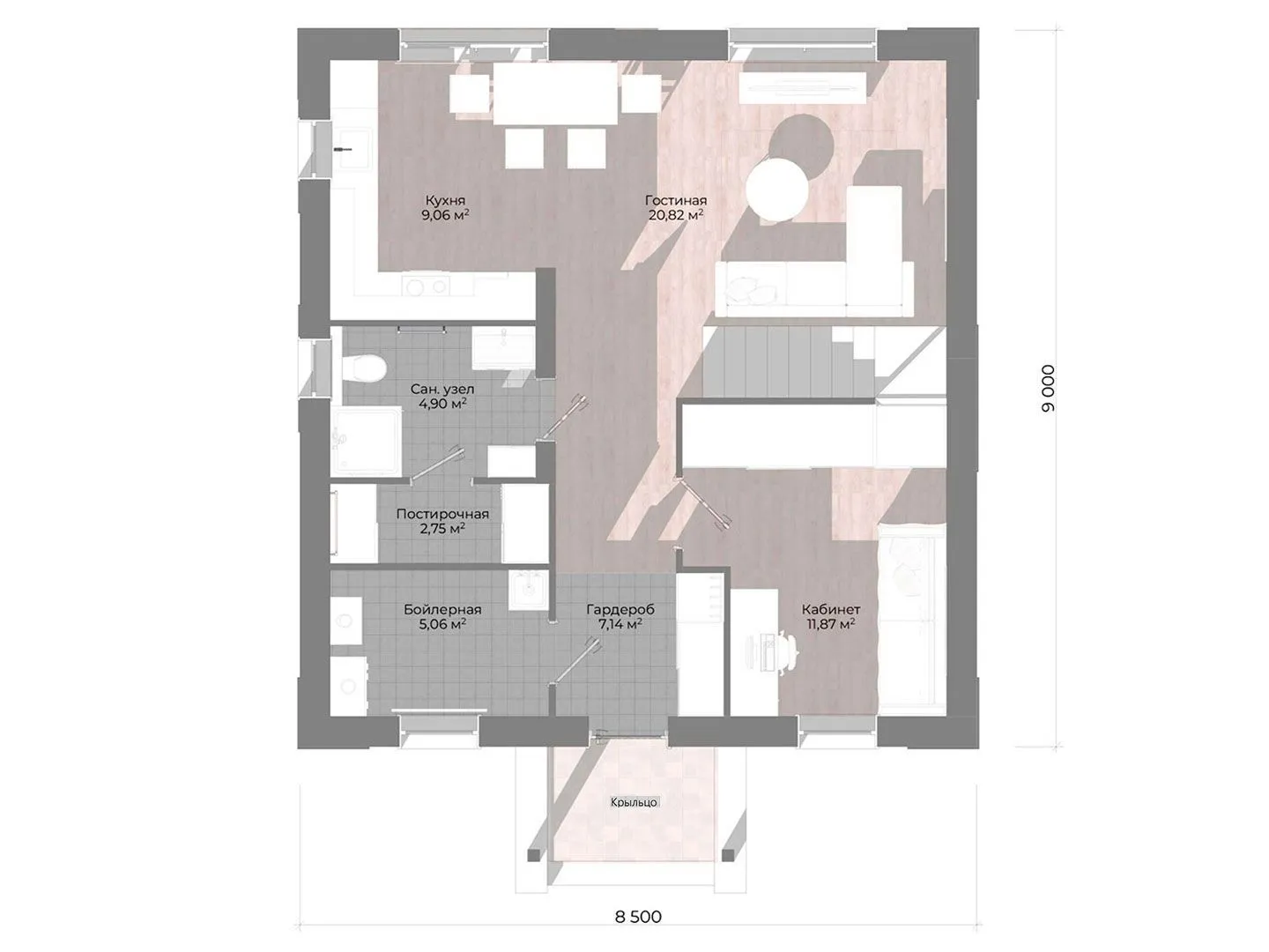
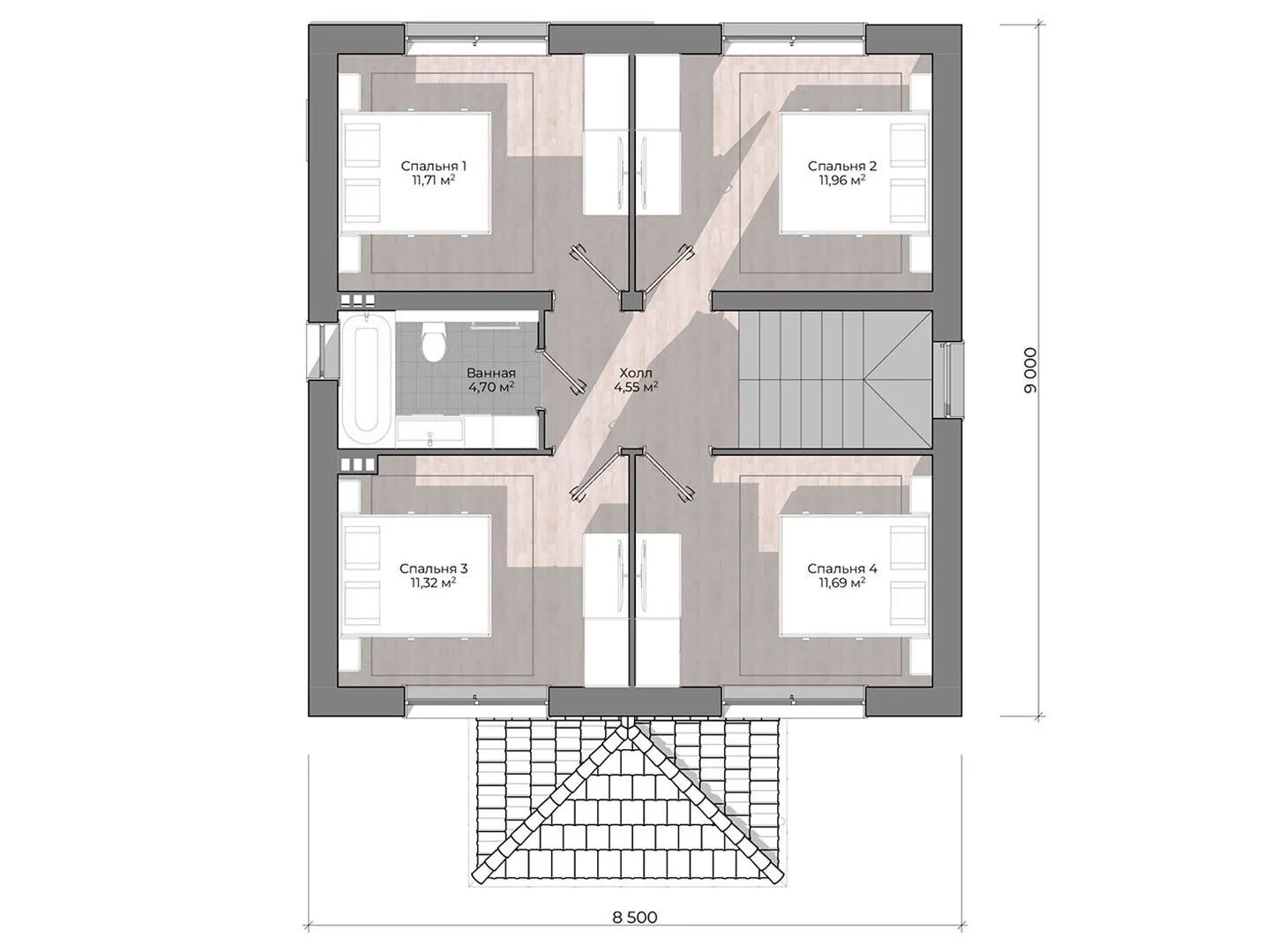
Площадь дома 118 м2
Санузлы 2
Спальни 4

Описание

Добро пожаловать в ваш новый уютный уголок в стиле европейской классики! Этот двухэтажный проект Визе 118 поражает своей гармонией простых линий и функциональности. С двухнадцатью квадратными метрами на каждой улице и без лишних балконов и веранд, ваш дом станет оазисом уединения и спокойствия. Весь интерьер рассчитан на круглогодичное проживание: тепло и тепло, даже в самые холодные дни. Четырехскатная вальмовая крыша придаёт дому традиционный вид, а газобетонные блоки стен — надёжность, долговечность и энергоэффективность. Внутри вас ждёт простор и свет. Просторные комнаты с высокими потолками, классическая лестница и мягкое освещение создают атмосферу уюта и домашнего тепла. Благодаря планировке «на открытом воздухе», в доме легко циркулировать, а отсутствие лишних помещений позволяет оптимизировать пространство под ваши нужды. Без прикольных барьеров в виде гаражей или чердаков — вы получите чистую, минималистическую среду, которую легко обустроить по своему вкусу. Каждый уголок этого дома обрабатывается с любовью к деталям, что делает его идеальным местом для семьи, друзей и личного отдыха. Приготовьтесь к жизни, где классический стиль встречается с современным комфортом, и где каждый день приносит новые ощущения уюта и вдохновения.

Характеристики дома

Архитектурный стиль
Европейский
Автоматизированное регулирование параметров теплоносителя
Нет
Балконы/лоджии
Отсутствуют
Чердачное помещение
Нет
Датчики протечки воды
Нет
Эксплуатируемая или зеленая кровля
Нет
Электроснабжение
Индивидуальное
Газоснабжение
Индивидуальное
Изоляция воздушного шума
Нет
Камин
Нет
Класс энергоэффективности
-
Класс энергосбережения
-
Количество надземных этажей
2
Круглогодичное проживание
Да
Материал кровли
Металлические рулонные или листовые материалы
Материал перекрытий
Монолитные железобетонные
Материал внешних стен
Газобетонные блоки
Материал внутренних перегородок
Блочные
Модульное строительство с конструкциями заводского изготовления
Нет
Объем надземной части
688 м3
Основной материал фасадов
Штукатурка
Отопление
Индивидуальное
Площадь дома
118 м2
Площадь застройки
76 м2
Подвальное помещение
Нет
Показатель компактности здания
-
Приборы учета тепловой энергии
Нет
Пристроенный гараж/крытая автостоянка
Нет
Противопожарная система
Нет
Санузлы
2
Совмещенная кухня-гостиная
Да
Спальни
4
Терраса
Нет
Тип фундамента
Плитный
Тип кровли
Четырехскатная (вальмовая)
Толщина внешних стен
450 мм
Толщина внутренних перегородок
100 мм
Улучшенные шумовые характеристики
Нет
Вентиляция
2 варианта
Веранда
Нет
Водоотведение
Локальные очистные сооружения
Водоснабжение
Индивидуальное
Высота дома
9 м
Высота потолков
3.7 м

Планировка

Фасад дома

Александр

Закажите выезд инженера

Александр

Выездной инженер
Закажите выезд инженера для точной диагностики и профессиональной консультации по инженерным системам. Специалист приедет в удобное время, проведёт осмотр, рассчитает стоимость работ и подберёт оптимальные решения для вашего дома.


    Похожие проекты

    Ипотека и
    рассрочка
    ТЕН-1
    Стоимость от:
    8 277 280
    Проект от: 46 800
    Этажей 1
    Санузлы 1
    Спальни 3
    Смотреть
    Ипотека и
    рассрочка
    Загородный дом АС-202
    Стоимость от:
    20 183 900
    Проект от: 132 750
    Этажей 1
    Санузлы 2
    Спальни 2
    Смотреть
    Ипотека и
    рассрочка
    КСТ Д-19
    Стоимость от:
    7 590 220
    Проект от: 45 450
    Этажей 1
    Санузлы 2
    Спальни 3
    Смотреть
    Ипотека и
    рассрочка
    Одноэтажный каркасный дом с террасой «Коломна»
    Стоимость от:
    7 514 650
    Проект от: 58 500
    Этажей 1
    Санузлы 1
    Спальни 2
    Смотреть
    Ипотека и
    рассрочка
    Загородный дом «Джек»
    Стоимость от:
    6 840 460
    Проект от: 53 100
    Этажей 1
    Санузлы 1
    Спальни 2
    Смотреть
    Ипотека и
    рассрочка
    ССК Светлое поле
    Стоимость от:
    9 275 200
    Проект от: 72 000
    Этажей 1
    Санузлы 3
    Спальни 3
    Смотреть

    Как узнать стоимость дома

    back
    Оставляете заявку
    Вы заполняете форму на сайте или звоните нам. Менеджер Лайвкрафт связывается с вами для уточнения деталей: тип дома, площадь, материалы, участок строительства.
    back
    Консультация и подбор решения
    Наш специалист помогает выбрать оптимальный тип дома и конструкцию с учётом бюджета, сроков и целей — будь то дом для постоянного проживания или дача.
    back
    Расчёт предварительной стоимости
    Инженер делает первичный расчёт стоимости строительства по вашим параметрам: фундамент, коробка, кровля, отделка. Вы получаете смету с разбивкой по этапам.
    back
    Корректировка и утверждение сметы
    При необходимости вносим изменения — например, замену материалов или сокращение этапов. После согласования формируется окончательная фиксированная смета.
    back
    Заключение договора и старт работ
    После утверждения сметы заключаем официальный договор с гарантией. Вы получаете прозрачный график и точную стоимость — без скрытых расходов.

    Заказать конусльтацию по:Двухэтажный проект Визе 118

    Фото 1 Двухэтажный проект Визе 118


      Наши
      контакты

      Дмитров
      Опорный проезд 28Б
      (индустриальный парк Ниагара)
      9:00 до 18:00

      Корзина