4.9
Рейтинг на основании 120 отзывов
Дмитров
Опорный проезд 28Б
(индустриальный парк Ниагара)
Бренд "Дмитров-Дело" c 2008 года на рынке строительства в Дмитрове
Звоните 9:00 до 18:00 8 (915) 055-33-61
Бренд "Дмитров-Дело" c 2008 года на рынке строительства в Дмитрове

EFFECT LIGHT 59

Стоимость проекта от:
26 550 ₽
БЕСПЛАТНО! ПРИ ЗАКАЗЕ СТРОИТЕЛЬСТВА
Стоимость строительства от:
3 605 195 ₽
Артикул ART-3283
Дата 26.12.2025
Архитектурный стиль Европейский
Количество надземных этажей 1
Круглогодичное проживание Да
Площадь дома 59 м2
Санузлы 1
Спальни 2

Описание

**EFFECT LIGHT 59 – ваш новый дом, где встречаются комфорт и стиль.** Этот одноэтажный обитель в европейском стиле создана для тех, кто ценит простоту и практичность, но не хочет обижать привычки к современному дизайну. Плоская крыша и сэндвич‑панели с PIR‑изоляцией обеспечивают тепло и гаснут шума, гарантируя спокойствие вне зависимости от погоды. Вы сможете наслаждаться круглогодичным уютом, не беспокоясь о перепадах температуры: в зиму тепло снаружи, а летом помещение останется прохладным. Одноэтажность придаёт дому открытость и легкость, а отсутствие балконов и внутренних перегородок позволяет гибко организовать пространство под ваши потребности. **Лаконичность дизайна, практичность без излишеств.** Отсутствие прицепленного гаража, лестницы к чердачу или террасы освобождает внутреннее пространство от ненужных элементов, превращая его в чистую, свободную площадку для творчества и отдыха. Внутри вас ждёт светлый, открытый план, где каждая зона удобно сочетается с другими: кухня, гостиная и столовая – все они объединены в одно целое, делая ваш дом идеальным местом для совместных обедов, теплых вечеров с друзьями и семейных праздников. Минималистская отделка, высококачественные материалы и продуманные детали создают атмосферу, в которой хочется возвращаться. EFFECT LIGHT 59 – это не просто дом, а пространство для жизни, в котором каждый элемент был продуман до мелочей: от теплоизоляции до освещения, чтобы вы могли наслаждаться беззаботной жизнью в сердце европейского комфорта. Откройте для себя новый уровень уюта и стиля уже сегодня.

Характеристики дома

Архитектурный стиль
Автоматизированное регулирование параметров теплоносителя
-
Балконы/лоджии
Отсутствуют
Чердачное помещение
Нет
Датчики протечки воды
-
Эксплуатируемая или зеленая кровля
-
Электроснабжение
Не предусмотрено
Газоснабжение
Не предусмотрено
Изоляция воздушного шума
-
Камин
Нет
Класс энергоэффективности
-
Класс энергосбережения
-
Количество надземных этажей
1
Круглогодичное проживание
Да
Материал кровли
ПВХ мембраны
Материал перекрытий
Иной вид материалов перекрытий
Материал внешних стен
Материал внутренних перегородок
Гипсокартонные
Модульное строительство с конструкциями заводского изготовления
Нет
Объем надземной части
213 м3
Основной материал фасадов
Искусственный камень
Отопление
Не предусмотрено
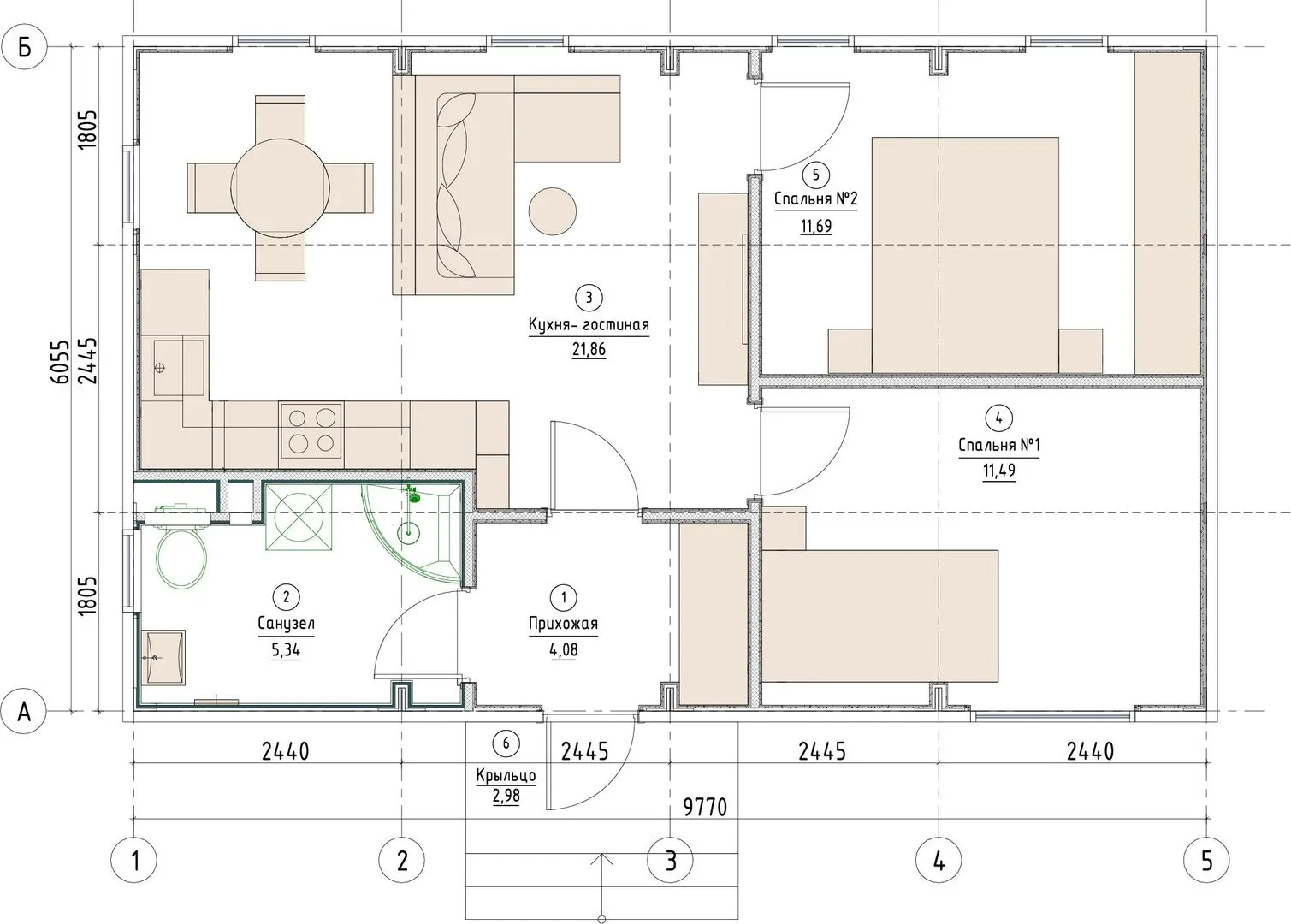
Площадь дома
59 м2
Площадь застройки
59 м2
Подвальное помещение
Нет
Показатель компактности здания
-
Приборы учета тепловой энергии
-
Пристроенный гараж/крытая автостоянка
Нет
Противопожарная система
Нет
Санузлы
1
Совмещенная кухня-гостиная
Да
Спальни
2
Терраса
Нет
Тип фундамента
Свайно-винтовой
Тип кровли
Толщина внешних стен
100 мм
Толщина внутренних перегородок
100 мм
Улучшенные шумовые характеристики
-
Вентиляция
Естественная
Веранда
Нет
Водоотведение
Не предусмотрено
Водоснабжение
Не предусмотрено
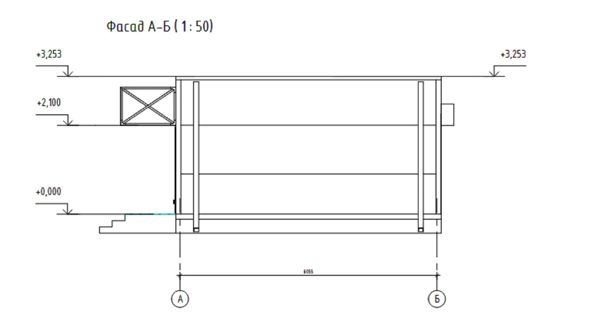
Высота дома
3.6 м
Высота потолков
2.85 м

Планировка

Фасад дома

Александр

Закажите выезд инженера

Александр

Выездной инженер
Закажите выезд инженера для точной диагностики и профессиональной консультации по инженерным системам. Специалист приедет в удобное время, проведёт осмотр, рассчитает стоимость работ и подберёт оптимальные решения для вашего дома.


    Похожие проекты

    Ипотека и
    рассрочка
    Уютный дом
    Стоимость от:
    8 277 280
    Проект от: 46 800
    Этажей 1
    Санузлы 1
    Спальни 3
    Смотреть
    Ипотека и
    рассрочка
    Карат 84
    Стоимость от:
    3 954 720
    Проект от: 25 200
    Этажей 1
    Санузлы 1
    Спальни 2
    Смотреть
    Ипотека и
    рассрочка
    Проект загородного дома NHD-169
    Стоимость от:
    5 789 740
    Проект от: 34 650
    Этажей 1
    Санузлы 1
    Спальни 2
    Смотреть
    Ипотека и
    рассрочка
    Одноэтажный кирпичный дом ТП-119
    Стоимость от:
    8 565 480
    Проект от: 51 300
    Этажей 1
    Санузлы 2
    Спальни 3
    Смотреть
    Ипотека и
    рассрочка
    Tipo Uno
    Стоимость от:
    7 526 200
    Проект от: 49 500
    Этажей 1
    Санузлы 2
    Спальни 3
    Смотреть
    Ипотека и
    рассрочка
    Трехэтажный EURO-200B c большим гаражом
    Стоимость от:
    14 972 100
    Проект от: 92 250
    Этажей 3
    Санузлы 2
    Спальни 4
    Смотреть

    Как узнать стоимость дома

    back
    Оставляете заявку
    Вы заполняете форму на сайте или звоните нам. Менеджер Лайвкрафт связывается с вами для уточнения деталей: тип дома, площадь, материалы, участок строительства.
    back
    Консультация и подбор решения
    Наш специалист помогает выбрать оптимальный тип дома и конструкцию с учётом бюджета, сроков и целей — будь то дом для постоянного проживания или дача.
    back
    Расчёт предварительной стоимости
    Инженер делает первичный расчёт стоимости строительства по вашим параметрам: фундамент, коробка, кровля, отделка. Вы получаете смету с разбивкой по этапам.
    back
    Корректировка и утверждение сметы
    При необходимости вносим изменения — например, замену материалов или сокращение этапов. После согласования формируется окончательная фиксированная смета.
    back
    Заключение договора и старт работ
    После утверждения сметы заключаем официальный договор с гарантией. Вы получаете прозрачный график и точную стоимость — без скрытых расходов.

    Заказать конусльтацию по:EFFECT LIGHT 59

    Фото 1 EFFECT LIGHT 59


      Наши
      контакты

      Дмитров
      Опорный проезд 28Б
      (индустриальный парк Ниагара)
      9:00 до 18:00

      Корзина