4.9
Рейтинг на основании 120 отзывов
Дмитров
Опорный проезд 28Б
(индустриальный парк Ниагара)
Бренд "Дмитров-Дело" c 2008 года на рынке строительства в Дмитрове
Звоните 9:00 до 18:00 8 (915) 055-33-61
Бренд "Дмитров-Дело" c 2008 года на рынке строительства в Дмитрове

ПС-96

Стоимость проекта от:
54 900 ₽
БЕСПЛАТНО! ПРИ ЗАКАЗЕ СТРОИТЕЛЬСТВА
Стоимость строительства от:
9 165 640 ₽
Артикул ART-15796
Дата 25.12.2025
Архитектурный стиль Классический
Количество надземных этажей 1
Круглогодичное проживание Да
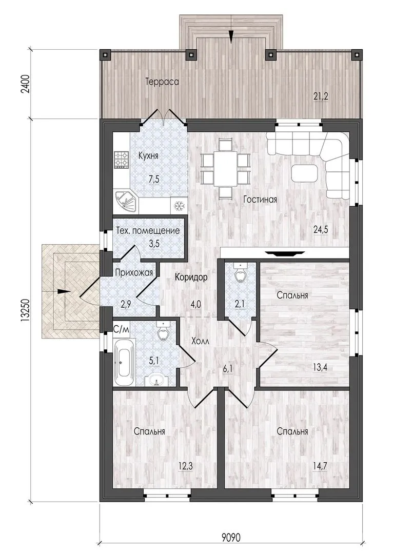
Площадь дома 122 м2
Санузлы 2
Спальни 3

Описание

Добро пожаловать в уютный уголок вашего будущего дома – модель PS‑96, где комфорт и простота встречаются воедино. Это одноэтажное жильё в классическом стиле, созданное для круглогодичного проживания, идеально подходит как для семей, так и для тех, кто ценит приватность. Его архитектура излучает тепло и элегантность: гладкая фасадная облицовка из газобетонных блоков, а величественная четырехскатная «вальмовая» крыша, напоминающая о традиционном русском доме, превращает его в настоящее произведение искусства. Внутреннее пространство PS‑96 продумано до мелочей: просторные комнаты, обилие естественного света и высокие потолки создают ощущение воздушности и простора. Тёплые, светлые оттенки стены и изящные декоративные элементы подчеркивают классический стиль, а продуманная планировка позволяет легко адаптировать жильё под любые потребности. Важным бонусом является отдельная терраса, где можно отдохнуть после долгого дня, наслаждаясь свежим воздухом и видом на заборную ограду. Необходимые удобства – крытая автостоянка и просторный гараж – отсутствуют, но простота и открытость фасада компенсированы удобством и доступностью. Таким образом, PS‑96 представляет собой идеальный баланс между традиционной роскошью и современной функциональностью. Это дом, который сразу же станет семейным очагом: уютным, безопасным и полностью готовым к любой поре. Не упустите шанс стать владельцем этого великолепного образца архитектурного совершенства – ваш новый дом уже ждет вас!

Характеристики дома

Архитектурный стиль
Автоматизированное регулирование параметров теплоносителя
Нет
Балконы/лоджии
Отсутствуют
Чердачное помещение
Нет
Датчики протечки воды
Нет
Эксплуатируемая или зеленая кровля
Нет
Электроснабжение
Центральное
Газоснабжение
Центральное
Изоляция воздушного шума
Нет
Камин
Нет
Класс энергоэффективности
-
Класс энергосбережения
-
Количество надземных этажей
1
Круглогодичное проживание
Да
Материал кровли
Металлочерепица
Материал перекрытий
Деревянные
Материал внешних стен
Материал внутренних перегородок
Кирпичные
Модульное строительство с конструкциями заводского изготовления
Нет
Объем надземной части
454 м3
Основной материал фасадов
Облицовочный кирпич
Отопление
Индивидуальное
Площадь дома
122 м2
Площадь застройки
142 м2
Подвальное помещение
Нет
Показатель компактности здания
-
Приборы учета тепловой энергии
Нет
Пристроенный гараж/крытая автостоянка
Нет
Противопожарная система
Нет
Санузлы
2
Совмещенная кухня-гостиная
Да
Спальни
3
Терраса
Да
Тип фундамента
Свайно-ростверковый
Толщина внешних стен
300 мм
Толщина внутренних перегородок
120 мм
Улучшенные шумовые характеристики
Нет
Вентиляция
Естественная
Веранда
Нет
Водоотведение
Локальные очистные сооружения
Водоснабжение
Индивидуальное
Высота дома
6.2 м
Высота потолков
3 м

Планировка

Фасад дома

Александр

Закажите выезд инженера

Александр

Выездной инженер
Закажите выезд инженера для точной диагностики и профессиональной консультации по инженерным системам. Специалист приедет в удобное время, проведёт осмотр, рассчитает стоимость работ и подберёт оптимальные решения для вашего дома.


    Похожие проекты

    Ипотека и
    рассрочка
    Мечта
    Стоимость от:
    9 487 440
    Проект от: 58 950
    Этажей 2
    Санузлы 2
    Спальни 3
    Смотреть
    Ипотека и
    рассрочка
    Барнхаус 62,29
    Стоимость от:
    3 716 280
    Проект от: 27 900
    Этажей 2
    Санузлы 1
    Спальни 1
    Смотреть
    Ипотека и
    рассрочка
    Basis
    Стоимость от:
    8 620 920
    Проект от: 56 700
    Этажей 1
    Санузлы 2
    Спальни 3
    Смотреть
    Ипотека и
    рассрочка
    ВС 166
    Стоимость от:
    11 943 600
    Проект от: 74 250
    Этажей 2
    Санузлы 2
    Спальни 5
    Смотреть
    Ипотека и
    рассрочка
    Дом из клееного бруса по проекту БД-103/1
    Стоимость от:
    6 283 530
    Проект от: 44 550
    Этажей 1
    Санузлы 2
    Спальни 3
    Смотреть
    Ипотека и
    рассрочка
    Тапио
    Стоимость от:
    12 528 000
    Проект от: 90 000
    Этажей 2
    Санузлы 2
    Спальни 3
    Смотреть

    Как узнать стоимость дома

    back
    Оставляете заявку
    Вы заполняете форму на сайте или звоните нам. Менеджер Лайвкрафт связывается с вами для уточнения деталей: тип дома, площадь, материалы, участок строительства.
    back
    Консультация и подбор решения
    Наш специалист помогает выбрать оптимальный тип дома и конструкцию с учётом бюджета, сроков и целей — будь то дом для постоянного проживания или дача.
    back
    Расчёт предварительной стоимости
    Инженер делает первичный расчёт стоимости строительства по вашим параметрам: фундамент, коробка, кровля, отделка. Вы получаете смету с разбивкой по этапам.
    back
    Корректировка и утверждение сметы
    При необходимости вносим изменения — например, замену материалов или сокращение этапов. После согласования формируется окончательная фиксированная смета.
    back
    Заключение договора и старт работ
    После утверждения сметы заключаем официальный договор с гарантией. Вы получаете прозрачный график и точную стоимость — без скрытых расходов.

    Заказать конусльтацию по:ПС-96

    Фото 1 ПС-96


      Наши
      контакты

      Дмитров
      Опорный проезд 28Б
      (индустриальный парк Ниагара)
      9:00 до 18:00

      Корзина