4.9
Рейтинг на основании 120 отзывов
Дмитров
Опорный проезд 28Б
(индустриальный парк Ниагара)
Бренд "Дмитров-Дело" c 2008 года на рынке строительства в Дмитрове
Звоните 9:00 до 18:00 8 (915) 055-33-61
Бренд "Дмитров-Дело" c 2008 года на рынке строительства в Дмитрове

Ефимоново

Стоимость проекта от:
35 550 ₽
БЕСПЛАТНО! ПРИ ЗАКАЗЕ СТРОИТЕЛЬСТВА
Стоимость строительства от:
5 144 480 ₽
Артикул ART-11433
Дата 25.12.2025
Архитектурный стиль Скандинавский
Количество надземных этажей 1
Круглогодичное проживание Да
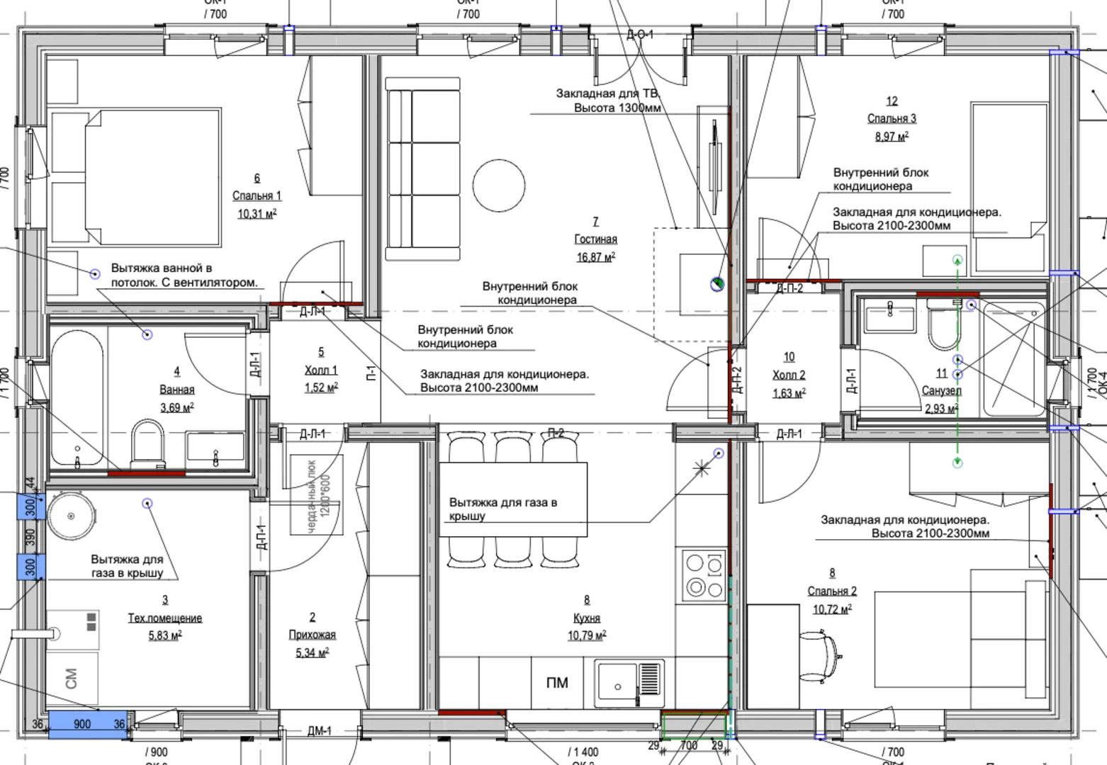
Площадь дома 79 м2
Санузлы 2
Спальни 3

Описание

Наряду с живописным расположением в Ефимоново, этот уникальный одноквартирный дом воплощает истинный дух скандинавского минимализма. Величественная деревянная каркасная конструкция создаёт ощущение лёгкости и природного уюта, а двускатная крыша подчёркивает простоту форм и строгую геометрию. Внутреннее пространство пропитано светом, благодаря большому количеству окон, что делает каждый день наполненным природным теплом и простором. Дом полностью готов к круглогодичному проживанию: изолированные стены, качественная теплоизоляция и современные стеклопакеты позволяют сохранять комфортное тепло в зимний холод и прохладу в летние жаркие дни. Уютный интерьер сочетает в себе теплоту дерева и лаконичный дизайн, а просторное чердачное помещение открывает возможности для творчества – будь то отдельная мастерская, гостевой кабинет или личная библиотека. Завершает образ эту роскошную открытую террасу, приглашая к проведению вечеров в компании друзей и семьи, а также к наслаждению видом на зелёные луга и горы. Дом в Ефимонове – это не просто жильё, а место, где каждый день начинает новую страницу вашего личного комфорта и благополучия.

Характеристики дома

Архитектурный стиль
Автоматизированное регулирование параметров теплоносителя
Нет
Балконы/лоджии
Отсутствуют
Чердачное помещение
Да
Датчики протечки воды
Нет
Эксплуатируемая или зеленая кровля
Нет
Электроснабжение
Не предусмотрено
Газоснабжение
Не предусмотрено
Изоляция воздушного шума
Да
Камин
Нет
Класс энергоэффективности
-
Класс энергосбережения
-
Количество надземных этажей
1
Круглогодичное проживание
Да
Материал кровли
Металлочерепица
Материал перекрытий
Деревянные
Материал внешних стен
Материал внутренних перегородок
Деревянные
Модульное строительство с конструкциями заводского изготовления
Нет
Объем надземной части
229 м3
Основной материал фасадов
Дерево
Отопление
Не предусмотрено
Площадь дома
79 м2
Площадь застройки
96 м2
Подвальное помещение
Нет
Показатель компактности здания
-
Приборы учета тепловой энергии
Нет
Пристроенный гараж/крытая автостоянка
Нет
Противопожарная система
Нет
Санузлы
2
Совмещенная кухня-гостиная
Нет
Спальни
3
Терраса
Да
Тип фундамента
Плитный
Тип кровли
Толщина внешних стен
336 мм
Толщина внутренних перегородок
274 мм
Улучшенные шумовые характеристики
Да
Вентиляция
Естественная
Веранда
Нет
Водоотведение
Не предусмотрено
Водоснабжение
Не предусмотрено
Высота дома
5.68 м
Высота потолков
2.7 м

Планировка

Фасад дома

Александр

Закажите выезд инженера

Александр

Выездной инженер
Закажите выезд инженера для точной диагностики и профессиональной консультации по инженерным системам. Специалист приедет в удобное время, проведёт осмотр, рассчитает стоимость работ и подберёт оптимальные решения для вашего дома.


    Похожие проекты

    Ипотека и
    рассрочка
    Дом ИЖС 70
    Стоимость от:
    4 943 400
    Проект от: 31 500
    Этажей 1
    Санузлы 1
    Спальни 3
    Смотреть
    Ипотека и
    рассрочка
    Дом из CLT «Энгельс»
    Стоимость от:
    463 980
    Проект от: 33 300
    Этажей 1
    Санузлы 1
    Спальни 2
    Смотреть
    Ипотека и
    рассрочка
    Двухэтажный дом с верхней террасой и большим гаражом S3-278 (Zx22)
    Стоимость от:
    28 807 680
    Проект от: 176 400
    Этажей 2
    Санузлы 5
    Спальни 5
    Смотреть
    Ипотека и
    рассрочка
    Перспективный Д1
    Стоимость от:
    7 530 720
    Проект от: 52 200
    Этажей 2
    Санузлы 1
    Спальни 2
    Смотреть
    Ипотека и
    рассрочка
    D100
    Стоимость от:
    7 290 140
    Проект от: 43 650
    Этажей 1
    Санузлы 2
    Спальни 3
    Смотреть
    Ипотека и
    рассрочка
    Каркасный дом ДК-74
    Стоимость от:
    4 573 140
    Проект от: 36 900
    Этажей 1
    Санузлы 1
    Спальни 2
    Смотреть

    Как узнать стоимость дома

    back
    Оставляете заявку
    Вы заполняете форму на сайте или звоните нам. Менеджер Лайвкрафт связывается с вами для уточнения деталей: тип дома, площадь, материалы, участок строительства.
    back
    Консультация и подбор решения
    Наш специалист помогает выбрать оптимальный тип дома и конструкцию с учётом бюджета, сроков и целей — будь то дом для постоянного проживания или дача.
    back
    Расчёт предварительной стоимости
    Инженер делает первичный расчёт стоимости строительства по вашим параметрам: фундамент, коробка, кровля, отделка. Вы получаете смету с разбивкой по этапам.
    back
    Корректировка и утверждение сметы
    При необходимости вносим изменения — например, замену материалов или сокращение этапов. После согласования формируется окончательная фиксированная смета.
    back
    Заключение договора и старт работ
    После утверждения сметы заключаем официальный договор с гарантией. Вы получаете прозрачный график и точную стоимость — без скрытых расходов.

    Заказать конусльтацию по:Ефимоново

    Фото 1 Ефимоново


      Наши
      контакты

      Дмитров
      Опорный проезд 28Б
      (индустриальный парк Ниагара)
      9:00 до 18:00

      Корзина