4.9
Рейтинг на основании 120 отзывов
Дмитров
Опорный проезд 28Б
(индустриальный парк Ниагара)
Бренд "Дмитров-Дело" c 2008 года на рынке строительства в Дмитрове
Звоните 9:00 до 18:00 8 (915) 055-33-61
Бренд "Дмитров-Дело" c 2008 года на рынке строительства в Дмитрове

Елена

Стоимость проекта от:
52 200 ₽
Стоимость строительства от:
8 191 920 ₽
Артикул ART-16101
Дата 25.12.2025
Архитектурный стиль Классический
Количество надземных этажей 1
Круглогодичное проживание Да
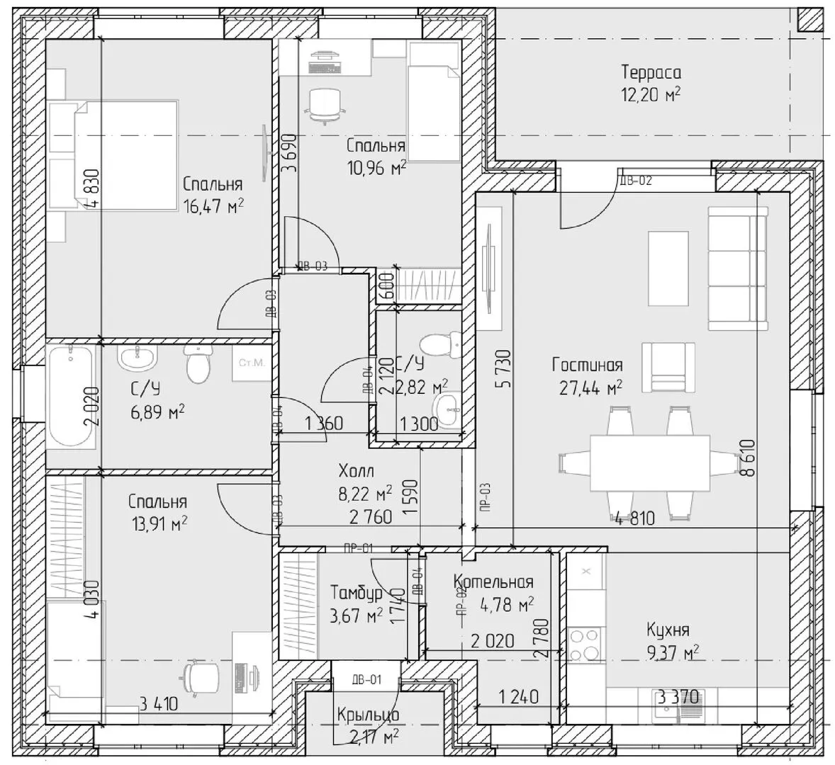
Площадь дома 116 м2
Санузлы 2
Спальни 3

Описание

Совершенно новый образ жизни под звёздным небом: уютное одноэтажное пристанище в классическом стиле, которое дарит комфорт круглый год. Знакомьтесь – дом, созданный специально для тех, кто ценит гармонию и надёжность. Его стены — крепкие, из керамзитобетонных блоков, а четырёхскатная (вальмовая) крыша подчёркивает элегантность и одновременно защищает от дождей и зимнего ветра. Здесь вы найдёте тёплую атмосферу, где каждая деталь продумана до мелочей: от изысканного внешнего облика до продуманного внутреннего пространства. Сразу после входа — просторный холл и свободное пространство, способное вписаться в самые разные стилистические решения. Вы будете поражены балконом и террасой, где каждый вечер можно наслаждаться рассветами и закатами без лишних забот. Даже чердачное помещение становится удобным дополнительным хранилищем – от сезонных вещей до маленьких мастерских. А отсутствие гаража и веранда не делают жильё менее практичным — на улице удобно устроить гостиную и зелёный уголок, а в доме всё предусмотрено для комфортного и удобного быта. Если вы мечтаете о месте, где каждая деталь напоминает о доме в уютном уголке, но при этом вы чувствуете себя в безопасном окружении, наш одноэтажный дом с классическим фасадом и крышей в традиционном стиле — идеальный выбор. Здесь каждый сможет обнять комфорт, без компромисов, а каждый день будет наполнен уютом и стилем. Приглашаем вас открыть двери к вашему новому дому!

Характеристики дома

Архитектурный стиль
Классический
Автоматизированное регулирование параметров теплоносителя
Да
Балконы/лоджии
Отсутствуют
Чердачное помещение
Да
Датчики протечки воды
Нет
Эксплуатируемая или зеленая кровля
Нет
Электроснабжение
Центральное
Газоснабжение
Не предусмотрено
Изоляция воздушного шума
Нет
Камин
Нет
Класс энергоэффективности
B
Класс энергосбережения
B
Количество надземных этажей
1
Круглогодичное проживание
Да
Материал кровли
Металлочерепица
Материал перекрытий
Деревянные
Материал внешних стен
Керамзитобетонные блоки
Материал внутренних перегородок
Блочные
Модульное строительство с конструкциями заводского изготовления
Нет
Объем надземной части
457 м3
Основной материал фасадов
Облицовочный кирпич
Отопление
Индивидуальное
Площадь дома
116 м2
Площадь застройки
150 м2
Подвальное помещение
Нет
Показатель компактности здания
1.34
Приборы учета тепловой энергии
Нет
Пристроенный гараж/крытая автостоянка
Нет
Противопожарная система
Нет
Санузлы
2
Совмещенная кухня-гостиная
Да
Спальни
3
Терраса
Да
Тип фундамента
Плитный
Тип кровли
Четырехскатная (вальмовая)
Толщина внешних стен
500 мм
Толщина внутренних перегородок
120 мм
Улучшенные шумовые характеристики
Да
Вентиляция
Естественная
Веранда
Нет
Водоотведение
Локальные очистные сооружения
Водоснабжение
Индивидуальное
Высота дома
6 м
Высота потолков
3.05 м

Планировка

Фасад дома

Александр

Закажите выезд инженера

Александр

Выездной инженер
Закажите выезд инженера для точной диагностики и профессиональной консультации по инженерным системам. Специалист приедет в удобное время, проведёт осмотр, рассчитает стоимость работ и подберёт оптимальные решения для вашего дома.


    Похожие проекты

    Ипотека и
    рассрочка
    K 2-101-1
    Стоимость от:
    7 093 920
    Проект от: 44 100
    Этажей 2
    Санузлы 2
    Спальни 3
    Смотреть
    Ипотека и
    рассрочка
    Одноэтажный дом по проекту «Анна»
    Стоимость от:
    8 474 400
    Проект от: 54 000
    Этажей 1
    Санузлы 1
    Спальни 3
    Смотреть
    Ипотека и
    рассрочка
    Двухэтажный дом OMEGA UP
    Стоимость от:
    17 345 520
    Проект от: 118 350
    Этажей 2
    Санузлы 3
    Спальни 4
    Смотреть
    Ипотека и
    рассрочка
    ТКБ-203
    Стоимость от:
    14 688 720
    Проект от: 91 350
    Этажей 2
    Санузлы 3
    Спальни 3
    Смотреть
    Ипотека и
    рассрочка
    Одноэтажный дом 85 кв.м., облицовка кирпич (85К)
    Стоимость от:
    6 581 300
    Проект от: 38 250
    Этажей 1
    Санузлы 1
    Спальни 3
    Смотреть
    Ипотека и
    рассрочка
    Одноэтажный с террасой ПР-33 Эстачи
    Стоимость от:
    9 015 600
    Проект от: 54 000
    Этажей 1
    Санузлы 2
    Спальни 3
    Смотреть

    Как узнать стоимость дома

    back
    Оставляете заявку
    Вы заполняете форму на сайте или звоните нам. Менеджер Лайвкрафт связывается с вами для уточнения деталей: тип дома, площадь, материалы, участок строительства.
    back
    Консультация и подбор решения
    Наш специалист помогает выбрать оптимальный тип дома и конструкцию с учётом бюджета, сроков и целей — будь то дом для постоянного проживания или дача.
    back
    Расчёт предварительной стоимости
    Инженер делает первичный расчёт стоимости строительства по вашим параметрам: фундамент, коробка, кровля, отделка. Вы получаете смету с разбивкой по этапам.
    back
    Корректировка и утверждение сметы
    При необходимости вносим изменения — например, замену материалов или сокращение этапов. После согласования формируется окончательная фиксированная смета.
    back
    Заключение договора и старт работ
    После утверждения сметы заключаем официальный договор с гарантией. Вы получаете прозрачный график и точную стоимость — без скрытых расходов.

    Заказать конусльтацию по:Елена

    Фото 1 Елена


      Наши
      контакты

      Дмитров
      Опорный проезд 28Б
      (индустриальный парк Ниагара)
      9:00 до 18:00