4.9
Рейтинг на основании 120 отзывов
Дмитров
Опорный проезд 28Б
(индустриальный парк Ниагара)
Бренд "Дмитров-Дело" c 2008 года на рынке строительства в Дмитрове
Звоните 9:00 до 18:00 8 (915) 055-33-61
Бренд "Дмитров-Дело" c 2008 года на рынке строительства в Дмитрове

Фазан-1/24

Стоимость проекта от:
59 400 ₽
БЕСПЛАТНО! ПРИ ЗАКАЗЕ СТРОИТЕЛЬСТВА
Стоимость строительства от:
9 321 840 ₽
Артикул ART-15444
Дата 25.12.2025
Архитектурный стиль Европейский
Количество надземных этажей 1
Круглогодичное проживание Да
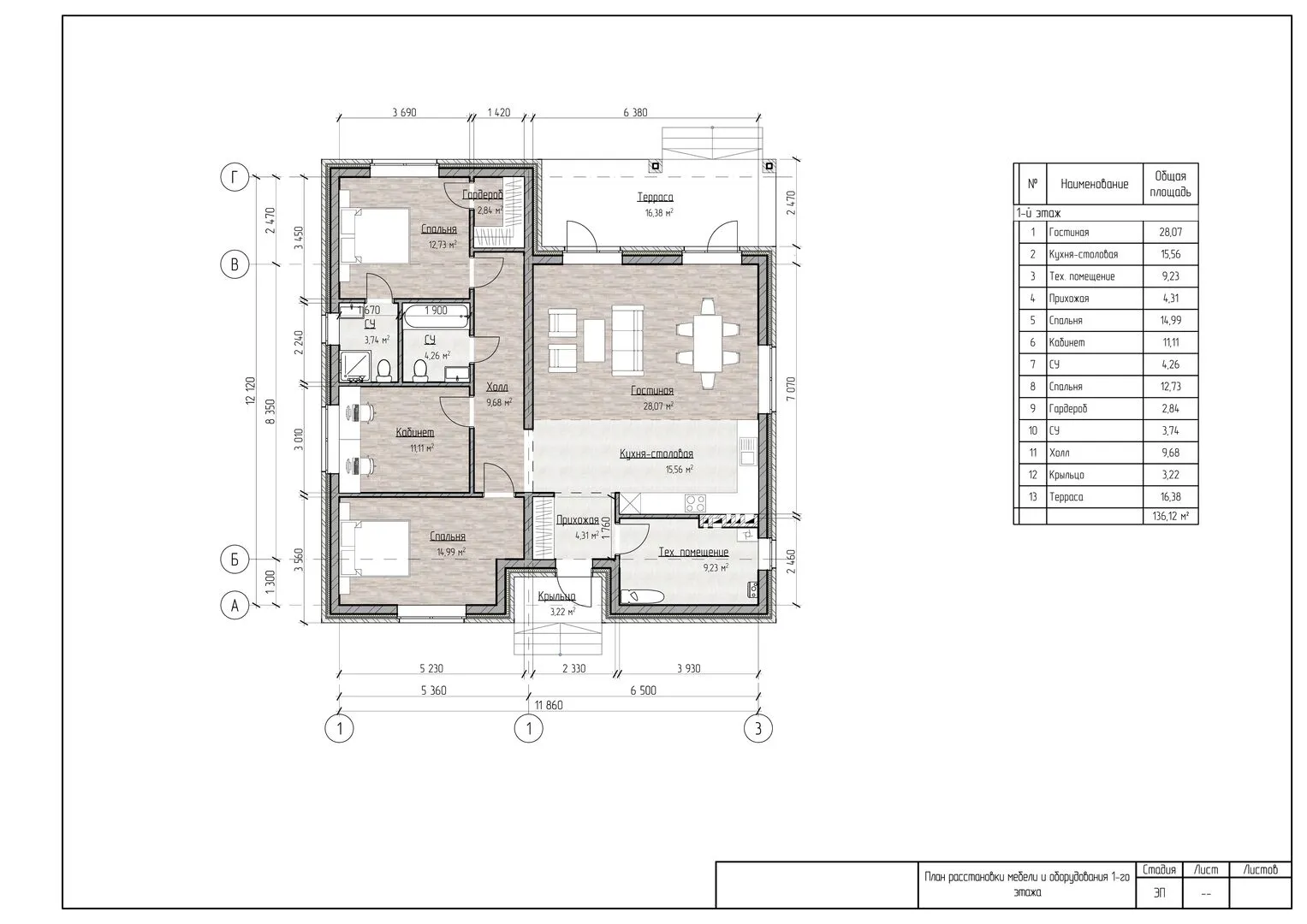
Площадь дома 132 м2
Санузлы 2
Спальни 3

Описание

Прекрасный дом «Фазан-1/24» – это воплощение европейского стиля в уютной 1‑этажной застройке, созданной для комфортной жизни круглый год. Его массивные керамические блоки придают фасаду стойкость и элегантность, а четырёхскатная (вальмовая) крыша подчеркивает строгость и гармонию линий. Внутри пространство обустроено так, чтобы каждая деталь напоминала о спокойствии и безмятежности европейских вилл: простые, но изысканные материалы, продуманный световой поток и естественная теплоизоляция. Дом располагает просторной террасой, которая станет вашим личным уголком отдыха: здесь можно устроить летний гриль, посадить цветы или просто наслаждаться видом на прилегающую зелёную территорию. Несмотря на отсутствие балконов и веранд, в каждой комнате ощущается свежий воздух, а естественное освещение создаёт ощущение открытого пространства. Просторные окна и качественная звукоизоляция обеспечивают уединённость и тишину внутри, делая этот дом идеальным для семейного проживания, где каждый найдет свою маленькую гавань. Если вы ищете место, где традиции гармонично переплетаются с современными удобствами, «Фазан-1/24» ждет вас. Это дом, где простота сочетается с элегантностью, а уют дарит чувство дома даже в самые холодные зимы. Приглашаем вас открыть для себя новое измерение комфорта и стиля!

Характеристики дома

Архитектурный стиль
Автоматизированное регулирование параметров теплоносителя
Нет
Балконы/лоджии
Отсутствуют
Чердачное помещение
Нет
Датчики протечки воды
Нет
Эксплуатируемая или зеленая кровля
Нет
Электроснабжение
Центральное
Газоснабжение
2 варианта
Изоляция воздушного шума
Нет
Камин
Нет
Класс энергоэффективности
-
Класс энергосбережения
-
Количество надземных этажей
1
Круглогодичное проживание
Да
Материал кровли
Металлочерепица
Материал перекрытий
Деревянные
Материал внешних стен
Материал внутренних перегородок
Кирпичные
Модульное строительство с конструкциями заводского изготовления
Нет
Объем надземной части
403 м3
Основной материал фасадов
Облицовочный кирпич
Отопление
Индивидуальное
Площадь дома
132 м2
Площадь застройки
168 м2
Подвальное помещение
Нет
Показатель компактности здания
-
Приборы учета тепловой энергии
Нет
Пристроенный гараж/крытая автостоянка
Нет
Противопожарная система
Нет
Санузлы
2
Совмещенная кухня-гостиная
Да
Спальни
3
Терраса
Да
Тип фундамента
Плитный
Толщина внешних стен
500 мм
Толщина внутренних перегородок
120 мм
Улучшенные шумовые характеристики
Нет
Вентиляция
Естественная
Веранда
Нет
Водоотведение
Локальные очистные сооружения
Водоснабжение
Индивидуальное
Высота дома
6.2 м
Высота потолков
3.05 м

Планировка

Фасад дома

Александр

Закажите выезд инженера

Александр

Выездной инженер
Закажите выезд инженера для точной диагностики и профессиональной консультации по инженерным системам. Специалист приедет в удобное время, проведёт осмотр, рассчитает стоимость работ и подберёт оптимальные решения для вашего дома.


    Похожие проекты

    Ипотека и
    рассрочка
    Одноэтажный дом ПР 1-110 Чистополь
    Стоимость от:
    8 190 380
    Проект от: 49 050
    Этажей 1
    Санузлы 2
    Спальни 3
    Смотреть
    Ипотека и
    рассрочка
    Фаворит 6х9 П2 с террасой
    Стоимость от:
    7 125 360
    Проект от: 53 550
    Этажей 2
    Санузлы 2
    Спальни 3
    Смотреть
    Ипотека и
    рассрочка
    Проект дома Барн 2
    Стоимость от:
    6 416 025
    Проект от: 47 250
    Этажей 1
    Санузлы 1
    Спальни 2
    Смотреть
    Ипотека и
    рассрочка
    2х этажный индивидуальный жилой дом № 10-09-16
    Стоимость от:
    7 898 160
    Проект от: 49 050
    Этажей 2
    Санузлы 3
    Спальни 4
    Смотреть
    Ипотека и
    рассрочка
    Спасское
    Стоимость от:
    6 363 060
    Проект от: 41 850
    Этажей 1
    Санузлы 2
    Спальни 3
    Смотреть
    Ипотека и
    рассрочка
    Амбарный дом 7х12,5м. Проект АКД — 3
    Стоимость от:
    4 294 290
    Проект от: 34 650
    Этажей 1
    Санузлы 1
    Спальни 2
    Смотреть

    Как узнать стоимость дома

    back
    Оставляете заявку
    Вы заполняете форму на сайте или звоните нам. Менеджер Лайвкрафт связывается с вами для уточнения деталей: тип дома, площадь, материалы, участок строительства.
    back
    Консультация и подбор решения
    Наш специалист помогает выбрать оптимальный тип дома и конструкцию с учётом бюджета, сроков и целей — будь то дом для постоянного проживания или дача.
    back
    Расчёт предварительной стоимости
    Инженер делает первичный расчёт стоимости строительства по вашим параметрам: фундамент, коробка, кровля, отделка. Вы получаете смету с разбивкой по этапам.
    back
    Корректировка и утверждение сметы
    При необходимости вносим изменения — например, замену материалов или сокращение этапов. После согласования формируется окончательная фиксированная смета.
    back
    Заключение договора и старт работ
    После утверждения сметы заключаем официальный договор с гарантией. Вы получаете прозрачный график и точную стоимость — без скрытых расходов.

    Заказать конусльтацию по:Фазан-1/24

    Фото 1 Фазан-1/24


      Наши
      контакты

      Дмитров
      Опорный проезд 28Б
      (индустриальный парк Ниагара)
      9:00 до 18:00

      Корзина