4.9
Рейтинг на основании 120 отзывов
Дмитров
Опорный проезд 28Б
(индустриальный парк Ниагара)
Бренд "Дмитров-Дело" c 2008 года на рынке строительства в Дмитрове
Звоните 9:00 до 18:00 8 (915) 055-33-61
Бренд "Дмитров-Дело" c 2008 года на рынке строительства в Дмитрове

Флэт 1

Стоимость проекта от:
31 950 ₽
БЕСПЛАТНО! ПРИ ЗАКАЗЕ СТРОИТЕЛЬСТВА
Стоимость строительства от:
4 857 820 ₽
Артикул ART-17420
Дата 26.12.2025
Архитектурный стиль Хайтек
Количество надземных этажей 1
Круглогодичное проживание Да
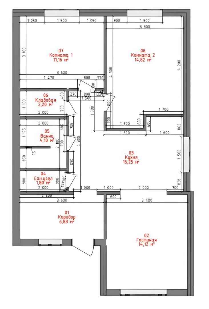
Площадь дома 71 м2
Санузлы 2
Спальни 2

Описание

Добро пожаловать в ваш будущий дом в сердце современного города. Этот уникальный одиннадцатый этажный объект, выполненный в стиле хай-тек, сочетает в себе строгую геометричность и креативный дизайн, придав ему свежий, почти футуристический вид. Прямо с первых глаз вы ощущаете чистоту линий и простоту форм: гладкие поверхности, смелые контуры, где каждая деталь обдумана до мелочей. Крыша надёжной плоской конструкции не только защищает, но и подчеркивает монолитную структуру из армированного железобетона, гарантируя долгий срок службы и высокий уровень тепло- и звукоизоляции. Внутренняя планировка создана с учетом вашего комфорта: открытая планировка, обилие естественного света и современная инженерная инфраструктура делают этот этаж идеальным для круглогодичного проживания. Хотя балконы и веранды отсутствуют, в просторной гостиной вы почувствуете лёгкость пространства, наполняющую уют и расслабление. Встроенные светильники и высококлассные материалы придают ощущение «домашнего» очага уже с первых мгновений. И, конечно же, отсутствие привязки к авто – это свобода для тех, кто ценит динамичные городской ритм и хочет быстро добраться до своей цели без лишних забот о парковке. Выбирая этот дом, вы делаете ставку на современность, безупречность и качество, которое сочетается с функциональностью. Здесь каждая система построена так, чтобы удовлетворить потребности современного человека, позволяя вам чувствовать себя уверенно и комфортно в любое время года. Присоединяйтесь к жизни в новом архитектурном центре, где стиль встречается с практичностью, а ваш стиль жизни находится в центре внимания.

Характеристики дома

Архитектурный стиль
Автоматизированное регулирование параметров теплоносителя
Нет
Балконы/лоджии
Отсутствуют
Чердачное помещение
Нет
Датчики протечки воды
Нет
Эксплуатируемая или зеленая кровля
Да
Электроснабжение
Центральное
Газоснабжение
Центральное
Изоляция воздушного шума
Нет
Камин
Нет
Класс энергоэффективности
-
Класс энергосбережения
-
Количество надземных этажей
1
Круглогодичное проживание
Да
Материал кровли
Рулонные битумные покрытия
Материал перекрытий
Монолитные железобетонные
Материал внешних стен
Материал внутренних перегородок
Блочные
Модульное строительство с конструкциями заводского изготовления
Нет
Объем надземной части
-
Основной материал фасадов
Штукатурка
Отопление
Индивидуальное
Площадь дома
71 м2
Площадь застройки
82 м2
Подвальное помещение
Нет
Показатель компактности здания
-
Приборы учета тепловой энергии
Нет
Пристроенный гараж/крытая автостоянка
Нет
Противопожарная система
Нет
Санузлы
2
Совмещенная кухня-гостиная
Да
Спальни
2
Терраса
Нет
Тип фундамента
Плитный
Тип кровли
Толщина внешних стен
270 мм
Толщина внутренних перегородок
100 мм
Улучшенные шумовые характеристики
Да
Вентиляция
Принудительная
Веранда
Нет
Водоотведение
Локальные очистные сооружения
Водоснабжение
Центральное
Высота дома
-
Высота потолков
2.95 м

Планировка

Фасад дома

Александр

Закажите выезд инженера

Александр

Выездной инженер
Закажите выезд инженера для точной диагностики и профессиональной консультации по инженерным системам. Специалист приедет в удобное время, проведёт осмотр, рассчитает стоимость работ и подберёт оптимальные решения для вашего дома.


    Похожие проекты

    Ипотека и
    рассрочка
    Вена-120-114
    Стоимость от:
    11 214 500
    Проект от: 65 250
    Этажей 1
    Санузлы 2
    Спальни 3
    Смотреть
    Ипотека и
    рассрочка
    Горный-59
    Стоимость от:
    8 860 560
    Проект от: 58 050
    Этажей 2
    Санузлы 2
    Спальни 5
    Смотреть
    Ипотека и
    рассрочка
    Жилой дом
    Стоимость от:
    6 433 350
    Проект от: 47 250
    Этажей 1
    Санузлы 2
    Спальни 3
    Смотреть
    Ипотека и
    рассрочка
    «Хейнс (К-1-15)»
    Стоимость от:
    1 673 100
    Проект от: 13 500
    Этажей 1
    Санузлы 1
    Спальни 1
    Смотреть
    Ипотека и
    рассрочка
    Радуга 100
    Стоимость от:
    6 293 815
    Проект от: 46 350
    Этажей 1
    Санузлы 2
    Спальни 2
    Смотреть
    Ипотека и
    рассрочка
    СЕРИЯ «КЛАССИКА» ПРОЕКТ КД-12
    Стоимость от:
    6 766 260
    Проект от: 50 850
    Этажей 2
    Санузлы 2
    Спальни 3
    Смотреть

    Как узнать стоимость дома

    back
    Оставляете заявку
    Вы заполняете форму на сайте или звоните нам. Менеджер Лайвкрафт связывается с вами для уточнения деталей: тип дома, площадь, материалы, участок строительства.
    back
    Консультация и подбор решения
    Наш специалист помогает выбрать оптимальный тип дома и конструкцию с учётом бюджета, сроков и целей — будь то дом для постоянного проживания или дача.
    back
    Расчёт предварительной стоимости
    Инженер делает первичный расчёт стоимости строительства по вашим параметрам: фундамент, коробка, кровля, отделка. Вы получаете смету с разбивкой по этапам.
    back
    Корректировка и утверждение сметы
    При необходимости вносим изменения — например, замену материалов или сокращение этапов. После согласования формируется окончательная фиксированная смета.
    back
    Заключение договора и старт работ
    После утверждения сметы заключаем официальный договор с гарантией. Вы получаете прозрачный график и точную стоимость — без скрытых расходов.

    Заказать конусльтацию по:Флэт 1

    Фото 1 Флэт 1


      Наши
      контакты

      Дмитров
      Опорный проезд 28Б
      (индустриальный парк Ниагара)
      9:00 до 18:00

      Корзина