4.9
Рейтинг на основании 120 отзывов
Дмитров
Опорный проезд 28Б
(индустриальный парк Ниагара)
Бренд "Дмитров-Дело" c 2008 года на рынке строительства в Дмитрове
Звоните 9:00 до 18:00 8 (915) 055-33-61
Бренд "Дмитров-Дело" c 2008 года на рынке строительства в Дмитрове

Микеа 5 Second Floor

Стоимость проекта от:
102 150 ₽
БЕСПЛАТНО! ПРИ ЗАКАЗЕ СТРОИТЕЛЬСТВА
Стоимость строительства от:
15 587 280 ₽
Артикул ART-14081
Дата 25.12.2025
Архитектурный стиль Скандинавский
Количество надземных этажей 2
Круглогодичное проживание Нет
Площадь дома 227 м2
Санузлы 2
Спальни 3

Описание

**Микеа 5 Second Floor** – это уютная, скандинавская жемчужина, расположенная в тихом уголке, где природа и комфорт встречаются воедино. Стены дома из прочного кирпича создают ощущение крепости и тепла, а два надземных этажа предлагают простор и умиротворение, идеально подходящее для тех, кто ищет уединённый уголок круглый год без лишних забот. Внутреннее пространство завораживает чистыми, светлыми линиями и продуманными деталями. Гостиная открывается на просторную кухню с современной техникой, а открытый план позволяет не терять связь с окружающим миром. Широкие окна пропускают естественный свет, подчёркивая скандинавскую эстетическую простоту, а мягкое тепло кирпичных стен создает атмосферу уюта, в которой легко забыть о суете. Среди главных достоинств – открытая терраса, где можно провести уютные вечера под звёздами, наслаждаясь свежим воздухом и видом на окрестки. Несмотря на отсутствие гаража, компактные автостоянки вблизи гарантируют безопасную парковку. Это дом, который предлагает не только пространство, но и ощущение гармонии между архитектурой, природой и жизнью.

Характеристики дома

Архитектурный стиль
Автоматизированное регулирование параметров теплоносителя
Нет
Балконы/лоджии
Отсутствуют
Чердачное помещение
Нет
Датчики протечки воды
Нет
Эксплуатируемая или зеленая кровля
Нет
Электроснабжение
Центральное
Газоснабжение
Не предусмотрено
Изоляция воздушного шума
Нет
Камин
Нет
Класс энергоэффективности
-
Класс энергосбережения
-
Количество надземных этажей
2
Круглогодичное проживание
Нет
Материал кровли
Фальцевая кровля кровля из оцинкованных стальных листов
Материал перекрытий
Иной вид материалов перекрытий
Материал внешних стен
Материал внутренних перегородок
Кирпичные
Модульное строительство с конструкциями заводского изготовления
Нет
Объем надземной части
765 м3
Основной материал фасадов
Штукатурка
Отопление
Не предусмотрено
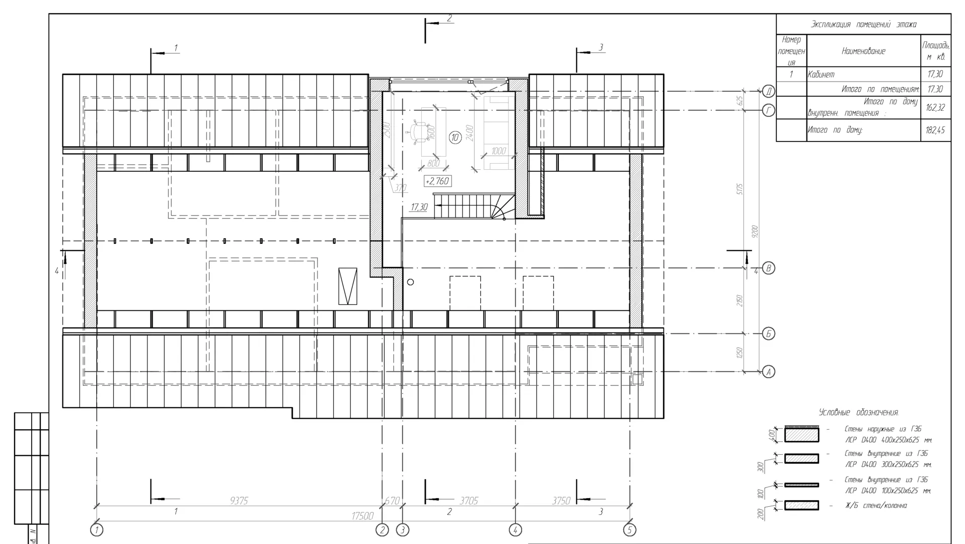
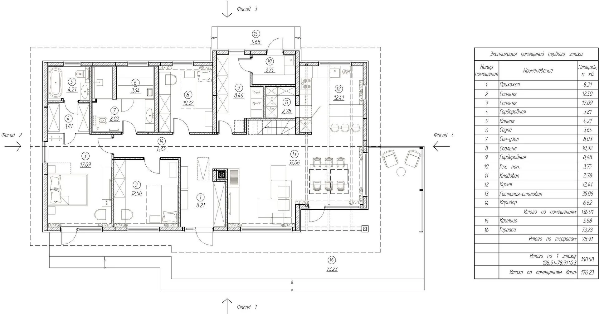
Площадь дома
227 м2
Площадь застройки
263 м2
Подвальное помещение
Нет
Показатель компактности здания
-
Приборы учета тепловой энергии
Нет
Пристроенный гараж/крытая автостоянка
Нет
Противопожарная система
Нет
Санузлы
2
Совмещенная кухня-гостиная
Да
Спальни
3
Терраса
Да
Тип фундамента
Плитный
Тип кровли
Толщина внешних стен
250 мм
Толщина внутренних перегородок
120 мм
Улучшенные шумовые характеристики
Нет
Вентиляция
Естественная
Веранда
Нет
Водоотведение
Центральное
Водоснабжение
Не предусмотрено
Высота дома
5.6 м
Высота потолков
2.9 м

Планировка

Фасад дома

Александр

Закажите выезд инженера

Александр

Выездной инженер
Закажите выезд инженера для точной диагностики и профессиональной консультации по инженерным системам. Специалист приедет в удобное время, проведёт осмотр, рассчитает стоимость работ и подберёт оптимальные решения для вашего дома.


    Похожие проекты

    Ипотека и
    рассрочка
    Загородный дом «Масалитин»
    Стоимость от:
    7 586 480
    Проект от: 46 800
    Этажей 1
    Санузлы 2
    Спальни 2
    Смотреть
    Ипотека и
    рассрочка
    Модульный дом 72 м2 с террасой 18 м
    Стоимость от:
    4 003 560
    Проект от: 32 400
    Этажей 1
    Санузлы 1
    Спальни 3
    Смотреть
    Ипотека и
    рассрочка
    Проект ГБ-134
    Стоимость от:
    9 168 280
    Проект от: 60 300
    Этажей 1
    Санузлы 1
    Спальни 3
    Смотреть
    Ипотека и
    рассрочка
    ДОМ №2
    Стоимость от:
    17 186 400
    Проект от: 103 500
    Этажей 2
    Санузлы 1
    Спальни 3
    Смотреть
    Ипотека и
    рассрочка
    Дом из бруса с мансардой БД-47
    Стоимость от:
    11 653 200
    Проект от: 81 000
    Этажей 2
    Санузлы 1
    Спальни 3
    Смотреть
    Ипотека и
    рассрочка
    «Париж в облицовочном кирпиче»
    Стоимость от:
    9 165 640
    Проект от: 54 900
    Этажей 1
    Санузлы 3
    Спальни 3
    Смотреть

    Как узнать стоимость дома

    back
    Оставляете заявку
    Вы заполняете форму на сайте или звоните нам. Менеджер Лайвкрафт связывается с вами для уточнения деталей: тип дома, площадь, материалы, участок строительства.
    back
    Консультация и подбор решения
    Наш специалист помогает выбрать оптимальный тип дома и конструкцию с учётом бюджета, сроков и целей — будь то дом для постоянного проживания или дача.
    back
    Расчёт предварительной стоимости
    Инженер делает первичный расчёт стоимости строительства по вашим параметрам: фундамент, коробка, кровля, отделка. Вы получаете смету с разбивкой по этапам.
    back
    Корректировка и утверждение сметы
    При необходимости вносим изменения — например, замену материалов или сокращение этапов. После согласования формируется окончательная фиксированная смета.
    back
    Заключение договора и старт работ
    После утверждения сметы заключаем официальный договор с гарантией. Вы получаете прозрачный график и точную стоимость — без скрытых расходов.

    Заказать конусльтацию по:Микеа 5 Second Floor

    Фото 1 Микеа 5 Second Floor


      Наши
      контакты

      Дмитров
      Опорный проезд 28Б
      (индустриальный парк Ниагара)
      9:00 до 18:00

      Корзина