4.9
Рейтинг на основании 120 отзывов
Дмитров
Опорный проезд 28Б
(индустриальный парк Ниагара)
Бренд "Дмитров-Дело" c 2008 года на рынке строительства в Дмитрове
Звоните 9:00 до 18:00 8 (915) 055-33-61
Бренд "Дмитров-Дело" c 2008 года на рынке строительства в Дмитрове

ФРОСТ

Стоимость проекта от:
92 700 ₽
БЕСПЛАТНО! ПРИ ЗАКАЗЕ СТРОИТЕЛЬСТВА
Стоимость строительства от:
14 895 840 ₽
Артикул ART-16606
Дата 26.12.2025
Архитектурный стиль Скандинавский
Количество надземных этажей 2
Круглогодичное проживание Да
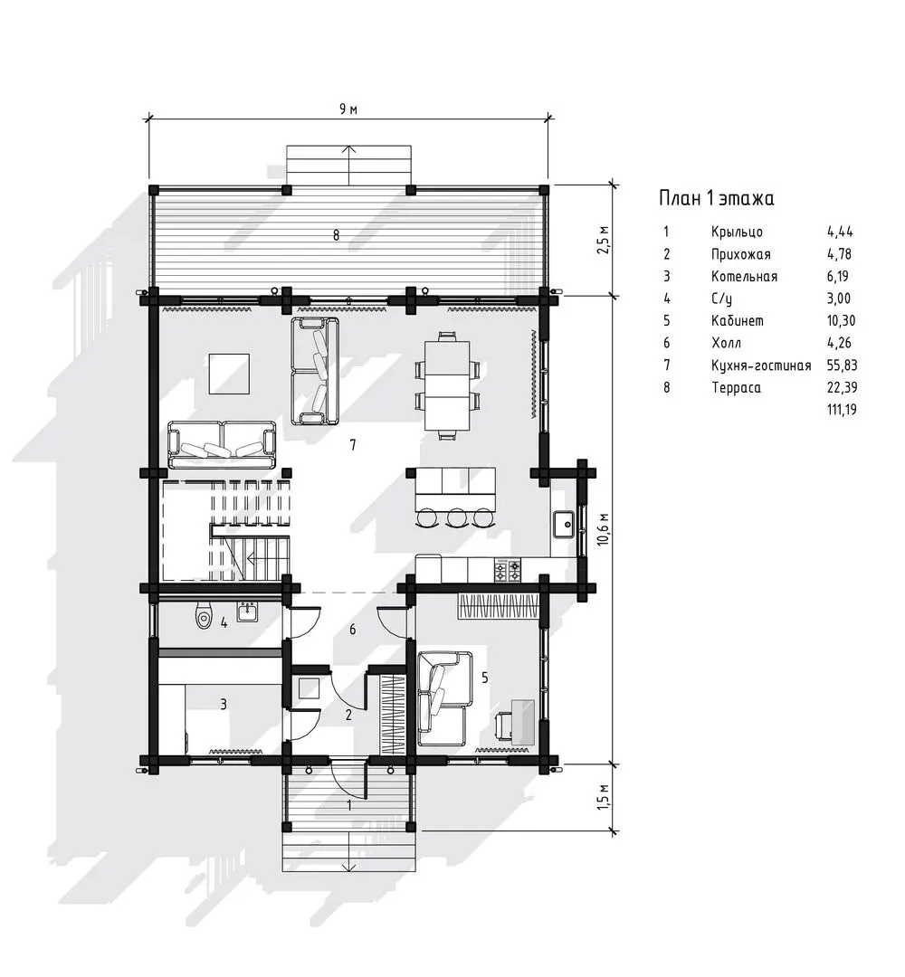
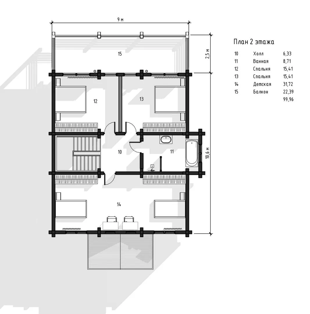
Площадь дома 206 м2
Санузлы 1
Спальни 2

Описание

**ФРОСТ** – это уютный скандинавский уголок, где гармония простоты встречается с практичностью. Дом, состоящий из двух надземных этажей, идеально подходит для круглогодичного проживания: тепло сохраняется благодаря клеёному бруссу, а просторные окна пропускают свет, создавая ощущение свежести даже в самые тёплые и холодные месяцы. Архитектурный стиль подчёркивает ясность линий и функциональность – каждый уголок продуман до мелочей, чтобы ваш дом служил не только убежищем, но и вдохновением жить в гармонии с природой. Особое внимание уделено удобству. На первом уровне располагается единственный, но при этом очень комфортный балкон, позволяющий наслаждаться рассветами и закатами, при этом снаружи открыты просторные террасы – идеальное место для летних барбекю или тихого утра с чашечкой кофе. Отсутствие прицепного гаража и чердачного помещения позволяет более эффективно использовать площадь, а двойная скатная крыша обеспечивает надёжную защиту от осадков и придаёт фасаду изящность и современность. **ФРОСТ** – это не просто дом, а обещание спокойствия и уюта. Если вы ищете место, где каждая деталь говорит о комфорте, элегантности и безупречной работе материалов, то этот скандинавский шедевр станет идеальным выбором. Пусть ваш новый дом станет источником радости и вдохновения на многих лет.

Характеристики дома

Архитектурный стиль
Автоматизированное регулирование параметров теплоносителя
Нет
Балконы/лоджии
1
Чердачное помещение
Нет
Датчики протечки воды
Нет
Эксплуатируемая или зеленая кровля
Нет
Электроснабжение
Индивидуальное
Газоснабжение
Индивидуальное
Изоляция воздушного шума
Нет
Камин
Нет
Класс энергоэффективности
-
Класс энергосбережения
-
Количество надземных этажей
2
Круглогодичное проживание
Да
Материал кровли
Металлочерепица
Материал перекрытий
Монолитные железобетонные
Материал внешних стен
Материал внутренних перегородок
Деревянные
Модульное строительство с конструкциями заводского изготовления
Нет
Объем надземной части
1060 м3
Основной материал фасадов
Дерево
Отопление
Индивидуальное
Площадь дома
206 м2
Площадь застройки
240 м2
Подвальное помещение
Нет
Показатель компактности здания
-
Приборы учета тепловой энергии
Нет
Пристроенный гараж/крытая автостоянка
Нет
Противопожарная система
Нет
Санузлы
1
Совмещенная кухня-гостиная
Да
Спальни
2
Терраса
Да
Тип фундамента
Свайно-ростверковый
Тип кровли
Толщина внешних стен
200 мм
Толщина внутренних перегородок
200 мм
Улучшенные шумовые характеристики
Нет
Вентиляция
Естественная
Веранда
Нет
Водоотведение
Локальные очистные сооружения
Водоснабжение
Индивидуальное
Высота дома
7.8 м
Высота потолков
4 м

Планировка

Фасад дома

Александр

Закажите выезд инженера

Александр

Выездной инженер
Закажите выезд инженера для точной диагностики и профессиональной консультации по инженерным системам. Специалист приедет в удобное время, проведёт осмотр, рассчитает стоимость работ и подберёт оптимальные решения для вашего дома.


    Похожие проекты

    Ипотека и
    рассрочка
    Одноэтажный дом Fixplans — 1790
    Стоимость от:
    9 129 560
    Проект от: 53 100
    Этажей 1
    Санузлы 2
    Спальни 3
    Смотреть
    Ипотека и
    рассрочка
    Посёлок Европейский-2 дом Ричард М
    Стоимость от:
    10 499 280
    Проект от: 64 800
    Этажей 1
    Санузлы 3
    Спальни 4
    Смотреть
    Ипотека и
    рассрочка
    Иваново
    Стоимость от:
    7 792 200
    Проект от: 58 500
    Этажей 2
    Санузлы 2
    Спальни 3
    Смотреть
    Ипотека и
    рассрочка
    Дом каркасный «Лето» одноэтажный
    Стоимость от:
    5 130 840
    Проект от: 41 400
    Этажей 1
    Санузлы 2
    Спальни 3
    Смотреть
    Ипотека и
    рассрочка
    Космос
    Стоимость от:
    4 584 240
    Проект от: 27 450
    Этажей 2
    Санузлы 2
    Спальни 2
    Смотреть
    Ипотека и
    рассрочка
    Двухэтажный дом «Романс»
    Стоимость от:
    10 573 200
    Проект от: 81 000
    Этажей 2
    Санузлы 2
    Спальни 4
    Смотреть

    Как узнать стоимость дома

    back
    Оставляете заявку
    Вы заполняете форму на сайте или звоните нам. Менеджер Лайвкрафт связывается с вами для уточнения деталей: тип дома, площадь, материалы, участок строительства.
    back
    Консультация и подбор решения
    Наш специалист помогает выбрать оптимальный тип дома и конструкцию с учётом бюджета, сроков и целей — будь то дом для постоянного проживания или дача.
    back
    Расчёт предварительной стоимости
    Инженер делает первичный расчёт стоимости строительства по вашим параметрам: фундамент, коробка, кровля, отделка. Вы получаете смету с разбивкой по этапам.
    back
    Корректировка и утверждение сметы
    При необходимости вносим изменения — например, замену материалов или сокращение этапов. После согласования формируется окончательная фиксированная смета.
    back
    Заключение договора и старт работ
    После утверждения сметы заключаем официальный договор с гарантией. Вы получаете прозрачный график и точную стоимость — без скрытых расходов.

    Заказать конусльтацию по:ФРОСТ

    Фото 1 ФРОСТ


      Наши
      контакты

      Дмитров
      Опорный проезд 28Б
      (индустриальный парк Ниагара)
      9:00 до 18:00

      Корзина