4.9
Рейтинг на основании 120 отзывов
Дмитров
Опорный проезд 28Б
(индустриальный парк Ниагара)
Бренд "Дмитров-Дело" c 2008 года на рынке строительства в Дмитрове
Звоните 9:00 до 18:00 8 (915) 055-33-61
Бренд "Дмитров-Дело" c 2008 года на рынке строительства в Дмитрове

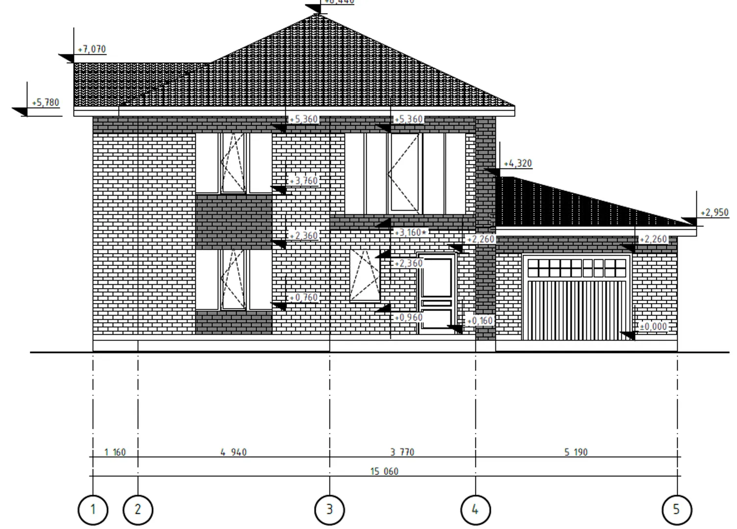
Газобетонный дом с гаражом «Беркли» [к 164]

Стоимость проекта от:
75 150 ₽
БЕСПЛАТНО! ПРИ ЗАКАЗЕ СТРОИТЕЛЬСТВА
Стоимость строительства от:
11 670 480 ₽
Артикул ART-13869
Дата 25.12.2025
Архитектурный стиль Европейский
Количество надземных этажей 2
Круглогодичное проживание Да
Площадь дома 167 м2
Санузлы 2
Спальни 4

Описание

Ощутите элегантность европейского дизайна в каждом уголке вашего будущего дома. «Беркли» – это 2‑этажный дом на газобетонных блоках, где каждый сантиметр продуман: вольная площадь с двумя целыми этажами, чердачное помещение, которое можно превратить в уютный кабинет или игровой уголок. Круглогодичное проживание подтверждает высокие инженерные решения: теплоизоляция газобетона, качественная оконная конструкция и четырехскатная (вальмовая) крыша, защищающая от ветров и снегов. Удобный прицепной гараж и крытая автостоянка обеспечивают сохранность вашего автомобиля даже в самый суровый сезон. Балкон с видом на ухоженный пейзаж становится вашим личным оазисом отдыха после долгого дня, а отсутствие веранд и террас позволяет сконцентрировать усилия на внутреннем интерьере, создавая безупречную гармонию стиля и функциональности. Это место, где архитектурный подход к дому сочетается с комфортом и практичностью, делая каждую минуту вашего пребывания здесь особенной.

Характеристики дома

Архитектурный стиль
Автоматизированное регулирование параметров теплоносителя
Да
Балконы/лоджии
1
Чердачное помещение
Да
Датчики протечки воды
Нет
Эксплуатируемая или зеленая кровля
Нет
Электроснабжение
Центральное
Газоснабжение
Центральное
Изоляция воздушного шума
Да
Камин
Нет
Класс энергоэффективности
B
Класс энергосбережения
A
Количество надземных этажей
2
Круглогодичное проживание
Да
Материал кровли
Металлочерепица
Материал перекрытий
Сборно-монолитные железобетонные по металлическим балкам
Материал внешних стен
Материал внутренних перегородок
Кирпичные
Модульное строительство с конструкциями заводского изготовления
Нет
Объем надземной части
1243 м3
Основной материал фасадов
Облицовочный кирпич
Отопление
Индивидуальное
Площадь дома
167 м2
Площадь застройки
141 м2
Подвальное помещение
Нет
Показатель компактности здания
0.82
Приборы учета тепловой энергии
Да
Пристроенный гараж/крытая автостоянка
Да
Противопожарная система
Нет
Санузлы
2
Совмещенная кухня-гостиная
Да
Спальни
4
Терраса
Нет
Тип фундамента
Плитный
Толщина внешних стен
510 мм
Толщина внутренних перегородок
100 мм
Улучшенные шумовые характеристики
Да
Вентиляция
Естественная
Веранда
Нет
Водоотведение
Локальные очистные сооружения
Водоснабжение
Индивидуальное
Высота дома
8.4 м
Высота потолков
2.8 м

Планировка

Фасад дома

Александр

Закажите выезд инженера

Александр

Выездной инженер
Закажите выезд инженера для точной диагностики и профессиональной консультации по инженерным системам. Специалист приедет в удобное время, проведёт осмотр, рассчитает стоимость работ и подберёт оптимальные решения для вашего дома.


    Похожие проекты

    Ипотека и
    рассрочка
    Каркасный зимний дом К 216 «комплектация Зима+»
    Стоимость от:
    11 988 000
    Проект от: 90 000
    Этажей 2
    Санузлы 2
    Спальни 4
    Смотреть
    Ипотека и
    рассрочка
    Двухэтажное Шале 150
    Стоимость от:
    10 670 400
    Проект от: 67 500
    Этажей 2
    Санузлы 3
    Спальни 3
    Смотреть
    Ипотека и
    рассрочка
    Одноэтажный дом Акира 83 в.1
    Стоимость от:
    5 861 460
    Проект от: 37 350
    Этажей 1
    Санузлы 1
    Спальни 2
    Смотреть
    Ипотека и
    рассрочка
    Одноэтажный дом КД-72
    Стоимость от:
    4 927 450
    Проект от: 38 250
    Этажей 1
    Санузлы 1
    Спальни 3
    Смотреть
    Ипотека и
    рассрочка
    Загородный дом АС-272-1
    Стоимость от:
    22 907 520
    Проект от: 147 600
    Этажей 2
    Санузлы 3
    Спальни 4
    Смотреть
    Ипотека и
    рассрочка
    Загородный коттедж №213
    Стоимость от:
    18 514 800
    Проект от: 119 250
    Этажей 2
    Санузлы 3
    Спальни 5
    Смотреть

    Как узнать стоимость дома

    back
    Оставляете заявку
    Вы заполняете форму на сайте или звоните нам. Менеджер Лайвкрафт связывается с вами для уточнения деталей: тип дома, площадь, материалы, участок строительства.
    back
    Консультация и подбор решения
    Наш специалист помогает выбрать оптимальный тип дома и конструкцию с учётом бюджета, сроков и целей — будь то дом для постоянного проживания или дача.
    back
    Расчёт предварительной стоимости
    Инженер делает первичный расчёт стоимости строительства по вашим параметрам: фундамент, коробка, кровля, отделка. Вы получаете смету с разбивкой по этапам.
    back
    Корректировка и утверждение сметы
    При необходимости вносим изменения — например, замену материалов или сокращение этапов. После согласования формируется окончательная фиксированная смета.
    back
    Заключение договора и старт работ
    После утверждения сметы заключаем официальный договор с гарантией. Вы получаете прозрачный график и точную стоимость — без скрытых расходов.

    Заказать конусльтацию по:Газобетонный дом с гаражом «Беркли» [к 164]

    Фото 1 Газобетонный дом с гаражом «Беркли» [к 164]


      Наши
      контакты

      Дмитров
      Опорный проезд 28Б
      (индустриальный парк Ниагара)
      9:00 до 18:00

      Корзина