4.9
Рейтинг на основании 120 отзывов
Дмитров
Опорный проезд 28Б
(индустриальный парк Ниагара)
Бренд "Дмитров-Дело" c 2008 года на рынке строительства в Дмитрове
Звоните 9:00 до 18:00 8 (915) 055-33-61
Бренд "Дмитров-Дело" c 2008 года на рынке строительства в Дмитрове

J-71-G

Стоимость проекта от:
32 400 ₽
БЕСПЛАТНО! ПРИ ЗАКАЗЕ СТРОИТЕЛЬСТВА
Стоимость строительства от:
4 942 080 ₽
Артикул ART-6547
Дата 26.12.2025
Архитектурный стиль Хайтек
Количество надземных этажей 2
Круглогодичное проживание Да
Площадь дома 72 м2
Санузлы 1
Спальни 1

Описание

**J‑71‑G – ваш новый уютный уголок в стиле Hi‑Tech** Погрузитесь в атмосферу современного комфорта, где каждая деталь продумана для вашего удобства. Дом J‑71‑G сочетает в себе строгую простоту хай‑тек архитектуры с практичностью и эстетикой. Двухэтажный корпус, построенный из газобетонных блоков, обеспечивает теплоизоляцию и долговечность, а плоская крыша придает элегантный профиль, подчёркивая лаконичность линии фасада. Внутри вас ждёт простор и свет, а отсутствие балконов и веранд не мешает вам наслаждаться свежим воздухом – уютную террасу с панорамой можно распахнуть от пола до потолка, создавая идеальное место для отдыха и развлечений. Годовое проживание в такой обстановке становится реальностью: светлые, открытые план квартиры, функциональная планировка и высококачественные материалы создают атмосферу домашнего уюта. Просторные комнаты позволяют организовать работу, отдых и развлечения без компромиссов. Высокий потолок, просторные двери и аккуратные перегородки дают возможность смело экспериментировать с декором, создавая неповторимый стиль вашего дома. В J‑71‑G вы не просто покупаете жильё – вы инвестируете в качество жизни. Круглогодичные условия, отсутствие загородных шумов и близость к инфраструктуре делают этот дом идеальным выбором для тех, кто ценит сочетание современности, функциональности и комфорта. Позвольте себе жить в стиле Hi‑Tech и почувствуйте, как пространство становится вашим проводником к новым вершинам счастья.

Характеристики дома

Архитектурный стиль
Автоматизированное регулирование параметров теплоносителя
Да
Балконы/лоджии
Отсутствуют
Чердачное помещение
Нет
Датчики протечки воды
Да
Эксплуатируемая или зеленая кровля
Нет
Электроснабжение
2 варианта
Газоснабжение
2 варианта
Изоляция воздушного шума
Да
Камин
Нет
Класс энергоэффективности
-
Класс энергосбережения
-
Количество надземных этажей
2
Круглогодичное проживание
Да
Материал кровли
Рулонные битумные покрытия
Материал перекрытий
Монолитные железобетонные
Материал внешних стен
Материал внутренних перегородок
Блочные
Модульное строительство с конструкциями заводского изготовления
Нет
Объем надземной части
-
Основной материал фасадов
Штукатурка
Отопление
2 варианта
Площадь дома
72 м2
Площадь застройки
52 м2
Подвальное помещение
Да
Показатель компактности здания
-
Приборы учета тепловой энергии
Да
Пристроенный гараж/крытая автостоянка
Нет
Противопожарная система
Нет
Санузлы
1
Совмещенная кухня-гостиная
Да
Спальни
1
Терраса
Да
Тип фундамента
Плитный
Тип кровли
Толщина внешних стен
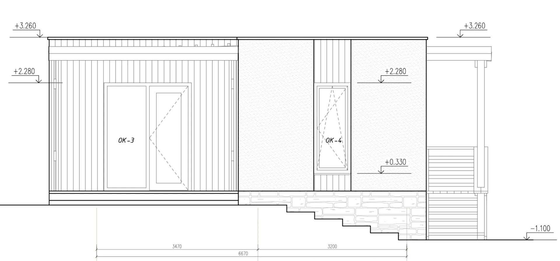
300 мм
Толщина внутренних перегородок
150 мм
Улучшенные шумовые характеристики
Да
Вентиляция
2 варианта
Веранда
Нет
Водоотведение
2 варианта
Водоснабжение
2 варианта
Высота дома
3.26 м
Высота потолков
2.58 м

Планировка

Фасад дома

Александр

Закажите выезд инженера

Александр

Выездной инженер
Закажите выезд инженера для точной диагностики и профессиональной консультации по инженерным системам. Специалист приедет в удобное время, проведёт осмотр, рассчитает стоимость работ и подберёт оптимальные решения для вашего дома.


    Похожие проекты

    Ипотека и
    рассрочка
    Мансардный дом Л-155
    Стоимость от:
    11 034 000
    Проект от: 69 750
    Этажей 2
    Санузлы 2
    Спальни 4
    Смотреть
    Ипотека и
    рассрочка
    Дом с мансардой Лидер ЛК 9
    Стоимость от:
    5 865 600
    Проект от: 38 250
    Этажей 2
    Санузлы 1
    Спальни 3
    Смотреть
    Ипотека и
    рассрочка
    Загородный дом 91
    Стоимость от:
    6 639 820
    Проект от: 40 950
    Этажей 1
    Санузлы 2
    Спальни 3
    Смотреть
    Ипотека и
    рассрочка
    «Монблан»
    Стоимость от:
    12 522 960
    Проект от: 80 550
    Этажей 2
    Санузлы 2
    Спальни 3
    Смотреть
    Ипотека и
    рассрочка
    Одноэтажный жилой дом 133м2 с крытой террасой.
    Стоимость от:
    9 099 860
    Проект от: 59 850
    Этажей 1
    Санузлы 2
    Спальни 3
    Смотреть
    Ипотека и
    рассрочка
    Проект дома 40 м.кв 2 спальни НД-2996 каркасный
    Стоимость от:
    3 194 400
    Проект от: 18 000
    Этажей 1
    Санузлы 1
    Спальни 2
    Смотреть

    Как узнать стоимость дома

    back
    Оставляете заявку
    Вы заполняете форму на сайте или звоните нам. Менеджер Лайвкрафт связывается с вами для уточнения деталей: тип дома, площадь, материалы, участок строительства.
    back
    Консультация и подбор решения
    Наш специалист помогает выбрать оптимальный тип дома и конструкцию с учётом бюджета, сроков и целей — будь то дом для постоянного проживания или дача.
    back
    Расчёт предварительной стоимости
    Инженер делает первичный расчёт стоимости строительства по вашим параметрам: фундамент, коробка, кровля, отделка. Вы получаете смету с разбивкой по этапам.
    back
    Корректировка и утверждение сметы
    При необходимости вносим изменения — например, замену материалов или сокращение этапов. После согласования формируется окончательная фиксированная смета.
    back
    Заключение договора и старт работ
    После утверждения сметы заключаем официальный договор с гарантией. Вы получаете прозрачный график и точную стоимость — без скрытых расходов.

    Заказать конусльтацию по:J-71-G

    Фото 1 J-71-G


      Наши
      контакты

      Дмитров
      Опорный проезд 28Б
      (индустриальный парк Ниагара)
      9:00 до 18:00

      Корзина