4.9
Рейтинг на основании 120 отзывов
Дмитров
Опорный проезд 28Б
(индустриальный парк Ниагара)
Бренд "Дмитров-Дело" c 2008 года на рынке строительства в Дмитрове
Звоните 9:00 до 18:00 8 (915) 055-33-61
Бренд "Дмитров-Дело" c 2008 года на рынке строительства в Дмитрове

Гармония

Стоимость проекта от:
71 550 ₽
БЕСПЛАТНО! ПРИ ЗАКАЗЕ СТРОИТЕЛЬСТВА
Стоимость строительства от:
10 878 780 ₽
Артикул ART-20582
Дата 26.12.2025
Архитектурный стиль Европейский
Количество надземных этажей 1
Круглогодичное проживание Да
Площадь дома 159 м2
Санузлы 2
Спальни 3

Описание

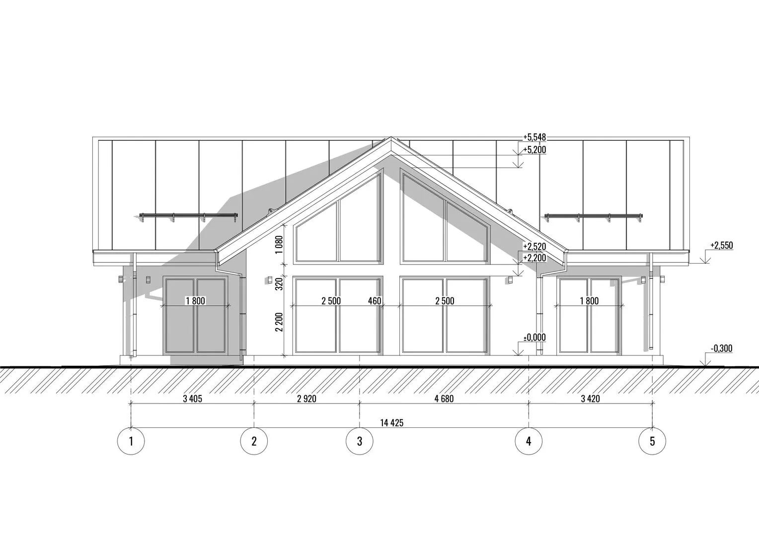
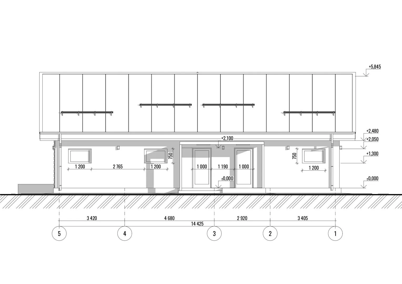
Добро пожаловать в ваш новый дом, где каждая деталь говорит о комфорте, стиле и заботе о клиентах. Это элегантное одноэтажное жильё в европейском стиле, идеально подходящее для круглогодичного проживания. Стены, выполненные из газобетонных блоков, не только дарят тепло и уединение, но и обеспечивают отличную звукоизоляцию, что делает ваше пространство живым и спокойным. Комбинированная кровля с современными элементами конструкции придаёт дому гармоничные линии, а лёгкая, но надёжная крыша гарантирует долгую службу во всех климатических условиях. Откройте для себя простор и свободу, которую дарит просторная терраса. Здесь вы можете наслаждаться утренним кофе, устроить семейный барбекю или просто подышать свежим воздухом, погружаясь в атмосферу летних вечеров. Внутри – открытая, светлую планировка с продуманными решениями, которые дарят ощущение простора без лишних балконов и веранд. Это ваш личный уголок, где уют и уют встречаются с современным европейским дизайном, создавая идеальный баланс для тех, кто ценит комфорт и элегантность.

Характеристики дома

Архитектурный стиль
Автоматизированное регулирование параметров теплоносителя
Да
Балконы/лоджии
Отсутствуют
Чердачное помещение
Нет
Датчики протечки воды
Нет
Эксплуатируемая или зеленая кровля
Нет
Электроснабжение
Центральное
Газоснабжение
Центральное
Изоляция воздушного шума
Да
Камин
Нет
Класс энергоэффективности
A+
Класс энергосбережения
A+
Количество надземных этажей
1
Круглогодичное проживание
Да
Материал кровли
Фальцевая кровля Кликфальц
Материал перекрытий
Деревянные
Материал внешних стен
Материал внутренних перегородок
Блочные
Модульное строительство с конструкциями заводского изготовления
Нет
Объем надземной части
692 м3
Основной материал фасадов
Планкен
Отопление
2 варианта
Площадь дома
159 м2
Площадь застройки
159 м2
Подвальное помещение
Нет
Показатель компактности здания
1
Приборы учета тепловой энергии
Да
Пристроенный гараж/крытая автостоянка
Нет
Противопожарная система
Нет
Санузлы
2
Совмещенная кухня-гостиная
Да
Спальни
3
Терраса
Да
Тип фундамента
Плитный
Тип кровли
Толщина внешних стен
400 мм
Толщина внутренних перегородок
150 мм
Улучшенные шумовые характеристики
Да
Вентиляция
Естественная
Веранда
Нет
Водоотведение
2 варианта
Водоснабжение
2 варианта
Высота дома
6.02 м
Высота потолков
3.25 м

Планировка

Фасад дома

Александр

Закажите выезд инженера

Александр

Выездной инженер
Закажите выезд инженера для точной диагностики и профессиональной консультации по инженерным системам. Специалист приедет в удобное время, проведёт осмотр, рассчитает стоимость работ и подберёт оптимальные решения для вашего дома.


    Похожие проекты

    Ипотека и
    рассрочка
    Современный одноэтажный дом KV-04-01 с террасой
    Стоимость от:
    10 804 860
    Проект от: 68 850
    Этажей 1
    Санузлы 2
    Спальни 4
    Смотреть
    Ипотека и
    рассрочка
    Проект жилого дома площадью 107м2
    Стоимость от:
    8 515 540
    Проект от: 48 150
    Этажей 1
    Санузлы 2
    Спальни 3
    Смотреть
    Ипотека и
    рассрочка
    Жилой дом ДКБ-83
    Стоимость от:
    5 521 890
    Проект от: 39 150
    Этажей 1
    Санузлы 1
    Спальни 2
    Смотреть
    Ипотека и
    рассрочка
    Прайм
    Стоимость от:
    8 533 140
    Проект от: 52 650
    Этажей 1
    Санузлы 2
    Спальни 3
    Смотреть
    Ипотека и
    рассрочка
    Загородный дом » Зеленый берег»
    Стоимость от:
    6 712 640
    Проект от: 41 400
    Этажей 1
    Санузлы 1
    Спальни 3
    Смотреть
    Ипотека и
    рассрочка
    Коттедж ГБ-2.3
    Стоимость от:
    11 428 320
    Проект от: 71 100
    Этажей 2
    Санузлы 2
    Спальни 3
    Смотреть

    Как узнать стоимость дома

    back
    Оставляете заявку
    Вы заполняете форму на сайте или звоните нам. Менеджер Лайвкрафт связывается с вами для уточнения деталей: тип дома, площадь, материалы, участок строительства.
    back
    Консультация и подбор решения
    Наш специалист помогает выбрать оптимальный тип дома и конструкцию с учётом бюджета, сроков и целей — будь то дом для постоянного проживания или дача.
    back
    Расчёт предварительной стоимости
    Инженер делает первичный расчёт стоимости строительства по вашим параметрам: фундамент, коробка, кровля, отделка. Вы получаете смету с разбивкой по этапам.
    back
    Корректировка и утверждение сметы
    При необходимости вносим изменения — например, замену материалов или сокращение этапов. После согласования формируется окончательная фиксированная смета.
    back
    Заключение договора и старт работ
    После утверждения сметы заключаем официальный договор с гарантией. Вы получаете прозрачный график и точную стоимость — без скрытых расходов.

    Заказать конусльтацию по:Гармония

    Фото 1 Гармония


      Наши
      контакты

      Дмитров
      Опорный проезд 28Б
      (индустриальный парк Ниагара)
      9:00 до 18:00

      Корзина