4.9
Рейтинг на основании 120 отзывов
Дмитров
Опорный проезд 28Б
(индустриальный парк Ниагара)
Бренд "Дмитров-Дело" c 2008 года на рынке строительства в Дмитрове
Звоните 9:00 до 18:00 8 (915) 055-33-61
Бренд "Дмитров-Дело" c 2008 года на рынке строительства в Дмитрове

Глэм

Стоимость проекта от:
40 500 ₽
БЕСПЛАТНО! ПРИ ЗАКАЗЕ СТРОИТЕЛЬСТВА
Стоимость строительства от:
6 765 000 ₽
Артикул ART-17349
Дата 26.12.2025
Архитектурный стиль Европейский
Количество надземных этажей 1
Круглогодичное проживание Да
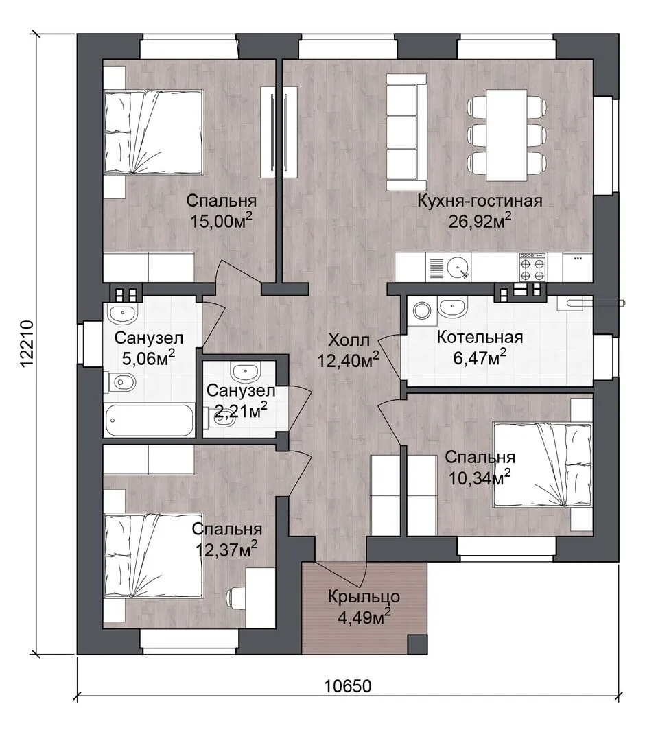
Площадь дома 90 м2
Санузлы 2
Спальни 3

Описание

Добро пожаловать в уютный уголок европейской элегантности, где каждая деталь продумана с любовью к комфорту и эстетике. Дом на одном надземном этаже из керамического блока сочетает в себе неприхотливый стиль с прочностью и долговечностью, а четыре вальмовые крыша создают ощущение простора и защиту от непогоды. Внутреннее пространство — это гармоничное сочетание открытых зон для семейных вечеров и уютных уголков для личного уединения. Весь дом рассчитан на круглогодичную жизнь: тепло, уединение и атмосфера домашнего уюта — это основа этой обители. Загляните в чердачное помещение, которое хранится как спрятанное сокровище, готовое превратиться в творческую мастерскую, домашний кинотеатр или кабинет — пространство, в котором ваш смак и функции жизни сливаются воедино. Внешний вид без балконов и веранд подчеркивает минимализм и лаконичность. Отсутствие прицепного гаража делает акцент на свободе от лишних забот, а простая, но изысканная в оформлении, безусловно, станет фоном для ваших мгновений. Этот дом — воплощение европейской классики, созданный для того, чтобы ваш дом стал вашим личным убежищем.

Характеристики дома

Архитектурный стиль
Автоматизированное регулирование параметров теплоносителя
Нет
Балконы/лоджии
Отсутствуют
Чердачное помещение
Да
Датчики протечки воды
Нет
Эксплуатируемая или зеленая кровля
Нет
Электроснабжение
Индивидуальное
Газоснабжение
Индивидуальное
Изоляция воздушного шума
Нет
Камин
Нет
Класс энергоэффективности
-
Класс энергосбережения
-
Количество надземных этажей
1
Круглогодичное проживание
Да
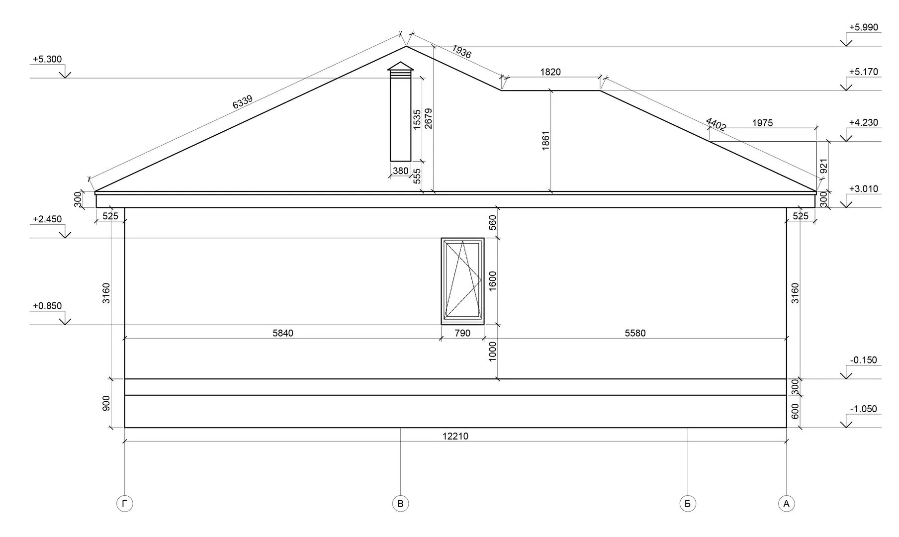
Материал кровли
Металлочерепица
Материал перекрытий
Сборно-монолитные железобетонные
Материал внешних стен
Материал внутренних перегородок
Кирпичные
Модульное строительство с конструкциями заводского изготовления
Нет
Объем надземной части
780 м3
Основной материал фасадов
Облицовочный кирпич
Отопление
Индивидуальное
Площадь дома
90 м2
Площадь застройки
123 м2
Подвальное помещение
Нет
Показатель компактности здания
-
Приборы учета тепловой энергии
Нет
Пристроенный гараж/крытая автостоянка
Нет
Противопожарная система
Нет
Санузлы
2
Совмещенная кухня-гостиная
Да
Спальни
3
Терраса
Нет
Тип фундамента
Свайно-ростверковый
Толщина внешних стен
500 мм
Толщина внутренних перегородок
250 мм
Улучшенные шумовые характеристики
Нет
Вентиляция
Естественная
Веранда
Нет
Водоотведение
Локальные очистные сооружения
Водоснабжение
Индивидуальное
Высота дома
6 м
Высота потолков
3 м

Планировка

Фасад дома

Александр

Закажите выезд инженера

Александр

Выездной инженер
Закажите выезд инженера для точной диагностики и профессиональной консультации по инженерным системам. Специалист приедет в удобное время, проведёт осмотр, рассчитает стоимость работ и подберёт оптимальные решения для вашего дома.


    Похожие проекты

    Ипотека и
    рассрочка
    S 1-52
    Стоимость от:
    3 839 220
    Проект от: 22 950
    Этажей 1
    Санузлы 1
    Спальни 2
    Смотреть
    Ипотека и
    рассрочка
    Проект дома №21
    Стоимость от:
    9 115 920
    Проект от: 64 800
    Этажей 1
    Санузлы 1
    Спальни 3
    Смотреть
    Ипотека и
    рассрочка
    Проект дома КС-22
    Стоимость от:
    16 457 540
    Проект от: 93 150
    Этажей 1
    Санузлы 2
    Спальни 3
    Смотреть
    Ипотека и
    рассрочка
    Загородный дом АС-250
    Стоимость от:
    17 725 620
    Проект от: 112 950
    Этажей 1
    Санузлы 3
    Спальни 2
    Смотреть
    Ипотека и
    рассрочка
    Марбург 118
    Стоимость от:
    7 062 300
    Проект от: 53 100
    Этажей 2
    Санузлы 2
    Спальни 4
    Смотреть
    Ипотека и
    рассрочка
    Кирпичный дом с односкатной кровлей
    Стоимость от:
    7 515 200
    Проект от: 45 000
    Этажей 1
    Санузлы 2
    Спальни 3
    Смотреть

    Как узнать стоимость дома

    back
    Оставляете заявку
    Вы заполняете форму на сайте или звоните нам. Менеджер Лайвкрафт связывается с вами для уточнения деталей: тип дома, площадь, материалы, участок строительства.
    back
    Консультация и подбор решения
    Наш специалист помогает выбрать оптимальный тип дома и конструкцию с учётом бюджета, сроков и целей — будь то дом для постоянного проживания или дача.
    back
    Расчёт предварительной стоимости
    Инженер делает первичный расчёт стоимости строительства по вашим параметрам: фундамент, коробка, кровля, отделка. Вы получаете смету с разбивкой по этапам.
    back
    Корректировка и утверждение сметы
    При необходимости вносим изменения — например, замену материалов или сокращение этапов. После согласования формируется окончательная фиксированная смета.
    back
    Заключение договора и старт работ
    После утверждения сметы заключаем официальный договор с гарантией. Вы получаете прозрачный график и точную стоимость — без скрытых расходов.

    Заказать конусльтацию по:Глэм

    Фото 1 Глэм


      Наши
      контакты

      Дмитров
      Опорный проезд 28Б
      (индустриальный парк Ниагара)
      9:00 до 18:00

      Корзина