4.9
Рейтинг на основании 120 отзывов
Дмитров
Опорный проезд 28Б
(индустриальный парк Ниагара)
Бренд "Дмитров-Дело" c 2008 года на рынке строительства в Дмитрове
Звоните 9:00 до 18:00 8 (915) 055-33-61
Бренд "Дмитров-Дело" c 2008 года на рынке строительства в Дмитрове

Загородный дом АС-250

Стоимость проекта от:
112 950 ₽
БЕСПЛАТНО! ПРИ ЗАКАЗЕ СТРОИТЕЛЬСТВА
Стоимость строительства от:
17 725 620 ₽
Артикул ART-17694
Дата 26.12.2025
Архитектурный стиль Фахверк
Количество надземных этажей 1
Круглогодичное проживание Да
Площадь дома 251 м2
Санузлы 3
Спальни 2

Описание

Загородный дом АС‑250 — это уютный уголок, где каждая деталь продумана до мелочей. Его одиннадцатая чертует прямая линия единственного надземного этажа, а стиль фахверка придаёт ему неповторимый очарование старинного немецкого дома. Внутри царит свет и тепло благодаря газобетонным блокам внешних стен, обеспечивающим отличную теплоизоляцию даже в самые холодные зимы — круглогодичное проживание без компромиссов. Небольшая, но практичная терраса приглашает проводить вечера, наслаждаясь свежим воздухом и панорамным видом на открывающийся закат над загородским пейзажем. Чердачное помещение, аккуратно обграниченное ветвями крыши, предлагает многообразие вариантов: от кладовой до уютной гостиной, от творческого уголка до детской мастерской. Четырехскатная, вальмовая кровля, выполненная из высококачественного материала, не только придаёт дому характерный штрих, но и обеспечивает надёжную защиту от непогоды. В этом доме ощущается гармония между традицией и комфортом: от ручной кладости каркаса фахверка до современных технологий утепления. Он предназначен для тех, кто ценит спокойствие, уединение и желание проводить время в приятной обстановке. Если вы ищете место, где каждая погоня по дому наполняет вдохновением, загородный дом АС‑250 станет вашим идеальным выбором.

Характеристики дома

Архитектурный стиль
Автоматизированное регулирование параметров теплоносителя
Нет
Балконы/лоджии
Отсутствуют
Чердачное помещение
Да
Датчики протечки воды
Нет
Эксплуатируемая или зеленая кровля
Нет
Электроснабжение
Центральное
Газоснабжение
Индивидуальное
Изоляция воздушного шума
Нет
Камин
Да
Класс энергоэффективности
-
Класс энергосбережения
-
Количество надземных этажей
1
Круглогодичное проживание
Да
Материал кровли
Металлочерепица
Материал перекрытий
Деревянные
Материал внешних стен
Материал внутренних перегородок
Блочные
Модульное строительство с конструкциями заводского изготовления
Нет
Объем надземной части
1200 м3
Основной материал фасадов
Фасадная плитка
Отопление
Индивидуальное
Площадь дома
251 м2
Площадь застройки
309 м2
Подвальное помещение
Нет
Показатель компактности здания
-
Приборы учета тепловой энергии
Нет
Пристроенный гараж/крытая автостоянка
Нет
Противопожарная система
Нет
Санузлы
3
Совмещенная кухня-гостиная
Да
Спальни
2
Терраса
Да
Тип фундамента
Плитный
Толщина внешних стен
400 мм
Толщина внутренних перегородок
250 мм
Улучшенные шумовые характеристики
Нет
Вентиляция
Естественная
Веранда
Нет
Водоотведение
Локальные очистные сооружения
Водоснабжение
Центральное
Высота дома
6.8 м
Высота потолков
3 м

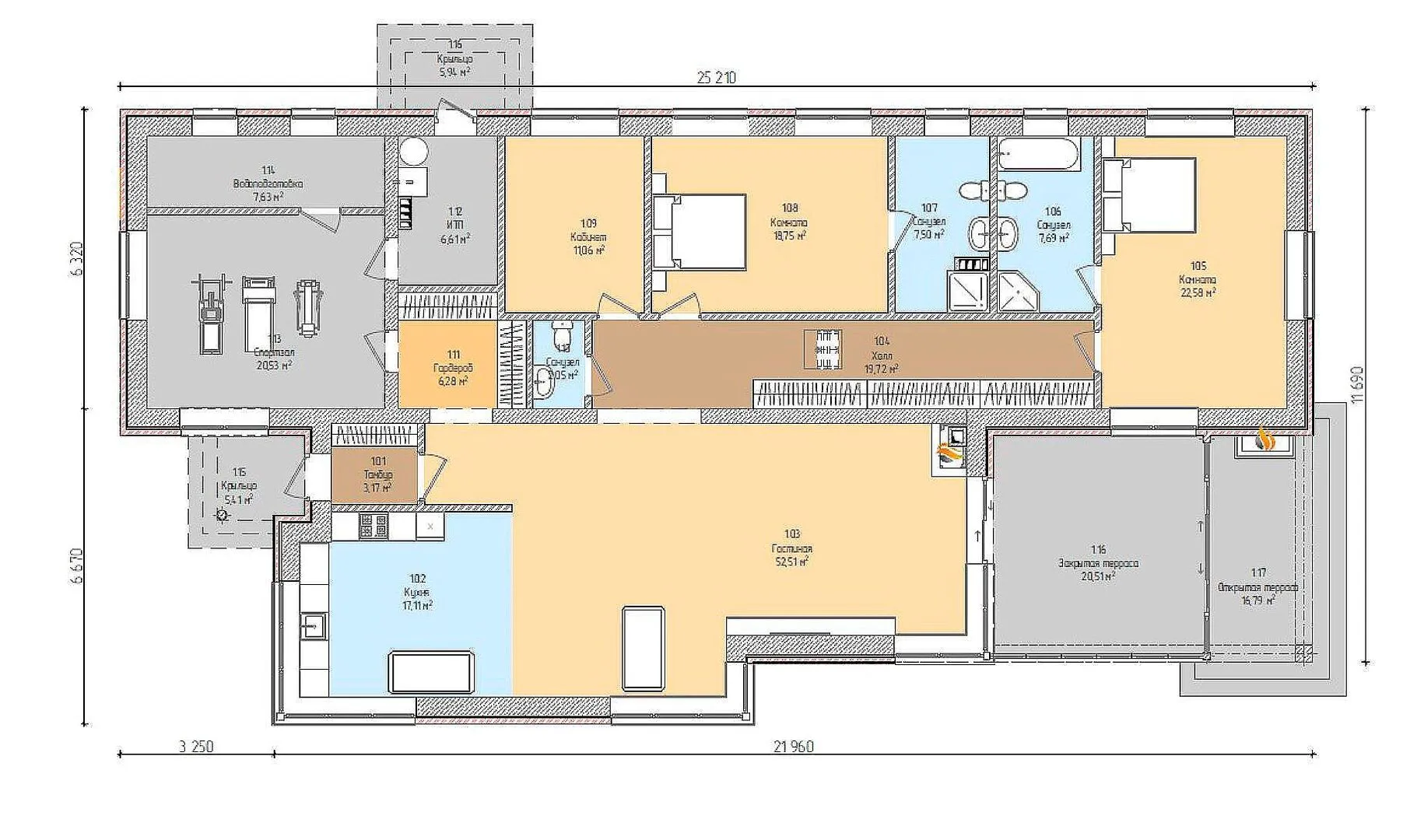
Планировка

Фасад дома

Александр

Закажите выезд инженера

Александр

Выездной инженер
Закажите выезд инженера для точной диагностики и профессиональной консультации по инженерным системам. Специалист приедет в удобное время, проведёт осмотр, рассчитает стоимость работ и подберёт оптимальные решения для вашего дома.


    Похожие проекты

    Ипотека и
    рассрочка
    Загородный дом «Семейный»
    Стоимость от:
    9 125 280
    Проект от: 54 900
    Этажей 2
    Санузлы 1
    Спальни 3
    Смотреть
    Ипотека и
    рассрочка
    Одноэтажный кирпичный дом MIDDLE — 87 m2 (Белый облицовочный кирпич)
    Стоимость от:
    4 941 640
    Проект от: 27 900
    Этажей 1
    Санузлы 1
    Спальни 2
    Смотреть
    Ипотека и
    рассрочка
    Современный загородный дом СМ-158
    Стоимость от:
    7 457 780
    Проект от: 49 050
    Этажей 1
    Санузлы 2
    Спальни 3
    Смотреть
    Ипотека и
    рассрочка
    СД-6092
    Стоимость от:
    9 915 840
    Проект от: 59 400
    Этажей 1
    Санузлы 2
    Спальни 3
    Смотреть
    Ипотека и
    рассрочка
    КД 15-22 «Кемь»
    Стоимость от:
    4 173 840
    Проект от: 32 400
    Этажей 1
    Санузлы 1
    Спальни 2
    Смотреть
    Ипотека и
    рассрочка
    Загородный дом ДК-111
    Стоимость от:
    3 988 215
    Проект от: 28 350
    Этажей 1
    Санузлы 1
    Спальни 3
    Смотреть

    Как узнать стоимость дома

    back
    Оставляете заявку
    Вы заполняете форму на сайте или звоните нам. Менеджер Лайвкрафт связывается с вами для уточнения деталей: тип дома, площадь, материалы, участок строительства.
    back
    Консультация и подбор решения
    Наш специалист помогает выбрать оптимальный тип дома и конструкцию с учётом бюджета, сроков и целей — будь то дом для постоянного проживания или дача.
    back
    Расчёт предварительной стоимости
    Инженер делает первичный расчёт стоимости строительства по вашим параметрам: фундамент, коробка, кровля, отделка. Вы получаете смету с разбивкой по этапам.
    back
    Корректировка и утверждение сметы
    При необходимости вносим изменения — например, замену материалов или сокращение этапов. После согласования формируется окончательная фиксированная смета.
    back
    Заключение договора и старт работ
    После утверждения сметы заключаем официальный договор с гарантией. Вы получаете прозрачный график и точную стоимость — без скрытых расходов.

    Заказать конусльтацию по:Загородный дом АС-250

    Фото 1 Загородный дом АС-250


      Наши
      контакты

      Дмитров
      Опорный проезд 28Б
      (индустриальный парк Ниагара)
      9:00 до 18:00

      Корзина