4.9
Рейтинг на основании 120 отзывов
Дмитров
Опорный проезд 28Б
(индустриальный парк Ниагара)
Бренд "Дмитров-Дело" c 2008 года на рынке строительства в Дмитрове
Звоните 9:00 до 18:00 8 (915) 055-33-61
Бренд "Дмитров-Дело" c 2008 года на рынке строительства в Дмитрове

Грата 1-130-Шале

Стоимость проекта от:
57 150 ₽
БЕСПЛАТНО! ПРИ ЗАКАЗЕ СТРОИТЕЛЬСТВА
Стоимость строительства от:
9 540 740 ₽
Артикул ART-20300
Дата 26.12.2025
Архитектурный стиль Шале
Количество надземных этажей 1
Круглогодичное проживание Да
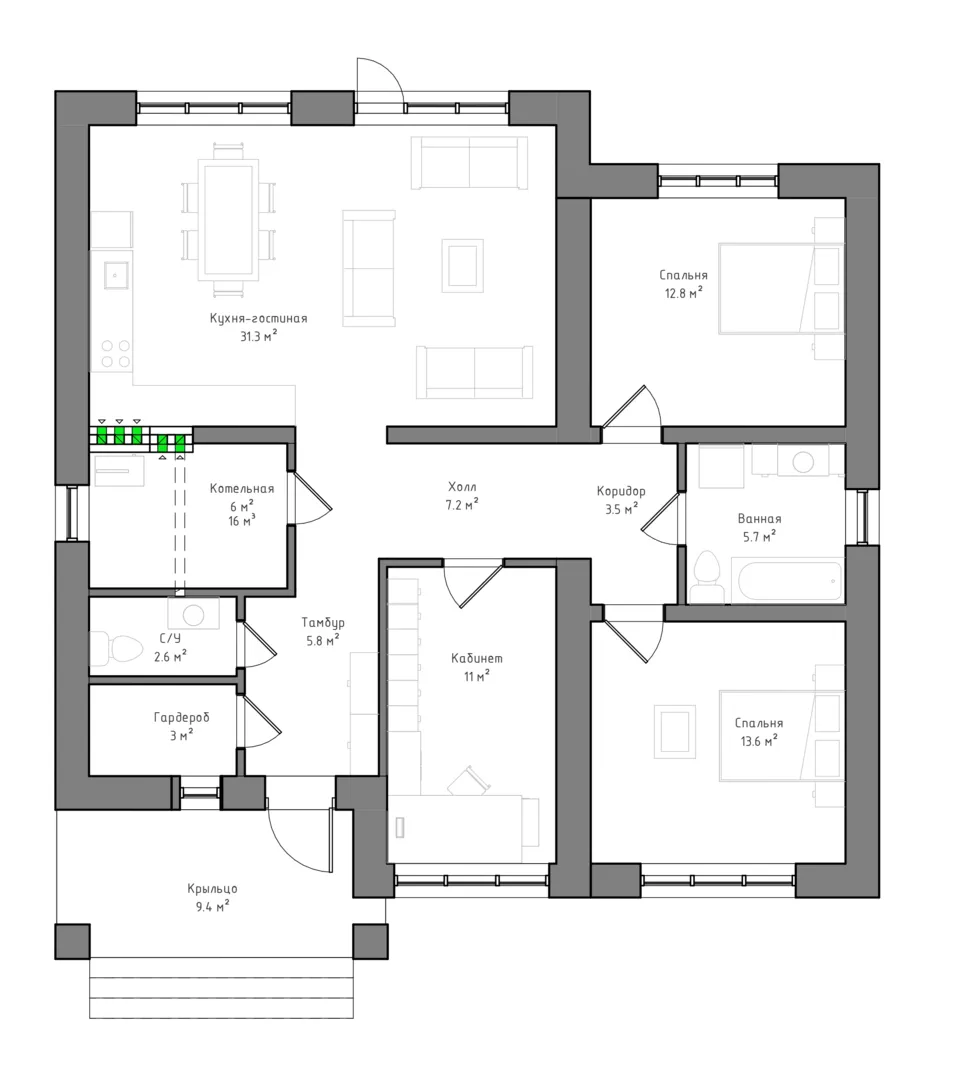
Площадь дома 127 м2
Санузлы 2
Спальни 2

Описание

**Грата 1‑130 – шале, где уют встречает современность.** Этот единетяжный дом сочетает в себе неподдельную элегантность шале‑стиля с практичностью и теплоизоляцией, которые делают его идеальным вариантом для круглогодичного проживания. Просторные планировки, высокие потолки и массивные, аккуратно выложенные керамические блоки создают ощущение защищённости и постоянного уюта, в котором каждое утро словно начинается с мягкого света, проникающего сквозь большие окна. **Теплота и уют в каждой детали** Двускатная крыша придаёт дому классический образ, подчёркивая его шарм и придавая ощущение «домашнего очага» даже в самые холодные дни. Эксплодируемая отделка керамических блоков обеспечивает превосходную тепло- и звукоизоляцию, позволяя наслаждаться покоем и комфортом независимо от погоды за окном. Внутренняя отделка выполнена с тщательностью: мягкие ткани, теплые деревянные панели и светлые оттенки создают атмосферу гармонии, где каждая деталь продумана до мелочей. **Непревзойденное пространство для вашего образа жизни** Отсутствие наружных проёмов не является недостатком, а наоборот – это возможность сконцентрироваться на создании открытых, светлых и функциональных зон внутри дома. Пространство, открытое не только в плане планировки, но и в архитектуре, позволяет вам в полной мере использовать каждую квадратную единицу для домашнего уюта, семейных встреч и личного творчества. Идеально подходит для тех, кто ценит чистоту линий, простор и комфорт, но при этом желает жить в месте, где каждая деталь приносит радость и спокойствие.

Характеристики дома

Архитектурный стиль
Автоматизированное регулирование параметров теплоносителя
Да
Балконы/лоджии
Отсутствуют
Чердачное помещение
Нет
Датчики протечки воды
Нет
Эксплуатируемая или зеленая кровля
Нет
Электроснабжение
Центральное
Газоснабжение
Центральное
Изоляция воздушного шума
Да
Камин
Нет
Класс энергоэффективности
A
Класс энергосбережения
A
Количество надземных этажей
1
Круглогодичное проживание
Да
Материал кровли
Металлочерепица
Материал перекрытий
Деревянные
Материал внешних стен
Материал внутренних перегородок
Кирпичные
Модульное строительство с конструкциями заводского изготовления
Нет
Объем надземной части
-
Основной материал фасадов
Облицовочный кирпич
Отопление
Индивидуальное
Площадь дома
127 м2
Площадь застройки
157 м2
Подвальное помещение
Нет
Показатель компактности здания
5
Приборы учета тепловой энергии
Да
Пристроенный гараж/крытая автостоянка
Нет
Противопожарная система
Нет
Санузлы
2
Совмещенная кухня-гостиная
Да
Спальни
2
Терраса
Нет
Тип фундамента
Свайно-ростверковый
Тип кровли
Толщина внешних стен
500 мм
Толщина внутренних перегородок
120 мм
Улучшенные шумовые характеристики
Да
Вентиляция
Естественная
Веранда
Нет
Водоотведение
Центральное
Водоснабжение
Индивидуальное
Высота дома
6 м
Высота потолков
3 м

Планировка

Фасад дома

Александр

Закажите выезд инженера

Александр

Выездной инженер
Закажите выезд инженера для точной диагностики и профессиональной консультации по инженерным системам. Специалист приедет в удобное время, проведёт осмотр, рассчитает стоимость работ и подберёт оптимальные решения для вашего дома.


    Похожие проекты

    Ипотека и
    рассрочка
    Барн 3/009
    Стоимость от:
    5 338 080
    Проект от: 43 200
    Этажей 1
    Санузлы 1
    Спальни 2
    Смотреть
    Ипотека и
    рассрочка
    Сан-Ремо 122
    Стоимость от:
    7 843 560
    Проект от: 58 950
    Этажей 2
    Санузлы 2
    Спальни 4
    Смотреть
    Ипотека и
    рассрочка
    Миранда
    Стоимость от:
    8 972 160
    Проект от: 55 800
    Этажей 2
    Санузлы 2
    Спальни 5
    Смотреть
    Ипотека и
    рассрочка
    Одноэтажный дом Уют-13
    Стоимость от:
    6 991 380
    Проект от: 44 550
    Этажей 1
    Санузлы 2
    Спальни 2
    Смотреть
    Ипотека и
    рассрочка
    Одноэтажный жилой дом Волково
    Стоимость от:
    3 878 600
    Проект от: 22 500
    Этажей 1
    Санузлы 1
    Спальни 2
    Смотреть
    Ипотека и
    рассрочка
    ЮС-О-121-1
    Стоимость от:
    9 627 420
    Проект от: 54 450
    Этажей 1
    Санузлы 2
    Спальни 3
    Смотреть

    Как узнать стоимость дома

    back
    Оставляете заявку
    Вы заполняете форму на сайте или звоните нам. Менеджер Лайвкрафт связывается с вами для уточнения деталей: тип дома, площадь, материалы, участок строительства.
    back
    Консультация и подбор решения
    Наш специалист помогает выбрать оптимальный тип дома и конструкцию с учётом бюджета, сроков и целей — будь то дом для постоянного проживания или дача.
    back
    Расчёт предварительной стоимости
    Инженер делает первичный расчёт стоимости строительства по вашим параметрам: фундамент, коробка, кровля, отделка. Вы получаете смету с разбивкой по этапам.
    back
    Корректировка и утверждение сметы
    При необходимости вносим изменения — например, замену материалов или сокращение этапов. После согласования формируется окончательная фиксированная смета.
    back
    Заключение договора и старт работ
    После утверждения сметы заключаем официальный договор с гарантией. Вы получаете прозрачный график и точную стоимость — без скрытых расходов.

    Заказать конусльтацию по:Грата 1-130-Шале

    Фото 1 Грата 1-130-Шале


      Наши
      контакты

      Дмитров
      Опорный проезд 28Б
      (индустриальный парк Ниагара)
      9:00 до 18:00

      Корзина