4.9
Рейтинг на основании 120 отзывов
Дмитров
Опорный проезд 28Б
(индустриальный парк Ниагара)
Бренд "Дмитров-Дело" c 2008 года на рынке строительства в Дмитрове
Звоните 9:00 до 18:00 8 (915) 055-33-61
Бренд "Дмитров-Дело" c 2008 года на рынке строительства в Дмитрове

ГУДРИЧ100

Стоимость проекта от:
48 600 ₽
БЕСПЛАТНО! ПРИ ЗАКАЗЕ СТРОИТЕЛЬСТВА
Стоимость строительства от:
8 357 360 ₽
Артикул ART-5730
Дата 26.12.2025
Архитектурный стиль Классический
Количество надземных этажей 1
Круглогодичное проживание Да
Площадь дома 108 м2
Санузлы 1
Спальни 3

Описание

**Классический уют в каждом куске камня** Дом «ГУДРИЧ 100» – идеальное сочетание простоты архитектуры и современного комфорта. Одноэтажный фасад, выполненный из газобетонных блоков, придаёт ему прочность и тепло, а четырёхскатная (вальмовая) крыша создаёт ощущение стабильности и надёжности. Этот дом разработан для круглогодичного проживания: утеплённые стены, надёжная крыша и качественная отделка обеспечивают комфорт даже в суровые зимы и жаркие летние дни. Его элегантные линии, чистые простые формы и традиционный стиль придают каждому помещению ощущение домашнего уюта и благородства. **Пространство, где растёт вдохновение** Внутреннее пространство «ГУДРИЧ 100» продумано так, чтобы каждый уголок становился местом для жизни, работы и отдыха. Пристроенное чердачное помещение добавляет дополнительный функциональный слой: легко превратить его в уютную игровую комнату, рабочий кабинет или дополнительную спальню. На веранде можно наслаждаться прохладными летними вечерами, открывая наружу живописные виды, а отсутствие пристроенного гаража не мешает сохранять чистоту внутреннего убранства – свободные площади позволяют более гибко подбирать варианты размещения мебели и декора. **Идея для семейного счастья** Этот дом – прекрасный выбор для тех, кто ценит стильную простоту, но не хочет жертвовать функциональностью. Он легко адаптируется под потребности разных поколений, а его классический антураж создает атмосферу доверия и гармонии. Если вы ищете дом, где каждый элемент продуман до мелочей и где каждый день начинается с приятной и теплой обстановки – «ГУДРИЧ 100» ждёт вас.

Характеристики дома

Архитектурный стиль
Автоматизированное регулирование параметров теплоносителя
Нет
Балконы/лоджии
Отсутствуют
Чердачное помещение
Да
Датчики протечки воды
Нет
Эксплуатируемая или зеленая кровля
Да
Электроснабжение
Не предусмотрено
Газоснабжение
Не предусмотрено
Изоляция воздушного шума
Да
Камин
Нет
Класс энергоэффективности
A
Класс энергосбережения
A
Количество надземных этажей
1
Круглогодичное проживание
Да
Материал кровли
Битумная черепица
Материал перекрытий
Иной вид материалов перекрытий
Материал внешних стен
Материал внутренних перегородок
Блочные
Модульное строительство с конструкциями заводского изготовления
Нет
Объем надземной части
810 м3
Основной материал фасадов
Штукатурка
Отопление
Не предусмотрено
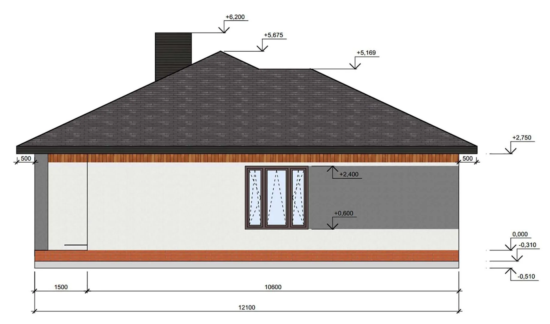
Площадь дома
108 м2
Площадь застройки
127 м2
Подвальное помещение
Нет
Показатель компактности здания
1
Приборы учета тепловой энергии
Нет
Пристроенный гараж/крытая автостоянка
Нет
Противопожарная система
Нет
Санузлы
1
Совмещенная кухня-гостиная
Да
Спальни
3
Терраса
Нет
Тип фундамента
Ленточный
Толщина внешних стен
440 мм
Толщина внутренних перегородок
100 мм
Улучшенные шумовые характеристики
Да
Вентиляция
Естественная
Веранда
Да
Водоотведение
Не предусмотрено
Водоснабжение
Не предусмотрено
Высота дома
6.2 м
Высота потолков
2.75 м

Планировка

Фасад дома

Александр

Закажите выезд инженера

Александр

Выездной инженер
Закажите выезд инженера для точной диагностики и профессиональной консультации по инженерным системам. Специалист приедет в удобное время, проведёт осмотр, рассчитает стоимость работ и подберёт оптимальные решения для вашего дома.


    Похожие проекты

    Ипотека и
    рассрочка
    BARN49
    Стоимость от:
    3 011 580
    Проект от: 24 300
    Этажей 1
    Санузлы 1
    Спальни 1
    Смотреть
    Ипотека и
    рассрочка
    Дом Art Design с гаражом
    Стоимость от:
    9 886 800
    Проект от: 63 000
    Этажей 1
    Санузлы 2
    Спальни 3
    Смотреть
    Ипотека и
    рассрочка
    Двухэтажный дом из бревна
    Стоимость от:
    10 767 360
    Проект от: 64 800
    Этажей 2
    Санузлы 2
    Спальни 3
    Смотреть
    Ипотека и
    рассрочка
    Дом Скай Лайт 165
    Стоимость от:
    11 807 040
    Проект от: 74 700
    Этажей 2
    Санузлы 3
    Спальни 4
    Смотреть
    Ипотека и
    рассрочка
    НОРВИЧ
    Стоимость от:
    8 166 345
    Проект от: 58 050
    Этажей 1
    Санузлы 2
    Спальни 3
    Смотреть
    Ипотека и
    рассрочка
    Одноэтажный дом 70м2
    Стоимость от:
    5 418 160
    Проект от: 30 600
    Этажей 1
    Санузлы 1
    Спальни 2
    Смотреть

    Как узнать стоимость дома

    back
    Оставляете заявку
    Вы заполняете форму на сайте или звоните нам. Менеджер Лайвкрафт связывается с вами для уточнения деталей: тип дома, площадь, материалы, участок строительства.
    back
    Консультация и подбор решения
    Наш специалист помогает выбрать оптимальный тип дома и конструкцию с учётом бюджета, сроков и целей — будь то дом для постоянного проживания или дача.
    back
    Расчёт предварительной стоимости
    Инженер делает первичный расчёт стоимости строительства по вашим параметрам: фундамент, коробка, кровля, отделка. Вы получаете смету с разбивкой по этапам.
    back
    Корректировка и утверждение сметы
    При необходимости вносим изменения — например, замену материалов или сокращение этапов. После согласования формируется окончательная фиксированная смета.
    back
    Заключение договора и старт работ
    После утверждения сметы заключаем официальный договор с гарантией. Вы получаете прозрачный график и точную стоимость — без скрытых расходов.

    Заказать конусльтацию по:ГУДРИЧ100

    Фото 1 ГУДРИЧ100


      Наши
      контакты

      Дмитров
      Опорный проезд 28Б
      (индустриальный парк Ниагара)
      9:00 до 18:00

      Корзина