4.9
Рейтинг на основании 120 отзывов
Дмитров
Опорный проезд 28Б
(индустриальный парк Ниагара)
Бренд "Дмитров-Дело" c 2008 года на рынке строительства в Дмитрове
Звоните 9:00 до 18:00 8 (915) 055-33-61
Бренд "Дмитров-Дело" c 2008 года на рынке строительства в Дмитрове

IDEA 196

Стоимость проекта от:
76 050 ₽
БЕСПЛАТНО! ПРИ ЗАКАЗЕ СТРОИТЕЛЬСТВА
Стоимость строительства от:
11 147 160 ₽
Артикул ART-16196
Дата 25.12.2025
Архитектурный стиль Шале
Количество надземных этажей 2
Круглогодичное проживание Да
Площадь дома 169 м2
Санузлы 3
Спальни 4

Описание

Идея 196 — это современный оазис для тех, кто ценит комфорт и неповторимый шарм шале. Два надземных этажа, обрамленные гнущимися кромками двускатной крыши, открывают просторные и светлые помещения, в которых легко ощутить уют даже в самый прохладный день. Из окон льется мягкий свет, а внутреннее пространство, выдержанное в натуральных тонах, будто обволакивает жильцов теплом. Привлекательный фасад из сэндвич‑панелей PIR гарантирует энергоэффективность: теплое летнее солнце и прованские морозы обойдутся без лишних затрат. Отсутствие балконов, веранд и прицепных гаражей не уменьшает практичности: все необходимые зоны вынесены внутрь, а площадка сразу же переходит в живописную, ухоженную террасу. Именно здесь каждый вечер можно провести у костра или устроить семейный ужин под звездами, наслаждаясь тишиной и природой. Шале‑стиль придаёт дому элегантную, но доступную атмосферу, а двускатная крыша, будто покрытая снежной шапкой, при этом остаётся функциональной и современной. Идея 196 — это ваш новый дом там, где каждый уголок дарит вдохновение, а разумный дизайн подстраивается под все сезоны. Семейные уединения, творческие встречи и простое наслаждение жизнью в комфорте, который только истинный шале может предложить. Вложитесь в дом, где гармония и тепло встречаются в каждом квадратном метре.

Характеристики дома

Архитектурный стиль
Автоматизированное регулирование параметров теплоносителя
Нет
Балконы/лоджии
Отсутствуют
Чердачное помещение
Нет
Датчики протечки воды
Нет
Эксплуатируемая или зеленая кровля
Нет
Электроснабжение
Центральное
Газоснабжение
Не предусмотрено
Изоляция воздушного шума
Да
Камин
Нет
Класс энергоэффективности
-
Класс энергосбережения
-
Количество надземных этажей
2
Круглогодичное проживание
Да
Материал кровли
Металлочерепица
Материал перекрытий
Деревянные
Материал внешних стен
Материал внутренних перегородок
Гипсокартонные
Модульное строительство с конструкциями заводского изготовления
Нет
Объем надземной части
483 м3
Основной материал фасадов
Сайдинг
Отопление
Индивидуальное
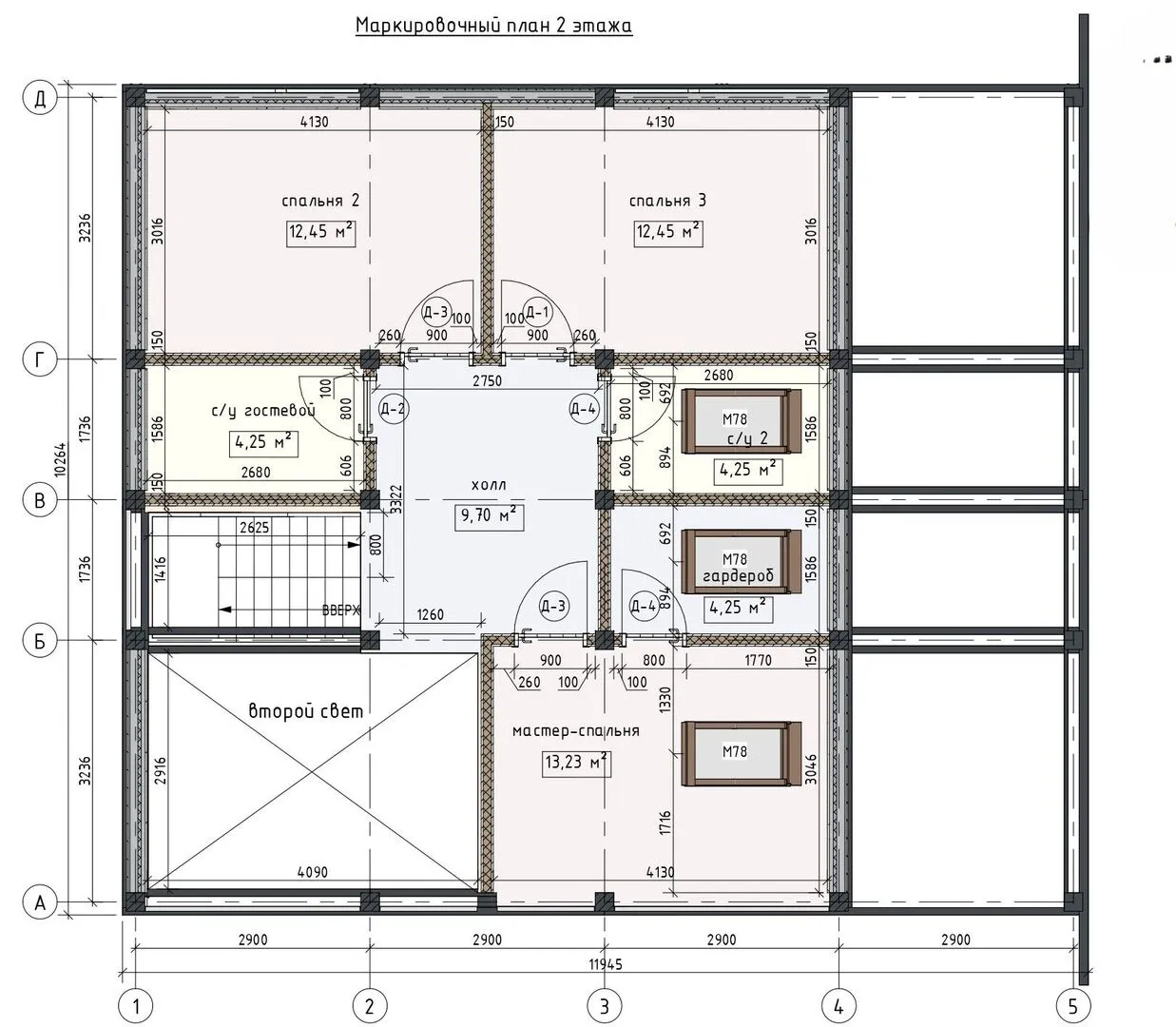
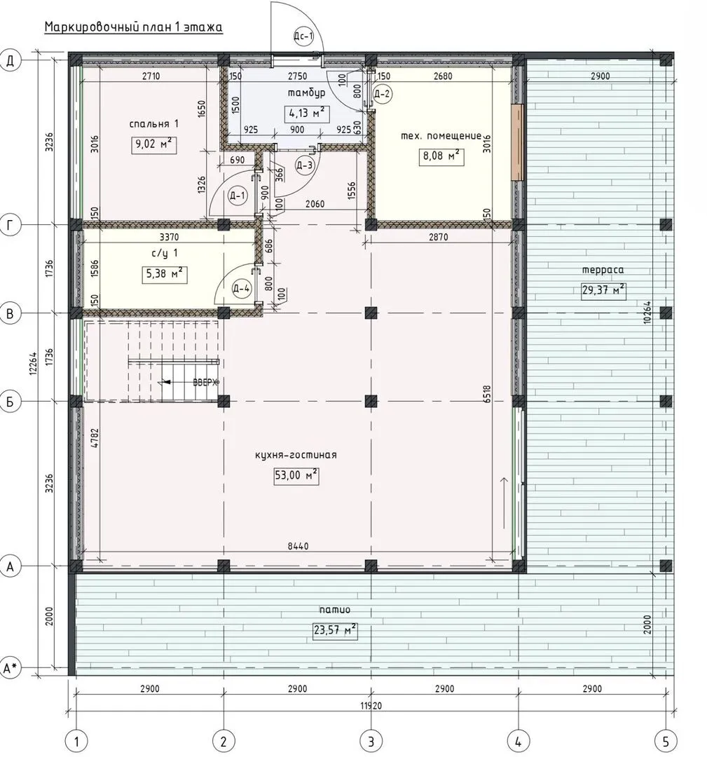
Площадь дома
169 м2
Площадь застройки
108 м2
Подвальное помещение
Нет
Показатель компактности здания
-
Приборы учета тепловой энергии
Нет
Пристроенный гараж/крытая автостоянка
Нет
Противопожарная система
Нет
Санузлы
3
Совмещенная кухня-гостиная
Да
Спальни
4
Терраса
Да
Тип фундамента
Свайный
Тип кровли
Толщина внешних стен
230 мм
Толщина внутренних перегородок
148 мм
Улучшенные шумовые характеристики
Да
Вентиляция
Естественная
Веранда
Нет
Водоотведение
Локальные очистные сооружения
Водоснабжение
Индивидуальное
Высота дома
6.75 м
Высота потолков
2.75 м

Планировка

Фасад дома

Александр

Закажите выезд инженера

Александр

Выездной инженер
Закажите выезд инженера для точной диагностики и профессиональной консультации по инженерным системам. Специалист приедет в удобное время, проведёт осмотр, рассчитает стоимость работ и подберёт оптимальные решения для вашего дома.


    Похожие проекты

    Ипотека и
    рассрочка
    Одноэтажный жилой дом СВ-134
    Стоимость от:
    7 936 720
    Проект от: 52 200
    Этажей 1
    Санузлы 1
    Спальни 3
    Смотреть
    Ипотека и
    рассрочка
    Каменный дом «Волна»
    Стоимость от:
    5 179 900
    Проект от: 29 250
    Этажей 1
    Санузлы 1
    Спальни 2
    Смотреть
    Ипотека и
    рассрочка
    Дом из бруса с террасой и мансардным этажом
    Стоимость от:
    10 341 660
    Проект от: 70 650
    Этажей 2
    Санузлы 1
    Спальни 3
    Смотреть
    Ипотека и
    рассрочка
    Проект двухэтажного дома №25 (11,3х8,0 м)
    Стоимость от:
    10 854 000
    Проект от: 65 250
    Этажей 2
    Санузлы 2
    Спальни 4
    Смотреть
    Ипотека и
    рассрочка
    КД «Калининград №10-22»
    Стоимость от:
    9 639 060
    Проект от: 72 450
    Этажей 2
    Санузлы 2
    Спальни 4
    Смотреть
    Ипотека и
    рассрочка
    Монолитный одноэтажный дом L
    Стоимость от:
    6 020 960
    Проект от: 39 600
    Этажей 1
    Санузлы 2
    Спальни 3
    Смотреть

    Как узнать стоимость дома

    back
    Оставляете заявку
    Вы заполняете форму на сайте или звоните нам. Менеджер Лайвкрафт связывается с вами для уточнения деталей: тип дома, площадь, материалы, участок строительства.
    back
    Консультация и подбор решения
    Наш специалист помогает выбрать оптимальный тип дома и конструкцию с учётом бюджета, сроков и целей — будь то дом для постоянного проживания или дача.
    back
    Расчёт предварительной стоимости
    Инженер делает первичный расчёт стоимости строительства по вашим параметрам: фундамент, коробка, кровля, отделка. Вы получаете смету с разбивкой по этапам.
    back
    Корректировка и утверждение сметы
    При необходимости вносим изменения — например, замену материалов или сокращение этапов. После согласования формируется окончательная фиксированная смета.
    back
    Заключение договора и старт работ
    После утверждения сметы заключаем официальный договор с гарантией. Вы получаете прозрачный график и точную стоимость — без скрытых расходов.

    Заказать конусльтацию по:IDEA 196

    Фото 1 IDEA 196


      Наши
      контакты

      Дмитров
      Опорный проезд 28Б
      (индустриальный парк Ниагара)
      9:00 до 18:00

      Корзина