4.9
Рейтинг на основании 120 отзывов
Дмитров
Опорный проезд 28Б
(индустриальный парк Ниагара)
Бренд "Дмитров-Дело" c 2008 года на рынке строительства в Дмитрове
Звоните 9:00 до 18:00 8 (915) 055-33-61
Бренд "Дмитров-Дело" c 2008 года на рынке строительства в Дмитрове

IDEA 69

Стоимость проекта от:
51 300 ₽
БЕСПЛАТНО! ПРИ ЗАКАЗЕ СТРОИТЕЛЬСТВА
Стоимость строительства от:
7 235 580 ₽
Артикул ART-15719
Дата 25.12.2025
Архитектурный стиль Фахверк
Количество надземных этажей 1
Круглогодичное проживание Да
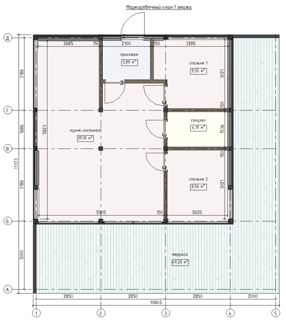
Площадь дома 114 м2
Санузлы 1
Спальни 2

Описание

Представляем вам уютный и современный дом IDEA 69 – идеальное сочетание традиционного русского колорита и современных технологий. Понимая, как важно за каждым уголком чувствовать себя комфортно, мы создали многолетнюю, круглогодичную жилую площадку. На первом этаже располагается просторная гостиная с большим окном, открывающим чудесный вид на прилегающую террасу, где можно насладиться солнечным вечером без лишних хлопот. Гости, влюбленные в стиль «фахверк», оценят гармоничное сочетание классической деревянной фасадной отделки с экологически чистыми материалами – сэндвич‑панель PIR, которая обеспечивает отличную теплоизоляцию и устойчивость во всей жизни. Дом IDEA 69 не имеет прицепов, гаража и чердака, что позволило полностью сосредоточиться на внутреннем пространстве и функциональном дизайне. Внутри – уютный, светлый и обжитый, каждая деталь продумана: от изысканных панелей до удобных зон для работы и отдыха. Ваша новая квартира приглашает наслаждаться жизнью в любое время года, а с открытой террасой вы почувствуете вкус простоты и свободы. Это ваш новый дом, где традиция встречается с инновацией, а каждый день наполняется теплом и уютом.

Характеристики дома

Архитектурный стиль
Автоматизированное регулирование параметров теплоносителя
Да
Балконы/лоджии
Отсутствуют
Чердачное помещение
Нет
Датчики протечки воды
Нет
Эксплуатируемая или зеленая кровля
Нет
Электроснабжение
Центральное
Газоснабжение
2 варианта
Изоляция воздушного шума
Да
Камин
Нет
Класс энергоэффективности
A++
Класс энергосбережения
A++
Количество надземных этажей
1
Круглогодичное проживание
Да
Материал кровли
Металлочерепица
Материал перекрытий
Деревянные
Материал внешних стен
Материал внутренних перегородок
Гипсокартонные
Модульное строительство с конструкциями заводского изготовления
Нет
Объем надземной части
-
Основной материал фасадов
Сайдинг
Отопление
2 варианта
Площадь дома
114 м2
Площадь застройки
65 м2
Подвальное помещение
Нет
Показатель компактности здания
1
Приборы учета тепловой энергии
Да
Пристроенный гараж/крытая автостоянка
Нет
Противопожарная система
Нет
Санузлы
1
Совмещенная кухня-гостиная
Да
Спальни
2
Терраса
Да
Тип фундамента
Свайный
Тип кровли
Толщина внешних стен
180 мм
Толщина внутренних перегородок
148 мм
Улучшенные шумовые характеристики
Да
Вентиляция
Естественная
Веранда
Нет
Водоотведение
2 варианта
Водоснабжение
2 варианта
Высота дома
4.49 м
Высота потолков
4 м

Планировка

Фасад дома

Александр

Закажите выезд инженера

Александр

Выездной инженер
Закажите выезд инженера для точной диагностики и профессиональной консультации по инженерным системам. Специалист приедет в удобное время, проведёт осмотр, рассчитает стоимость работ и подберёт оптимальные решения для вашего дома.


    Похожие проекты

    Ипотека и
    рассрочка
    Каркасный дом Проект-1
    Стоимость от:
    7 696 260
    Проект от: 62 100
    Этажей 1
    Санузлы 2
    Спальни 4
    Смотреть
    Ипотека и
    рассрочка
    Смоленск
    Стоимость от:
    4 915 080
    Проект от: 36 900
    Этажей 2
    Санузлы 1
    Спальни 3
    Смотреть
    Ипотека и
    рассрочка
    Омега
    Стоимость от:
    9 990 860
    Проект от: 59 850
    Этажей 1
    Санузлы 2
    Спальни 3
    Смотреть
    Ипотека и
    рассрочка
    Скандинавия-5
    Стоимость от:
    4 675 320
    Проект от: 35 100
    Этажей 2
    Санузлы 1
    Спальни 2
    Смотреть
    Ипотека и
    рассрочка
    Амбер
    Стоимость от:
    4 664 440
    Проект от: 27 900
    Этажей 1
    Санузлы 1
    Спальни 1
    Смотреть
    Ипотека и
    рассрочка
    Одноэтажный дом Fixplans — 0674
    Стоимость от:
    17 372 520
    Проект от: 110 700
    Этажей 1
    Санузлы 2
    Спальни 4
    Смотреть

    Как узнать стоимость дома

    back
    Оставляете заявку
    Вы заполняете форму на сайте или звоните нам. Менеджер Лайвкрафт связывается с вами для уточнения деталей: тип дома, площадь, материалы, участок строительства.
    back
    Консультация и подбор решения
    Наш специалист помогает выбрать оптимальный тип дома и конструкцию с учётом бюджета, сроков и целей — будь то дом для постоянного проживания или дача.
    back
    Расчёт предварительной стоимости
    Инженер делает первичный расчёт стоимости строительства по вашим параметрам: фундамент, коробка, кровля, отделка. Вы получаете смету с разбивкой по этапам.
    back
    Корректировка и утверждение сметы
    При необходимости вносим изменения — например, замену материалов или сокращение этапов. После согласования формируется окончательная фиксированная смета.
    back
    Заключение договора и старт работ
    После утверждения сметы заключаем официальный договор с гарантией. Вы получаете прозрачный график и точную стоимость — без скрытых расходов.

    Заказать конусльтацию по:IDEA 69

    Фото 1 IDEA 69


      Наши
      контакты

      Дмитров
      Опорный проезд 28Б
      (индустриальный парк Ниагара)
      9:00 до 18:00

      Корзина