4.9
Рейтинг на основании 120 отзывов
Дмитров
Опорный проезд 28Б
(индустриальный парк Ниагара)
Бренд "Дмитров-Дело" c 2008 года на рынке строительства в Дмитрове
Звоните 9:00 до 18:00 8 (915) 055-33-61
Бренд "Дмитров-Дело" c 2008 года на рынке строительства в Дмитрове

Индивидуальный жилой дом 144

Стоимость проекта от:
71 100 ₽
Стоимость строительства от:
12 565 960 ₽
Артикул ART-14631
Дата 25.12.2025
Архитектурный стиль Европейский
Количество надземных этажей 1
Круглогодичное проживание Да
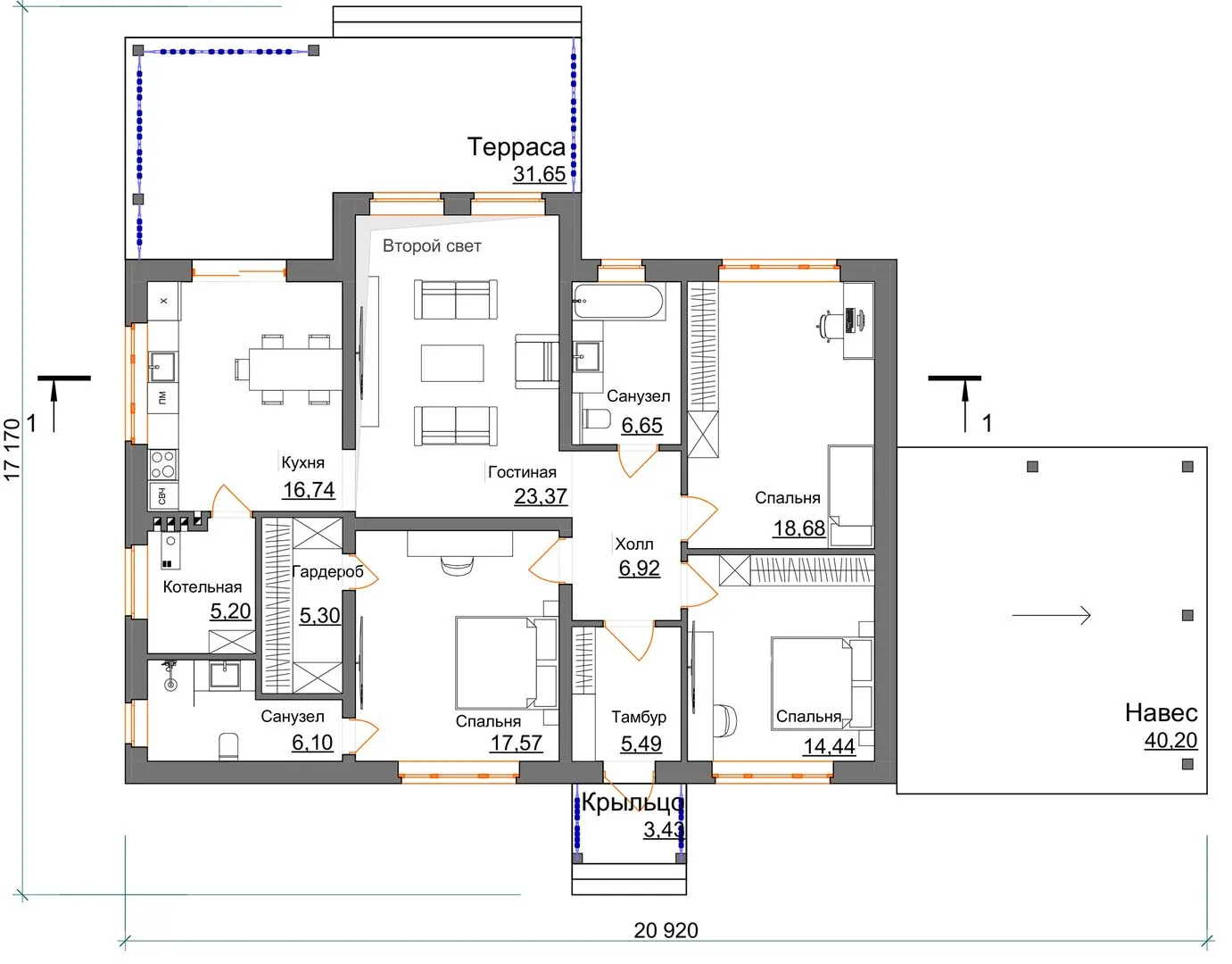
Площадь дома 158 м2
Санузлы 2
Спальни 3

Описание

Индивидуальный жилой дом площадью 144 м², выполненный в классическом европейском стиле, создает ощущение уюта и надежности с первого взгляда. Он рассчитан на круглогодичное проживание — в нём всегда тёпло в прохладные зимы, а прохлада остаётся в летний дождь благодаря качественной комбинированной крыше. Стены из моста кирпича не только обеспечивают отличную теплоизоляцию, но и придают дому неповторимый характер, подчёркивая элегантность классической архитектуры. В доме ровно один надземный этаж, но это не помешает вам насладиться просторными комнатами, продуманными площадями и большим количеством естественного света. Отсутствие балконов, лоджий и веранд позволяет полностью сосредоточиться на внутренних ощущениях — светлый, открытый план создаёт атмосферу простора и свободы. Одна из главных особенностей — собственная крытая автостоянка в виде прикреплённого гаража, где ваш автомобиль будет защищён от непогоды, а также удобный доступ к дому. И, конечно же, у вас найдётся место на своей террасе — идеальная площадка для уютных летних ужинов, садовых вечеров или просто отдыха, наслаждаясь свежим воздухом и видом на прилегающий ландшафт. Дом рассчитан на современный комфорт и удобство, сочетая в себе строгую европейскую эстетику, практичность и уют, чтобы стать вашим местом отдыха в любой сезон.

Характеристики дома

Архитектурный стиль
Европейский
Автоматизированное регулирование параметров теплоносителя
Нет
Балконы/лоджии
Отсутствуют
Чердачное помещение
Нет
Датчики протечки воды
Нет
Эксплуатируемая или зеленая кровля
Нет
Электроснабжение
Центральное
Газоснабжение
Центральное
Изоляция воздушного шума
Нет
Камин
Нет
Класс энергоэффективности
-
Класс энергосбережения
-
Количество надземных этажей
1
Круглогодичное проживание
Да
Материал кровли
Металлочерепица
Материал перекрытий
Деревянные
Материал внешних стен
Кирпич
Материал внутренних перегородок
Кирпичные
Модульное строительство с конструкциями заводского изготовления
Нет
Объем надземной части
453 м3
Основной материал фасадов
Облицовочный кирпич
Отопление
Индивидуальное
Площадь дома
158 м2
Площадь застройки
201 м2
Подвальное помещение
Нет
Показатель компактности здания
-
Приборы учета тепловой энергии
Нет
Пристроенный гараж/крытая автостоянка
Да
Противопожарная система
Нет
Санузлы
2
Совмещенная кухня-гостиная
Нет
Спальни
3
Терраса
Да
Тип фундамента
Ленточный
Тип кровли
Комбинированная
Толщина внешних стен
450 мм
Толщина внутренних перегородок
150 мм
Улучшенные шумовые характеристики
Нет
Вентиляция
Естественная
Веранда
Нет
Водоотведение
Центральное
Водоснабжение
Центральное
Высота дома
5 м
Высота потолков
3 м

Планировка

Фасад дома

Александр

Закажите выезд инженера

Александр

Выездной инженер
Закажите выезд инженера для точной диагностики и профессиональной консультации по инженерным системам. Специалист приедет в удобное время, проведёт осмотр, рассчитает стоимость работ и подберёт оптимальные решения для вашего дома.


    Похожие проекты

    Ипотека и
    рассрочка
    СТРЕМГЛАВ ИРЛЭНД
    Стоимость от:
    6 773 580
    Проект от: 44 550
    Этажей 1
    Санузлы 1
    Спальни 2
    Смотреть
    Ипотека и
    рассрочка
    Двухэтажный ВН 116
    Стоимость от:
    8 255 040
    Проект от: 52 200
    Этажей 2
    Санузлы 2
    Спальни 4
    Смотреть
    Ипотека и
    рассрочка
    Одноэтажный жилой дом «Эконом-100»
    Стоимость от:
    7 740 260
    Проект от: 46 350
    Этажей 1
    Санузлы 1
    Спальни 3
    Смотреть
    Ипотека и
    рассрочка
    С 10
    Стоимость от:
    14 071 640
    Проект от: 81 900
    Этажей 1
    Санузлы 1
    Спальни 3
    Смотреть
    Ипотека и
    рассрочка
    Двухэтажный дом «Алистер»
    Стоимость от:
    22 102 080
    Проект от: 144 900
    Этажей 2
    Санузлы 5
    Спальни 4
    Смотреть
    Ипотека и
    рассрочка
    П 1-95
    Стоимость от:
    6 355 800
    Проект от: 40 500
    Этажей 1
    Санузлы 1
    Спальни 3
    Смотреть

    Как узнать стоимость дома

    back
    Оставляете заявку
    Вы заполняете форму на сайте или звоните нам. Менеджер Лайвкрафт связывается с вами для уточнения деталей: тип дома, площадь, материалы, участок строительства.
    back
    Консультация и подбор решения
    Наш специалист помогает выбрать оптимальный тип дома и конструкцию с учётом бюджета, сроков и целей — будь то дом для постоянного проживания или дача.
    back
    Расчёт предварительной стоимости
    Инженер делает первичный расчёт стоимости строительства по вашим параметрам: фундамент, коробка, кровля, отделка. Вы получаете смету с разбивкой по этапам.
    back
    Корректировка и утверждение сметы
    При необходимости вносим изменения — например, замену материалов или сокращение этапов. После согласования формируется окончательная фиксированная смета.
    back
    Заключение договора и старт работ
    После утверждения сметы заключаем официальный договор с гарантией. Вы получаете прозрачный график и точную стоимость — без скрытых расходов.

    Заказать конусльтацию по:Индивидуальный жилой дом 144

    Фото 1 Индивидуальный жилой дом 144


      Наши
      контакты

      Дмитров
      Опорный проезд 28Б
      (индустриальный парк Ниагара)
      9:00 до 18:00