4.9
Рейтинг на основании 120 отзывов
Дмитров
Опорный проезд 28Б
(индустриальный парк Ниагара)
Бренд "Дмитров-Дело" c 2008 года на рынке строительства в Дмитрове
Звоните 9:00 до 18:00 8 (915) 055-33-61
Бренд "Дмитров-Дело" c 2008 года на рынке строительства в Дмитрове

Индивидуальный жилой дом Астрахаус- комфорт

Стоимость проекта от:
58 500 ₽
БЕСПЛАТНО! ПРИ ЗАКАЗЕ СТРОИТЕЛЬСТВА
Стоимость строительства от:
8 923 200 ₽
Артикул ART-15579
Дата 25.12.2025
Архитектурный стиль Классический
Количество надземных этажей 2
Круглогодичное проживание Да
Площадь дома 130 м2
Санузлы 2
Спальни 4

Описание

Дверцу нашего нового проекта «Астрахаус‑комфорт» открывается просторная и светлая веранда, где первый утренний кофе обретает особый аромат. Классический стиль, выполненный из высококачественных газобетонных блоков, придаёт дому элегантность и надёжность: стены прочны и изолированы, а широкая терраса вписывается в любой ритм семейной жизни. Всё это сочетание гармонично обнимает две открытые этажности, где каждый этаж — как отдельный уголок уюта. Внутреннее пространство «Астрахаус‑комфорт» создаёт атмосферу круглетарпного обитания, обеспечивая тепло и комфорт в любую пору года. Круглогодичное проживание гарантировано благодаря грамотной теплоизоляции и устойчивой двускатной кровле, защищающей от непогоды. Просторные комнаты, светлые окна и продуманная планировка превращают дом в идеальное место для долгих семейных встреч, уютных вечеров и невзрачных дней. Отсутствие отдельных балконов, лоджий и пристроенного гаража делает «Астрахаус‑комфорт» настоящим лаконичным оазисом: в этом доме главное — это комфорт и чистота жизни. Он дарит всем желающим тихий уголок уединения и яркие эмоции семейных праздников. Ваша сказка начинается здесь, в уютном и гармоничном доме «Астрахаус‑комфорт».

Характеристики дома

Архитектурный стиль
Автоматизированное регулирование параметров теплоносителя
Да
Балконы/лоджии
Отсутствуют
Чердачное помещение
Нет
Датчики протечки воды
Нет
Эксплуатируемая или зеленая кровля
Нет
Электроснабжение
Центральное
Газоснабжение
Центральное
Изоляция воздушного шума
Нет
Камин
Нет
Класс энергоэффективности
-
Класс энергосбережения
-
Количество надземных этажей
2
Круглогодичное проживание
Да
Материал кровли
Металлические листовые гофрированные профили
Материал перекрытий
Иной вид материалов перекрытий
Материал внешних стен
Материал внутренних перегородок
Блочные
Модульное строительство с конструкциями заводского изготовления
Нет
Объем надземной части
525 м3
Основной материал фасадов
Штукатурка
Отопление
Индивидуальное
Площадь дома
130 м2
Площадь застройки
96 м2
Подвальное помещение
Нет
Показатель компактности здания
-
Приборы учета тепловой энергии
Нет
Пристроенный гараж/крытая автостоянка
Нет
Противопожарная система
Нет
Санузлы
2
Совмещенная кухня-гостиная
Да
Спальни
4
Терраса
Да
Тип фундамента
Плитный
Тип кровли
Толщина внешних стен
300 мм
Толщина внутренних перегородок
150 мм
Улучшенные шумовые характеристики
Нет
Вентиляция
Естественная
Веранда
Нет
Водоотведение
Локальные очистные сооружения
Водоснабжение
Центральное
Высота дома
7.05 м
Высота потолков
2.95 м

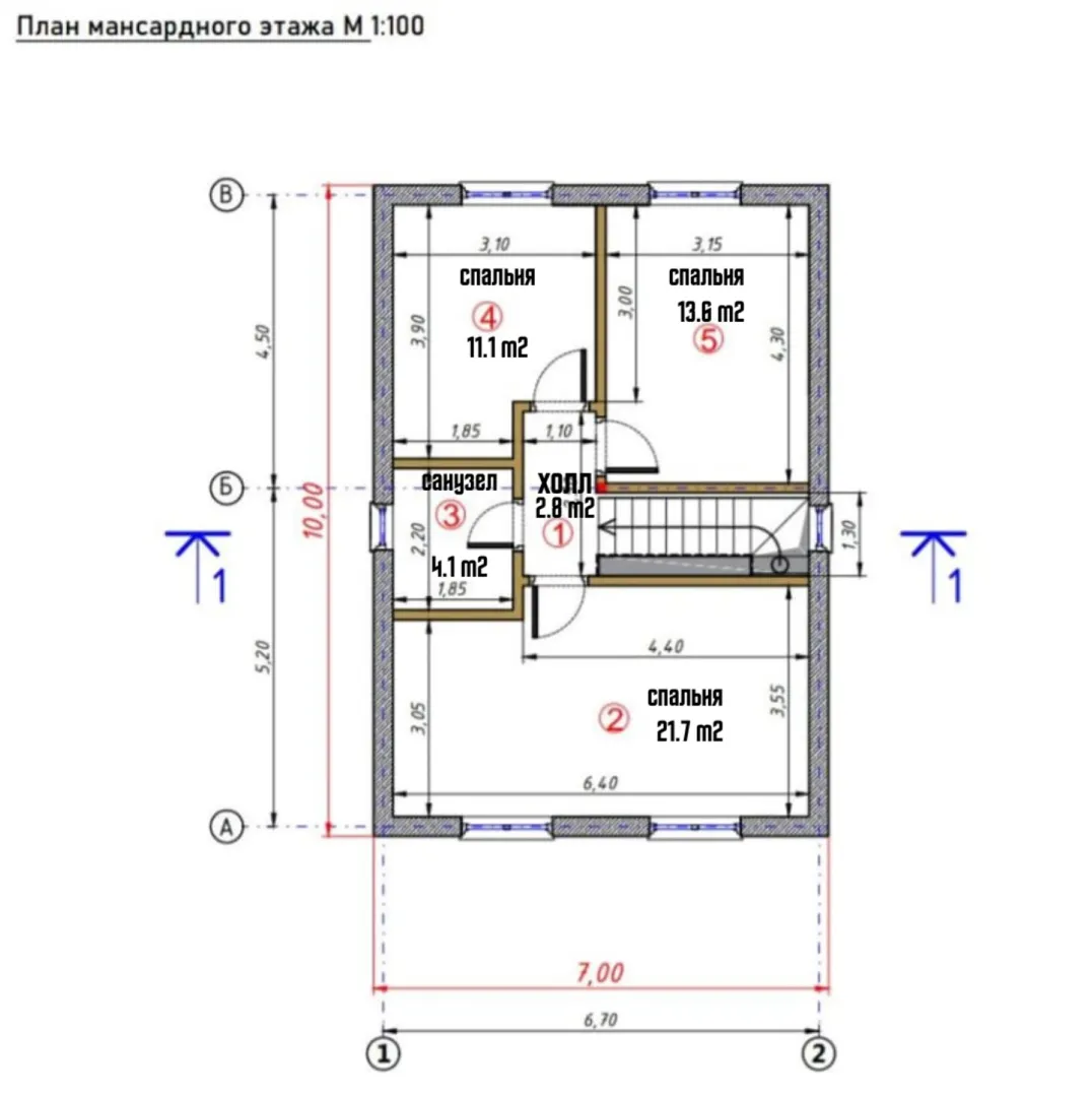
Планировка

Фасад дома

Александр

Закажите выезд инженера

Александр

Выездной инженер
Закажите выезд инженера для точной диагностики и профессиональной консультации по инженерным системам. Специалист приедет в удобное время, проведёт осмотр, рассчитает стоимость работ и подберёт оптимальные решения для вашего дома.


    Похожие проекты

    Ипотека и
    рассрочка
    Загородны дом «Карелия 79»
    Стоимость от:
    3 596 400
    Проект от: 27 000
    Этажей 2
    Санузлы 1
    Спальни 2
    Смотреть
    Ипотека и
    рассрочка
    Проект №292-1
    Стоимость от:
    10 028 040
    Проект от: 63 900
    Этажей 1
    Санузлы 2
    Спальни 3
    Смотреть
    Ипотека и
    рассрочка
    Загородный одноэтажный дом «Вилладж»
    Стоимость от:
    9 915 840
    Проект от: 59 400
    Этажей 1
    Санузлы 2
    Спальни 3
    Смотреть
    Ипотека и
    рассрочка
    Каркасный дом 9х9 Гарден
    Стоимость от:
    7 912 080
    Проект от: 59 400
    Этажей 2
    Санузлы 2
    Спальни 5
    Смотреть
    Ипотека и
    рассрочка
    Дом «ИЖС-Комфорт»
    Стоимость от:
    7 804 940
    Проект от: 48 150
    Этажей 1
    Санузлы 2
    Спальни 3
    Смотреть
    Ипотека и
    рассрочка
    S.Dom-42-1
    Стоимость от:
    3 492 390
    Проект от: 25 650
    Этажей 1
    Санузлы 1
    Спальни 1
    Смотреть

    Как узнать стоимость дома

    back
    Оставляете заявку
    Вы заполняете форму на сайте или звоните нам. Менеджер Лайвкрафт связывается с вами для уточнения деталей: тип дома, площадь, материалы, участок строительства.
    back
    Консультация и подбор решения
    Наш специалист помогает выбрать оптимальный тип дома и конструкцию с учётом бюджета, сроков и целей — будь то дом для постоянного проживания или дача.
    back
    Расчёт предварительной стоимости
    Инженер делает первичный расчёт стоимости строительства по вашим параметрам: фундамент, коробка, кровля, отделка. Вы получаете смету с разбивкой по этапам.
    back
    Корректировка и утверждение сметы
    При необходимости вносим изменения — например, замену материалов или сокращение этапов. После согласования формируется окончательная фиксированная смета.
    back
    Заключение договора и старт работ
    После утверждения сметы заключаем официальный договор с гарантией. Вы получаете прозрачный график и точную стоимость — без скрытых расходов.

    Заказать конусльтацию по:Индивидуальный жилой дом Астрахаус- комфорт

    Фото 1 Индивидуальный жилой дом Астрахаус- комфорт


      Наши
      контакты

      Дмитров
      Опорный проезд 28Б
      (индустриальный парк Ниагара)
      9:00 до 18:00

      Корзина