4.9
Рейтинг на основании 120 отзывов
Дмитров
Опорный проезд 28Б
(индустриальный парк Ниагара)
Бренд "Дмитров-Дело" c 2008 года на рынке строительства в Дмитрове
Звоните 9:00 до 18:00 8 (915) 055-33-61
Бренд "Дмитров-Дело" c 2008 года на рынке строительства в Дмитрове

Индивидуальный жилой дом Барн 90

Стоимость проекта от:
36 000 ₽
БЕСПЛАТНО! ПРИ ЗАКАЗЕ СТРОИТЕЛЬСТВА
Стоимость строительства от:
4 448 400 ₽
Артикул ART-11366
Дата 25.12.2025
Архитектурный стиль Барнхаус
Количество надземных этажей 1
Круглогодичное проживание Да
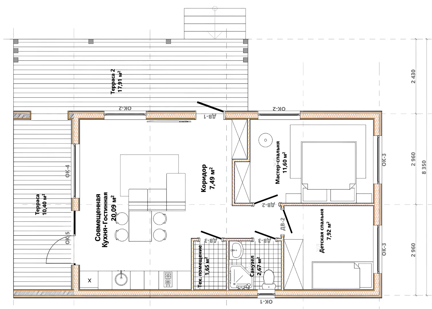
Площадь дома 80 м2
Санузлы 1
Спальни 2

Описание

**Барн‑90 – ваше собственное произведение искусства в стиле Barnhouse, где каждая деталь пропитана теплом и уютом.** На единственном уровне размещения удобно устроено открытое плановое решение: просторное, но при этом компактное, идеальное как для семейной жизни, так и для работы в домашнем офисе. Стены, издаваны из деревянных рам, создают атмосферу природных оттенков и лёгкой тёплой текстуры, в полной гармонии с внешним ландшафтом. Круглогодичное проживание обеспечено утеплённой конструкцией и современными оконными системами, а двускатная крыша придаёт дому элегантный, но при этом практичный вид. **Экономичность и функциональность – ключ к вашему комфорту.** Отсутствие лишних балконов, лоджий, веранд и прицепных гаражей позволяет сосредоточиться на главном: просторном внутреннем пространстве и внешней террасе, где можно отдохнуть, окружённый зелёным полем. Терраса становится настоящим продолжением квартиры, предлагая идеальное место для утреннего кофе или вечернего отдыха под звёздами. **Эстетика, которая вдохновляет.** Barnhouse стиль, благодаря своему лаконичному и органическому оформлению, открывает ощущение «природы внутри дома». В сочетании с деревянными призмами и изысканным двускатным покрытием создаётся вид, будто вы живёте в самом сердце осеннего парка, но при этом имеете доступ к современным удобствам. Этот дом не просто место проживания – это ваш личный оазис, где каждый элемент подчёркивает вашу уникальность.

Характеристики дома

Архитектурный стиль
Автоматизированное регулирование параметров теплоносителя
Нет
Балконы/лоджии
Отсутствуют
Чердачное помещение
Нет
Датчики протечки воды
Нет
Эксплуатируемая или зеленая кровля
Нет
Электроснабжение
Индивидуальное
Газоснабжение
Индивидуальное
Изоляция воздушного шума
Нет
Камин
Нет
Класс энергоэффективности
-
Класс энергосбережения
-
Количество надземных этажей
1
Круглогодичное проживание
Да
Материал кровли
Металлические листовые гофрированные профили
Материал перекрытий
Деревянные
Материал внешних стен
Материал внутренних перегородок
Деревянные
Модульное строительство с конструкциями заводского изготовления
Нет
Объем надземной части
212 м3
Основной материал фасадов
Дерево
Отопление
Индивидуальное
Площадь дома
80 м2
Площадь застройки
80 м2
Подвальное помещение
Нет
Показатель компактности здания
-
Приборы учета тепловой энергии
Нет
Пристроенный гараж/крытая автостоянка
Нет
Противопожарная система
Да
Санузлы
1
Совмещенная кухня-гостиная
Да
Спальни
2
Терраса
Да
Тип фундамента
Свайно-винтовой
Тип кровли
Толщина внешних стен
150 мм
Толщина внутренних перегородок
100 мм
Улучшенные шумовые характеристики
Нет
Вентиляция
2 варианта
Веранда
Нет
Водоотведение
Локальные очистные сооружения
Водоснабжение
Индивидуальное
Высота дома
3.1 м
Высота потолков
2.65 м

Планировка

Фасад дома

Александр

Закажите выезд инженера

Александр

Выездной инженер
Закажите выезд инженера для точной диагностики и профессиональной консультации по инженерным системам. Специалист приедет в удобное время, проведёт осмотр, рассчитает стоимость работ и подберёт оптимальные решения для вашего дома.


    Похожие проекты

    Ипотека и
    рассрочка
    Загородный дом АС-207
    Стоимость от:
    18 268 140
    Проект от: 120 150
    Этажей 1
    Санузлы 3
    Спальни 4
    Смотреть
    Ипотека и
    рассрочка
    Бавария 95
    Стоимость от:
    7 140 100
    Проект от: 42 750
    Этажей 1
    Санузлы 1
    Спальни 3
    Смотреть
    Ипотека и
    рассрочка
    D134-2
    Стоимость от:
    6 388 320
    Проект от: 44 100
    Этажей 2
    Санузлы 2
    Спальни 2
    Смотреть
    Ипотека и
    рассрочка
    Каркасный дом «Джела»
    Стоимость от:
    6 666 550
    Проект от: 51 750
    Этажей 1
    Санузлы 2
    Спальни 3
    Смотреть
    Ипотека и
    рассрочка
    Авторский проект «Майпо 3.0»
    Стоимость от:
    4 237 200
    Проект от: 27 000
    Этажей 1
    Санузлы 1
    Спальни 2
    Смотреть
    Ипотека и
    рассрочка
    Арболитовый Комфорт с гаражом и террасой
    Стоимость от:
    9 284 000
    Проект от: 54 000
    Этажей 1
    Санузлы 1
    Спальни 2
    Смотреть

    Как узнать стоимость дома

    back
    Оставляете заявку
    Вы заполняете форму на сайте или звоните нам. Менеджер Лайвкрафт связывается с вами для уточнения деталей: тип дома, площадь, материалы, участок строительства.
    back
    Консультация и подбор решения
    Наш специалист помогает выбрать оптимальный тип дома и конструкцию с учётом бюджета, сроков и целей — будь то дом для постоянного проживания или дача.
    back
    Расчёт предварительной стоимости
    Инженер делает первичный расчёт стоимости строительства по вашим параметрам: фундамент, коробка, кровля, отделка. Вы получаете смету с разбивкой по этапам.
    back
    Корректировка и утверждение сметы
    При необходимости вносим изменения — например, замену материалов или сокращение этапов. После согласования формируется окончательная фиксированная смета.
    back
    Заключение договора и старт работ
    После утверждения сметы заключаем официальный договор с гарантией. Вы получаете прозрачный график и точную стоимость — без скрытых расходов.

    Заказать конусльтацию по:Индивидуальный жилой дом Барн 90

    Фото 1 Индивидуальный жилой дом Барн 90


      Наши
      контакты

      Дмитров
      Опорный проезд 28Б
      (индустриальный парк Ниагара)
      9:00 до 18:00

      Корзина