4.9
Рейтинг на основании 120 отзывов
Дмитров
Опорный проезд 28Б
(индустриальный парк Ниагара)
Бренд "Дмитров-Дело" c 2008 года на рынке строительства в Дмитрове
Звоните 9:00 до 18:00 8 (915) 055-33-61
Бренд "Дмитров-Дело" c 2008 года на рынке строительства в Дмитрове

Индивидуальный жилой дом Кантри

Стоимость проекта от:
53 100 ₽
Стоимость строительства от:
9 389 160 ₽
Артикул ART-16276
Дата 26.12.2025
Архитектурный стиль Классический
Количество надземных этажей 1
Круглогодичное проживание Да
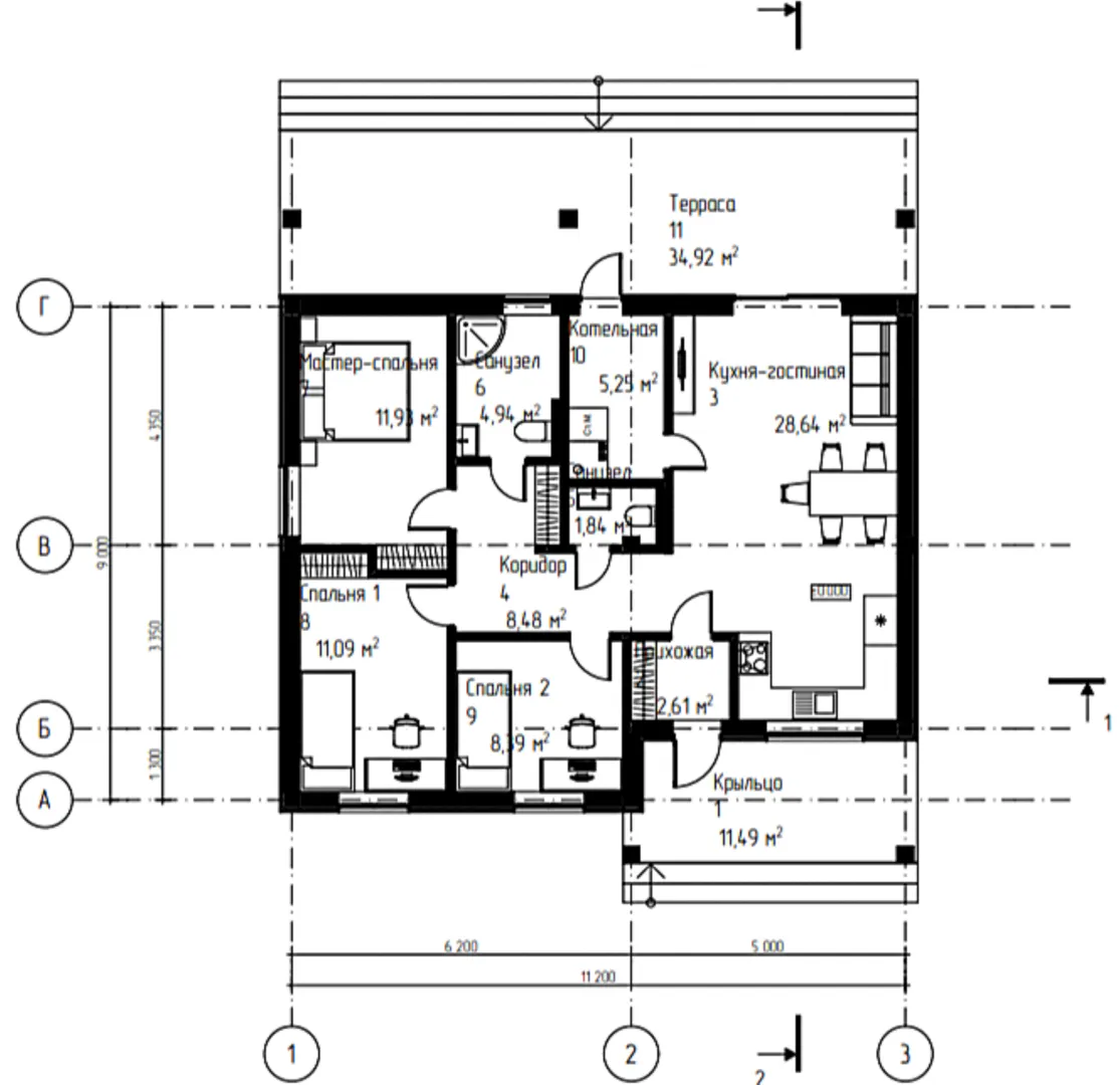
Площадь дома 118 м2
Санузлы 2
Спальни 3

Описание

Нарядный, но при этом невероятно уютный дом в стиле «Кантри» — ваш идеальный уголок на природе. Первый (и единственный) этаж открывает просторную гостиную, где мягкие светильники и теплое дерево сочетаются с большими окнами, наполняющими пространство естественным светом. Уютные зоны создают ощущение домашнего тепла: от обеденной зоны, где каждое воскресенье будет звучать аромат свежего хлеба, до тихого уголка для чтения под тёплым потоком света. Благодаря классической архитектуре и газобетонным блокам внешних стен, конструкция прочна и тепло- и звукоизолирована, что позволяет наслаждаться уединением как в жаркие летние дни, так и в холодные зимы. Весь дом спроектирован под круглогодичное проживание: изящный двускатный череп, отталкивающий снег и защищающий от ветра, а также наличие троп, окружения сада и живописной тропы к реке. Вместо традиционной террасы, здесь — великолепная беседка, где можно провести ужин под звездами, собраться с семьёй и друзьями, не думая о балконах, верандах и гаражах. Просторные, но лаконичные входы и внутренние коридоры делают каждый переход в доме легким и свободным от лишних преград. Этот дом — настоящий форт, где гармония стиля и практичности сочетается с ощущением домашнего уюта. Каждый уголок напоминет о шиках и просторах, а чистый и натуральный дизайн будет вдохновлять и радовать вас каждый день. Если вы ищете место, где каждую минуту чувствуете себя дома, даже в самый жаркий летний день, то именно здесь вы найдёте своё идеальное убежище.

Характеристики дома

Архитектурный стиль
Классический
Автоматизированное регулирование параметров теплоносителя
Да
Балконы/лоджии
Отсутствуют
Чердачное помещение
Нет
Датчики протечки воды
Нет
Эксплуатируемая или зеленая кровля
Нет
Электроснабжение
Центральное
Газоснабжение
Не предусмотрено
Изоляция воздушного шума
Нет
Камин
Нет
Класс энергоэффективности
-
Класс энергосбережения
-
Количество надземных этажей
1
Круглогодичное проживание
Да
Материал кровли
Металлочерепица
Материал перекрытий
Деревянные
Материал внешних стен
Газобетонные блоки
Материал внутренних перегородок
Блочные
Модульное строительство с конструкциями заводского изготовления
Нет
Объем надземной части
365 м3
Основной материал фасадов
Штукатурка
Отопление
Индивидуальное
Площадь дома
118 м2
Площадь застройки
129 м2
Подвальное помещение
Нет
Показатель компактности здания
-
Приборы учета тепловой энергии
Нет
Пристроенный гараж/крытая автостоянка
Нет
Противопожарная система
Нет
Санузлы
2
Совмещенная кухня-гостиная
Да
Спальни
3
Терраса
Да
Тип фундамента
Ленточный
Тип кровли
Двускатная
Толщина внешних стен
300 мм
Толщина внутренних перегородок
150 мм
Улучшенные шумовые характеристики
Нет
Вентиляция
Естественная
Веранда
Нет
Водоотведение
Локальные очистные сооружения
Водоснабжение
Центральное
Высота дома
4.8 м
Высота потолков
2.85 м

Планировка

Фасад дома

Александр

Закажите выезд инженера

Александр

Выездной инженер
Закажите выезд инженера для точной диагностики и профессиональной консультации по инженерным системам. Специалист приедет в удобное время, проведёт осмотр, рассчитает стоимость работ и подберёт оптимальные решения для вашего дома.


    Похожие проекты

    Ипотека и
    рассрочка
    СЕРИЯ «БАРНХАУС» ПРОЕКТ КД-19
    Стоимость от:
    7 334 880
    Проект от: 52 650
    Этажей 2
    Санузлы 2
    Спальни 4
    Смотреть
    Ипотека и
    рассрочка
    Валенсия 129
    Стоимость от:
    7 723 860
    Проект от: 58 050
    Этажей 2
    Санузлы 2
    Спальни 4
    Смотреть
    Ипотека и
    рассрочка
    Загородный дом АС-231
    Стоимость от:
    21 347 040
    Проект от: 140 400
    Этажей 1
    Санузлы 3
    Спальни 5
    Смотреть
    Ипотека и
    рассрочка
    Одноэтажный каркасный дом «Венес»
    Стоимость от:
    5 780 500
    Проект от: 45 000
    Этажей 1
    Санузлы 1
    Спальни 3
    Смотреть
    Ипотека и
    рассрочка
    Одноэтажный дом ИП-147
    Стоимость от:
    10 440 980
    Проект от: 62 550
    Этажей 1
    Санузлы 2
    Спальни 3
    Смотреть
    Ипотека и
    рассрочка
    Б-168
    Стоимость от:
    11 531 520
    Проект от: 75 600
    Этажей 2
    Санузлы 2
    Спальни 4
    Смотреть

    Как узнать стоимость дома

    back
    Оставляете заявку
    Вы заполняете форму на сайте или звоните нам. Менеджер Лайвкрафт связывается с вами для уточнения деталей: тип дома, площадь, материалы, участок строительства.
    back
    Консультация и подбор решения
    Наш специалист помогает выбрать оптимальный тип дома и конструкцию с учётом бюджета, сроков и целей — будь то дом для постоянного проживания или дача.
    back
    Расчёт предварительной стоимости
    Инженер делает первичный расчёт стоимости строительства по вашим параметрам: фундамент, коробка, кровля, отделка. Вы получаете смету с разбивкой по этапам.
    back
    Корректировка и утверждение сметы
    При необходимости вносим изменения — например, замену материалов или сокращение этапов. После согласования формируется окончательная фиксированная смета.
    back
    Заключение договора и старт работ
    После утверждения сметы заключаем официальный договор с гарантией. Вы получаете прозрачный график и точную стоимость — без скрытых расходов.

    Заказать конусльтацию по:Индивидуальный жилой дом Кантри

    Фото 1 Индивидуальный жилой дом Кантри


      Наши
      контакты

      Дмитров
      Опорный проезд 28Б
      (индустриальный парк Ниагара)
      9:00 до 18:00