4.9
Рейтинг на основании 120 отзывов
Дмитров
Опорный проезд 28Б
(индустриальный парк Ниагара)
Бренд "Дмитров-Дело" c 2008 года на рынке строительства в Дмитрове
Звоните 9:00 до 18:00 8 (915) 055-33-61
Бренд "Дмитров-Дело" c 2008 года на рынке строительства в Дмитрове

Индивидуальный жилой дом (тип М), расположенный в п. Мичуринский

Стоимость проекта от:
49 950 ₽
БЕСПЛАТНО! ПРИ ЗАКАЗЕ СТРОИТЕЛЬСТВА
Стоимость строительства от:
7 045 170 ₽
Артикул ART-15876
Дата 25.12.2025
Архитектурный стиль Европейский
Количество надземных этажей 1
Круглогодичное проживание Да
Площадь дома 111 м2
Санузлы 2
Спальни 3

Описание

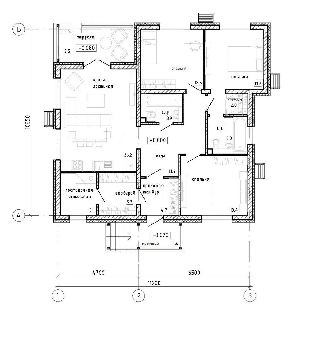
Пусть ваш дом станет местом, где каждый уголок дарит тепло и уют. В живописном поселке Мичуринский возведён индивидуальный жилой дом (тип М) — элегантный шедевр европейского стиля, который гармонично сочетает в себе строгую классику и современные комфортные решения. Внутри одной единственной надземной площадью вы найдёте просторную гостиную, где свет льётся через большие окна, обычаевую кухню, оформленную в стиле «премиум», и уютные спальни, каждая из которых предлагает идеальный уголок для отдыха. Спроектирован для круглогодичного проживания, дом обеспечивает тепло и энергоэффективность благодаря тщательно подобранным материалам. Экстраординарная внешняя отделка кирпича придаёт дому неповторимый характер, а две наклонные крыши добавляют динамичность и подчеркивают европейский шарм. Даже небольшой, но функциональный чердак открывает дополнительные возможности: будь то место хранения, уютная зона для творчества или просто пространство для хранения сезонного снаряжения. Для любителей открытого воздуха предусмотрена терраса — настоящий открытый ритуал, где можно наслаждаться рассветом или закатом, окружённый зелёной природой. Пространство, свободное от пристроенного гаража, позволяет избежать ненужных шумов, а при необходимости можно просто рассадить свой автомобиль на открытой стоянке. Этот дом — идеальное сочетание стиля, уюта и функциональности для тех, кто ценит высококлассные детали и комфортную жизнь.

Характеристики дома

Архитектурный стиль
Автоматизированное регулирование параметров теплоносителя
Нет
Балконы/лоджии
Отсутствуют
Чердачное помещение
Да
Датчики протечки воды
Нет
Эксплуатируемая или зеленая кровля
Нет
Электроснабжение
Центральное
Газоснабжение
Центральное
Изоляция воздушного шума
Нет
Камин
Нет
Класс энергоэффективности
-
Класс энергосбережения
-
Количество надземных этажей
1
Круглогодичное проживание
Да
Материал кровли
Металлочерепица
Материал перекрытий
Сборные железобетонные
Материал внешних стен
Материал внутренних перегородок
Кирпичные
Модульное строительство с конструкциями заводского изготовления
Нет
Объем надземной части
-
Основной материал фасадов
Штукатурка
Отопление
Индивидуальное
Площадь дома
111 м2
Площадь застройки
149 м2
Подвальное помещение
Нет
Показатель компактности здания
-
Приборы учета тепловой энергии
Нет
Пристроенный гараж/крытая автостоянка
Нет
Противопожарная система
Нет
Санузлы
2
Совмещенная кухня-гостиная
Да
Спальни
3
Терраса
Да
Тип фундамента
Свайный
Тип кровли
Толщина внешних стен
250 мм
Толщина внутренних перегородок
100 мм
Улучшенные шумовые характеристики
Нет
Вентиляция
Естественная
Веранда
Нет
Водоотведение
Центральное
Водоснабжение
Центральное
Высота дома
6.7 м
Высота потолков
3 м

Планировка

Фасад дома

Александр

Закажите выезд инженера

Александр

Выездной инженер
Закажите выезд инженера для точной диагностики и профессиональной консультации по инженерным системам. Специалист приедет в удобное время, проведёт осмотр, рассчитает стоимость работ и подберёт оптимальные решения для вашего дома.


    Похожие проекты

    Ипотека и
    рассрочка
    Одноэтажный дом с террасой «Репное-2»
    Стоимость от:
    7 425 990
    Проект от: 52 650
    Этажей 1
    Санузлы 1
    Спальни 3
    Смотреть
    Ипотека и
    рассрочка
    ГБ-091
    Стоимость от:
    6 773 580
    Проект от: 44 550
    Этажей 1
    Санузлы 1
    Спальни 2
    Смотреть
    Ипотека и
    рассрочка
    Одноэтажный дом FIXPLANS — 2528
    Стоимость от:
    232 320
    Проект от: 43 200
    Этажей 1
    Санузлы 2
    Спальни 3
    Смотреть
    Ипотека и
    рассрочка
    Одноэтажный дом с террасой О-141
    Стоимость от:
    12 916 640
    Проект от: 77 400
    Этажей 1
    Санузлы 2
    Спальни 3
    Смотреть
    Ипотека и
    рассрочка
    Одноэтажный дом 90 кв.м КБ-054
    Стоимость от:
    6 765 000
    Проект от: 40 500
    Этажей 1
    Санузлы 1
    Спальни 3
    Смотреть
    Ипотека и
    рассрочка
    Загородный дом из клееного бруса «Рея»
    Стоимость от:
    25 808 640
    Проект от: 169 200
    Этажей 2
    Санузлы 4
    Спальни 5
    Смотреть

    Как узнать стоимость дома

    back
    Оставляете заявку
    Вы заполняете форму на сайте или звоните нам. Менеджер Лайвкрафт связывается с вами для уточнения деталей: тип дома, площадь, материалы, участок строительства.
    back
    Консультация и подбор решения
    Наш специалист помогает выбрать оптимальный тип дома и конструкцию с учётом бюджета, сроков и целей — будь то дом для постоянного проживания или дача.
    back
    Расчёт предварительной стоимости
    Инженер делает первичный расчёт стоимости строительства по вашим параметрам: фундамент, коробка, кровля, отделка. Вы получаете смету с разбивкой по этапам.
    back
    Корректировка и утверждение сметы
    При необходимости вносим изменения — например, замену материалов или сокращение этапов. После согласования формируется окончательная фиксированная смета.
    back
    Заключение договора и старт работ
    После утверждения сметы заключаем официальный договор с гарантией. Вы получаете прозрачный график и точную стоимость — без скрытых расходов.

    Заказать конусльтацию по:Индивидуальный жилой дом (тип М), расположенный в п. Мичуринский

    Фото 1 Индивидуальный жилой дом (тип М), расположенный в п. Мичуринский


      Наши
      контакты

      Дмитров
      Опорный проезд 28Б
      (индустриальный парк Ниагара)
      9:00 до 18:00

      Корзина