4.9
Рейтинг на основании 120 отзывов
Дмитров
Опорный проезд 28Б
(индустриальный парк Ниагара)
Бренд "Дмитров-Дело" c 2008 года на рынке строительства в Дмитрове
Звоните 9:00 до 18:00 8 (915) 055-33-61
Бренд "Дмитров-Дело" c 2008 года на рынке строительства в Дмитрове

Индивидуальный жилой дом в коттеджном поселке » Семейный»

Стоимость проекта от:
74 250 ₽
БЕСПЛАТНО! ПРИ ЗАКАЗЕ СТРОИТЕЛЬСТВА
Стоимость строительства от:
11 943 600 ₽
Артикул ART-3189
Дата 26.12.2025
Архитектурный стиль Минимализм
Количество надземных этажей 2
Круглогодичное проживание Да
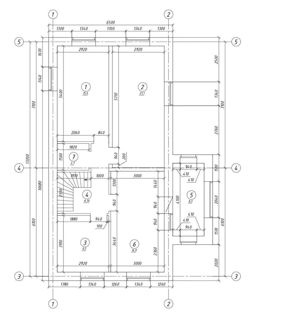
Площадь дома 165 м2
Санузлы 2
Спальни 4

Описание

Идеальный дом для тех, кто ценит простоту и уют – ваш новый уютный уголок в живописном коттеджном поселке «Семейный». Блестущий кирпичный фасад, выполненный в стиле минимализма, сочетает строгие линии и мягкие оттенки естественной красноватой земли, создавая ощущение гармонии и спокойствия с первых шагов к порогу. В два надземных этажа открывается достаточное пространство, в котором легко распределить зоны отдыха, работы и сна, сохраняя при этом чувство внутренней свободы. Кровля комбинированным покрытием не только защищает от непогоды, но и добавляет элегантную завершенность архитектуре, подчёркивая современность вашего нового дома. Дом рассчитан на круглогодичное проживание: теплоизоляция и современная вентиляция обеспечивают комфортную температуру в любое время года, а высококачественные материалы гарантируют долгую службу без лишних хлопот. Внутри вы найдёте открытый план, где кухня, обеденная зона и светлая гостиная естественно соединяются, создавая ощущение простора. Простые, но изысканные детали – от аккуратных фасадных акцентов до продуманного освещения – делают каждый уголок идеальным для отдыха, встреч с семьёй и друзей. Без балконов, веранд и крытых стоянок, у вас остаётся только наслаждаться внутренним комфортом и атмосферой спокойствия, которую предлагает «Семейный» поселок – тихие улицы, красивые парки и дружелюбные соседи. Выбирая этот дом, вы инвестируете в идеальное сочетание простоты, функциональности и эстетики. Простая архитектура сочетается с высоким уровнем комфорта, а кирпичные стены и комбинированная крыша гарантируют надёжность и долговечность. Погрузитесь в новый образ жизни, где каждая деталь продумана так, чтобы подарить вам и вашей семье тепло, уют и безмятежность, а «Семейный» поселок обеспечит спокойствие и благонадежность на долгие годы.

Характеристики дома

Архитектурный стиль
Автоматизированное регулирование параметров теплоносителя
-
Балконы/лоджии
Отсутствуют
Чердачное помещение
Нет
Датчики протечки воды
-
Эксплуатируемая или зеленая кровля
-
Электроснабжение
Центральное
Газоснабжение
Не предусмотрено
Изоляция воздушного шума
-
Камин
Нет
Класс энергоэффективности
-
Класс энергосбережения
-
Количество надземных этажей
2
Круглогодичное проживание
Да
Материал кровли
Металлочерепица
Материал перекрытий
Монолитные железобетонные
Материал внешних стен
Материал внутренних перегородок
Блочные
Модульное строительство с конструкциями заводского изготовления
Нет
Объем надземной части
656 м3
Основной материал фасадов
Облицовочный кирпич
Отопление
Индивидуальное
Площадь дома
165 м2
Площадь застройки
95 м2
Подвальное помещение
Нет
Показатель компактности здания
-
Приборы учета тепловой энергии
-
Пристроенный гараж/крытая автостоянка
Нет
Противопожарная система
Нет
Санузлы
2
Совмещенная кухня-гостиная
Да
Спальни
4
Терраса
Нет
Тип фундамента
Свайно-ростверковый
Тип кровли
Толщина внешних стен
625 мм
Толщина внутренних перегородок
100 мм
Улучшенные шумовые характеристики
-
Вентиляция
Естественная
Веранда
Нет
Водоотведение
Локальные очистные сооружения
Водоснабжение
Индивидуальное
Высота дома
8.5 м
Высота потолков
3 м

Планировка

Фасад дома

Александр

Закажите выезд инженера

Александр

Выездной инженер
Закажите выезд инженера для точной диагностики и профессиональной консультации по инженерным системам. Специалист приедет в удобное время, проведёт осмотр, рассчитает стоимость работ и подберёт оптимальные решения для вашего дома.


    Похожие проекты

    Ипотека и
    рассрочка
    ВС96
    Стоимость от:
    6 779 520
    Проект от: 43 200
    Этажей 1
    Санузлы 1
    Спальни 3
    Смотреть
    Ипотека и
    рассрочка
    Загородный дом-АС-209
    Стоимость от:
    12 571 200
    Проект от: 81 000
    Этажей 2
    Санузлы 2
    Спальни 2
    Смотреть
    Ипотека и
    рассрочка
    Одноэтажный дом FIXPLANS — 2231
    Стоимость от:
    9 578 800
    Проект от: 63 000
    Этажей 1
    Санузлы 2
    Спальни 3
    Смотреть
    Ипотека и
    рассрочка
    Дома Марианна
    Стоимость от:
    3 294 885
    Проект от: 25 650
    Этажей 1
    Санузлы 1
    Спальни 1
    Смотреть
    Ипотека и
    рассрочка
    Каркасный дом 9,4х13 м
    Стоимость от:
    5 911 620
    Проект от: 47 700
    Этажей 1
    Санузлы 1
    Спальни 3
    Смотреть
    Ипотека и
    рассрочка
    Загородный одноэтажный дом GSB-1F-72-Т27
    Стоимость от:
    6 991 380
    Проект от: 44 550
    Этажей 1
    Санузлы 1
    Спальни 3
    Смотреть

    Как узнать стоимость дома

    back
    Оставляете заявку
    Вы заполняете форму на сайте или звоните нам. Менеджер Лайвкрафт связывается с вами для уточнения деталей: тип дома, площадь, материалы, участок строительства.
    back
    Консультация и подбор решения
    Наш специалист помогает выбрать оптимальный тип дома и конструкцию с учётом бюджета, сроков и целей — будь то дом для постоянного проживания или дача.
    back
    Расчёт предварительной стоимости
    Инженер делает первичный расчёт стоимости строительства по вашим параметрам: фундамент, коробка, кровля, отделка. Вы получаете смету с разбивкой по этапам.
    back
    Корректировка и утверждение сметы
    При необходимости вносим изменения — например, замену материалов или сокращение этапов. После согласования формируется окончательная фиксированная смета.
    back
    Заключение договора и старт работ
    После утверждения сметы заключаем официальный договор с гарантией. Вы получаете прозрачный график и точную стоимость — без скрытых расходов.

    Заказать конусльтацию по:Индивидуальный жилой дом в коттеджном поселке » Семейный»

    Фото 1 Индивидуальный жилой дом в коттеджном поселке » Семейный»


      Наши
      контакты

      Дмитров
      Опорный проезд 28Б
      (индустриальный парк Ниагара)
      9:00 до 18:00

      Корзина