4.9
Рейтинг на основании 120 отзывов
Дмитров
Опорный проезд 28Б
(индустриальный парк Ниагара)
Бренд "Дмитров-Дело" c 2008 года на рынке строительства в Дмитрове
Звоните 9:00 до 18:00 8 (915) 055-33-61
Бренд "Дмитров-Дело" c 2008 года на рынке строительства в Дмитрове

Проект «Добрыня Барн»

Стоимость проекта от:
54 900 ₽
Стоимость строительства от:
7 474 940 ₽
Артикул ART-16150
Дата 25.12.2025
Архитектурный стиль Барнхаус
Количество надземных этажей 1
Круглогодичное проживание Да
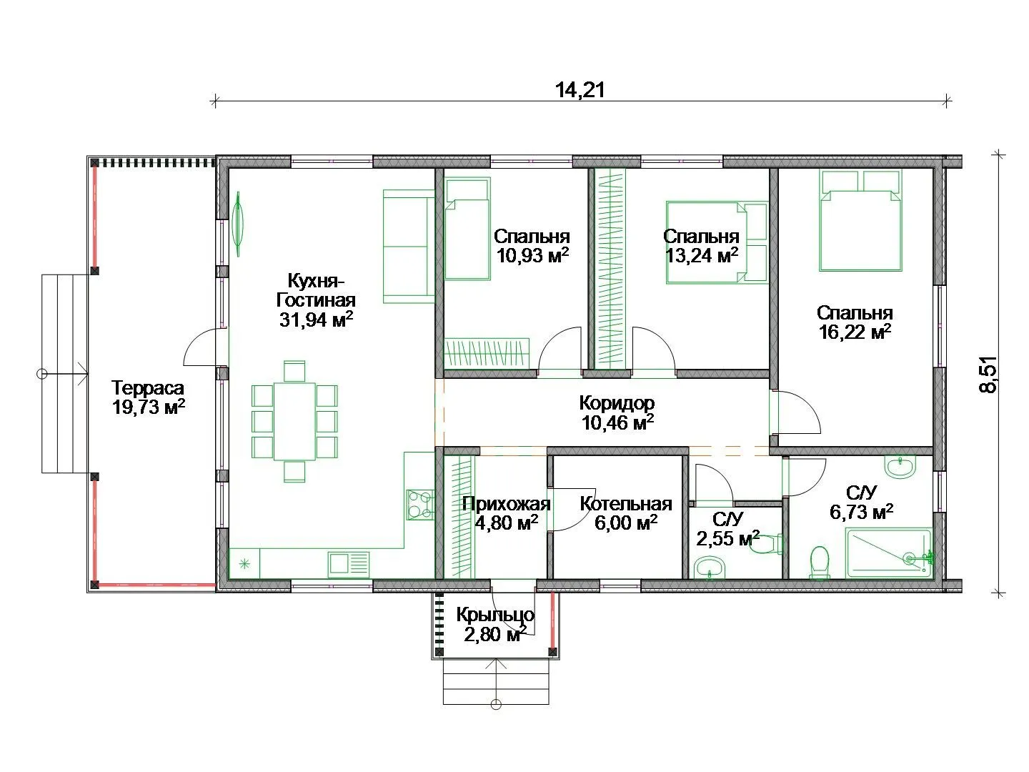
Площадь дома 122 м2
Санузлы 2
Спальни 3

Описание

Добрыня Барн — это настоящий уголок уюта и гармонии, созданный в теплом, но стильном барнхаус‑смысле. Просторный одноквартирный дом с открытой площадью выходит на живописный участок, где вам предложат непринужденную атмосферу, а мягкая, изысканная стилистика фасада подчеркнет его характер. Благодаря каркасно‑панельному конструированию, тепло и свет сохраняют дом круглый год, а двойной скат – это не только эстетика, но и надежная защита от непогоды. Отдельное внимание можно уделить просторному чердачному помещению, которое можно превратить в уютную мастерскую, дополнительное жилое пространство или даже небольшую спальню в гнездышке для гостей. Тесно обвешанная крылами терраса приглашает к вечеринкам у костра, а отсутствие барьерных элементов, как балконов, веранд и прикладных гаражей, делает восприятие фасада чистым и открытым, а внутреннее пространство более открытым и гибким. В «Добрыня Барн» каждый элемент продуман так, чтобы ваш дом стал вашим личным оазисом – где вы можете наслаждаться спокойствием и уединением, одновременно открывая простор для новых идей и творческого самовыражения. Это прекрасный выбор для тех, кто ценит современный комфорт, простоту и неповторимый характер в архитектуре.

Характеристики дома

Архитектурный стиль
Барнхаус
Автоматизированное регулирование параметров теплоносителя
Нет
Балконы/лоджии
Отсутствуют
Чердачное помещение
Да
Датчики протечки воды
Нет
Эксплуатируемая или зеленая кровля
Нет
Электроснабжение
Не предусмотрено
Газоснабжение
Не предусмотрено
Изоляция воздушного шума
Да
Камин
Нет
Класс энергоэффективности
-
Класс энергосбережения
-
Количество надземных этажей
1
Круглогодичное проживание
Да
Материал кровли
Фальцевая кровля Кликфальц
Материал перекрытий
Деревянные
Материал внешних стен
Каркасно-панельная технология
Материал внутренних перегородок
Деревянные
Модульное строительство с конструкциями заводского изготовления
Нет
Объем надземной части
510 м3
Основной материал фасадов
Фальцевая кровля кликфальц
Отопление
Индивидуальное
Площадь дома
122 м2
Площадь застройки
144 м2
Подвальное помещение
Нет
Показатель компактности здания
-
Приборы учета тепловой энергии
Нет
Пристроенный гараж/крытая автостоянка
Нет
Противопожарная система
Нет
Санузлы
2
Совмещенная кухня-гостиная
Да
Спальни
3
Терраса
Да
Тип фундамента
Свайный
Тип кровли
Двускатная
Толщина внешних стен
250 мм
Толщина внутренних перегородок
140 мм
Улучшенные шумовые характеристики
Да
Вентиляция
Естественная
Веранда
Нет
Водоотведение
Локальные очистные сооружения
Водоснабжение
Не предусмотрено
Высота дома
5.2 м
Высота потолков
3 м

Планировка

Фасад дома

Александр

Закажите выезд инженера

Александр

Выездной инженер
Закажите выезд инженера для точной диагностики и профессиональной консультации по инженерным системам. Специалист приедет в удобное время, проведёт осмотр, рассчитает стоимость работ и подберёт оптимальные решения для вашего дома.


    Похожие проекты

    Ипотека и
    рассрочка
    Загородный дом ВС-136
    Стоимость от:
    9 758 760
    Проект от: 73 350
    Этажей 2
    Санузлы 1
    Спальни 2
    Смотреть
    Ипотека и
    рассрочка
    Одноэтажный кирпичный трехкомнатный дом
    Стоимость от:
    6 927 140
    Проект от: 39 150
    Этажей 1
    Санузлы 1
    Спальни 3
    Смотреть
    Ипотека и
    рассрочка
    Вега К177-2 (Каркасный дом)
    Стоимость от:
    10 612 680
    Проект от: 79 650
    Этажей 2
    Санузлы 2
    Спальни 4
    Смотреть
    Ипотека и
    рассрочка
    Вереск-1
    Стоимость от:
    9 566 400
    Проект от: 58 500
    Этажей 2
    Санузлы 2
    Спальни 3
    Смотреть
    Ипотека и
    рассрочка
    Жилой дом DC-100
    Стоимость от:
    7 483 080
    Проект от: 42 300
    Этажей 1
    Санузлы 1
    Спальни 3
    Смотреть
    Ипотека и
    рассрочка
    Skandy с антресолью и террасой
    Стоимость от:
    8 187 120
    Проект от: 50 850
    Этажей 2
    Санузлы 1
    Спальни 3
    Смотреть

    Как узнать стоимость дома

    back
    Оставляете заявку
    Вы заполняете форму на сайте или звоните нам. Менеджер Лайвкрафт связывается с вами для уточнения деталей: тип дома, площадь, материалы, участок строительства.
    back
    Консультация и подбор решения
    Наш специалист помогает выбрать оптимальный тип дома и конструкцию с учётом бюджета, сроков и целей — будь то дом для постоянного проживания или дача.
    back
    Расчёт предварительной стоимости
    Инженер делает первичный расчёт стоимости строительства по вашим параметрам: фундамент, коробка, кровля, отделка. Вы получаете смету с разбивкой по этапам.
    back
    Корректировка и утверждение сметы
    При необходимости вносим изменения — например, замену материалов или сокращение этапов. После согласования формируется окончательная фиксированная смета.
    back
    Заключение договора и старт работ
    После утверждения сметы заключаем официальный договор с гарантией. Вы получаете прозрачный график и точную стоимость — без скрытых расходов.

    Заказать конусльтацию по:Проект «Добрыня Барн»

    Фото 1 Проект «Добрыня Барн»


      Наши
      контакты

      Дмитров
      Опорный проезд 28Б
      (индустриальный парк Ниагара)
      9:00 до 18:00