4.9
Рейтинг на основании 120 отзывов
Дмитров
Опорный проезд 28Б
(индустриальный парк Ниагара)
Бренд "Дмитров-Дело" c 2008 года на рынке строительства в Дмитрове
Звоните 9:00 до 18:00 8 (915) 055-33-61
Бренд "Дмитров-Дело" c 2008 года на рынке строительства в Дмитрове

Индивидуальный жилой проект ОС-24-45

Стоимость проекта от:
49 500 ₽
Стоимость строительства от:
8 753 800 ₽
Артикул ART-10298
Дата 25.12.2025
Архитектурный стиль Классический
Количество надземных этажей 1
Круглогодичное проживание Да
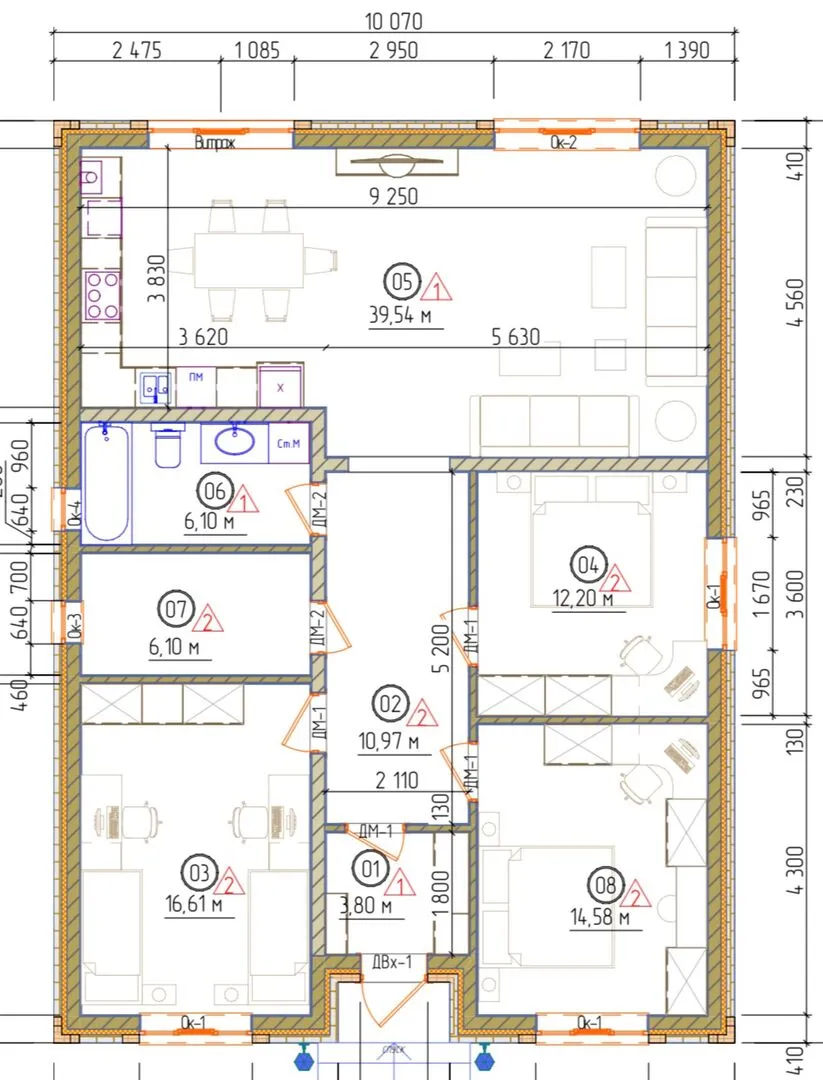
Площадь дома 110 м2
Санузлы 1
Спальни 3

Описание

Небольшой, но элегантный дом, созданный по индивидуальному проекту ОС‑24‑45, станет идеальным уголком для тех, кто ценит простоту и уют. По сути, это одноэтажный дом в классическом стиле, где каждая деталь продумана до мелочей: крепкая кирпичная кладка, прочная вальмовая кровля, а также продуманная система тепло- и звукоизоляции, гарантирующая комфорт в любой поре года. Вы забудете о холодном ветру и дождях на балконе – тепло всегда внутри, а интерьер – это настоящий праздник простого, но изысканного декора. При открытии двери вас встречают светлые, просторные комнаты, где естественный свет льется с потолка, создавая ощущение простора и свежести. Просторный жилой блок, не перегруженный лишними деталями, позволяет удобно разместить мебель, сохраняя при этом баланс между уютом и функциональностью. При необходимости можно легко организовать гардеробные системы или небольшое хранилище в кухне. А отсутствие внешних ограждений – веранд, лоджий, гаражей и чердаков – делает дом светлым и открытым, а также снижает затраты на обслуживание. Идеальный вариант для небольших семей, молодых специалистов, и тех, кто ищет спокойную и надежную площадку для жизни без лишних хлопот. Дом ОС‑24‑45 – это ваш первый шаг к комфорту, где каждый элемент пропитан классикой, а каждое утро начинается с вдохновения. Приходите и убедитесь сами: простота, надежность и уют ждут вас в этом небольшом, но неповторимом уголке.

Характеристики дома

Архитектурный стиль
Классический
Автоматизированное регулирование параметров теплоносителя
-
Балконы/лоджии
Отсутствуют
Чердачное помещение
Нет
Датчики протечки воды
-
Эксплуатируемая или зеленая кровля
-
Электроснабжение
Центральное
Газоснабжение
Центральное
Изоляция воздушного шума
-
Камин
Нет
Класс энергоэффективности
-
Класс энергосбережения
-
Количество надземных этажей
1
Круглогодичное проживание
Да
Материал кровли
Металлочерепица
Материал перекрытий
Деревянные
Материал внешних стен
Кирпич
Материал внутренних перегородок
Кирпичные
Модульное строительство с конструкциями заводского изготовления
Нет
Объем надземной части
110 м3
Основной материал фасадов
Облицовочный кирпич
Отопление
Индивидуальное
Площадь дома
110 м2
Площадь застройки
138 м2
Подвальное помещение
Нет
Показатель компактности здания
-
Приборы учета тепловой энергии
-
Пристроенный гараж/крытая автостоянка
Нет
Противопожарная система
Нет
Санузлы
1
Совмещенная кухня-гостиная
Да
Спальни
3
Терраса
Нет
Тип фундамента
Ленточный
Тип кровли
Четырехскатная (вальмовая)
Толщина внешних стен
400 мм
Толщина внутренних перегородок
120 мм
Улучшенные шумовые характеристики
-
Вентиляция
Естественная
Веранда
Нет
Водоотведение
2 варианта
Водоснабжение
2 варианта
Высота дома
5 м
Высота потолков
3 м

Планировка

Фасад дома

Александр

Закажите выезд инженера

Александр

Выездной инженер
Закажите выезд инженера для точной диагностики и профессиональной консультации по инженерным системам. Специалист приедет в удобное время, проведёт осмотр, рассчитает стоимость работ и подберёт оптимальные решения для вашего дома.


    Похожие проекты

    Ипотека и
    рассрочка
    Дом Рубин 126
    Стоимость от:
    6 953 040
    Проект от: 52 200
    Этажей 2
    Санузлы 1
    Спальни 5
    Смотреть
    Ипотека и
    рассрочка
    «Сочи»
    Стоимость от:
    7 980 060
    Проект от: 50 850
    Этажей 1
    Санузлы 2
    Спальни 3
    Смотреть
    Ипотека и
    рассрочка
    Двухэтажный дом Усадьба XL
    Стоимость от:
    13 672 800
    Проект от: 94 500
    Этажей 2
    Санузлы 2
    Спальни 4
    Смотреть
    Ипотека и
    рассрочка
    Проект дома из газобетона G-BOX-
    Стоимость от:
    7 121 840
    Проект от: 41 400
    Этажей 1
    Санузлы 2
    Спальни 3
    Смотреть
    Ипотека и
    рассрочка
    Каменный дом Кристалл
    Стоимость от:
    5 656 420
    Проект от: 31 950
    Этажей 1
    Санузлы 1
    Спальни 3
    Смотреть
    Ипотека и
    рассрочка
    ИНБРИГ-2.130
    Стоимость от:
    9 897 360
    Проект от: 62 550
    Этажей 2
    Санузлы 2
    Спальни 4
    Смотреть

    Как узнать стоимость дома

    back
    Оставляете заявку
    Вы заполняете форму на сайте или звоните нам. Менеджер Лайвкрафт связывается с вами для уточнения деталей: тип дома, площадь, материалы, участок строительства.
    back
    Консультация и подбор решения
    Наш специалист помогает выбрать оптимальный тип дома и конструкцию с учётом бюджета, сроков и целей — будь то дом для постоянного проживания или дача.
    back
    Расчёт предварительной стоимости
    Инженер делает первичный расчёт стоимости строительства по вашим параметрам: фундамент, коробка, кровля, отделка. Вы получаете смету с разбивкой по этапам.
    back
    Корректировка и утверждение сметы
    При необходимости вносим изменения — например, замену материалов или сокращение этапов. После согласования формируется окончательная фиксированная смета.
    back
    Заключение договора и старт работ
    После утверждения сметы заключаем официальный договор с гарантией. Вы получаете прозрачный график и точную стоимость — без скрытых расходов.

    Заказать конусльтацию по:Индивидуальный жилой проект ОС-24-45

    Фото 1 Индивидуальный жилой проект ОС-24-45


      Наши
      контакты

      Дмитров
      Опорный проезд 28Б
      (индустриальный парк Ниагара)
      9:00 до 18:00

      Корзина