4.9
Рейтинг на основании 120 отзывов
Дмитров
Опорный проезд 28Б
(индустриальный парк Ниагара)
Бренд "Дмитров-Дело" c 2008 года на рынке строительства в Дмитрове
Звоните 9:00 до 18:00 8 (915) 055-33-61
Бренд "Дмитров-Дело" c 2008 года на рынке строительства в Дмитрове

Искра 80

Стоимость проекта от:
37 350 ₽
БЕСПЛАТНО! ПРИ ЗАКАЗЕ СТРОИТЕЛЬСТВА
Стоимость строительства от:
5 861 460 ₽
Артикул ART-15238
Дата 25.12.2025
Архитектурный стиль Классический
Количество надземных этажей 1
Круглогодичное проживание Да
Площадь дома 83 м2
Санузлы 2
Спальни 2

Описание

**Искра 80** – это воплощение классической элегантности в уютном, одноместном доме. Его простая, но гармоничная фасадная линия, выполненная из легких керамзитобетонных блоков, дарит ощущение надежности и тепла. Четырехскатная (валмовая) крыша не только защищает, но и добавляет визуального интереса, создавая мягкие тени и приятную атмосферу на протяжении всего года. В квартире без балконов и веранд вы найдёте идеальное сочетание приватности, удобства и простоты городской жизни. Внутреннее пространство «Искры 80» продуманное до мелочей. Светлые тона стен и качественные материалы делают комнату живой и привлекательной, а свободный план открывает широкие возможности для комфортного размещения мебели и техники. Квалифицированный монтаж и использование керамзитобетонных стен гарантируют теплоизоляцию, а отсутствие чердака и лишних помещений позволяет легко управлять пространством, концентрируя усилия на создании уютного, функционального интерьера. В итоге вы получаете чистый, открытый дом, где всегда царит порядок и легкость. Выбирая «Искру 80», вы инвестируете в уверенность и комфорт. Этот дом подходит для круглогодичного проживания: от зимних морозов до летних теплых дней он сохраняет тепло и прохладу благодаря качественной теплоизоляции. Минимум лишних помещений, экономия на обслуживании и простота эксплуатации – всё это делает «Искру 80» идеальным вариантом для тех, кто ценит надежность, качественную архитектуру и возможность спокойно наслаждаться жизнью в своём собственном уголке.

Характеристики дома

Архитектурный стиль
Автоматизированное регулирование параметров теплоносителя
Нет
Балконы/лоджии
Отсутствуют
Чердачное помещение
Нет
Датчики протечки воды
Нет
Эксплуатируемая или зеленая кровля
Нет
Электроснабжение
Центральное
Газоснабжение
Не предусмотрено
Изоляция воздушного шума
Да
Камин
Нет
Класс энергоэффективности
-
Класс энергосбережения
-
Количество надземных этажей
1
Круглогодичное проживание
Да
Материал кровли
Металлочерепица
Материал перекрытий
Деревянные
Материал внешних стен
Материал внутренних перегородок
Блочные
Модульное строительство с конструкциями заводского изготовления
Нет
Объем надземной части
172 м3
Основной материал фасадов
Облицовочный кирпич
Отопление
Индивидуальное
Площадь дома
83 м2
Площадь застройки
107 м2
Подвальное помещение
Нет
Показатель компактности здания
-
Приборы учета тепловой энергии
Нет
Пристроенный гараж/крытая автостоянка
Нет
Противопожарная система
Нет
Санузлы
2
Совмещенная кухня-гостиная
Да
Спальни
2
Терраса
Нет
Тип фундамента
Плитный
Толщина внешних стен
300 мм
Толщина внутренних перегородок
100 мм
Улучшенные шумовые характеристики
Да
Вентиляция
Естественная
Веранда
Нет
Водоотведение
Локальные очистные сооружения
Водоснабжение
Индивидуальное
Высота дома
5.7 м
Высота потолков
3 м

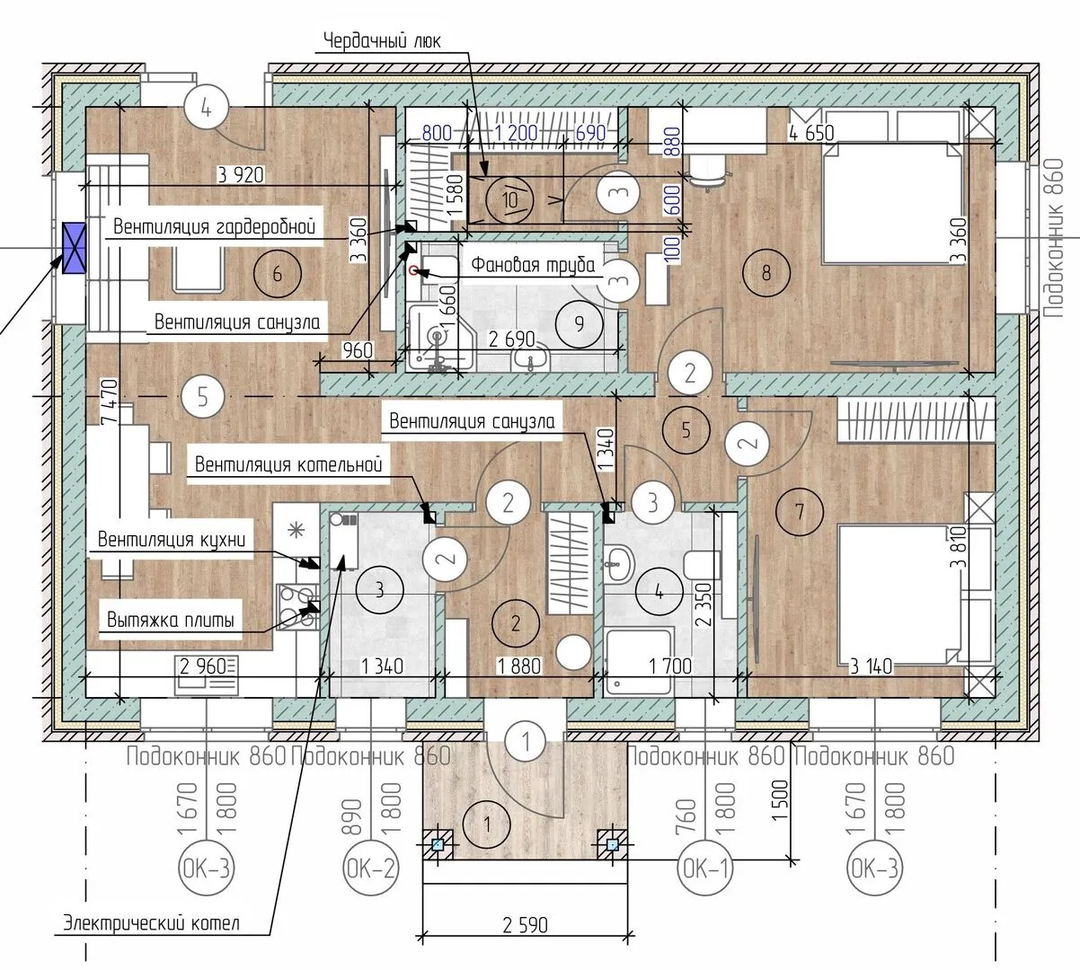
Планировка

Фасад дома

Александр

Закажите выезд инженера

Александр

Выездной инженер
Закажите выезд инженера для точной диагностики и профессиональной консультации по инженерным системам. Специалист приедет в удобное время, проведёт осмотр, рассчитает стоимость работ и подберёт оптимальные решения для вашего дома.


    Похожие проекты

    Ипотека и
    рассрочка
    Двухэтажный коттедж С162
    Стоимость от:
    13 006 560
    Проект от: 78 300
    Этажей 2
    Санузлы 3
    Спальни 3
    Смотреть
    Ипотека и
    рассрочка
    «Стаут»
    Стоимость от:
    8 628 840
    Проект от: 54 900
    Этажей 1
    Санузлы 2
    Спальни 3
    Смотреть
    Ипотека и
    рассрочка
    Индивидуальный дом по проекту S-129, Заречный
    Стоимость от:
    8 340 420
    Проект от: 49 950
    Этажей 1
    Санузлы 2
    Спальни 3
    Смотреть
    Ипотека и
    рассрочка
    Афрейм-56
    Стоимость от:
    3 814 260
    Проект от: 29 250
    Этажей 2
    Санузлы 1
    Спальни 1
    Смотреть
    Ипотека и
    рассрочка
    River Hall 155
    Стоимость от:
    12 233 280
    Проект от: 77 400
    Этажей 2
    Санузлы 3
    Спальни 5
    Смотреть
    Ипотека и
    рассрочка
    Жилой Дом «КС-4»
    Стоимость от:
    6 768 300
    Проект от: 38 250
    Этажей 1
    Санузлы 1
    Спальни 2
    Смотреть

    Как узнать стоимость дома

    back
    Оставляете заявку
    Вы заполняете форму на сайте или звоните нам. Менеджер Лайвкрафт связывается с вами для уточнения деталей: тип дома, площадь, материалы, участок строительства.
    back
    Консультация и подбор решения
    Наш специалист помогает выбрать оптимальный тип дома и конструкцию с учётом бюджета, сроков и целей — будь то дом для постоянного проживания или дача.
    back
    Расчёт предварительной стоимости
    Инженер делает первичный расчёт стоимости строительства по вашим параметрам: фундамент, коробка, кровля, отделка. Вы получаете смету с разбивкой по этапам.
    back
    Корректировка и утверждение сметы
    При необходимости вносим изменения — например, замену материалов или сокращение этапов. После согласования формируется окончательная фиксированная смета.
    back
    Заключение договора и старт работ
    После утверждения сметы заключаем официальный договор с гарантией. Вы получаете прозрачный график и точную стоимость — без скрытых расходов.

    Заказать конусльтацию по:Искра 80

    Фото 1 Искра 80


      Наши
      контакты

      Дмитров
      Опорный проезд 28Б
      (индустриальный парк Ниагара)
      9:00 до 18:00

      Корзина