4.9
Рейтинг на основании 120 отзывов
Дмитров
Опорный проезд 28Б
(индустриальный парк Ниагара)
Бренд "Дмитров-Дело" c 2008 года на рынке строительства в Дмитрове
Звоните 9:00 до 18:00 8 (915) 055-33-61
Бренд "Дмитров-Дело" c 2008 года на рынке строительства в Дмитрове

ИЖД «Комфортный»

Стоимость проекта от:
58 050 ₽
БЕСПЛАТНО! ПРИ ЗАКАЗЕ СТРОИТЕЛЬСТВА
Стоимость строительства от:
9 978 980 ₽
Артикул ART-20252
Дата 26.12.2025
Архитектурный стиль Классический
Количество надземных этажей 1
Круглогодичное проживание Да
Площадь дома 129 м2
Санузлы 1
Спальни 3

Описание

**ИЖД «Комфортный» – воплощение баланса между уютом и элегантностью** Вдохновлённый классическим стилем и рассчитанный на круглогодичную эксплуатацию, дом «Комфортный» предлагает тихий уголок для семейных ценностей. Небольшой, но функциональный, он располагается на одном надземном этаже, что делает проживание ещё более удобным и доступным. Стильные газобетонные блоки внешних стен не только дарят непоколебимую тепло- и шумоизоляцию, но и создают ощущение свежести и простора, позволяя впустить в дом естественный свет. **Уникальная комбинация чердачного пространства и современной террасы** Отсутствие балконов и веранд при этом не сковывает, а наоборот открывает новое измерение: открытой террасы, которая становится продолжением внутреннего пространства и позволяет наслаждаться великолепными видами. Четырёхскатная (вальмовая) крыша обеспечивает надёжную защиту от атмосферных воздействий и придаёт архитектуре стройный профиль. Чердачное помещение, превращённое в уединённый уголок для отдыха или творчества, добавляет дополнительное жилое пространство, сохраняя при этом лёгкость и свободность атмосферы. **Изысканная простота и практичность** Дом без прикрытой автостоянки и ярко выраженной лоджии подчеркивает его природный шарм. Простая, но элегантная внешность подчёркивает заботу о деталях: от ровных стыков камня до аккуратной линии крыши. ИЖД «Комфортный» – это не просто жильё, а уютный оазис для тех, кто ценит классику в сочетании с современными удобствами. Вы почувствуете, как каждый сантиметр пространства приветствует вас, даря тепло и гармонию в любой сезон.

Характеристики дома

Архитектурный стиль
Автоматизированное регулирование параметров теплоносителя
Нет
Балконы/лоджии
Отсутствуют
Чердачное помещение
Да
Датчики протечки воды
Нет
Эксплуатируемая или зеленая кровля
Нет
Электроснабжение
Центральное
Газоснабжение
Центральное
Изоляция воздушного шума
Нет
Камин
Нет
Класс энергоэффективности
-
Класс энергосбережения
-
Количество надземных этажей
1
Круглогодичное проживание
Да
Материал кровли
Битумная черепица
Материал перекрытий
Деревянные
Материал внешних стен
Материал внутренних перегородок
Блочные
Модульное строительство с конструкциями заводского изготовления
Нет
Объем надземной части
397 м3
Основной материал фасадов
Облицовочный кирпич
Отопление
Индивидуальное
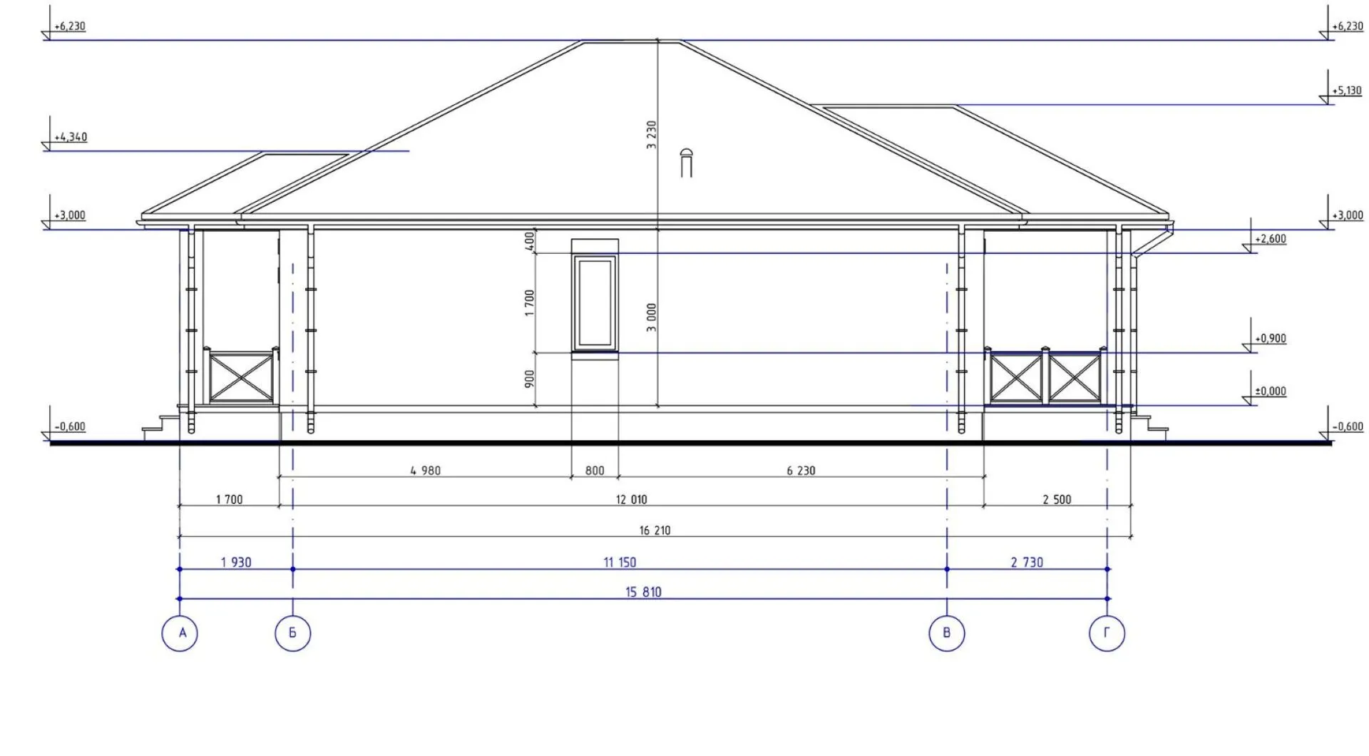
Площадь дома
129 м2
Площадь застройки
134 м2
Подвальное помещение
Нет
Показатель компактности здания
-
Приборы учета тепловой энергии
Нет
Пристроенный гараж/крытая автостоянка
Нет
Противопожарная система
Нет
Санузлы
1
Совмещенная кухня-гостиная
Да
Спальни
3
Терраса
Да
Тип фундамента
Ленточный
Толщина внешних стен
550 мм
Толщина внутренних перегородок
200 мм
Улучшенные шумовые характеристики
Нет
Вентиляция
Естественная
Веранда
Нет
Водоотведение
Локальные очистные сооружения
Водоснабжение
Центральное
Высота дома
6.23 м
Высота потолков
2.9 м

Планировка

Фасад дома

Александр

Закажите выезд инженера

Александр

Выездной инженер
Закажите выезд инженера для точной диагностики и профессиональной консультации по инженерным системам. Специалист приедет в удобное время, проведёт осмотр, рассчитает стоимость работ и подберёт оптимальные решения для вашего дома.


    Похожие проекты

    Ипотека и
    рассрочка
    Дачник 6х7 с крыльцом
    Стоимость от:
    3 710 700
    Проект от: 27 900
    Этажей 2
    Санузлы 1
    Спальни 3
    Смотреть
    Ипотека и
    рассрочка
    Коттедж Т-образной формы S3-166-6 (Z190)
    Стоимость от:
    12 407 120
    Проект от: 70 200
    Этажей 1
    Санузлы 2
    Спальни 3
    Смотреть
    Ипотека и
    рассрочка
    Суслов24
    Стоимость от:
    15 581 520
    Проект от: 100 350
    Этажей 2
    Санузлы 3
    Спальни 4
    Смотреть
    Ипотека и
    рассрочка
    Дом в Булгаково
    Стоимость от:
    6 931 100
    Проект от: 42 750
    Этажей 1
    Санузлы 2
    Спальни 3
    Смотреть
    Ипотека и
    рассрочка
    Современное шале -Электрогорск
    Стоимость от:
    5 063 080
    Проект от: 33 300
    Этажей 1
    Санузлы 1
    Спальни 2
    Смотреть
    Ипотека и
    рассрочка
    Индивидуальный жилой дом площадью 122м2
    Стоимость от:
    9 706 840
    Проект от: 54 900
    Этажей 1
    Санузлы 2
    Спальни 4
    Смотреть

    Как узнать стоимость дома

    back
    Оставляете заявку
    Вы заполняете форму на сайте или звоните нам. Менеджер Лайвкрафт связывается с вами для уточнения деталей: тип дома, площадь, материалы, участок строительства.
    back
    Консультация и подбор решения
    Наш специалист помогает выбрать оптимальный тип дома и конструкцию с учётом бюджета, сроков и целей — будь то дом для постоянного проживания или дача.
    back
    Расчёт предварительной стоимости
    Инженер делает первичный расчёт стоимости строительства по вашим параметрам: фундамент, коробка, кровля, отделка. Вы получаете смету с разбивкой по этапам.
    back
    Корректировка и утверждение сметы
    При необходимости вносим изменения — например, замену материалов или сокращение этапов. После согласования формируется окончательная фиксированная смета.
    back
    Заключение договора и старт работ
    После утверждения сметы заключаем официальный договор с гарантией. Вы получаете прозрачный график и точную стоимость — без скрытых расходов.

    Заказать конусльтацию по:ИЖД «Комфортный»

    Фото 1 ИЖД «Комфортный»


      Наши
      контакты

      Дмитров
      Опорный проезд 28Б
      (индустриальный парк Ниагара)
      9:00 до 18:00

      Корзина