4.9
Рейтинг на основании 120 отзывов
Дмитров
Опорный проезд 28Б
(индустриальный парк Ниагара)
Бренд "Дмитров-Дело" c 2008 года на рынке строительства в Дмитрове
Звоните 9:00 до 18:00 8 (915) 055-33-61
Бренд "Дмитров-Дело" c 2008 года на рынке строительства в Дмитрове

К 2-103

Стоимость проекта от:
46 350 ₽
БЕСПЛАТНО! ПРИ ЗАКАЗЕ СТРОИТЕЛЬСТВА
Стоимость строительства от:
6 177 120 ₽
Артикул ART-13324
Дата 25.12.2025
Архитектурный стиль Классический
Количество надземных этажей 2
Круглогодичное проживание Да
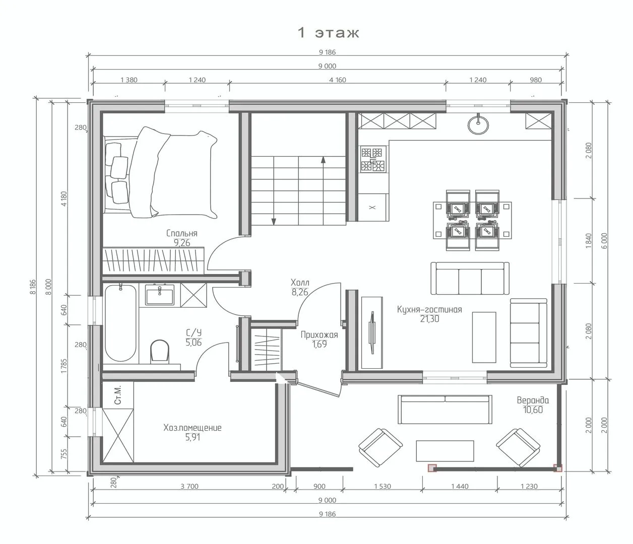
Площадь дома 103 м2
Санузлы 1
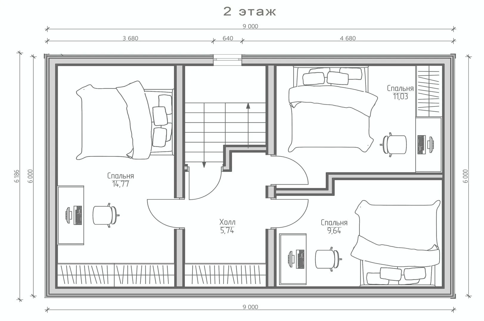
Спальни 4

Описание

Природная гармония встречается с уютом классической элегантности в этой двухэтажной деревянной резиденции, созданной для полноценного круготёрового комфорта. Стиль постройки подчёркивается строгой симметрией и изящными деталями, которые придают фасаду ощущение старинного особняка, но при этом везде применены современные материалы и технологии. Двускатный каменный или металлочерновой металл, аккуратно оформленный под традиционный вид, защищает дом от непогоды, сохраняя тепло и уют внутри любого сезона. Уют начинается на уровне верандной площадки, где можно провести вечер с чашечкой ароматного кофе, любуясь видом на открывающиеся за горизонтом пейзажи. Внутреннее пространство спроектировано так, чтобы каждая комната ощущалась как отдельный мир: гостиной с открытой кухней, где свет проникает сквозь большие окна, несколько спальни, каждая из которых имеет собственный душевой уголок, и дополнительные помещения для хранения. Крепкий деревянный каркас не только обеспечивает теплоизоляцию, но и придает помещению ощущение тёплой древесной души, создавая атмосферу домашнего спокойствия. Этот дом – идеальное место для тех, кто ценит сочетание традиций и современных удобств. Без лишних балконов и привязывающих к структуре гаражей, он оставляет пространство полностью открытым и свободным, позволяя каждому элементу дизайна и планировки раскрыться в своей природной красоте. Откройте для себя домашний уют и целый новый образ жизни – позвоните нам, и мы расскажем, как быстро стать владельцем этого сказочного дома.

Характеристики дома

Архитектурный стиль
Автоматизированное регулирование параметров теплоносителя
Нет
Балконы/лоджии
Отсутствуют
Чердачное помещение
Нет
Датчики протечки воды
Нет
Эксплуатируемая или зеленая кровля
Нет
Электроснабжение
Не предусмотрено
Газоснабжение
Не предусмотрено
Изоляция воздушного шума
Нет
Камин
Нет
Класс энергоэффективности
-
Класс энергосбережения
-
Количество надземных этажей
2
Круглогодичное проживание
Да
Материал кровли
Металлочерепица
Материал перекрытий
Деревянные
Материал внешних стен
Материал внутренних перегородок
Деревянные
Модульное строительство с конструкциями заводского изготовления
Нет
Объем надземной части
689 м3
Основной материал фасадов
Дерево
Отопление
Не предусмотрено
Площадь дома
103 м2
Площадь застройки
126 м2
Подвальное помещение
Нет
Показатель компактности здания
-
Приборы учета тепловой энергии
Нет
Пристроенный гараж/крытая автостоянка
Нет
Противопожарная система
Нет
Санузлы
1
Совмещенная кухня-гостиная
Да
Спальни
4
Терраса
Нет
Тип фундамента
Свайный
Тип кровли
Толщина внешних стен
150 мм
Толщина внутренних перегородок
100 мм
Улучшенные шумовые характеристики
Нет
Вентиляция
Естественная
Веранда
Да
Водоотведение
Не предусмотрено
Водоснабжение
Не предусмотрено
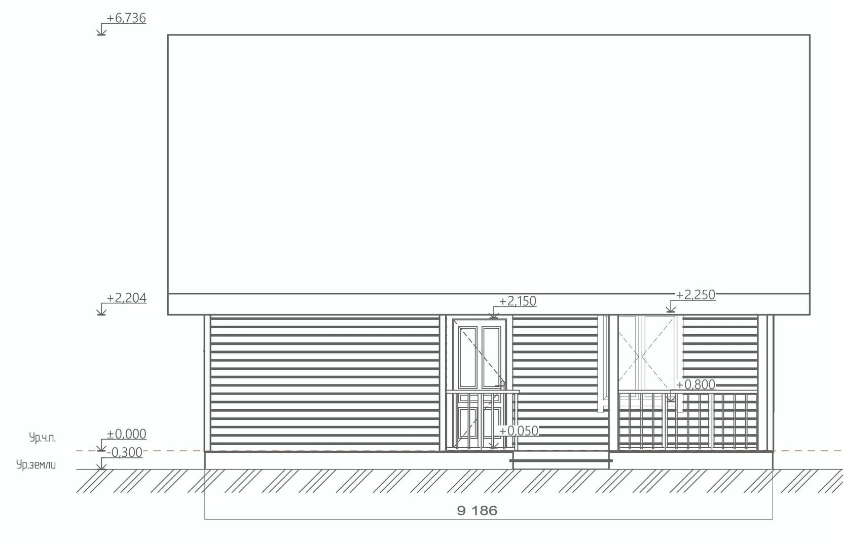
Высота дома
7 м
Высота потолков
2.7 м

Планировка

Фасад дома

Александр

Закажите выезд инженера

Александр

Выездной инженер
Закажите выезд инженера для точной диагностики и профессиональной консультации по инженерным системам. Специалист приедет в удобное время, проведёт осмотр, рассчитает стоимость работ и подберёт оптимальные решения для вашего дома.


    Похожие проекты

    Ипотека и
    рассрочка
    Одноэтажный дом по проекту S-124
    Стоимость от:
    9 090 620
    Проект от: 54 450
    Этажей 1
    Санузлы 2
    Спальни 3
    Смотреть
    Ипотека и
    рассрочка
    Проект ГБ-199
    Стоимость от:
    13 665 360
    Проект от: 89 550
    Этажей 2
    Санузлы 2
    Спальни 4
    Смотреть
    Ипотека и
    рассрочка
    Валенсия
    Стоимость от:
    8 898 120
    Проект от: 56 700
    Этажей 1
    Санузлы 2
    Спальни 3
    Смотреть
    Ипотека и
    рассрочка
    Загородный дом 91 м2
    Стоимость от:
    5 941 440
    Проект от: 40 950
    Этажей 2
    Санузлы 1
    Спальни 3
    Смотреть
    Ипотека и
    рассрочка
    Двухэтажный деревянный дом «Верона»
    Стоимость от:
    18 944 640
    Проект от: 124 200
    Этажей 2
    Санузлы 4
    Спальни 3
    Смотреть
    Ипотека и
    рассрочка
    M.BARN 60
    Стоимость от:
    3 725 535
    Проект от: 30 150
    Этажей 1
    Санузлы 1
    Спальни 2
    Смотреть

    Как узнать стоимость дома

    back
    Оставляете заявку
    Вы заполняете форму на сайте или звоните нам. Менеджер Лайвкрафт связывается с вами для уточнения деталей: тип дома, площадь, материалы, участок строительства.
    back
    Консультация и подбор решения
    Наш специалист помогает выбрать оптимальный тип дома и конструкцию с учётом бюджета, сроков и целей — будь то дом для постоянного проживания или дача.
    back
    Расчёт предварительной стоимости
    Инженер делает первичный расчёт стоимости строительства по вашим параметрам: фундамент, коробка, кровля, отделка. Вы получаете смету с разбивкой по этапам.
    back
    Корректировка и утверждение сметы
    При необходимости вносим изменения — например, замену материалов или сокращение этапов. После согласования формируется окончательная фиксированная смета.
    back
    Заключение договора и старт работ
    После утверждения сметы заключаем официальный договор с гарантией. Вы получаете прозрачный график и точную стоимость — без скрытых расходов.

    Заказать конусльтацию по:К 2-103

    Фото 1 К 2-103


      Наши
      контакты

      Дмитров
      Опорный проезд 28Б
      (индустриальный парк Ниагара)
      9:00 до 18:00

      Корзина