4.9
Рейтинг на основании 120 отзывов
Дмитров
Опорный проезд 28Б
(индустриальный парк Ниагара)
Бренд "Дмитров-Дело" c 2008 года на рынке строительства в Дмитрове
Звоните 9:00 до 18:00 8 (915) 055-33-61
Бренд "Дмитров-Дело" c 2008 года на рынке строительства в Дмитрове

Каменный дом Базис-71

Стоимость проекта от:
31 950 ₽
БЕСПЛАТНО! ПРИ ЗАКАЗЕ СТРОИТЕЛЬСТВА
Стоимость строительства от:
5 014 020 ₽
Артикул ART-6094
Дата 26.12.2025
Архитектурный стиль Классический
Количество надземных этажей 1
Круглогодичное проживание Да
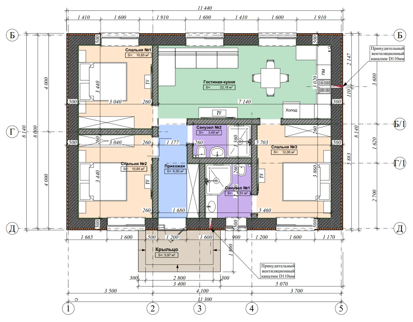
Площадь дома 71 м2
Санузлы 2
Спальни 3

Описание

**Каменный дом “Базис‑71” – ваш уголок уюта и стиля** Войдя в этот одноэтажный дом, вы сразу заметите его величественное, почти каменное фасадное решение, выполненное из газобетонных блоков. Такой материал придаёт стенам нежный, но прочный характер, а сочетание с классической архитектурой делает дом одновременно строгим и теплым. Круглогодичное проживание здесь – не просто слово: утеплённые наружные стены и надёжная двускатная крыша сохраняют тепло в холодную пору воздуха, а в летний период обеспечивают прохладу в самых жарких дни. **Уникальное пространство и продуманная планировка** Дом рассчитан на простую, но удобную обстановку: один надземный этаж, где каждый уголок пропитан светом, а просторные комнаты создают ощущение свободы. Отсутствие балконов и веранд не уменьшает комфорта – в их место отведено практичное чердачное помещение, которое можно превратить в кладовой, студию или уютный кабинет. Такой подход позволяет максимально использовать каждую квадратуру, не перегружая фасад лишними элементами. **Идеальный выбор для тех, кто ценит классический дизайн и функциональность** “Базис‑71” станет прекрасным вариантом для молодой семьи, пары или владельца тихого уединения. Если вам важен стильный интерьер, стабильность и простота обслуживания, этот дом удовлетворит все ваши ожидания. Не упустите шанс стать владельцем настоящего образца классической архитектуры, где каждая деталь продумана до мелочей, а уют находится в каждом квадратном метре. Присоединяйтесь к сообществу обладателей каменных семей, которые уже сделали свой выбор в пользу “Базис‑71”.

Характеристики дома

Архитектурный стиль
Автоматизированное регулирование параметров теплоносителя
-
Балконы/лоджии
Отсутствуют
Чердачное помещение
Да
Датчики протечки воды
-
Эксплуатируемая или зеленая кровля
-
Электроснабжение
Центральное
Газоснабжение
Не предусмотрено
Изоляция воздушного шума
-
Камин
Нет
Класс энергоэффективности
-
Класс энергосбережения
-
Количество надземных этажей
1
Круглогодичное проживание
Да
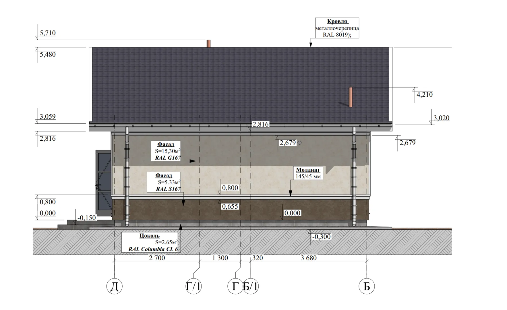
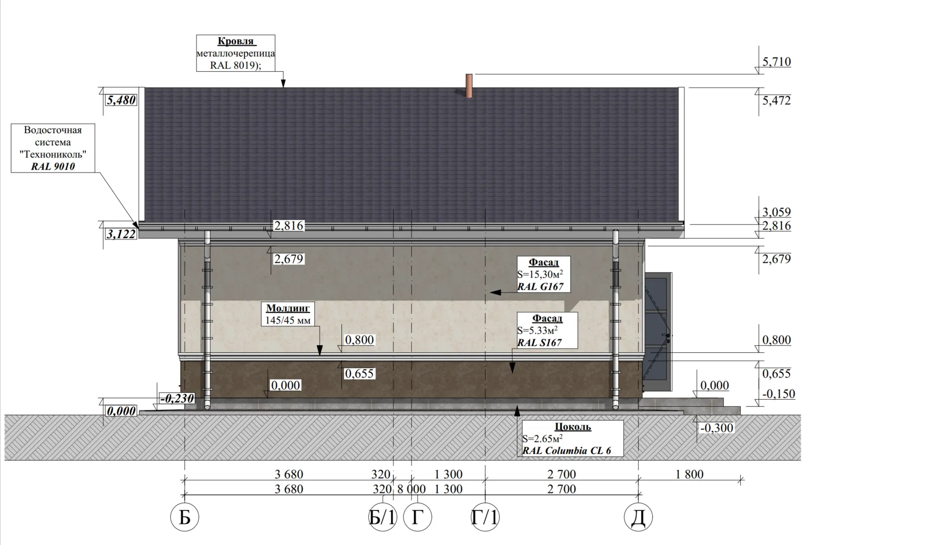
Материал кровли
Металлочерепица
Материал перекрытий
Деревянные
Материал внешних стен
Материал внутренних перегородок
Блочные
Модульное строительство с конструкциями заводского изготовления
Нет
Объем надземной части
350 м3
Основной материал фасадов
Штукатурка
Отопление
Индивидуальное
Площадь дома
71 м2
Площадь застройки
91 м2
Подвальное помещение
Нет
Показатель компактности здания
-
Приборы учета тепловой энергии
-
Пристроенный гараж/крытая автостоянка
Нет
Противопожарная система
Нет
Санузлы
2
Совмещенная кухня-гостиная
Да
Спальни
3
Терраса
Нет
Тип фундамента
Плитный
Тип кровли
Толщина внешних стен
350 мм
Толщина внутренних перегородок
100 мм
Улучшенные шумовые характеристики
-
Вентиляция
3 варианта
Веранда
Нет
Водоотведение
2 варианта
Водоснабжение
2 варианта
Высота дома
5.5 м
Высота потолков
3 м

Планировка

Фасад дома

Александр

Закажите выезд инженера

Александр

Выездной инженер
Закажите выезд инженера для точной диагностики и профессиональной консультации по инженерным системам. Специалист приедет в удобное время, проведёт осмотр, рассчитает стоимость работ и подберёт оптимальные решения для вашего дома.


    Похожие проекты

    Ипотека и
    рассрочка
    Двухэтажный каркасный дом
    Стоимость от:
    7 072 920
    Проект от: 53 100
    Этажей 2
    Санузлы 2
    Спальни 4
    Смотреть
    Ипотека и
    рассрочка
    Загородный дом ИСЛАНДИЯ 90
    Стоимость от:
    9 236 700
    Проект от: 60 750
    Этажей 1
    Санузлы 2
    Спальни 2
    Смотреть
    Ипотека и
    рассрочка
    Проект загородного дома NHD-151
    Стоимость от:
    7 365 160
    Проект от: 44 100
    Этажей 1
    Санузлы 1
    Спальни 2
    Смотреть
    Ипотека и
    рассрочка
    24СЯ15.00 PREMIUM
    Стоимость от:
    6 394 575
    Проект от: 51 750
    Этажей 1
    Санузлы 1
    Спальни 3
    Смотреть
    Ипотека и
    рассрочка
    Двухэтажный дом MINI 01
    Стоимость от:
    4 216 080
    Проект от: 25 650
    Этажей 2
    Санузлы 2
    Спальни 2
    Смотреть
    Ипотека и
    рассрочка
    Загородный одноэтажный классический дом 3 спальни
    Стоимость от:
    4 643 980
    Проект от: 34 200
    Этажей 1
    Санузлы 1
    Спальни 3
    Смотреть

    Как узнать стоимость дома

    back
    Оставляете заявку
    Вы заполняете форму на сайте или звоните нам. Менеджер Лайвкрафт связывается с вами для уточнения деталей: тип дома, площадь, материалы, участок строительства.
    back
    Консультация и подбор решения
    Наш специалист помогает выбрать оптимальный тип дома и конструкцию с учётом бюджета, сроков и целей — будь то дом для постоянного проживания или дача.
    back
    Расчёт предварительной стоимости
    Инженер делает первичный расчёт стоимости строительства по вашим параметрам: фундамент, коробка, кровля, отделка. Вы получаете смету с разбивкой по этапам.
    back
    Корректировка и утверждение сметы
    При необходимости вносим изменения — например, замену материалов или сокращение этапов. После согласования формируется окончательная фиксированная смета.
    back
    Заключение договора и старт работ
    После утверждения сметы заключаем официальный договор с гарантией. Вы получаете прозрачный график и точную стоимость — без скрытых расходов.

    Заказать конусльтацию по:Каменный дом Базис-71

    Фото 1 Каменный дом Базис-71


      Наши
      контакты

      Дмитров
      Опорный проезд 28Б
      (индустриальный парк Ниагара)
      9:00 до 18:00

      Корзина