4.9
Рейтинг на основании 120 отзывов
Дмитров
Опорный проезд 28Б
(индустриальный парк Ниагара)
Бренд "Дмитров-Дело" c 2008 года на рынке строительства в Дмитрове
Звоните 9:00 до 18:00 8 (915) 055-33-61
Бренд "Дмитров-Дело" c 2008 года на рынке строительства в Дмитрове

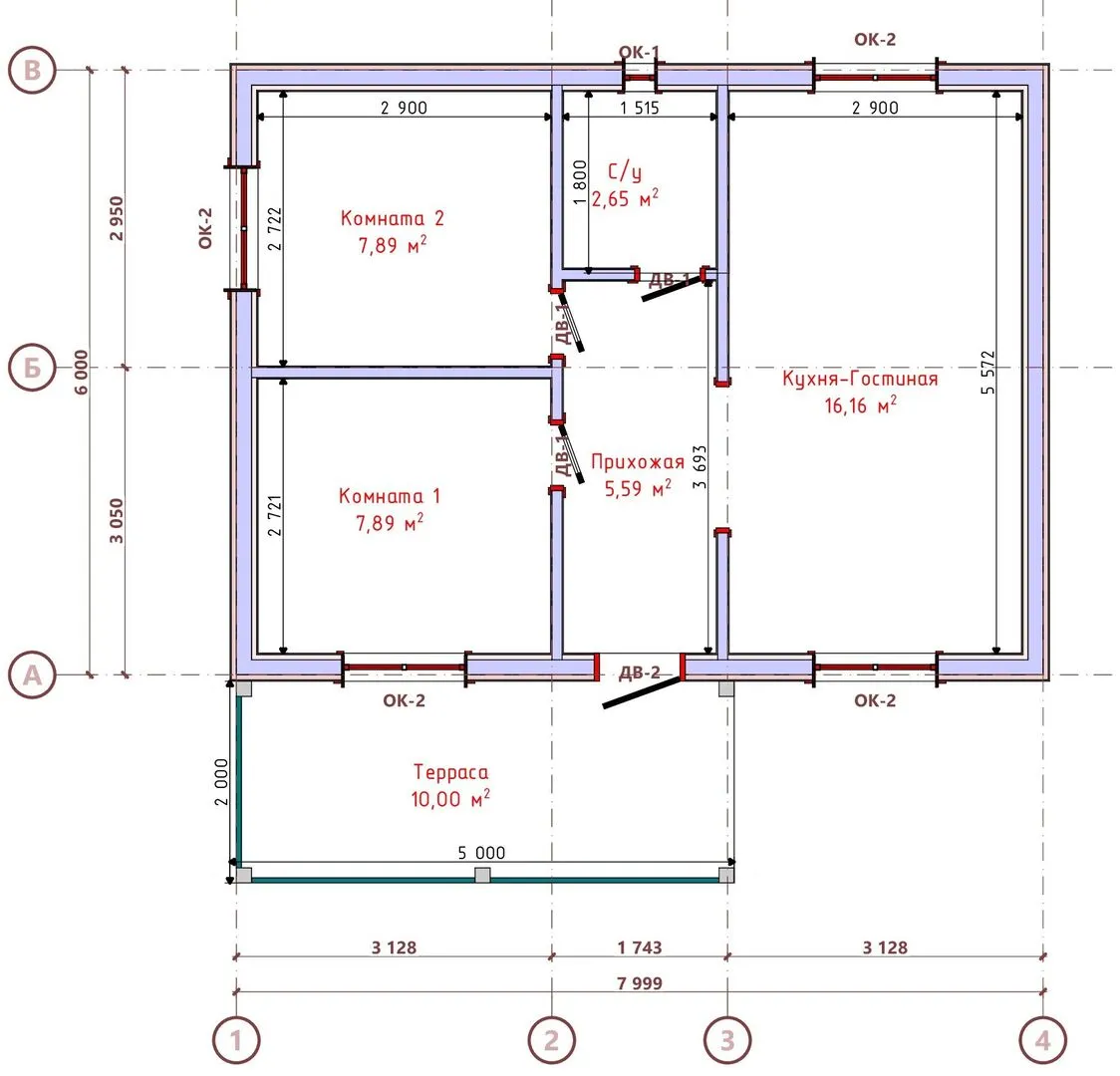
Каркасный дом 50,1 кв.м

Стоимость проекта от:
22 500 ₽
БЕСПЛАТНО! ПРИ ЗАКАЗЕ СТРОИТЕЛЬСТВА
Стоимость строительства от:
2 898 500 ₽
Артикул ART-15780
Дата 25.12.2025
Архитектурный стиль Классический
Количество надземных этажей 1
Круглогодичное проживание Да
Площадь дома 50 м2
Санузлы 1
Спальни 2

Описание

Добро пожаловать в уютный уголок классического деревянного дома, где каждая деталь пронизана теплом и спокойствием. Это ваш собственный шедевр 50,1 м², построенный из прочного деревянного каркаса с типичной двускатной крышей – гармоничное сочетание традиций и современных технологий. Один надземный этаж, рассчитанный на круглогодичное проживание, предлагает простое и свободное пространство, где свет льется с больших окон, а тепло мягко рассеивается по стенам и полам. В доме нет громоздких балконов и веранды, но есть просторная терраса, открывающая вид на зелёные просторы и позволяющая наслаждаться свежим воздухом не выходя за порог. Интерьер выполнен в классическом стиле, где натуральный материал дерева встречается с современными элементами – от светлых стен до приятных акцентов в мебели. Кровать, уютный уголок для чтения и светлая кухня – всё продумано так, чтобы каждый нашёл здесь своё место для отдыха и гармонии. Этот дом – идеальный выбор для тех, кто ценит простоту, элегантность и функциональность. Он приглашает почувствовать настоящий дух семейного уюта и стать местом, где каждый шаг наполнен теплом и ощущением дома. Выбирая этот деревянный каркас, вы инвестируете в комфорт, качество и бесконечные возможности для творчества и релаксации.

Характеристики дома

Архитектурный стиль
Автоматизированное регулирование параметров теплоносителя
Да
Балконы/лоджии
Отсутствуют
Чердачное помещение
Нет
Датчики протечки воды
Нет
Эксплуатируемая или зеленая кровля
Нет
Электроснабжение
Индивидуальное
Газоснабжение
Не предусмотрено
Изоляция воздушного шума
Нет
Камин
Нет
Класс энергоэффективности
-
Класс энергосбережения
-
Количество надземных этажей
1
Круглогодичное проживание
Да
Материал кровли
Металлочерепица
Материал перекрытий
Деревянные
Материал внешних стен
Материал внутренних перегородок
Деревянные
Модульное строительство с конструкциями заводского изготовления
Нет
Объем надземной части
230 м3
Основной материал фасадов
Дерево
Отопление
Индивидуальное
Площадь дома
50 м2
Площадь застройки
58 м2
Подвальное помещение
Нет
Показатель компактности здания
-
Приборы учета тепловой энергии
Да
Пристроенный гараж/крытая автостоянка
Нет
Противопожарная система
Нет
Санузлы
1
Совмещенная кухня-гостиная
Да
Спальни
2
Терраса
Да
Тип фундамента
Свайный
Тип кровли
Толщина внешних стен
150 мм
Толщина внутренних перегородок
100 мм
Улучшенные шумовые характеристики
Нет
Вентиляция
Естественная
Веранда
Нет
Водоотведение
Локальные очистные сооружения
Водоснабжение
Индивидуальное
Высота дома
4.8 м
Высота потолков
2.5 м

Планировка

Фасад дома

Александр

Закажите выезд инженера

Александр

Выездной инженер
Закажите выезд инженера для точной диагностики и профессиональной консультации по инженерным системам. Специалист приедет в удобное время, проведёт осмотр, рассчитает стоимость работ и подберёт оптимальные решения для вашего дома.


    Похожие проекты

    Ипотека и
    рассрочка
    Загородный дом АС-219
    Стоимость от:
    26 136 440
    Проект от: 171 900
    Этажей 1
    Санузлы 5
    Спальни 5
    Смотреть
    Ипотека и
    рассрочка
    Д-120
    Стоимость от:
    8 520 480
    Проект от: 54 900
    Этажей 2
    Санузлы 2
    Спальни 4
    Смотреть
    Ипотека и
    рассрочка
    Небольшой, уютный загородный дом.
    Стоимость от:
    4 889 500
    Проект от: 29 250
    Этажей 1
    Санузлы 1
    Спальни 3
    Смотреть
    Ипотека и
    рассрочка
    Лерос 2
    Стоимость от:
    9 690 780
    Проект от: 58 050
    Этажей 1
    Санузлы 2
    Спальни 3
    Смотреть
    Ипотека и
    рассрочка
    «Сидоров»
    Стоимость от:
    4 013 160
    Проект от: 30 150
    Этажей 2
    Санузлы 1
    Спальни 3
    Смотреть
    Ипотека и
    рассрочка
    Времена Года. Весна, лето, зима, осень. Комплектация базовая.
    Стоимость от:
    474 300
    Проект от: 45 900
    Этажей 2
    Санузлы 2
    Спальни 2
    Смотреть

    Как узнать стоимость дома

    back
    Оставляете заявку
    Вы заполняете форму на сайте или звоните нам. Менеджер Лайвкрафт связывается с вами для уточнения деталей: тип дома, площадь, материалы, участок строительства.
    back
    Консультация и подбор решения
    Наш специалист помогает выбрать оптимальный тип дома и конструкцию с учётом бюджета, сроков и целей — будь то дом для постоянного проживания или дача.
    back
    Расчёт предварительной стоимости
    Инженер делает первичный расчёт стоимости строительства по вашим параметрам: фундамент, коробка, кровля, отделка. Вы получаете смету с разбивкой по этапам.
    back
    Корректировка и утверждение сметы
    При необходимости вносим изменения — например, замену материалов или сокращение этапов. После согласования формируется окончательная фиксированная смета.
    back
    Заключение договора и старт работ
    После утверждения сметы заключаем официальный договор с гарантией. Вы получаете прозрачный график и точную стоимость — без скрытых расходов.

    Заказать конусльтацию по:Каркасный дом 50,1 кв.м

    Фото 1 Каркасный дом 50,1 кв.м


      Наши
      контакты

      Дмитров
      Опорный проезд 28Б
      (индустриальный парк Ниагара)
      9:00 до 18:00

      Корзина