4.9
Рейтинг на основании 120 отзывов
Дмитров
Опорный проезд 28Б
(индустриальный парк Ниагара)
Бренд "Дмитров-Дело" c 2008 года на рынке строительства в Дмитрове
Звоните 9:00 до 18:00 8 (915) 055-33-61
Бренд "Дмитров-Дело" c 2008 года на рынке строительства в Дмитрове

Каркасный дом Адаль 83

Стоимость проекта от:
37 350 ₽
БЕСПЛАТНО! ПРИ ЗАКАЗЕ СТРОИТЕЛЬСТВА
Стоимость строительства от:
4 797 815 ₽
Артикул ART-14372
Дата 25.12.2025
Архитектурный стиль Скандинавский
Количество надземных этажей 1
Круглогодичное проживание Да
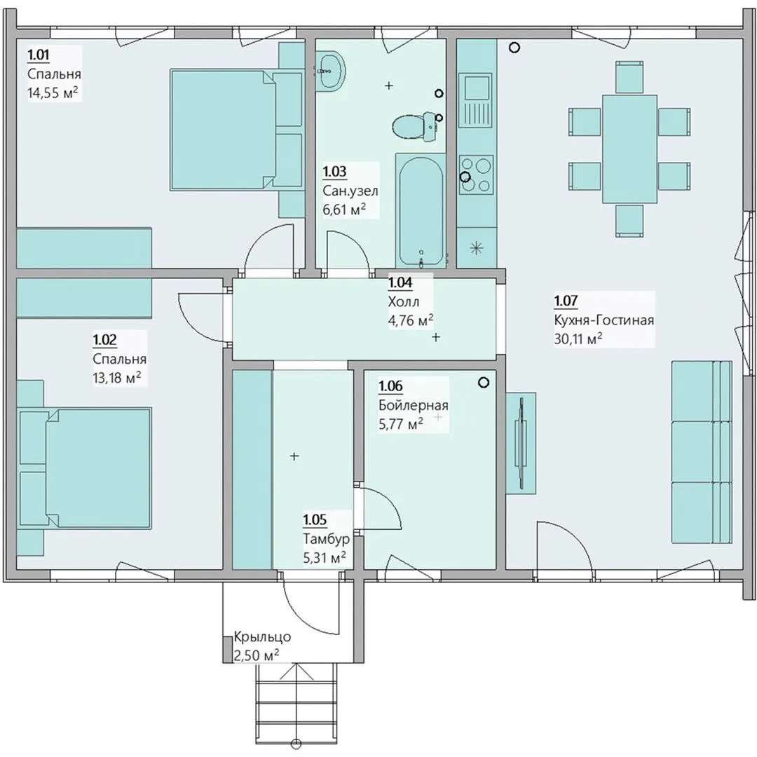
Площадь дома 83 м2
Санузлы 1
Спальни 2

Описание

Деревянный каркасный дом **Адаль 83**—это воплощение уюта и современного минимализма в ярко выраженном скандинавском стиле. Благодаря одной надземной поверке, уют вашего дома будет доступен круглый год: просторные комнаты, открытая планировка и большие окна пропускают естественный свет, создавая атмосферу тепла даже в холодных зимних днях. Внутри вы найдете продуманное решение помещений: от светлой, обустроенной гостиной до тихой спальни, где каждый элемент напоминает о чистоте и гармонии. Лаконичность конструкции дарит ощущение простора, а древесный материал внешних стен обеспечивает тепло- и звукоизоляцию, делая ваш дом комфортным убежищем от городского шума. Крыловка в комбинированном исполнении не только защищает от непогоды, но и добавляет современный акцент к классическому дизайну. В отсутствие навесных конструкций, таких как балконы, лоджии и веранда, дом предлагает непереборную концентрацию пространства, превращая каждый уголок в комфортный уголок. **Адаль 83** – это идеальное сочетание традиций и новаторства. Он не просто дом, а место, где хочется оставаться. Его функциональность, эстетика и внимание к деталям обеспечивают вам и вашей семье уединенный уголок, в котором каждый день наполнен уютом и гармонией. Возьмите ключи и откройте дверь в новое ощущение домашнего счастья.

Характеристики дома

Архитектурный стиль
Автоматизированное регулирование параметров теплоносителя
Нет
Балконы/лоджии
Отсутствуют
Чердачное помещение
Нет
Датчики протечки воды
Нет
Эксплуатируемая или зеленая кровля
Нет
Электроснабжение
Не предусмотрено
Газоснабжение
Не предусмотрено
Изоляция воздушного шума
Да
Камин
Нет
Класс энергоэффективности
-
Класс энергосбережения
-
Количество надземных этажей
1
Круглогодичное проживание
Да
Материал кровли
Металлочерепица
Материал перекрытий
Деревянные
Материал внешних стен
Материал внутренних перегородок
Деревянные
Модульное строительство с конструкциями заводского изготовления
Нет
Объем надземной части
282 м3
Основной материал фасадов
Дерево
Отопление
Не предусмотрено
Площадь дома
83 м2
Площадь застройки
93 м2
Подвальное помещение
Нет
Показатель компактности здания
-
Приборы учета тепловой энергии
Нет
Пристроенный гараж/крытая автостоянка
Нет
Противопожарная система
Нет
Санузлы
1
Совмещенная кухня-гостиная
Да
Спальни
2
Терраса
Нет
Тип фундамента
Свайно-винтовой
Тип кровли
Толщина внешних стен
190 мм
Толщина внутренних перегородок
145 мм
Улучшенные шумовые характеристики
Да
Вентиляция
Естественная
Веранда
Нет
Водоотведение
Не предусмотрено
Водоснабжение
Не предусмотрено
Высота дома
4.5 м
Высота потолков
2.1 м

Планировка

Фасад дома

Александр

Закажите выезд инженера

Александр

Выездной инженер
Закажите выезд инженера для точной диагностики и профессиональной консультации по инженерным системам. Специалист приедет в удобное время, проведёт осмотр, рассчитает стоимость работ и подберёт оптимальные решения для вашего дома.


    Похожие проекты

    Ипотека и
    рассрочка
    Индивидуальный Сибитный дом 24-09-05
    Стоимость от:
    5 790 840
    Проект от: 36 900
    Этажей 1
    Санузлы 1
    Спальни 3
    Смотреть
    Ипотека и
    рассрочка
    Загородный одноэтажный дом с гаражом «Барнхаус С01»
    Стоимость от:
    6 783 810
    Проект от: 54 900
    Этажей 1
    Санузлы 2
    Спальни 2
    Смотреть
    Ипотека и
    рассрочка
    Времена Года. Весна, лето, зима, осень. Комплектация базовая.
    Стоимость от:
    474 300
    Проект от: 45 900
    Этажей 2
    Санузлы 2
    Спальни 2
    Смотреть
    Ипотека и
    рассрочка
    219-П
    Стоимость от:
    17 855 420
    Проект от: 103 950
    Этажей 1
    Санузлы 3
    Спальни 3
    Смотреть
    Ипотека и
    рассрочка
    Дом из бруса с гаражом
    Стоимость от:
    11 299 200
    Проект от: 72 000
    Этажей 1
    Санузлы 1
    Спальни 3
    Смотреть
    Ипотека и
    рассрочка
    Одноэтажный дом СКАЙ-81
    Стоимость от:
    5 720 220
    Проект от: 36 450
    Этажей 1
    Санузлы 2
    Спальни 2
    Смотреть

    Как узнать стоимость дома

    back
    Оставляете заявку
    Вы заполняете форму на сайте или звоните нам. Менеджер Лайвкрафт связывается с вами для уточнения деталей: тип дома, площадь, материалы, участок строительства.
    back
    Консультация и подбор решения
    Наш специалист помогает выбрать оптимальный тип дома и конструкцию с учётом бюджета, сроков и целей — будь то дом для постоянного проживания или дача.
    back
    Расчёт предварительной стоимости
    Инженер делает первичный расчёт стоимости строительства по вашим параметрам: фундамент, коробка, кровля, отделка. Вы получаете смету с разбивкой по этапам.
    back
    Корректировка и утверждение сметы
    При необходимости вносим изменения — например, замену материалов или сокращение этапов. После согласования формируется окончательная фиксированная смета.
    back
    Заключение договора и старт работ
    После утверждения сметы заключаем официальный договор с гарантией. Вы получаете прозрачный график и точную стоимость — без скрытых расходов.

    Заказать конусльтацию по:Каркасный дом Адаль 83

    Фото 1 Каркасный дом Адаль 83


      Наши
      контакты

      Дмитров
      Опорный проезд 28Б
      (индустриальный парк Ниагара)
      9:00 до 18:00

      Корзина