4.9
Рейтинг на основании 120 отзывов
Дмитров
Опорный проезд 28Б
(индустриальный парк Ниагара)
Бренд "Дмитров-Дело" c 2008 года на рынке строительства в Дмитрове
Звоните 9:00 до 18:00 8 (915) 055-33-61
Бренд "Дмитров-Дело" c 2008 года на рынке строительства в Дмитрове

Каркасный дом с террасой

Стоимость проекта от:
33 750 ₽
Стоимость строительства от:
4 335 375 ₽
Артикул ART-12616
Дата 25.12.2025
Архитектурный стиль Американский/Канадский
Количество надземных этажей 1
Круглогодичное проживание Да
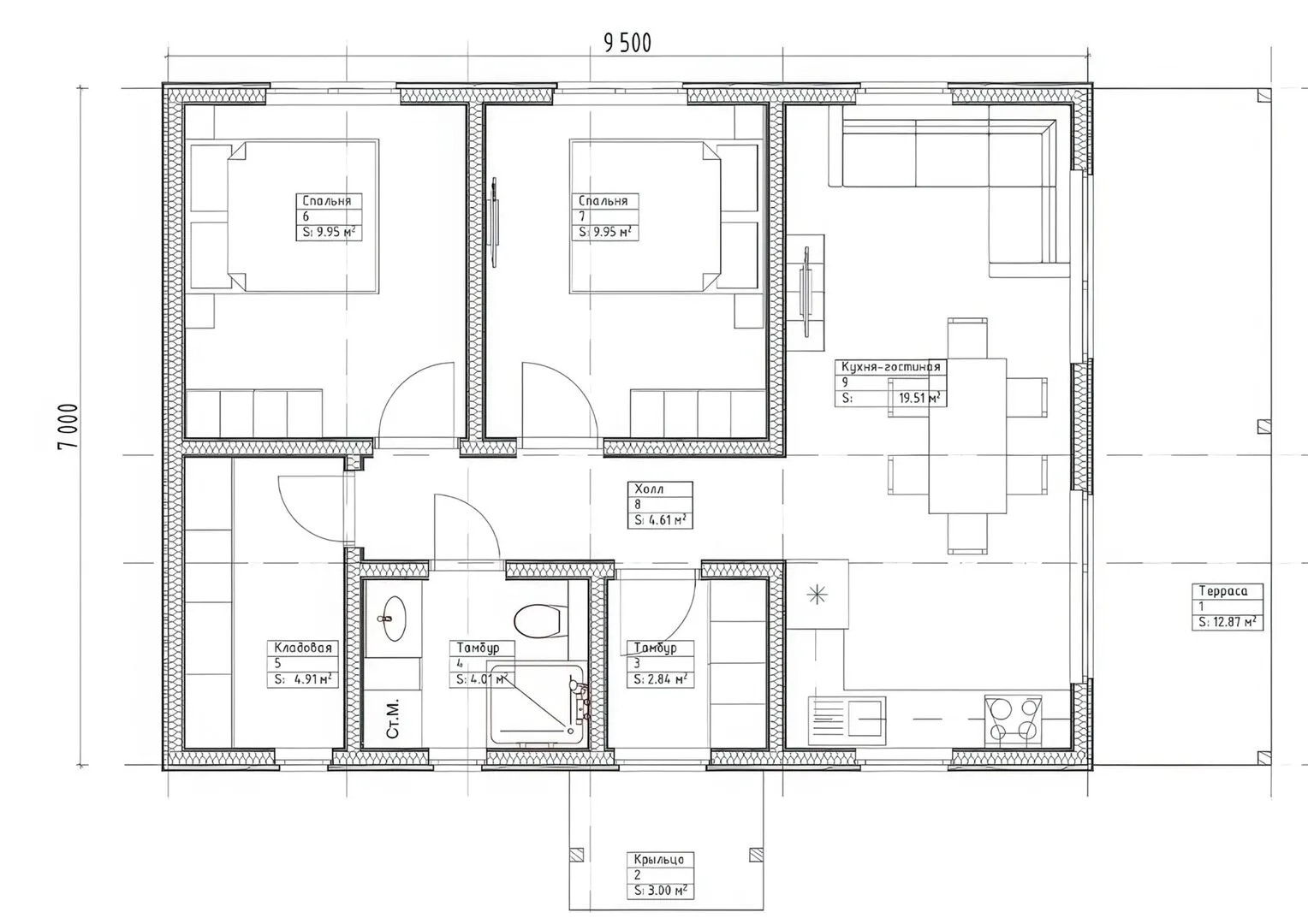
Площадь дома 75 м2
Санузлы 1
Спальни 2

Описание

Сочетая простоту американского и канадского дизайна с теплом деревянного каркаса, ваш будущий дом станет уютным уголком, где каждый день ощущается как прогулка по свежему ветру. Одноэтажная застройка, выполненная в элегантном двускатном стиле, гарантирует комфорт и практичность: от простых, но функциональных помещений до просторной террасы, где рассветы и закаты будут сопровождать вас бесконечной романтикой. Благодаря продуманных инженерным решениям, дом предназначен для круглогодичного проживания – от солнечных летних вечеров до тихих зимних ночей, наполненных теплом и светом. Экстерьер, созданный из древесных стен и подчёрканный мягкой линией крыши, подчёркивает природную гармонию и элегантность пространства. Деревянный каркас обеспечивает надежные структурные свойства и быстрое строительство, а современный дизайн делает помещение непринужденно уютным и уютной семейной атмосферой. Тераса — ваше личное пристанище, где можно насладиться свежим воздухом, обставив пространство элементами сада, уютными подушками и огромким ароматом кленового дерева, характерного для северной природы. Вдохните в дом атмосферу простого и искреннего стиля. Сияющий солнечный свет, живописные пейзажи и неповторимый комфорт — вот что ваш будущий дом готов предложить каждому, кто ищет место, где жизнь будет гармонично сочетаться с природой и ощущением уюта. Откройте двери на свой новый образ жизни в этом чарующем, но в то же время практичном пространстве.

Характеристики дома

Архитектурный стиль
Американский/Канадский
Автоматизированное регулирование параметров теплоносителя
Нет
Балконы/лоджии
Отсутствуют
Чердачное помещение
Нет
Датчики протечки воды
Нет
Эксплуатируемая или зеленая кровля
Нет
Электроснабжение
Центральное
Газоснабжение
Не предусмотрено
Изоляция воздушного шума
Нет
Камин
Нет
Класс энергоэффективности
-
Класс энергосбережения
-
Количество надземных этажей
1
Круглогодичное проживание
Да
Материал кровли
Металлочерепица
Материал перекрытий
Деревянные
Материал внешних стен
Деревянные каркасные
Материал внутренних перегородок
Деревянные
Модульное строительство с конструкциями заводского изготовления
Нет
Объем надземной части
-
Основной материал фасадов
Сайдинг
Отопление
Не предусмотрено
Площадь дома
75 м2
Площадь застройки
75 м2
Подвальное помещение
Нет
Показатель компактности здания
-
Приборы учета тепловой энергии
Нет
Пристроенный гараж/крытая автостоянка
Нет
Противопожарная система
Нет
Санузлы
1
Совмещенная кухня-гостиная
Да
Спальни
2
Терраса
Да
Тип фундамента
Свайно-винтовой
Тип кровли
Двускатная
Толщина внешних стен
150 мм
Толщина внутренних перегородок
150 мм
Улучшенные шумовые характеристики
Нет
Вентиляция
Естественная
Веранда
Нет
Водоотведение
Локальные очистные сооружения
Водоснабжение
Индивидуальное
Высота дома
4.5 м
Высота потолков
2.8 м

Планировка

Фасад дома

Александр

Закажите выезд инженера

Александр

Выездной инженер
Закажите выезд инженера для точной диагностики и профессиональной консультации по инженерным системам. Специалист приедет в удобное время, проведёт осмотр, рассчитает стоимость работ и подберёт оптимальные решения для вашего дома.


    Похожие проекты

    Ипотека и
    рассрочка
    Флагман
    Стоимость от:
    10 024 520
    Проект от: 56 700
    Этажей 1
    Санузлы 1
    Спальни 3
    Смотреть
    Ипотека и
    рассрочка
    ДАЧА’83
    Стоимость от:
    9 396 000
    Проект от: 67 500
    Этажей 2
    Санузлы 2
    Спальни 3
    Смотреть
    Ипотека и
    рассрочка
    Классик 128
    Стоимость от:
    6 113 880
    Проект от: 45 900
    Этажей 2
    Санузлы 2
    Спальни 3
    Смотреть
    Ипотека и
    рассрочка
    Серия «КЛАССИКА» КД-9
    Стоимость от:
    7 155 300
    Проект от: 54 900
    Этажей 2
    Санузлы 2
    Спальни 3
    Смотреть
    Ипотека и
    рассрочка
    Танхаус для 2х семей с навесом ,в стиле «BARN»
    Стоимость от:
    24 815 760
    Проект от: 157 050
    Этажей 2
    Санузлы 2
    Спальни 6
    Смотреть
    Ипотека и
    рассрочка
    Одноэтажный дом 128 м2 GAMLA
    Стоимость от:
    9 261 340
    Проект от: 57 150
    Этажей 1
    Санузлы 2
    Спальни 3
    Смотреть

    Как узнать стоимость дома

    back
    Оставляете заявку
    Вы заполняете форму на сайте или звоните нам. Менеджер Лайвкрафт связывается с вами для уточнения деталей: тип дома, площадь, материалы, участок строительства.
    back
    Консультация и подбор решения
    Наш специалист помогает выбрать оптимальный тип дома и конструкцию с учётом бюджета, сроков и целей — будь то дом для постоянного проживания или дача.
    back
    Расчёт предварительной стоимости
    Инженер делает первичный расчёт стоимости строительства по вашим параметрам: фундамент, коробка, кровля, отделка. Вы получаете смету с разбивкой по этапам.
    back
    Корректировка и утверждение сметы
    При необходимости вносим изменения — например, замену материалов или сокращение этапов. После согласования формируется окончательная фиксированная смета.
    back
    Заключение договора и старт работ
    После утверждения сметы заключаем официальный договор с гарантией. Вы получаете прозрачный график и точную стоимость — без скрытых расходов.

    Заказать конусльтацию по:Каркасный дом с террасой

    Фото 1 Каркасный дом с террасой


      Наши
      контакты

      Дмитров
      Опорный проезд 28Б
      (индустриальный парк Ниагара)
      9:00 до 18:00