4.9
Рейтинг на основании 120 отзывов
Дмитров
Опорный проезд 28Б
(индустриальный парк Ниагара)
Бренд "Дмитров-Дело" c 2008 года на рынке строительства в Дмитрове
Звоните 9:00 до 18:00 8 (915) 055-33-61
Бренд "Дмитров-Дело" c 2008 года на рынке строительства в Дмитрове

Каркасный жилой дом ДК-98

Стоимость проекта от:
44 100 ₽
БЕСПЛАТНО! ПРИ ЗАКАЗЕ СТРОИТЕЛЬСТВА
Стоимость строительства от:
5 465 460 ₽
Артикул ART-15529
Дата 25.12.2025
Архитектурный стиль Барнхаус
Количество надземных этажей 1
Круглогодичное проживание Да
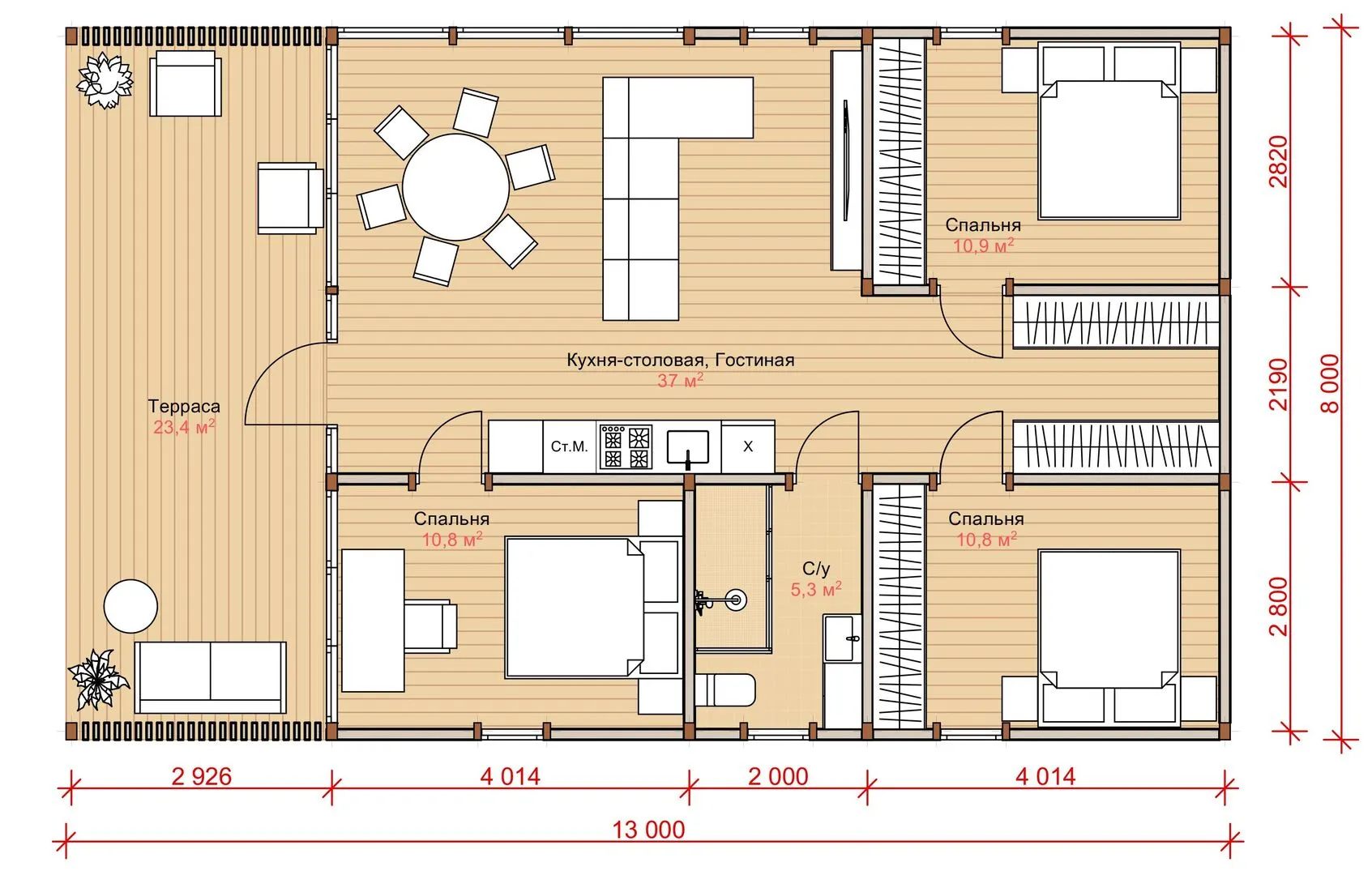
Площадь дома 98 м2
Санузлы 1
Спальни 3

Описание

Небольшой, но душевный каркасный дом ДК‑98 в стиле «Barnhouse» – идеальная идея для тех, кто ищет уют, простоту и современные решения. Один надземный этаж, полностью закрытый от ветра и холода, позволяет ощущать тепло и комфорт круглый год, а строгая, но красивая структура из деревянных каркасов придаёт каждому квадратному метру особую живую энергию. Просторная планировка и внимательный подбор материалов гарантируют, что ваш дом будет служить семьям долгое время, не теряя своего очарования. Тщательно продуманный дизайн предусматривает открытые зоны, где естественное освещение и свежий воздух создают атмосферу, словно вы живёте в загородном приюте. Отсутствие балконов и веранд, а также отсутствие чердака и прицепленного гаража делают выбор простым и практичным – всё, что нужно, находится внутри вашего уютного пространства. Внутренний простор объединён в единую систему, где каждый уголок служит конкретной функции, а открытая планировка позволяет свободно развиваться вашему интерьеру. Особая привлекательность дома – это терраса: здесь можно проводить вечерние беседы, наслаждаться ароматом свежего воздуха, а также просто отдыхать и наблюдать за природой. Кровля, выполненная в классической двускатной форме, не только обеспечивает надёжную защиту от погодных условий, но и придаёт фасаду гармоничный, приглашающий вид. Весь дом обрамлён высококачественными деревянными стенами, которые сохраняют тепло и защищают от шума, делая ваше жильё настоящим убежищем от городской суеты. Вложите свой выбор в надежность и уют – дом ДК‑98 ждёт тех, кто ценит гармонию, функциональность и красивую простоту.

Характеристики дома

Архитектурный стиль
Автоматизированное регулирование параметров теплоносителя
Да
Балконы/лоджии
Отсутствуют
Чердачное помещение
Нет
Датчики протечки воды
Да
Эксплуатируемая или зеленая кровля
Нет
Электроснабжение
2 варианта
Газоснабжение
Не предусмотрено
Изоляция воздушного шума
Да
Камин
Нет
Класс энергоэффективности
-
Класс энергосбережения
-
Количество надземных этажей
1
Круглогодичное проживание
Да
Материал кровли
Металлические листовые гофрированные профили
Материал перекрытий
Деревянные
Материал внешних стен
Материал внутренних перегородок
Деревянные
Модульное строительство с конструкциями заводского изготовления
Нет
Объем надземной части
220 м3
Основной материал фасадов
Фальцевая кровля кликфальц
Отопление
Индивидуальное
Площадь дома
98 м2
Площадь застройки
113 м2
Подвальное помещение
Нет
Показатель компактности здания
-
Приборы учета тепловой энергии
Да
Пристроенный гараж/крытая автостоянка
Нет
Противопожарная система
Нет
Санузлы
1
Совмещенная кухня-гостиная
Да
Спальни
3
Терраса
Да
Тип фундамента
Свайный
Тип кровли
Толщина внешних стен
210 мм
Толщина внутренних перегородок
140 мм
Улучшенные шумовые характеристики
Да
Вентиляция
2 варианта
Веранда
Нет
Водоотведение
2 варианта
Водоснабжение
2 варианта
Высота дома
3.9 м
Высота потолков
3.4 м

Планировка

Фасад дома

Александр

Закажите выезд инженера

Александр

Выездной инженер
Закажите выезд инженера для точной диагностики и профессиональной консультации по инженерным системам. Специалист приедет в удобное время, проведёт осмотр, рассчитает стоимость работ и подберёт оптимальные решения для вашего дома.


    Похожие проекты

    Ипотека и
    рассрочка
    Одноэтажный Дом 92,3 м2
    Стоимость от:
    6 915 040
    Проект от: 41 400
    Этажей 1
    Санузлы 1
    Спальни 2
    Смотреть
    Ипотека и
    рассрочка
    Загородный дом РУНА 207
    Стоимость от:
    11 034 720
    Проект от: 71 100
    Этажей 2
    Санузлы 2
    Спальни 4
    Смотреть
    Ипотека и
    рассрочка
    Проект A022
    Стоимость от:
    5 639 700
    Проект от: 33 750
    Этажей 1
    Санузлы 1
    Спальни 3
    Смотреть
    Ипотека и
    рассрочка
    Брум
    Стоимость от:
    6 077 280
    Проект от: 43 200
    Этажей 1
    Санузлы 1
    Спальни 2
    Смотреть
    Ипотека и
    рассрочка
    Simple
    Стоимость от:
    9 115 700
    Проект от: 56 250
    Этажей 1
    Санузлы 2
    Спальни 3
    Смотреть
    Ипотека и
    рассрочка
    Загородный дом с террасой 07-23КД1.
    Стоимость от:
    5 394 950
    Проект от: 38 250
    Этажей 1
    Санузлы 1
    Спальни 3
    Смотреть

    Как узнать стоимость дома

    back
    Оставляете заявку
    Вы заполняете форму на сайте или звоните нам. Менеджер Лайвкрафт связывается с вами для уточнения деталей: тип дома, площадь, материалы, участок строительства.
    back
    Консультация и подбор решения
    Наш специалист помогает выбрать оптимальный тип дома и конструкцию с учётом бюджета, сроков и целей — будь то дом для постоянного проживания или дача.
    back
    Расчёт предварительной стоимости
    Инженер делает первичный расчёт стоимости строительства по вашим параметрам: фундамент, коробка, кровля, отделка. Вы получаете смету с разбивкой по этапам.
    back
    Корректировка и утверждение сметы
    При необходимости вносим изменения — например, замену материалов или сокращение этапов. После согласования формируется окончательная фиксированная смета.
    back
    Заключение договора и старт работ
    После утверждения сметы заключаем официальный договор с гарантией. Вы получаете прозрачный график и точную стоимость — без скрытых расходов.

    Заказать конусльтацию по:Каркасный жилой дом ДК-98

    Фото 1 Каркасный жилой дом ДК-98


      Наши
      контакты

      Дмитров
      Опорный проезд 28Б
      (индустриальный парк Ниагара)
      9:00 до 18:00

      Корзина