4.9
Рейтинг на основании 120 отзывов
Дмитров
Опорный проезд 28Б
(индустриальный парк Ниагара)
Бренд "Дмитров-Дело" c 2008 года на рынке строительства в Дмитрове
Звоните 9:00 до 18:00 8 (915) 055-33-61
Бренд "Дмитров-Дело" c 2008 года на рынке строительства в Дмитрове

Одноэтажный MINI house

Стоимость проекта от:
30 600 ₽
БЕСПЛАТНО! ПРИ ЗАКАЗЕ СТРОИТЕЛЬСТВА
Стоимость строительства от:
4 802 160 ₽
Артикул ART-14815
Дата 25.12.2025
Архитектурный стиль Минимализм
Количество надземных этажей 1
Круглогодичное проживание Да
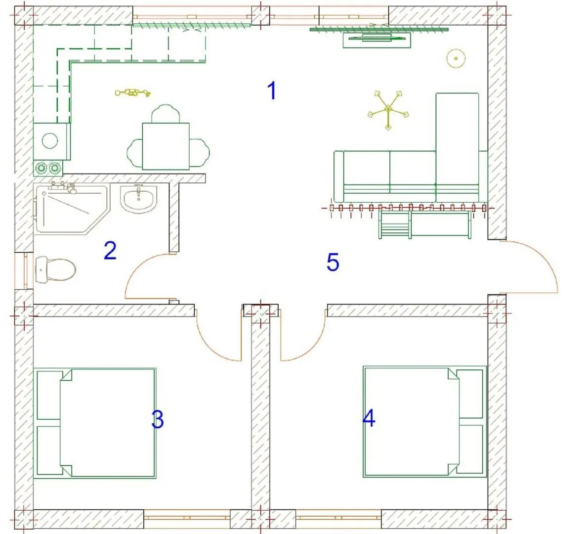
Площадь дома 68 м2
Санузлы 1
Спальни 2

Описание

Встречайте истинное воплощение уюта и эффективности – наш однокомнатный MINI house, созданный для тех, кто ценит простоту без лишнего лишнего. Одна открытая половина этажности раскрывает просторную планировку, где каждая зона живёт в гармонии с соседями. Внутреннее пространство обрамлено газобетонными стенами, дарящими превосходную тепло­изоляцию и надёжность даже в холодные зимние недели. Широкие внутренние окна, наполняющие квартиру солнечным светом, и лаконичный минимализм во всех деталях делают дом лаконичным убежищем, где спокойствие и порядок находятся в каждой детали. Крыша в традиционном четырёхскатном стиле гарантирует надёжную защиту от дождя и снега, придавая дому строгий, но в то же время элегантный внешний облик. Уникальность MINI house в том, что здесь нет лишних балконов, веранд, прицепной гаражной зоны – всё оставлено только тому, что действительно важно: уют, удобство и чистая линия форм. Это не просто одинокий этаж, это маленькое произведение искусства, готовое превратить ваш ежедневный ритм в безмятежную рутину, где каждой комнатой можно наслаждаться даже в холодное время года. Откройте дверь и обретите гармонию в стиле минимализма – дом, который понимает, что важно.

Характеристики дома

Архитектурный стиль
Автоматизированное регулирование параметров теплоносителя
Нет
Балконы/лоджии
Отсутствуют
Чердачное помещение
Нет
Датчики протечки воды
Нет
Эксплуатируемая или зеленая кровля
Нет
Электроснабжение
Индивидуальное
Газоснабжение
Индивидуальное
Изоляция воздушного шума
Нет
Камин
Нет
Класс энергоэффективности
-
Класс энергосбережения
-
Количество надземных этажей
1
Круглогодичное проживание
Да
Материал кровли
Металлочерепица
Материал перекрытий
Деревянные
Материал внешних стен
Материал внутренних перегородок
Блочные
Модульное строительство с конструкциями заводского изготовления
Нет
Объем надземной части
-
Основной материал фасадов
Штукатурка
Отопление
Индивидуальное
Площадь дома
68 м2
Площадь застройки
71 м2
Подвальное помещение
Нет
Показатель компактности здания
-
Приборы учета тепловой энергии
Нет
Пристроенный гараж/крытая автостоянка
Нет
Противопожарная система
Нет
Санузлы
1
Совмещенная кухня-гостиная
Да
Спальни
2
Терраса
Нет
Тип фундамента
Плитный
Толщина внешних стен
300 мм
Толщина внутренних перегородок
150 мм
Улучшенные шумовые характеристики
Нет
Вентиляция
Естественная
Веранда
Нет
Водоотведение
Локальные очистные сооружения
Водоснабжение
Индивидуальное
Высота дома
4.5 м
Высота потолков
2.7 м

Планировка

Фасад дома

Александр

Закажите выезд инженера

Александр

Выездной инженер
Закажите выезд инженера для точной диагностики и профессиональной консультации по инженерным системам. Специалист приедет в удобное время, проведёт осмотр, рассчитает стоимость работ и подберёт оптимальные решения для вашего дома.


    Похожие проекты

    Ипотека и
    рассрочка
    ROOMY-54
    Стоимость от:
    3 848 130
    Проект от: 31 050
    Этажей 1
    Санузлы 1
    Спальни 2
    Смотреть
    Ипотека и
    рассрочка
    ДТ-70
    Стоимость от:
    5 264 600
    Проект от: 31 500
    Этажей 1
    Санузлы 1
    Спальни 3
    Смотреть
    Ипотека и
    рассрочка
    Индивидуальное строительство
    Стоимость от:
    9 214 080
    Проект от: 66 150
    Этажей 2
    Санузлы 2
    Спальни 4
    Смотреть
    Ипотека и
    рассрочка
    BARN60 с боковым входом
    Стоимость от:
    3 457 740
    Проект от: 27 900
    Этажей 1
    Санузлы 1
    Спальни 2
    Смотреть
    Ипотека и
    рассрочка
    Бавария
    Стоимость от:
    9 321 840
    Проект от: 59 400
    Этажей 1
    Санузлы 2
    Спальни 3
    Смотреть
    Ипотека и
    рассрочка
    Одноэтажный-МД67
    Стоимость от:
    5 189 580
    Проект от: 31 050
    Этажей 1
    Санузлы 1
    Спальни 3
    Смотреть

    Как узнать стоимость дома

    back
    Оставляете заявку
    Вы заполняете форму на сайте или звоните нам. Менеджер Лайвкрафт связывается с вами для уточнения деталей: тип дома, площадь, материалы, участок строительства.
    back
    Консультация и подбор решения
    Наш специалист помогает выбрать оптимальный тип дома и конструкцию с учётом бюджета, сроков и целей — будь то дом для постоянного проживания или дача.
    back
    Расчёт предварительной стоимости
    Инженер делает первичный расчёт стоимости строительства по вашим параметрам: фундамент, коробка, кровля, отделка. Вы получаете смету с разбивкой по этапам.
    back
    Корректировка и утверждение сметы
    При необходимости вносим изменения — например, замену материалов или сокращение этапов. После согласования формируется окончательная фиксированная смета.
    back
    Заключение договора и старт работ
    После утверждения сметы заключаем официальный договор с гарантией. Вы получаете прозрачный график и точную стоимость — без скрытых расходов.

    Заказать конусльтацию по:Одноэтажный MINI house

    Фото 1 Одноэтажный MINI house


      Наши
      контакты

      Дмитров
      Опорный проезд 28Б
      (индустриальный парк Ниагара)
      9:00 до 18:00

      Корзина