4.9
Рейтинг на основании 120 отзывов
Дмитров
Опорный проезд 28Б
(индустриальный парк Ниагара)
Бренд "Дмитров-Дело" c 2008 года на рынке строительства в Дмитрове
Звоните 9:00 до 18:00 8 (915) 055-33-61
Бренд "Дмитров-Дело" c 2008 года на рынке строительства в Дмитрове

КБД 356

Стоимость проекта от:
42 750 ₽
БЕСПЛАТНО! ПРИ ЗАКАЗЕ СТРОИТЕЛЬСТВА
Стоимость строительства от:
6 708 900 ₽
Артикул ART-16108
Дата 25.12.2025
Архитектурный стиль Классический
Количество надземных этажей 1
Круглогодичное проживание Да
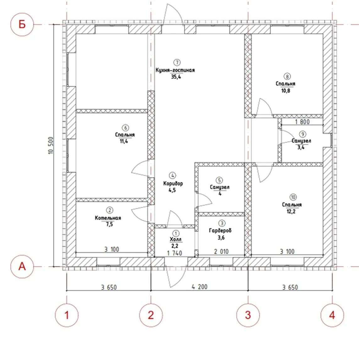
Площадь дома 95 м2
Санузлы 2
Спальни 3

Описание

Приветствуем вас в уютном доме под кадастровым номером КБД 356 – настоящем оазисе классической архитектуры, где каждый день начинается в тепле и комфорте. Это дом с одной надземной площадью, идеальный для круглогодичного проживания: утеплённые газобетонные блоки создают приятную и стабильную температуру, а четыре скатные – вальмовые кованые крыши отражают традиционную красоту и придают дому нотку величия. Несмотря на отсутствие балконов и веранд, обилие естественного света, пронизывающего просторные комнаты, компенсирует эти ограничения и делает внутреннее пространство светлым и просторным. Здесь вы найдёте привычны­ю классику во всех деталях: от элегантных колонн до благородных окон с рамами, вписанными в общий ансамбль. Чердачное помещение открывает дополнительное пространство, которое можно превратить в уютную мастерскую, игровую комнату или просто в кладовку для сезонных принадлежностей. Один этаж – это легкость передвижения и удобство для всех возрастов, а отсутствие прицепленного гаража освобождает место на участке для создания сада, игрового зоны или даже небольшой автостоянки по желанию покупателя. Пусть КБД 356 станет вашим новым домом, где классический стиль встречается с современными удобствами, а каждый уголок создаёт ощущение уюта и спокойствия. Свяжитесь с нами уже сегодня, чтобы узнать больше и записаться на просмотр – ваш идеальный дом ждет лишь одного шага!

Характеристики дома

Архитектурный стиль
Автоматизированное регулирование параметров теплоносителя
Да
Балконы/лоджии
Отсутствуют
Чердачное помещение
Да
Датчики протечки воды
Нет
Эксплуатируемая или зеленая кровля
Нет
Электроснабжение
Центральное
Газоснабжение
Центральное
Изоляция воздушного шума
Да
Камин
Нет
Класс энергоэффективности
B
Класс энергосбережения
A
Количество надземных этажей
1
Круглогодичное проживание
Да
Материал кровли
Металлочерепица
Материал перекрытий
Деревянные
Материал внешних стен
Материал внутренних перегородок
Блочные
Модульное строительство с конструкциями заводского изготовления
Нет
Объем надземной части
670 м3
Основной материал фасадов
Облицовочный кирпич
Отопление
Индивидуальное
Площадь дома
95 м2
Площадь застройки
127 м2
Подвальное помещение
Нет
Показатель компактности здания
1
Приборы учета тепловой энергии
Да
Пристроенный гараж/крытая автостоянка
Нет
Противопожарная система
Да
Санузлы
2
Совмещенная кухня-гостиная
Да
Спальни
3
Терраса
Нет
Тип фундамента
Плитный
Толщина внешних стен
650 мм
Толщина внутренних перегородок
150 мм
Улучшенные шумовые характеристики
Да
Вентиляция
2 варианта
Веранда
Нет
Водоотведение
Локальные очистные сооружения
Водоснабжение
Индивидуальное
Высота дома
5.27 м
Высота потолков
2.75 м

Планировка

Фасад дома

Александр

Закажите выезд инженера

Александр

Выездной инженер
Закажите выезд инженера для точной диагностики и профессиональной консультации по инженерным системам. Специалист приедет в удобное время, проведёт осмотр, рассчитает стоимость работ и подберёт оптимальные решения для вашего дома.


    Похожие проекты

    Ипотека и
    рассрочка
    Проект №1
    Стоимость от:
    8 476 080
    Проект от: 52 650
    Этажей 2
    Санузлы 2
    Спальни 4
    Смотреть
    Ипотека и
    рассрочка
    Дом из клееного бруса по проекту БД-8
    Стоимость от:
    11 077 920
    Проект от: 75 600
    Этажей 2
    Санузлы 2
    Спальни 2
    Смотреть
    Ипотека и
    рассрочка
    Индивидуальный жилой дом площадью 90м²
    Стоимость от:
    7 165 400
    Проект от: 40 500
    Этажей 1
    Санузлы 1
    Спальни 3
    Смотреть
    Ипотека и
    рассрочка
    Barling 127
    Стоимость от:
    8 689 340
    Проект от: 57 150
    Этажей 1
    Санузлы 3
    Спальни 4
    Смотреть
    Ипотека и
    рассрочка
    Модульный дом FL 51 (КО51)
    Стоимость от:
    4 126 980
    Проект от: 33 300
    Этажей 1
    Санузлы 1
    Спальни 2
    Смотреть
    Ипотека и
    рассрочка
    Одноэтажный Дом
    Стоимость от:
    6 464 920
    Проект от: 38 700
    Этажей 1
    Санузлы 1
    Спальни 3
    Смотреть

    Как узнать стоимость дома

    back
    Оставляете заявку
    Вы заполняете форму на сайте или звоните нам. Менеджер Лайвкрафт связывается с вами для уточнения деталей: тип дома, площадь, материалы, участок строительства.
    back
    Консультация и подбор решения
    Наш специалист помогает выбрать оптимальный тип дома и конструкцию с учётом бюджета, сроков и целей — будь то дом для постоянного проживания или дача.
    back
    Расчёт предварительной стоимости
    Инженер делает первичный расчёт стоимости строительства по вашим параметрам: фундамент, коробка, кровля, отделка. Вы получаете смету с разбивкой по этапам.
    back
    Корректировка и утверждение сметы
    При необходимости вносим изменения — например, замену материалов или сокращение этапов. После согласования формируется окончательная фиксированная смета.
    back
    Заключение договора и старт работ
    После утверждения сметы заключаем официальный договор с гарантией. Вы получаете прозрачный график и точную стоимость — без скрытых расходов.

    Заказать конусльтацию по:КБД 356

    Фото 1 КБД 356


      Наши
      контакты

      Дмитров
      Опорный проезд 28Б
      (индустриальный парк Ниагара)
      9:00 до 18:00

      Корзина