4.9
Рейтинг на основании 120 отзывов
Дмитров
Опорный проезд 28Б
(индустриальный парк Ниагара)
Бренд "Дмитров-Дело" c 2008 года на рынке строительства в Дмитрове
Звоните 9:00 до 18:00 8 (915) 055-33-61
Бренд "Дмитров-Дело" c 2008 года на рынке строительства в Дмитрове

Уют-140

Стоимость проекта от:
62 550 ₽
БЕСПЛАТНО! ПРИ ЗАКАЗЕ СТРОИТЕЛЬСТВА
Стоимость строительства от:
8 057 830 ₽
Артикул ART-16812
Дата 26.12.2025
Архитектурный стиль Европейский
Количество надземных этажей 1
Круглогодичное проживание Да
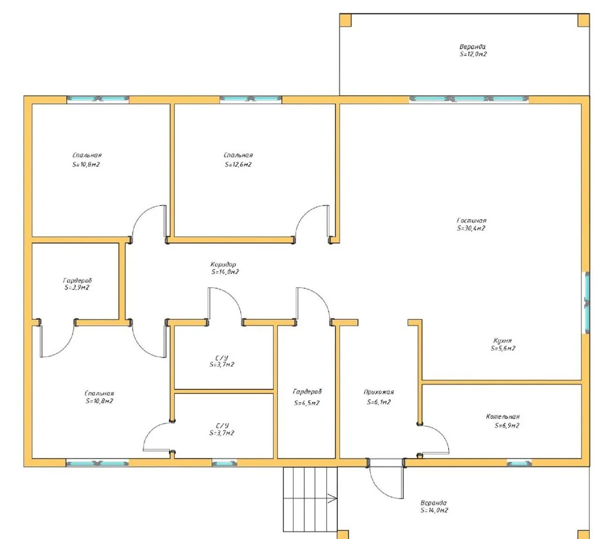
Площадь дома 139 м2
Санузлы 2
Спальни 3

Описание

Почувствуйте, как мягко открывается дверь «Уют‑140», привлекая к себе атмосферу европейского шарма и безмятежности. С единственным надземным этажом, построенным на крепком деревянном каркасе, интерьер выглядит открытым и светлым, а двускатная крыша добавляет нотку традиционной элегантности. Здесь царит ощущение уюта даже в самые холодные дни: благодаря круглогодичному проживанию и качественной теплоизоляции внутри вам и вашей семье будет комфортно, независимо от погоды на улице. Здесь два балкона и большая веранда – идеальные места для утреннего кофе или вечерних встреч с друзьями под звёздным небом. Вместе с просторными окнами, пропускающими кристальный свет, эти открытые пространства создают атмосферу свободы и лёгкости. Нет лишних деталей: без чердачных помещений и террас, но наличие просторных внутренней площади делает квартиру максимально функциональной и уютной. И, наконец, «Уют‑140» – это ваш тихий уголок, где каждая деталь продумана до мелочей: от изящных деревянных балластов до уютных уголков веранды. Он приглашает вас войти в пространство, где каждый день будет наполнен теплом, комфортом и ощущением, что вы уже дома. Именно здесь, в гармонии с природой и европейским стилем, вы сможете наслаждаться жизнью в её самой полной и радостной форме.

Характеристики дома

Архитектурный стиль
Автоматизированное регулирование параметров теплоносителя
Нет
Балконы/лоджии
2
Чердачное помещение
Нет
Датчики протечки воды
Нет
Эксплуатируемая или зеленая кровля
Нет
Электроснабжение
Центральное
Газоснабжение
Не предусмотрено
Изоляция воздушного шума
Да
Камин
Нет
Класс энергоэффективности
-
Класс энергосбережения
-
Количество надземных этажей
1
Круглогодичное проживание
Да
Материал кровли
Металлочерепица
Материал перекрытий
Деревянные
Материал внешних стен
Материал внутренних перегородок
Деревянные
Модульное строительство с конструкциями заводского изготовления
Нет
Объем надземной части
877 м3
Основной материал фасадов
Дерево
Отопление
Индивидуальное
Площадь дома
139 м2
Площадь застройки
139 м2
Подвальное помещение
Нет
Показатель компактности здания
-
Приборы учета тепловой энергии
Нет
Пристроенный гараж/крытая автостоянка
Нет
Противопожарная система
Нет
Санузлы
2
Совмещенная кухня-гостиная
Да
Спальни
3
Терраса
Нет
Тип фундамента
Свайный
Тип кровли
Толщина внешних стен
200 мм
Толщина внутренних перегородок
100 мм
Улучшенные шумовые характеристики
Да
Вентиляция
Естественная
Веранда
Да
Водоотведение
Локальные очистные сооружения
Водоснабжение
Индивидуальное
Высота дома
5 м
Высота потолков
2.7 м

Планировка

Фасад дома

Александр

Закажите выезд инженера

Александр

Выездной инженер
Закажите выезд инженера для точной диагностики и профессиональной консультации по инженерным системам. Специалист приедет в удобное время, проведёт осмотр, рассчитает стоимость работ и подберёт оптимальные решения для вашего дома.


    Похожие проекты

    Ипотека и
    рассрочка
    ЗАЛЬЦБУРГ-125
    Стоимость от:
    9 405 600
    Проект от: 58 500
    Этажей 2
    Санузлы 2
    Спальни 2
    Смотреть
    Ипотека и
    рассрочка
    Одноэтажный дом FIXPLANS — 1556
    Стоимость от:
    11 087 340
    Проект от: 70 650
    Этажей 1
    Санузлы 2
    Спальни 3
    Смотреть
    Ипотека и
    рассрочка
    Проект одноэтажного дома для узкого участка
    Стоимость от:
    6 389 900
    Проект от: 38 250
    Этажей 1
    Санузлы 2
    Спальни 3
    Смотреть
    Ипотека и
    рассрочка
    Двухэтажный дом Г-300
    Стоимость от:
    20 532 960
    Проект от: 132 300
    Этажей 2
    Санузлы 2
    Спальни 5
    Смотреть
    Ипотека и
    рассрочка
    Одноэтажный жилой дом по проекту «Вероника»
    Стоимость от:
    8 265 400
    Проект от: 49 500
    Этажей 1
    Санузлы 2
    Спальни 3
    Смотреть
    Ипотека и
    рассрочка
    Модульный дом А-66
    Стоимость от:
    3 982 550
    Проект от: 29 250
    Этажей 1
    Санузлы 1
    Спальни 3
    Смотреть

    Как узнать стоимость дома

    back
    Оставляете заявку
    Вы заполняете форму на сайте или звоните нам. Менеджер Лайвкрафт связывается с вами для уточнения деталей: тип дома, площадь, материалы, участок строительства.
    back
    Консультация и подбор решения
    Наш специалист помогает выбрать оптимальный тип дома и конструкцию с учётом бюджета, сроков и целей — будь то дом для постоянного проживания или дача.
    back
    Расчёт предварительной стоимости
    Инженер делает первичный расчёт стоимости строительства по вашим параметрам: фундамент, коробка, кровля, отделка. Вы получаете смету с разбивкой по этапам.
    back
    Корректировка и утверждение сметы
    При необходимости вносим изменения — например, замену материалов или сокращение этапов. После согласования формируется окончательная фиксированная смета.
    back
    Заключение договора и старт работ
    После утверждения сметы заключаем официальный договор с гарантией. Вы получаете прозрачный график и точную стоимость — без скрытых расходов.

    Заказать конусльтацию по:Уют-140

    Фото 1 Уют-140


      Наши
      контакты

      Дмитров
      Опорный проезд 28Б
      (индустриальный парк Ниагара)
      9:00 до 18:00

      Корзина