4.9
Рейтинг на основании 120 отзывов
Дмитров
Опорный проезд 28Б
(индустриальный парк Ниагара)
Бренд "Дмитров-Дело" c 2008 года на рынке строительства в Дмитрове
Звоните 9:00 до 18:00 8 (915) 055-33-61
Бренд "Дмитров-Дело" c 2008 года на рынке строительства в Дмитрове

КД-1-8

Стоимость проекта от:
39 600 ₽
Стоимость строительства от:
7 006 560 ₽
Артикул ART-16390
Дата 26.12.2025
Архитектурный стиль Классический
Количество надземных этажей 1
Круглогодичное проживание Да
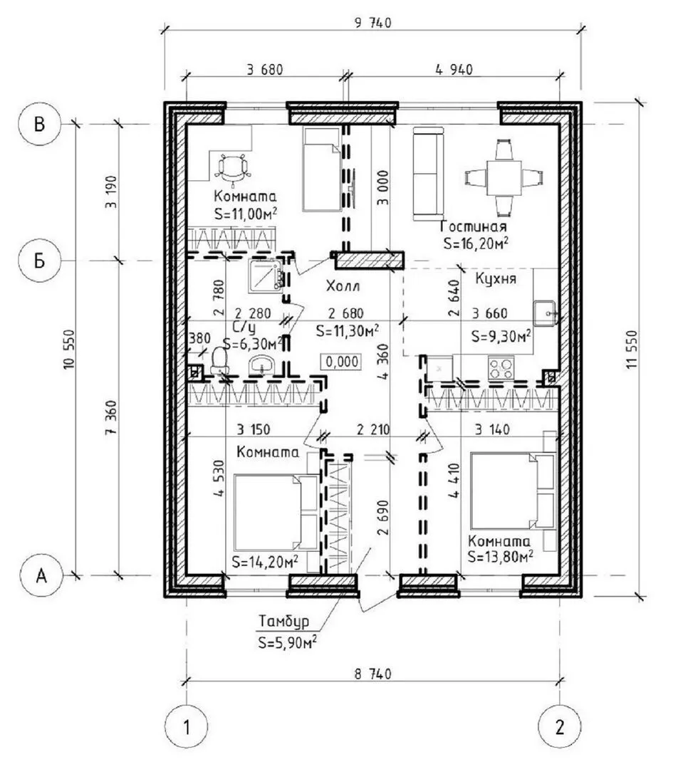
Площадь дома 88 м2
Санузлы 1
Спальни 3

Описание

КД‑1‑8 – это маленький уголок классической элегантности, созданный для тех, кто ценит уют и спокойствие. Дом полностью рассчитан на круглогодичное проживание: мягкий кирпичный фасад и надежные двускатные крыши защищают от непогоды, а уютная теплая атмосфера в помещении делает каждый день по‑другому. Здесь в гостиной с открытой кухней ощущается тепло стен, а в спальнях – ощущение домашнего уюта; все комнаты гармонично вписываются в один классический стиль, подчёркивая безмятежность и простоту. Отсутствие балконов, веранд и крытых стоянок делает этот дом идеальной площадкой для тех, кто предпочитает сосредоточиться на внутренних пространствах. Удобное расположение в городе или пригороде делает его отличным выбором как для семей, так и для одиночных жильцов. Завершая образ дома, можно посчитать его чердачное помещение в качестве уютного уголка для гостиной, хранилища или уютной студии, где творческий процесс заиграет яркими красками. КД‑1‑8 – ваш новый дом, наполненный классикой и теплом, чтобы каждый день начинался и завершался в атмосфере уюта и гармонии.

Характеристики дома

Архитектурный стиль
Классический
Автоматизированное регулирование параметров теплоносителя
Нет
Балконы/лоджии
Отсутствуют
Чердачное помещение
Да
Датчики протечки воды
Нет
Эксплуатируемая или зеленая кровля
Нет
Электроснабжение
Центральное
Газоснабжение
Центральное
Изоляция воздушного шума
Нет
Камин
Нет
Класс энергоэффективности
-
Класс энергосбережения
-
Количество надземных этажей
1
Круглогодичное проживание
Да
Материал кровли
Металлочерепица
Материал перекрытий
Деревянные
Материал внешних стен
Кирпич
Материал внутренних перегородок
Кирпичные
Модульное строительство с конструкциями заводского изготовления
Нет
Объем надземной части
486 м3
Основной материал фасадов
Облицовочный кирпич
Отопление
Индивидуальное
Площадь дома
88 м2
Площадь застройки
112 м2
Подвальное помещение
Нет
Показатель компактности здания
-
Приборы учета тепловой энергии
Нет
Пристроенный гараж/крытая автостоянка
Нет
Противопожарная система
Нет
Санузлы
1
Совмещенная кухня-гостиная
Да
Спальни
3
Терраса
Нет
Тип фундамента
Ленточный
Тип кровли
Двускатная
Толщина внешних стен
250 мм
Толщина внутренних перегородок
120 мм
Улучшенные шумовые характеристики
Нет
Вентиляция
Естественная
Веранда
Нет
Водоотведение
Локальные очистные сооружения
Водоснабжение
Индивидуальное
Высота дома
5.2 м
Высота потолков
2.8 м

Планировка

Фасад дома

Александр

Закажите выезд инженера

Александр

Выездной инженер
Закажите выезд инженера для точной диагностики и профессиональной консультации по инженерным системам. Специалист приедет в удобное время, проведёт осмотр, рассчитает стоимость работ и подберёт оптимальные решения для вашего дома.


    Похожие проекты

    Ипотека и
    рассрочка
    SVOI-24-1-83 Одноэтажный дом 83 кв.м.
    Стоимость от:
    6 239 860
    Проект от: 37 350
    Этажей 1
    Санузлы 1
    Спальни 2
    Смотреть
    Ипотека и
    рассрочка
    Жилой дом DC-95
    Стоимость от:
    7 006 560
    Проект от: 39 600
    Этажей 1
    Санузлы 2
    Спальни 3
    Смотреть
    Ипотека и
    рассрочка
    Проект дома с большой террасой и навесом для автомобиля S-158
    Стоимость от:
    19 705 680
    Проект от: 129 150
    Этажей 2
    Санузлы 3
    Спальни 3
    Смотреть
    Ипотека и
    рассрочка
    Дом, проект 916, 9,8х6,8м, 1 эт., брус 140х190
    Стоимость от:
    4 703 380
    Проект от: 26 550
    Этажей 1
    Санузлы 1
    Спальни 1
    Смотреть
    Ипотека и
    рассрочка
    Загородный дом АС-227
    Стоимость от:
    6 942 600
    Проект от: 52 200
    Этажей 2
    Санузлы 3
    Спальни 2
    Смотреть
    Ипотека и
    рассрочка
    Каркасный дом Флоренция 140
    Стоимость от:
    8 379 000
    Проект от: 63 000
    Этажей 2
    Санузлы 2
    Спальни 4
    Смотреть

    Как узнать стоимость дома

    back
    Оставляете заявку
    Вы заполняете форму на сайте или звоните нам. Менеджер Лайвкрафт связывается с вами для уточнения деталей: тип дома, площадь, материалы, участок строительства.
    back
    Консультация и подбор решения
    Наш специалист помогает выбрать оптимальный тип дома и конструкцию с учётом бюджета, сроков и целей — будь то дом для постоянного проживания или дача.
    back
    Расчёт предварительной стоимости
    Инженер делает первичный расчёт стоимости строительства по вашим параметрам: фундамент, коробка, кровля, отделка. Вы получаете смету с разбивкой по этапам.
    back
    Корректировка и утверждение сметы
    При необходимости вносим изменения — например, замену материалов или сокращение этапов. После согласования формируется окончательная фиксированная смета.
    back
    Заключение договора и старт работ
    После утверждения сметы заключаем официальный договор с гарантией. Вы получаете прозрачный график и точную стоимость — без скрытых расходов.

    Заказать конусльтацию по:КД-1-8

    Фото 1 КД-1-8


      Наши
      контакты

      Дмитров
      Опорный проезд 28Б
      (индустриальный парк Ниагара)
      9:00 до 18:00