4.9
Рейтинг на основании 120 отзывов
Дмитров
Опорный проезд 28Б
(индустриальный парк Ниагара)
Бренд "Дмитров-Дело" c 2008 года на рынке строительства в Дмитрове
Звоните 9:00 до 18:00 8 (915) 055-33-61
Бренд "Дмитров-Дело" c 2008 года на рынке строительства в Дмитрове

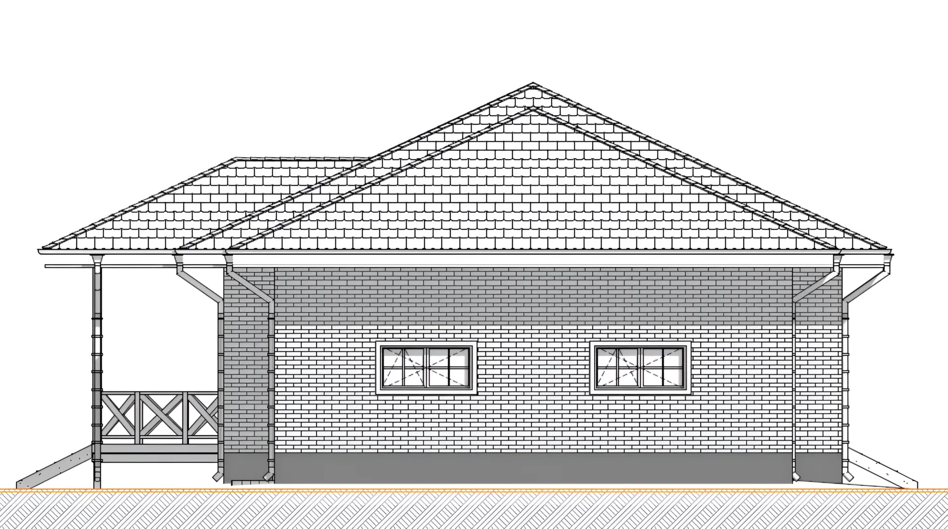
Загородный дом АС-201

Стоимость проекта от:
67 500 ₽
Стоимость строительства от:
8 670 750 ₽
Артикул ART-12659
Дата 25.12.2025
Архитектурный стиль Европейский
Количество надземных этажей 1
Круглогодичное проживание Да
Площадь дома 150 м2
Санузлы 2
Спальни 3

Описание

Загородный дом АС‑201 – это настоящий уголок европейского уюта, построенный на основе классического деревянного каркаса, который ласкает глаз и дарит природную тепло‑отдачу. На одну надземную планку располагается просторная квартира, где каждая стена и пол пропитаны спокойствием и гармонией, а четырёхскатная вальмовая крыша подчеркивает элегантность архитектурного стиля. Благодаря крытой автостоянке и прибрежной привязке к природе, здесь можно чувствовать себя уверенно и защищённо даже в самые непредсказуемые дни года. Дом спроектирован так, чтобы обеспечить комфорт круглогодичного проживания: от подогрёной стеклянной панели, сквозь которую можно наслаждаться рассветами и закатами, до утепленных стен, которые сохраняют тепло в холодное время. Внутри вас ждёт уютная гостинная с открытым камином, светлые спальни, современная кухня и уютные зоны отдыха. Четкая разделённость функциональных пространств делает каждый уголок простым и приятным в использовании, а веранда и балкons добавляют нотку свежести и открытости. В комплекте с домом — просторный прицепный гараж и крытая автостоянка, которые обеспечат безопасное хранение транспортных средств. Чердачное помещение предлагает дополнительные возможности: от хранилища сезонного имущества до уютного хобби‑зала. В сумме, АС‑201 — это гармоничное сочетание европейской эстетики, практического комфорта и практических решений, позволяющее вам наслаждаться каждой минутой в обилие спокойствия и стиля.

Характеристики дома

Архитектурный стиль
Европейский
Автоматизированное регулирование параметров теплоносителя
Нет
Балконы/лоджии
1
Чердачное помещение
Да
Датчики протечки воды
Нет
Эксплуатируемая или зеленая кровля
Нет
Электроснабжение
Центральное
Газоснабжение
Индивидуальное
Изоляция воздушного шума
Нет
Камин
Нет
Класс энергоэффективности
-
Класс энергосбережения
-
Количество надземных этажей
1
Круглогодичное проживание
Да
Материал кровли
Металлочерепица
Материал перекрытий
Деревянные
Материал внешних стен
Деревянные каркасные
Материал внутренних перегородок
Деревянные
Модульное строительство с конструкциями заводского изготовления
Нет
Объем надземной части
626 м3
Основной материал фасадов
Фасадная плитка
Отопление
Индивидуальное
Площадь дома
150 м2
Площадь застройки
186 м2
Подвальное помещение
Нет
Показатель компактности здания
-
Приборы учета тепловой энергии
Нет
Пристроенный гараж/крытая автостоянка
Да
Противопожарная система
Нет
Санузлы
2
Совмещенная кухня-гостиная
Да
Спальни
3
Терраса
Нет
Тип фундамента
Свайно-винтовой
Тип кровли
Четырехскатная (вальмовая)
Толщина внешних стен
320 мм
Толщина внутренних перегородок
150 мм
Улучшенные шумовые характеристики
Нет
Вентиляция
Естественная
Веранда
Нет
Водоотведение
Локальные очистные сооружения
Водоснабжение
Центральное
Высота дома
6.13 м
Высота потолков
3.1 м

Планировка

Фасад дома

Александр

Закажите выезд инженера

Александр

Выездной инженер
Закажите выезд инженера для точной диагностики и профессиональной консультации по инженерным системам. Специалист приедет в удобное время, проведёт осмотр, рассчитает стоимость работ и подберёт оптимальные решения для вашего дома.


    Похожие проекты

    Ипотека и
    рассрочка
    Cape cod wood deck-88
    Стоимость от:
    5 570 840
    Проект от: 39 600
    Этажей 1
    Санузлы 1
    Спальни 2
    Смотреть
    Ипотека и
    рассрочка
    Двухэтажный дом СМ-16
    Стоимость от:
    14 947 200
    Проект от: 90 000
    Этажей 2
    Санузлы 2
    Спальни 4
    Смотреть
    Ипотека и
    рассрочка
    09-24 ДО 13,52х11,64/161,3
    Стоимость от:
    7 361 640
    Проект от: 59 400
    Этажей 1
    Санузлы 1
    Спальни 2
    Смотреть
    Ипотека и
    рассрочка
    Каркасный одноэтажный дом «Барни»
    Стоимость от:
    4 913 425
    Проект от: 38 250
    Этажей 1
    Санузлы 1
    Спальни 3
    Смотреть
    Ипотека и
    рассрочка
    Каркасно-фахверковый дом «Вестерос»
    Стоимость от:
    8 405 650
    Проект от: 65 250
    Этажей 1
    Санузлы 2
    Спальни 3
    Смотреть
    Ипотека и
    рассрочка
    Шале — 90
    Стоимость от:
    4 624 400
    Проект от: 36 000
    Этажей 1
    Санузлы 1
    Спальни 2
    Смотреть

    Как узнать стоимость дома

    back
    Оставляете заявку
    Вы заполняете форму на сайте или звоните нам. Менеджер Лайвкрафт связывается с вами для уточнения деталей: тип дома, площадь, материалы, участок строительства.
    back
    Консультация и подбор решения
    Наш специалист помогает выбрать оптимальный тип дома и конструкцию с учётом бюджета, сроков и целей — будь то дом для постоянного проживания или дача.
    back
    Расчёт предварительной стоимости
    Инженер делает первичный расчёт стоимости строительства по вашим параметрам: фундамент, коробка, кровля, отделка. Вы получаете смету с разбивкой по этапам.
    back
    Корректировка и утверждение сметы
    При необходимости вносим изменения — например, замену материалов или сокращение этапов. После согласования формируется окончательная фиксированная смета.
    back
    Заключение договора и старт работ
    После утверждения сметы заключаем официальный договор с гарантией. Вы получаете прозрачный график и точную стоимость — без скрытых расходов.

    Заказать конусльтацию по:Загородный дом АС-201

    Фото 1 Загородный дом АС-201


      Наши
      контакты

      Дмитров
      Опорный проезд 28Б
      (индустриальный парк Ниагара)
      9:00 до 18:00