4.9
Рейтинг на основании 120 отзывов
Дмитров
Опорный проезд 28Б
(индустриальный парк Ниагара)
Бренд "Дмитров-Дело" c 2008 года на рынке строительства в Дмитрове
Звоните 9:00 до 18:00 8 (915) 055-33-61
Бренд "Дмитров-Дело" c 2008 года на рынке строительства в Дмитрове

КД «Калининград №10-22»

Стоимость проекта от:
72 450 ₽
Стоимость строительства от:
9 639 060 ₽
Артикул ART-12554
Дата 25.12.2025
Архитектурный стиль Европейский
Количество надземных этажей 2
Круглогодичное проживание Да
Площадь дома 161 м2
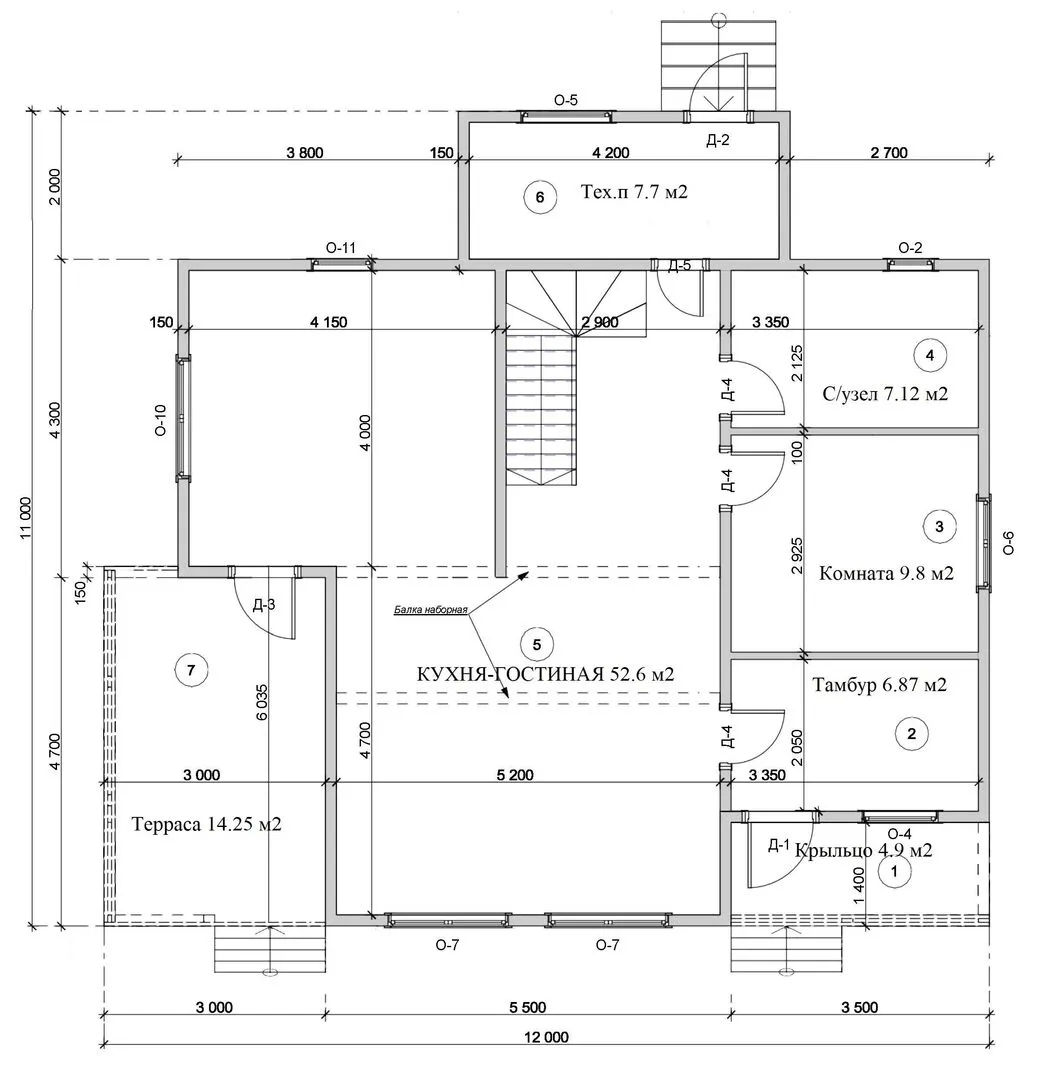
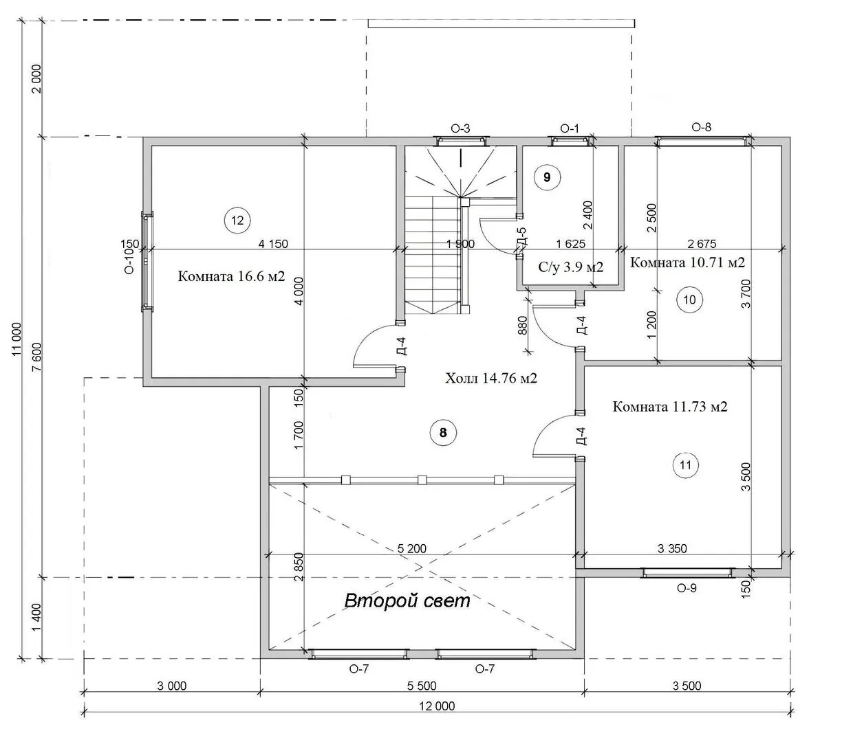
Санузлы 2
Спальни 4

Описание

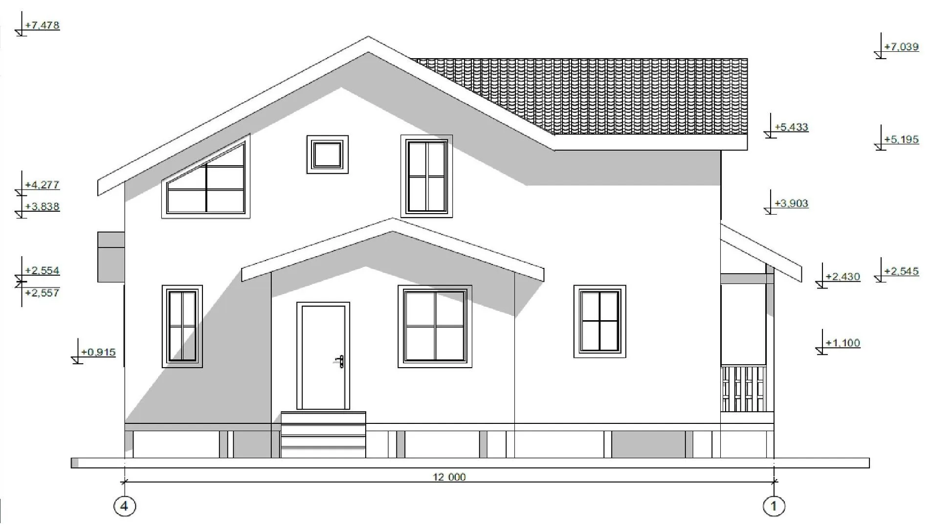
**Калининград №10‑22 – ваш уютный уголок европейского стиля** Идеально подходящий для круглогодичного проживания, этот дом сочетает в себе простоту и элегантность. Внешний вид из деревянных каркасных стен придает ему живой, тепловый облик, а многощипковая крыша создаёт ощущение защищённости и уюта. Тщательно продуманная планировка двух надземных этажей позволяет вам легко распределить пространство по функциональным зонам, сохраняя при этом легкость и открытость в интерьере. **Терраса для встреч и отдыха** Хотя балконы и веранда отсутствуют, дом компенсирует это просторной террасой, которая станет вашим личным уголком релакса. Здесь можно проводить вечера на свежем воздухе, наслаждаться видами и проводить встречи с друзьями без лишних забот. Удобство кулинарных встреч и барбекю гарантировано, а деревянные детали придают террасе особую домашнюю атмосферу. **Практичность без компромиссов** Предусмотрена простая, но эффективная инфраструктура: просторный внутренний двор без прикладенного гаража и крытой автостоянки остаётся открытым для парковки небольших машин или велосипедов. Отсутствие чердака и лоджии делает дом легче обслуживать и поддерживать в чистоте, а европейский стиль в сочетании с современными материалами обеспечивает надежность и энергоэффективность. Этот дом – это не просто стены и крыша, это возможность жить по‑различному, в гармонии с природой и собственными потребностями. Добро пожаловать в ваш новый уютный дом!

Характеристики дома

Архитектурный стиль
Европейский
Автоматизированное регулирование параметров теплоносителя
Нет
Балконы/лоджии
Отсутствуют
Чердачное помещение
Нет
Датчики протечки воды
Нет
Эксплуатируемая или зеленая кровля
Нет
Электроснабжение
Центральное
Газоснабжение
Индивидуальное
Изоляция воздушного шума
Да
Камин
Нет
Класс энергоэффективности
A+
Класс энергосбережения
A+
Количество надземных этажей
2
Круглогодичное проживание
Да
Материал кровли
Металлочерепица
Материал перекрытий
Деревянные
Материал внешних стен
Деревянные каркасные
Материал внутренних перегородок
Деревянные
Модульное строительство с конструкциями заводского изготовления
Нет
Объем надземной части
445 м3
Основной материал фасадов
Дерево
Отопление
Индивидуальное
Площадь дома
161 м2
Площадь застройки
113 м2
Подвальное помещение
Нет
Показатель компактности здания
0.88
Приборы учета тепловой энергии
Нет
Пристроенный гараж/крытая автостоянка
Нет
Противопожарная система
Нет
Санузлы
2
Совмещенная кухня-гостиная
Да
Спальни
4
Терраса
Да
Тип фундамента
Свайно-винтовой
Тип кровли
Многощипковая
Толщина внешних стен
150 мм
Толщина внутренних перегородок
150 мм
Улучшенные шумовые характеристики
Да
Вентиляция
Естественная
Веранда
Нет
Водоотведение
Локальные очистные сооружения
Водоснабжение
Индивидуальное
Высота дома
7.47 м
Высота потолков
2.8 м

Планировка

Фасад дома

Александр

Закажите выезд инженера

Александр

Выездной инженер
Закажите выезд инженера для точной диагностики и профессиональной консультации по инженерным системам. Специалист приедет в удобное время, проведёт осмотр, рассчитает стоимость работ и подберёт оптимальные решения для вашего дома.


    Похожие проекты

    Ипотека и
    рассрочка
    СЕРИЯ «БАРНХАУС» ПРОЕКТ КД-21
    Стоимость от:
    7 741 800
    Проект от: 59 400
    Этажей 2
    Санузлы 2
    Спальни 3
    Смотреть
    Ипотека и
    рассрочка
    Дом из клееного бруса «Куртамыш»
    Стоимость от:
    7 965 100
    Проект от: 58 500
    Этажей 1
    Санузлы 2
    Спальни 4
    Смотреть
    Ипотека и
    рассрочка
    Загородный дом — Тип 6
    Стоимость от:
    7 739 600
    Проект от: 45 000
    Этажей 1
    Санузлы 1
    Спальни 2
    Смотреть
    Ипотека и
    рассрочка
    Модульный дом FL 65 (СТ65)
    Стоимость от:
    4 851 990
    Проект от: 39 150
    Этажей 1
    Санузлы 1
    Спальни 3
    Смотреть
    Ипотека и
    рассрочка
    Загородный дом Уровень-145
    Стоимость от:
    11 533 500
    Проект от: 65 250
    Этажей 1
    Санузлы 2
    Спальни 3
    Смотреть
    Ипотека и
    рассрочка
    КОТТЕДЖ «Аполлон»
    Стоимость от:
    8 640 500
    Проект от: 51 750
    Этажей 1
    Санузлы 2
    Спальни 3
    Смотреть

    Как узнать стоимость дома

    back
    Оставляете заявку
    Вы заполняете форму на сайте или звоните нам. Менеджер Лайвкрафт связывается с вами для уточнения деталей: тип дома, площадь, материалы, участок строительства.
    back
    Консультация и подбор решения
    Наш специалист помогает выбрать оптимальный тип дома и конструкцию с учётом бюджета, сроков и целей — будь то дом для постоянного проживания или дача.
    back
    Расчёт предварительной стоимости
    Инженер делает первичный расчёт стоимости строительства по вашим параметрам: фундамент, коробка, кровля, отделка. Вы получаете смету с разбивкой по этапам.
    back
    Корректировка и утверждение сметы
    При необходимости вносим изменения — например, замену материалов или сокращение этапов. После согласования формируется окончательная фиксированная смета.
    back
    Заключение договора и старт работ
    После утверждения сметы заключаем официальный договор с гарантией. Вы получаете прозрачный график и точную стоимость — без скрытых расходов.

    Заказать конусльтацию по:КД «Калининград №10-22»

    Фото 1 КД «Калининград №10-22»


      Наши
      контакты

      Дмитров
      Опорный проезд 28Б
      (индустриальный парк Ниагара)
      9:00 до 18:00