4.9
Рейтинг на основании 120 отзывов
Дмитров
Опорный проезд 28Б
(индустриальный парк Ниагара)
Бренд "Дмитров-Дело" c 2008 года на рынке строительства в Дмитрове
Звоните 9:00 до 18:00 8 (915) 055-33-61
Бренд "Дмитров-Дело" c 2008 года на рынке строительства в Дмитрове

KDT-195Одноэтажный

Стоимость проекта от:
74 250 ₽
БЕСПЛАТНО! ПРИ ЗАКАЗЕ СТРОИТЕЛЬСТВА
Стоимость строительства от:
9 565 050 ₽
Артикул ART-19225
Дата 26.12.2025
Архитектурный стиль Европейский
Количество надземных этажей 1
Круглогодичное проживание Да
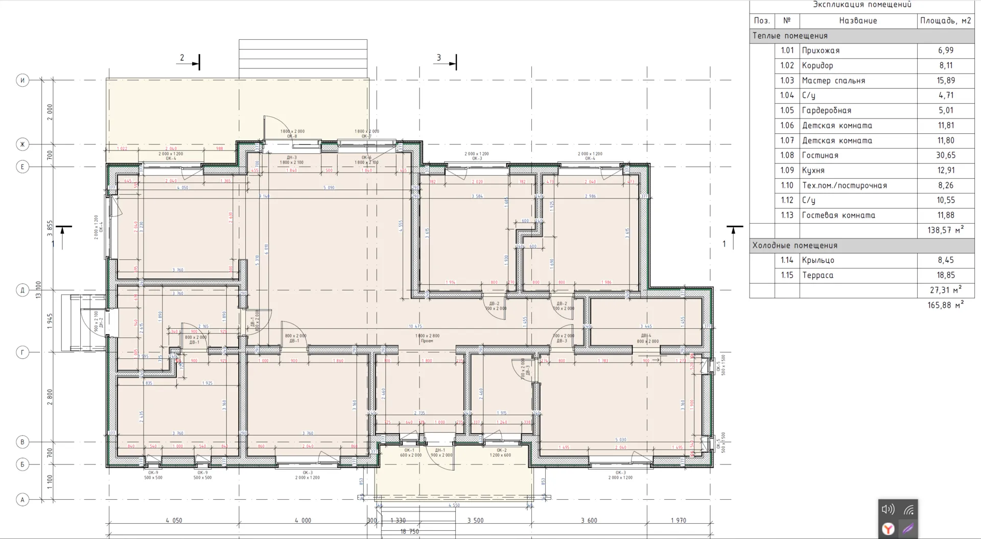
Площадь дома 165 м2
Санузлы 2
Спальни 4

Описание

Добро пожаловать в уютный уголок, где европейская элегантность встречается с теплом деревянного дома. KDT‑195 – одноэтажная жемчужина, созданная для тех, кто ценит комфорт круглый год. Ее простая, но изящная архитектура, выполненная в непременном европейском стиле, сразу привлекает взгляд своей гармонией и балансом линий. Внешние стены, построенные из прочного деревянного каркаса, дарят ощущение природной благородности, а комбинированная крыша подчёркивает современное обаяние конструкции. Этот дом обогащен идеальными элементами для релаксации: большой веранда и просторная терраса приглашают провести время на свежем воздухе, наслаждаясь летним солнцем и зимней прохладой. Внутри открывается светлое, просторное пространство, где каждая деталь продумана до мелочей. Чердачное помещение, превращенное в уютную мансарду, открывает новые возможности для творческого интерьера – будь то рабочий кабинет, игровая комната для детей или стильный уголок для чтения. KDT‑195 – это не просто дом, а пространство, которое согревает душу и приглашает создавать воспоминания всей семьей. Нет прицепленного гаража, но это лишь добавляет чистоты внешнего вида и позволяет ценить открытое пространство. Здесь каждый сезон обретает свой неповторимый колорит, а уют европейского дизайна делает его идеальным местом для комфортной, спокойной и вдохновляющей жизни.

Характеристики дома

Архитектурный стиль
Автоматизированное регулирование параметров теплоносителя
Нет
Балконы/лоджии
Отсутствуют
Чердачное помещение
Да
Датчики протечки воды
Нет
Эксплуатируемая или зеленая кровля
Нет
Электроснабжение
Индивидуальное
Газоснабжение
Не предусмотрено
Изоляция воздушного шума
Да
Камин
Да
Класс энергоэффективности
-
Класс энергосбережения
-
Количество надземных этажей
1
Круглогодичное проживание
Да
Материал кровли
Металлочерепица
Материал перекрытий
Деревянные
Материал внешних стен
Материал внутренних перегородок
Деревянные
Модульное строительство с конструкциями заводского изготовления
Нет
Объем надземной части
624 м3
Основной материал фасадов
Штукатурка
Отопление
Индивидуальное
Площадь дома
165 м2
Площадь застройки
195 м2
Подвальное помещение
Нет
Показатель компактности здания
-
Приборы учета тепловой энергии
Нет
Пристроенный гараж/крытая автостоянка
Нет
Противопожарная система
Нет
Санузлы
2
Совмещенная кухня-гостиная
Да
Спальни
4
Терраса
Да
Тип фундамента
Свайный
Тип кровли
Толщина внешних стен
200 мм
Толщина внутренних перегородок
150 мм
Улучшенные шумовые характеристики
Да
Вентиляция
Естественная
Веранда
Да
Водоотведение
Локальные очистные сооружения
Водоснабжение
Индивидуальное
Высота дома
5.22 м
Высота потолков
2.8 м

Планировка

Фасад дома

Александр

Закажите выезд инженера

Александр

Выездной инженер
Закажите выезд инженера для точной диагностики и профессиональной консультации по инженерным системам. Специалист приедет в удобное время, проведёт осмотр, рассчитает стоимость работ и подберёт оптимальные решения для вашего дома.


    Похожие проекты

    Ипотека и
    рассрочка
    Одноэтажный дом СД_0924
    Стоимость от:
    225 060
    Проект от: 41 850
    Этажей 1
    Санузлы 1
    Спальни 3
    Смотреть
    Ипотека и
    рассрочка
    Одноэтажный дом с тремя спальнями
    Стоимость от:
    8 115 360
    Проект от: 48 600
    Этажей 1
    Санузлы 2
    Спальни 3
    Смотреть
    Ипотека и
    рассрочка
    24-708 Кадро
    Стоимость от:
    6 376 700
    Проект от: 49 500
    Этажей 1
    Санузлы 1
    Спальни 3
    Смотреть
    Ипотека и
    рассрочка
    Энергоэффективный Smart дом 69,01 кв.м.
    Стоимость от:
    4 966 280
    Проект от: 31 050
    Этажей 1
    Санузлы 1
    Спальни 2
    Смотреть
    Ипотека и
    рассрочка
    Одноэтажный жилой дом «Лесной-2»
    Стоимость от:
    4 347 750
    Проект от: 33 750
    Этажей 1
    Санузлы 1
    Спальни 2
    Смотреть
    Ипотека и
    рассрочка
    ГБ-073
    Стоимость от:
    9 180 600
    Проект от: 58 500
    Этажей 1
    Санузлы 2
    Спальни 3
    Смотреть

    Как узнать стоимость дома

    back
    Оставляете заявку
    Вы заполняете форму на сайте или звоните нам. Менеджер Лайвкрафт связывается с вами для уточнения деталей: тип дома, площадь, материалы, участок строительства.
    back
    Консультация и подбор решения
    Наш специалист помогает выбрать оптимальный тип дома и конструкцию с учётом бюджета, сроков и целей — будь то дом для постоянного проживания или дача.
    back
    Расчёт предварительной стоимости
    Инженер делает первичный расчёт стоимости строительства по вашим параметрам: фундамент, коробка, кровля, отделка. Вы получаете смету с разбивкой по этапам.
    back
    Корректировка и утверждение сметы
    При необходимости вносим изменения — например, замену материалов или сокращение этапов. После согласования формируется окончательная фиксированная смета.
    back
    Заключение договора и старт работ
    После утверждения сметы заключаем официальный договор с гарантией. Вы получаете прозрачный график и точную стоимость — без скрытых расходов.

    Заказать конусльтацию по:KDT-195Одноэтажный

    Фото 1 KDT-195Одноэтажный


      Наши
      контакты

      Дмитров
      Опорный проезд 28Б
      (индустриальный парк Ниагара)
      9:00 до 18:00

      Корзина