4.9
Рейтинг на основании 120 отзывов
Дмитров
Опорный проезд 28Б
(индустриальный парк Ниагара)
Бренд "Дмитров-Дело" c 2008 года на рынке строительства в Дмитрове
Звоните 9:00 до 18:00 8 (915) 055-33-61
Бренд "Дмитров-Дело" c 2008 года на рынке строительства в Дмитрове

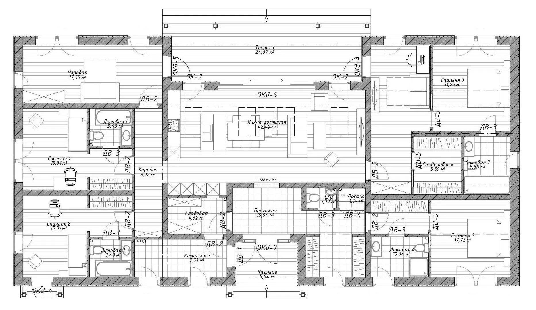
Одноэтажный вытянутый по длин дом S-232

Стоимость проекта от:
103 050 ₽
БЕСПЛАТНО! ПРИ ЗАКАЗЕ СТРОИТЕЛЬСТВА
Стоимость строительства от:
18 204 780 ₽
Артикул ART-4777
Дата 26.12.2025
Архитектурный стиль Европейский
Количество надземных этажей 1
Круглогодичное проживание Да
Площадь дома 229 м2
Санузлы 5
Спальни 4

Описание

**Откройте для себя идеальное сочетание современности и европейского стиля в доме S‑232.** Городской, но уютный, этот одноэтажный, вытянутый дом предлагает простор и функциональность благодаря продуманной планировке всей на ширину. Внутри царит безмятежная светлость: большие окна наполняют комнаты естественным светом, а открытая планировка облегчает общение и создает ощущение простора. Благодаря круглогодичному проживанию даже в самые прохладные дни вы будете чувствовать комфорт и тепло. **Стиль, которым можно гордиться.** Тонкая европейская архитектура проявляется в изысканных линиях и аккуратных деталях «S‑232». Премиальные газобетонные блоки внешних стен не только обеспечивают отличную теплоизоляцию, но и гарантируют долгую эксплуатацию с минимальными затратами на содержание. Двускатная крыша придает дому характерный силуэт, а отсутствие лишних конструкций вроде веранд и прикрепленных гаражей позволяет сконцентрироваться на самом главном — ваших личных пространствах. **Ваш личный уголок отдыха.** В завершение, просторная терраса – это идеальное место для семейных барбекю, уединенных летних чтений и встреч с друзьями под открытым небом. Здесь можно легко создать уютный патио, обустроив зоной отдыха, или использовать пространство как дополнительную комнату для хранения. Дом S‑232 представляет собой идеальное решение для тех, кто ценит удобство, качество и неповторимый шарм европейского дизайна.

Характеристики дома

Архитектурный стиль
Автоматизированное регулирование параметров теплоносителя
Нет
Балконы/лоджии
Отсутствуют
Чердачное помещение
Нет
Датчики протечки воды
Нет
Эксплуатируемая или зеленая кровля
Нет
Электроснабжение
Центральное
Газоснабжение
Центральное
Изоляция воздушного шума
Нет
Камин
Нет
Класс энергоэффективности
-
Класс энергосбережения
-
Количество надземных этажей
1
Круглогодичное проживание
Да
Материал кровли
Металлочерепица
Материал перекрытий
Монолитные железобетонные
Материал внешних стен
Материал внутренних перегородок
Блочные
Модульное строительство с конструкциями заводского изготовления
Нет
Объем надземной части
-
Основной материал фасадов
Штукатурка
Отопление
Центральное
Площадь дома
229 м2
Площадь застройки
290 м2
Подвальное помещение
Нет
Показатель компактности здания
-
Приборы учета тепловой энергии
Нет
Пристроенный гараж/крытая автостоянка
Нет
Противопожарная система
Нет
Санузлы
5
Совмещенная кухня-гостиная
Да
Спальни
4
Терраса
Да
Тип фундамента
Ленточный
Тип кровли
Толщина внешних стен
425 мм
Толщина внутренних перегородок
100 мм
Улучшенные шумовые характеристики
Нет
Вентиляция
Естественная
Веранда
Нет
Водоотведение
Локальные очистные сооружения
Водоснабжение
Центральное
Высота дома
5.2 м
Высота потолков
3 м

Планировка

Фасад дома

Александр

Закажите выезд инженера

Александр

Выездной инженер
Закажите выезд инженера для точной диагностики и профессиональной консультации по инженерным системам. Специалист приедет в удобное время, проведёт осмотр, рассчитает стоимость работ и подберёт оптимальные решения для вашего дома.


    Похожие проекты

    Ипотека и
    рассрочка
    С-290 ГБ Ромиро
    Стоимость от:
    11 314 080
    Проект от: 72 900
    Этажей 2
    Санузлы 3
    Спальни 4
    Смотреть
    Ипотека и
    рассрочка
    Светлый
    Стоимость от:
    6 450 620
    Проект от: 36 450
    Этажей 1
    Санузлы 1
    Спальни 2
    Смотреть
    Ипотека и
    рассрочка
    ДМ 124
    Стоимость от:
    8 972 160
    Проект от: 55 800
    Этажей 2
    Санузлы 2
    Спальни 3
    Смотреть
    Ипотека и
    рассрочка
    Кирпичный дом 70 м²
    Стоимость от:
    4 731 540
    Проект от: 30 150
    Этажей 1
    Санузлы 2
    Спальни 2
    Смотреть
    Ипотека и
    рассрочка
    Next-94
    Стоимость от:
    7 276 280
    Проект от: 42 300
    Этажей 1
    Санузлы 2
    Спальни 3
    Смотреть
    Ипотека и
    рассрочка
    Дом с мансардным этажом ТКБ-1
    Стоимость от:
    12 012 480
    Проект от: 77 400
    Этажей 2
    Санузлы 3
    Спальни 5
    Смотреть

    Как узнать стоимость дома

    back
    Оставляете заявку
    Вы заполняете форму на сайте или звоните нам. Менеджер Лайвкрафт связывается с вами для уточнения деталей: тип дома, площадь, материалы, участок строительства.
    back
    Консультация и подбор решения
    Наш специалист помогает выбрать оптимальный тип дома и конструкцию с учётом бюджета, сроков и целей — будь то дом для постоянного проживания или дача.
    back
    Расчёт предварительной стоимости
    Инженер делает первичный расчёт стоимости строительства по вашим параметрам: фундамент, коробка, кровля, отделка. Вы получаете смету с разбивкой по этапам.
    back
    Корректировка и утверждение сметы
    При необходимости вносим изменения — например, замену материалов или сокращение этапов. После согласования формируется окончательная фиксированная смета.
    back
    Заключение договора и старт работ
    После утверждения сметы заключаем официальный договор с гарантией. Вы получаете прозрачный график и точную стоимость — без скрытых расходов.

    Заказать конусльтацию по:Одноэтажный вытянутый по длин дом S-232

    Фото 1 Одноэтажный вытянутый по длин дом S-232


      Наши
      контакты

      Дмитров
      Опорный проезд 28Б
      (индустриальный парк Ниагара)
      9:00 до 18:00

      Корзина