4.9
Рейтинг на основании 120 отзывов
Дмитров
Опорный проезд 28Б
(индустриальный парк Ниагара)
Бренд "Дмитров-Дело" c 2008 года на рынке строительства в Дмитрове
Звоните 9:00 до 18:00 8 (915) 055-33-61
Бренд "Дмитров-Дело" c 2008 года на рынке строительства в Дмитрове

Керимар 76

Стоимость проекта от:
38 250 ₽
БЕСПЛАТНО! ПРИ ЗАКАЗЕ СТРОИТЕЛЬСТВА
Стоимость строительства от:
5 090 460 ₽
Артикул ART-20410
Дата 26.12.2025
Архитектурный стиль Европейский
Количество надземных этажей 2
Круглогодичное проживание Да
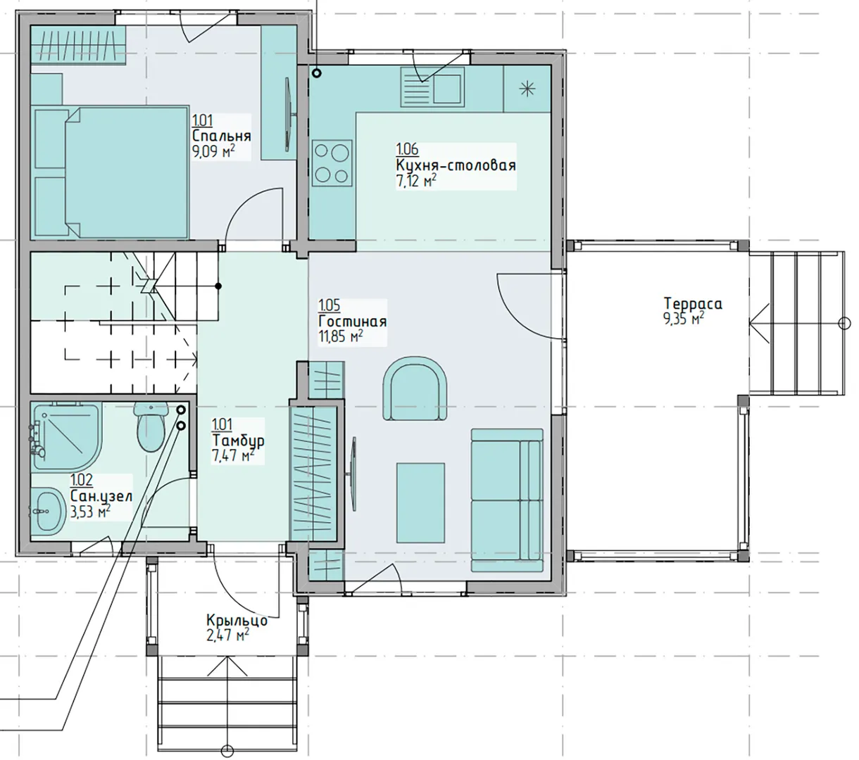
Площадь дома 85 м2
Санузлы 2
Спальни 4

Описание

Идеальная альтернатива для тех, кто ценит комфорт и европейский шарм – дом **Керимар 76**. Это современная двухэтажная квартира, созданная с тем, чтобы позволить вам наслаждаться круглогодичным уютом, не утрачивая при этом изысканности и простоты классического дизайна. Внутренние помещения пропитаны естественным светом и элегантными деталями, а высокие потолки и просторные комнаты создают ощущение свободы и благополучия. Экологичный деревянный каркас и традиционная двухскатная кровля придают дому ощущение «живого» пространства, которое в гармонии сочетается с непревзойденным европейским стилем. Отказ от балконов и веранд позволяет сосредоточиться на открытых, плавных линиях фасада, а наличие террасы добавляет практичный и при этом живописный уголок для отдыха. Внутренний интерьер легко адаптировать под ваши предпочтения – от светлой, минималистической обстановки до более классического и винтажного акцента. Помимо эстетики, Керимар 76 обеспечивает высокие стандарты комфорта: уютные, теплоизоляционные стены, современная система отопления и вентиляции позволяют наслаждаться каждым сезоном без лишних забот. Это дом, где каждое мгновение наполнено спокойствием и стилем, а удобство и функция становятся союзниками в создании вашего идеального уюта. Удостоитесь возможности жить там, где гармония дизайна встречается с функциональностью, и почувствуйте, как ваш дом становится местом вдохновения и радости.

Характеристики дома

Архитектурный стиль
Автоматизированное регулирование параметров теплоносителя
Нет
Балконы/лоджии
Отсутствуют
Чердачное помещение
Нет
Датчики протечки воды
Нет
Эксплуатируемая или зеленая кровля
Нет
Электроснабжение
Не предусмотрено
Газоснабжение
Не предусмотрено
Изоляция воздушного шума
Нет
Камин
Нет
Класс энергоэффективности
-
Класс энергосбережения
-
Количество надземных этажей
2
Круглогодичное проживание
Да
Материал кровли
Металлочерепица
Материал перекрытий
Деревянные
Материал внешних стен
Материал внутренних перегородок
Деревянные
Модульное строительство с конструкциями заводского изготовления
Нет
Объем надземной части
281 м3
Основной материал фасадов
Дерево
Отопление
Не предусмотрено
Площадь дома
85 м2
Площадь застройки
50 м2
Подвальное помещение
Нет
Показатель компактности здания
-
Приборы учета тепловой энергии
Нет
Пристроенный гараж/крытая автостоянка
Нет
Противопожарная система
Нет
Санузлы
2
Совмещенная кухня-гостиная
Да
Спальни
4
Терраса
Да
Тип фундамента
Свайно-винтовой
Тип кровли
Толщина внешних стен
190 мм
Толщина внутренних перегородок
145 мм
Улучшенные шумовые характеристики
Да
Вентиляция
Естественная
Веранда
Нет
Водоотведение
Не предусмотрено
Водоснабжение
Не предусмотрено
Высота дома
7.2 м
Высота потолков
2.7 м

Планировка

Фасад дома

Александр

Закажите выезд инженера

Александр

Выездной инженер
Закажите выезд инженера для точной диагностики и профессиональной консультации по инженерным системам. Специалист приедет в удобное время, проведёт осмотр, рассчитает стоимость работ и подберёт оптимальные решения для вашего дома.


    Похожие проекты

    Ипотека и
    рассрочка
    Двухэтажный дом с эркером MH 123
    Стоимость от:
    8 597 520
    Проект от: 55 350
    Этажей 2
    Санузлы 2
    Спальни 3
    Смотреть
    Ипотека и
    рассрочка
    Финский дом Favorite
    Стоимость от:
    3 947 955
    Проект от: 31 950
    Этажей 1
    Санузлы 1
    Спальни 2
    Смотреть
    Ипотека и
    рассрочка
    Проект Домокомплект “Доминимум Серии 8.4 Премиум”
    Стоимость от:
    3 892 350
    Проект от: 31 500
    Этажей 1
    Санузлы 1
    Спальни 2
    Смотреть
    Ипотека и
    рассрочка
    БарнХаус 74-23КД
    Стоимость от:
    4 350 170
    Проект от: 31 950
    Этажей 1
    Санузлы 1
    Спальни 2
    Смотреть
    Ипотека и
    рассрочка
    Дом из sip панелей «Элени»
    Стоимость от:
    8 568 450
    Проект от: 60 750
    Этажей 1
    Санузлы 1
    Спальни 3
    Смотреть
    Ипотека и
    рассрочка
    Дом Светлый 57
    Стоимость от:
    3 419 880
    Проект от: 25 650
    Этажей 2
    Санузлы 1
    Спальни 3
    Смотреть

    Как узнать стоимость дома

    back
    Оставляете заявку
    Вы заполняете форму на сайте или звоните нам. Менеджер Лайвкрафт связывается с вами для уточнения деталей: тип дома, площадь, материалы, участок строительства.
    back
    Консультация и подбор решения
    Наш специалист помогает выбрать оптимальный тип дома и конструкцию с учётом бюджета, сроков и целей — будь то дом для постоянного проживания или дача.
    back
    Расчёт предварительной стоимости
    Инженер делает первичный расчёт стоимости строительства по вашим параметрам: фундамент, коробка, кровля, отделка. Вы получаете смету с разбивкой по этапам.
    back
    Корректировка и утверждение сметы
    При необходимости вносим изменения — например, замену материалов или сокращение этапов. После согласования формируется окончательная фиксированная смета.
    back
    Заключение договора и старт работ
    После утверждения сметы заключаем официальный договор с гарантией. Вы получаете прозрачный график и точную стоимость — без скрытых расходов.

    Заказать конусльтацию по:Керимар 76

    Фото 1 Керимар 76


      Наши
      контакты

      Дмитров
      Опорный проезд 28Б
      (индустриальный парк Ниагара)
      9:00 до 18:00

      Корзина