4.9
Рейтинг на основании 120 отзывов
Дмитров
Опорный проезд 28Б
(индустриальный парк Ниагара)
Бренд "Дмитров-Дело" c 2008 года на рынке строительства в Дмитрове
Звоните 9:00 до 18:00 8 (915) 055-33-61
Бренд "Дмитров-Дело" c 2008 года на рынке строительства в Дмитрове

Брум

Стоимость проекта от:
43 200 ₽
Стоимость строительства от:
6 077 280 ₽
Артикул ART-14225
Дата 25.12.2025
Архитектурный стиль Скандинавский
Количество надземных этажей 1
Круглогодичное проживание Да
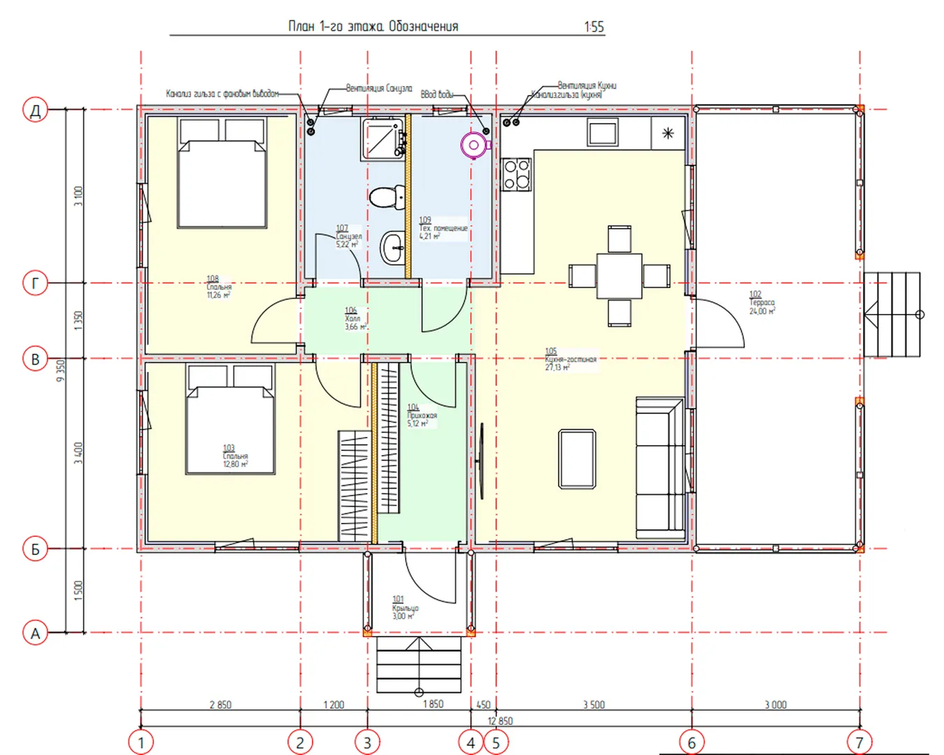
Площадь дома 96 м2
Санузлы 1
Спальни 2

Описание

Брум – это маленький уголок уюта, созданный для того, чтобы вы чувствовали тепло дома в любое время года. Единый надземный этаж объединяет все пространства, создавая единую открытую планировку, где каждая комната становится частью целого. Стиль скандинавского дизайна подчёркнут чистыми линиями, светлыми стенками и естественными материалами, а двускатная крыша придаёт дому строгую, но при этом располагающую к жизни элегантность. Принцип «меньше значит больше» реализован благодаря каркасно‑панельной технологии, которая обеспечивает энергоэффективность и быстрый монтаж, а также обеспечивает лёгкость и прочность конструкции. Эта крошечная резиденция без лишних деталей – идеальное решение для тех, кто ценит простоту и функциональность. На террасе, усыпанной местными растениями, можно отдыхать в тишине и спокойствии, наслаждаясь ароматом свежего воздуха и закатами на фоне северного неба. Хотя в доме нет балконов, веранд, прицепной стоянки или чердака, его уют дополняет отсутствие лишних шумов и постоянный контроль за теплоизоляцией. Брум станет вашим личным убежищем от суеты мегаполиса, предлагая комфорт, надёжность и атмосферу, напоминающую самые чистые уголки северной природы.

Характеристики дома

Архитектурный стиль
Скандинавский
Автоматизированное регулирование параметров теплоносителя
Да
Балконы/лоджии
Отсутствуют
Чердачное помещение
Нет
Датчики протечки воды
Да
Эксплуатируемая или зеленая кровля
Нет
Электроснабжение
2 варианта
Газоснабжение
2 варианта
Изоляция воздушного шума
Да
Камин
Нет
Класс энергоэффективности
-
Класс энергосбережения
-
Количество надземных этажей
1
Круглогодичное проживание
Да
Материал кровли
Металлочерепица
Материал перекрытий
Деревянные
Материал внешних стен
Каркасно-панельная технология
Материал внутренних перегородок
Деревянные
Модульное строительство с конструкциями заводского изготовления
Нет
Объем надземной части
257 м3
Основной материал фасадов
Дерево
Отопление
2 варианта
Площадь дома
96 м2
Площадь застройки
107 м2
Подвальное помещение
Нет
Показатель компактности здания
-
Приборы учета тепловой энергии
Да
Пристроенный гараж/крытая автостоянка
Нет
Противопожарная система
Да
Санузлы
1
Совмещенная кухня-гостиная
Да
Спальни
2
Терраса
Да
Тип фундамента
Свайно-винтовой
Тип кровли
Двускатная
Толщина внешних стен
250 мм
Толщина внутренних перегородок
100 мм
Улучшенные шумовые характеристики
Да
Вентиляция
Естественная
Веранда
Нет
Водоотведение
2 варианта
Водоснабжение
2 варианта
Высота дома
3 м
Высота потолков
2.5 м

Планировка

Фасад дома

Александр

Закажите выезд инженера

Александр

Выездной инженер
Закажите выезд инженера для точной диагностики и профессиональной консультации по инженерным системам. Специалист приедет в удобное время, проведёт осмотр, рассчитает стоимость работ и подберёт оптимальные решения для вашего дома.


    Похожие проекты

    Ипотека и
    рассрочка
    SBSпроект150
    Стоимость от:
    13 512 000
    Проект от: 85 500
    Этажей 2
    Санузлы 3
    Спальни 4
    Смотреть
    Ипотека и
    рассрочка
    GP — 214 K
    Стоимость от:
    8 299 200
    Проект от: 58 500
    Этажей 2
    Санузлы 2
    Спальни 4
    Смотреть
    Ипотека и
    рассрочка
    Одноэтажный кирпичный дом Т-90
    Стоимость от:
    6 014 800
    Проект от: 36 000
    Этажей 1
    Санузлы 2
    Спальни 3
    Смотреть
    Ипотека и
    рассрочка
    Одноэтажный дом в стиле хай-тек с просторной гостиной s3-145-1 (Zx111)
    Стоимость от:
    14 766 620
    Проект от: 85 950
    Этажей 1
    Санузлы 2
    Спальни 3
    Смотреть
    Ипотека и
    рассрочка
    Одноэтажный дом Панорама 105м2
    Стоимость от:
    7 184 100
    Проект от: 47 250
    Этажей 1
    Санузлы 2
    Спальни 3
    Смотреть
    Ипотека и
    рассрочка
    Barnhouse 7х13 H
    Стоимость от:
    4 170 375
    Проект от: 33 750
    Этажей 1
    Санузлы 1
    Спальни 2
    Смотреть

    Как узнать стоимость дома

    back
    Оставляете заявку
    Вы заполняете форму на сайте или звоните нам. Менеджер Лайвкрафт связывается с вами для уточнения деталей: тип дома, площадь, материалы, участок строительства.
    back
    Консультация и подбор решения
    Наш специалист помогает выбрать оптимальный тип дома и конструкцию с учётом бюджета, сроков и целей — будь то дом для постоянного проживания или дача.
    back
    Расчёт предварительной стоимости
    Инженер делает первичный расчёт стоимости строительства по вашим параметрам: фундамент, коробка, кровля, отделка. Вы получаете смету с разбивкой по этапам.
    back
    Корректировка и утверждение сметы
    При необходимости вносим изменения — например, замену материалов или сокращение этапов. После согласования формируется окончательная фиксированная смета.
    back
    Заключение договора и старт работ
    После утверждения сметы заключаем официальный договор с гарантией. Вы получаете прозрачный график и точную стоимость — без скрытых расходов.

    Заказать конусльтацию по:Брум

    Фото 1 Брум


      Наши
      контакты

      Дмитров
      Опорный проезд 28Б
      (индустриальный парк Ниагара)
      9:00 до 18:00