4.9
Рейтинг на основании 120 отзывов
Дмитров
Опорный проезд 28Б
(индустриальный парк Ниагара)
Бренд "Дмитров-Дело" c 2008 года на рынке строительства в Дмитрове
Звоните 9:00 до 18:00 8 (915) 055-33-61
Бренд "Дмитров-Дело" c 2008 года на рынке строительства в Дмитрове

Хайтек 120

Стоимость проекта от:
54 000 ₽
БЕСПЛАТНО! ПРИ ЗАКАЗЕ СТРОИТЕЛЬСТВА
Стоимость строительства от:
7 038 000 ₽
Артикул ART-4619
Дата 26.12.2025
Архитектурный стиль Хайтек
Количество надземных этажей 2
Круглогодичное проживание Да
Площадь дома 120 м2
Санузлы 2
Спальни 4

Описание

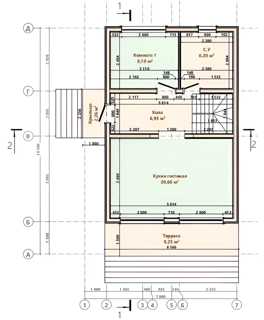
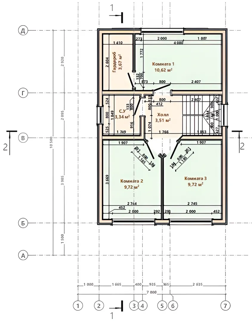
Утонченный дом в стиле хай‑тек площадью 120 квадратных метров сочетает в себе лаконичную эстетику с передовыми технологиями. На двух надземных этажах уютно расположилось просторное открытое пространство: светлый коридор, современная кухня с островом, гостиная, две жилые комнаты и офис. Окна с панорамным стеклом проникают светом и создают ощущение простора, а открытая система отопления «умного» дома обеспечивает комфорт независимо от сезона. Внутри каждая деталь продумана: встроенная система охраны, освещение под управление голосом, «умный» климат контроль и высокоскоростное интернет‑подключение — всё это превращает ваш дом в настоящее технологичное убежище. На первой и второй планах открытая терраса приглашает проводить время на свежем воздухе, даже в холодную погоду — благодаря теплоизоляции и защите от ветра. Внешняя облицовка из деревянного каркаса не только придаёт дому естественную атмосферу, но и обеспечивает отличную энергетическую эффективность. Плоская крыша оставляет просторы для установки солнечных панелей или небольшого сада на крыше, а отсутствие чердака и пристроенных гаражей гарантирует чистую, незагромождённую линию фасада. Этот дом идеален для тех, кто ценит сочетание современной жизни и экологической гармонии.

Характеристики дома

Архитектурный стиль
Автоматизированное регулирование параметров теплоносителя
-
Балконы/лоджии
Отсутствуют
Чердачное помещение
Нет
Датчики протечки воды
-
Эксплуатируемая или зеленая кровля
-
Электроснабжение
Центральное
Газоснабжение
Не предусмотрено
Изоляция воздушного шума
-
Камин
Нет
Класс энергоэффективности
-
Класс энергосбережения
-
Количество надземных этажей
2
Круглогодичное проживание
Да
Материал кровли
Рулонные битумные покрытия
Материал перекрытий
Деревянные
Материал внешних стен
Материал внутренних перегородок
Деревянные
Модульное строительство с конструкциями заводского изготовления
Нет
Объем надземной части
-
Основной материал фасадов
Планкен
Отопление
Индивидуальное
Площадь дома
120 м2
Площадь застройки
58 м2
Подвальное помещение
Нет
Показатель компактности здания
-
Приборы учета тепловой энергии
-
Пристроенный гараж/крытая автостоянка
Нет
Противопожарная система
Нет
Санузлы
2
Совмещенная кухня-гостиная
Да
Спальни
4
Терраса
Да
Тип фундамента
Свайно-винтовой
Тип кровли
Толщина внешних стен
320 мм
Толщина внутренних перегородок
200 мм
Улучшенные шумовые характеристики
-
Вентиляция
Естественная
Веранда
Нет
Водоотведение
Локальные очистные сооружения
Водоснабжение
Индивидуальное
Высота дома
6.5 м
Высота потолков
2.6 м

Планировка

Фасад дома

Александр

Закажите выезд инженера

Александр

Выездной инженер
Закажите выезд инженера для точной диагностики и профессиональной консультации по инженерным системам. Специалист приедет в удобное время, проведёт осмотр, рассчитает стоимость работ и подберёт оптимальные решения для вашего дома.


    Похожие проекты

    Ипотека и
    рассрочка
    80-11/24 АР
    Стоимость от:
    10 905 620
    Проект от: 63 450
    Этажей 1
    Санузлы 3
    Спальни 3
    Смотреть
    Ипотека и
    рассрочка
    Одноэтажный дом по проекту Латен Макс — 130 м2
    Стоимость от:
    8 894 600
    Проект от: 58 500
    Этажей 1
    Санузлы 2
    Спальни 3
    Смотреть
    Ипотека и
    рассрочка
    Одноэтажный дом FIXPLANS — 1655
    Стоимость от:
    10 183 360
    Проект от: 57 600
    Этажей 1
    Санузлы 1
    Спальни 3
    Смотреть
    Ипотека и
    рассрочка
    ДРЕВЕСНЫЙ КОМФОРТ
    Стоимость от:
    3 820 200
    Проект от: 29 250
    Этажей 2
    Санузлы 1
    Спальни 2
    Смотреть
    Ипотека и
    рассрочка
    Серия «КЛАССИКА» КД-6
    Стоимость от:
    5 278 500
    Проект от: 40 500
    Этажей 2
    Санузлы 2
    Спальни 4
    Смотреть
    Ипотека и
    рассрочка
    КСТ-Д-03
    Стоимость от:
    8 640 500
    Проект от: 51 750
    Этажей 1
    Санузлы 2
    Спальни 3
    Смотреть

    Как узнать стоимость дома

    back
    Оставляете заявку
    Вы заполняете форму на сайте или звоните нам. Менеджер Лайвкрафт связывается с вами для уточнения деталей: тип дома, площадь, материалы, участок строительства.
    back
    Консультация и подбор решения
    Наш специалист помогает выбрать оптимальный тип дома и конструкцию с учётом бюджета, сроков и целей — будь то дом для постоянного проживания или дача.
    back
    Расчёт предварительной стоимости
    Инженер делает первичный расчёт стоимости строительства по вашим параметрам: фундамент, коробка, кровля, отделка. Вы получаете смету с разбивкой по этапам.
    back
    Корректировка и утверждение сметы
    При необходимости вносим изменения — например, замену материалов или сокращение этапов. После согласования формируется окончательная фиксированная смета.
    back
    Заключение договора и старт работ
    После утверждения сметы заключаем официальный договор с гарантией. Вы получаете прозрачный график и точную стоимость — без скрытых расходов.

    Заказать конусльтацию по:Хайтек 120

    Фото 1 Хайтек 120


      Наши
      контакты

      Дмитров
      Опорный проезд 28Б
      (индустриальный парк Ниагара)
      9:00 до 18:00

      Корзина