4.9
Рейтинг на основании 120 отзывов
Дмитров
Опорный проезд 28Б
(индустриальный парк Ниагара)
Бренд "Дмитров-Дело" c 2008 года на рынке строительства в Дмитрове
Звоните 9:00 до 18:00 8 (915) 055-33-61
Бренд "Дмитров-Дело" c 2008 года на рынке строительства в Дмитрове

КСТ-Д-03

Стоимость проекта от:
51 750 ₽
БЕСПЛАТНО! ПРИ ЗАКАЗЕ СТРОИТЕЛЬСТВА
Стоимость строительства от:
8 640 500 ₽
Артикул ART-3310
Дата 26.12.2025
Архитектурный стиль Классический
Количество надземных этажей 1
Круглогодичное проживание Да
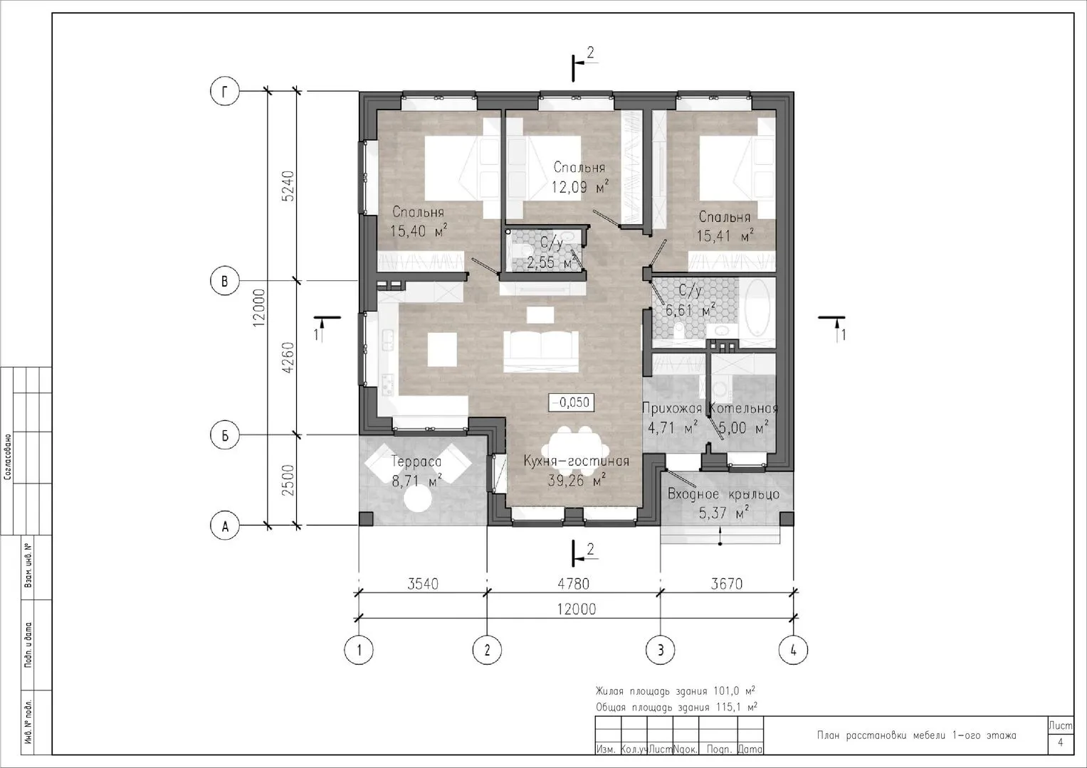
Площадь дома 115 м2
Санузлы 2
Спальни 3

Описание

**КСТ-Д-03 – уют в классическом исполнении** Величественная кирпичная фасада и строгая четырехскатная (валмовая) крыша создают неповторимую атмосферу, где каждый элемент напоминает о традиционном уюта. Пространство одного уровня удобно адаптируется под любые потребности, предоставляя комфорт и простоту в эксплуатации. Круглогодичное проживание стало нормой благодаря продуманной теплоизоляции и качественной отделке – дом словно обнимает тебя в любое время года. На открытой террасе, которая заменяет привычные балконы и лоджии, можно смело планировать летние сборы, завтраки на свежем воздухе или же наслаждаться вечерними закатами. Внутренний план позволяет создавать просторные и светлые комнаты, а отсутствие прицепленных гаражей и подземной стоянки делает дом более свободным и легким для проживания. Если ты ценишь сочетание классической элегантности с практичностью – КСТ‑Д‑03 станет именно тем, о чем ты давно мечтал.

Характеристики дома

Архитектурный стиль
Автоматизированное регулирование параметров теплоносителя
-
Балконы/лоджии
Отсутствуют
Чердачное помещение
Нет
Датчики протечки воды
-
Эксплуатируемая или зеленая кровля
-
Электроснабжение
Центральное
Газоснабжение
Центральное
Изоляция воздушного шума
-
Камин
Нет
Класс энергоэффективности
-
Класс энергосбережения
-
Количество надземных этажей
1
Круглогодичное проживание
Да
Материал кровли
Металлочерепица
Материал перекрытий
Деревянные
Материал внешних стен
Материал внутренних перегородок
Кирпичные
Модульное строительство с конструкциями заводского изготовления
Нет
Объем надземной части
792 м3
Основной материал фасадов
Облицовочный кирпич
Отопление
Индивидуальное
Площадь дома
115 м2
Площадь застройки
144 м2
Подвальное помещение
Нет
Показатель компактности здания
-
Приборы учета тепловой энергии
-
Пристроенный гараж/крытая автостоянка
Нет
Противопожарная система
Нет
Санузлы
2
Совмещенная кухня-гостиная
Да
Спальни
3
Терраса
Да
Тип фундамента
Свайно-ростверковый
Толщина внешних стен
250 мм
Толщина внутренних перегородок
120 мм
Улучшенные шумовые характеристики
-
Вентиляция
Естественная
Веранда
Нет
Водоотведение
Локальные очистные сооружения
Водоснабжение
Центральное
Высота дома
5.38 м
Высота потолков
3 м

Планировка

Фасад дома

Александр

Закажите выезд инженера

Александр

Выездной инженер
Закажите выезд инженера для точной диагностики и профессиональной консультации по инженерным системам. Специалист приедет в удобное время, проведёт осмотр, рассчитает стоимость работ и подберёт оптимальные решения для вашего дома.


    Похожие проекты

    Ипотека и
    рассрочка
    Кирпичный дом, классика 120 м²
    Стоимость от:
    8 751 600
    Проект от: 54 000
    Этажей 1
    Санузлы 2
    Спальни 4
    Смотреть
    Ипотека и
    рассрочка
    Иволга
    Стоимость от:
    6 164 840
    Проект от: 36 900
    Этажей 1
    Санузлы 1
    Спальни 2
    Смотреть
    Ипотека и
    рассрочка
    К150
    Стоимость от:
    10 498 800
    Проект от: 65 250
    Этажей 2
    Санузлы 3
    Спальни 4
    Смотреть
    Ипотека и
    рассрочка
    Одноэтажный дом FIXPLANS — 2231
    Стоимость от:
    9 578 800
    Проект от: 63 000
    Этажей 1
    Санузлы 2
    Спальни 3
    Смотреть
    Ипотека и
    рассрочка
    Проект двухэтажного каменного дома
    Стоимость от:
    9 659 760
    Проект от: 58 050
    Этажей 2
    Санузлы 3
    Спальни 5
    Смотреть
    Ипотека и
    рассрочка
    Хельга
    Стоимость от:
    4 643 980
    Проект от: 34 200
    Этажей 1
    Санузлы 1
    Спальни 2
    Смотреть

    Как узнать стоимость дома

    back
    Оставляете заявку
    Вы заполняете форму на сайте или звоните нам. Менеджер Лайвкрафт связывается с вами для уточнения деталей: тип дома, площадь, материалы, участок строительства.
    back
    Консультация и подбор решения
    Наш специалист помогает выбрать оптимальный тип дома и конструкцию с учётом бюджета, сроков и целей — будь то дом для постоянного проживания или дача.
    back
    Расчёт предварительной стоимости
    Инженер делает первичный расчёт стоимости строительства по вашим параметрам: фундамент, коробка, кровля, отделка. Вы получаете смету с разбивкой по этапам.
    back
    Корректировка и утверждение сметы
    При необходимости вносим изменения — например, замену материалов или сокращение этапов. После согласования формируется окончательная фиксированная смета.
    back
    Заключение договора и старт работ
    После утверждения сметы заключаем официальный договор с гарантией. Вы получаете прозрачный график и точную стоимость — без скрытых расходов.

    Заказать конусльтацию по:КСТ-Д-03

    Фото 1 КСТ-Д-03


      Наши
      контакты

      Дмитров
      Опорный проезд 28Б
      (индустриальный парк Ниагара)
      9:00 до 18:00

      Корзина